賃貸マンション
FORTUNA川内平佐の賃貸物件情報(1LDK/3階)
| 家賃 | 管理費等 | 敷金 | 礼金 | 間取り | 専有面積 |
|---|---|---|---|---|---|
| 5.5万円 | 3,000円 | 5.5万円 | なし | 1LDK | 30.45m2 |
入居決定でお祝い金最大100,000円
- 保証金
- -
- 償却・敷引
- -
- 築年数
- 築3年
- 所在階
- 3階
- 向き
- 南
Point
バーチャル(CG)家具で生活のイメージがしやすい!薩摩川内市平佐町に位置し、鹿児島本線川内駅まで徒歩19分の好立地。Aコープ川内店も近く、生活の利便性に優れています。
提供:ハウスメイトネットワーク(有)マルゼン商事(SUUMO経由)

詳細情報 FORTUNA川内平佐
物件紹介
FORTUNA川内平佐はJR鹿児島本線川内駅から徒歩18分にあるマンションです。
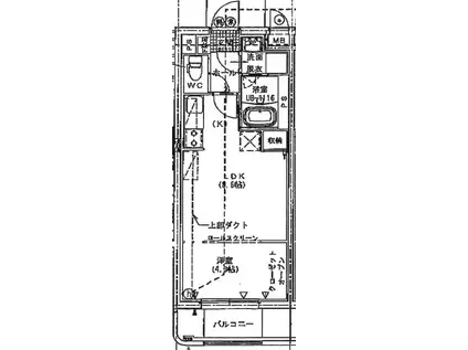
このお部屋は2階以上に位置しているので、通行人や周囲の住人からの視線が気になりにくく、防犯面でも安心。建物のエントランスはオートロックがついており、インターホンにはTVモニタもついているため、相手の顔を確認してから来客対応することができます。
人気の南向きのお部屋。また、フローリングなのでお掃除もラクラク。キッチンはシステムキッチン仕様になっていますので、お料理好きの方にもぴったり。バス・トイレは別なので、のんびりお風呂タイムも楽しめるでしょう。また、雨の日でも浴室乾燥機を使えば、お洗濯も問題ありません。
通信設備面では、インターネットが無料で使えるので、月々の出費を抑えられるのも魅力です。また、BSアンテナ・CSアンテナもありますので、おうち時間も充実するでしょう(別途工事、BS・CSの契約料等が必要な場合あり)。
共用部には宅配ボックスが設定されているので、不在の時にも荷物を受け取ることができます。
このお部屋は2階以上に位置しているので、通行人や周囲の住人からの視線が気になりにくく、防犯面でも安心。建物のエントランスはオートロックがついており、インターホンにはTVモニタもついているため、相手の顔を確認してから来客対応することができます。
人気の南向きのお部屋。また、フローリングなのでお掃除もラクラク。キッチンはシステムキッチン仕様になっていますので、お料理好きの方にもぴったり。バス・トイレは別なので、のんびりお風呂タイムも楽しめるでしょう。また、雨の日でも浴室乾燥機を使えば、お洗濯も問題ありません。
通信設備面では、インターネットが無料で使えるので、月々の出費を抑えられるのも魅力です。また、BSアンテナ・CSアンテナもありますので、おうち時間も充実するでしょう(別途工事、BS・CSの契約料等が必要な場合あり)。
共用部には宅配ボックスが設定されているので、不在の時にも荷物を受け取ることができます。
お金・契約の情報
※「-」と表示されているものは、実際は料金が発生するものもございます。詳細はお問い合わせください。
| 家賃 | 5.5万円 | 管理費・共益費 | 3,000円 |
|---|---|---|---|
| 敷金 | 5.5万円 | 礼金 | なし |
| フリーレント | あり | ||
| 入居決定でお祝い金最大100,000円 | |||
| 保証金 | - | 償却・敷引 | - |
| 住宅保険料 | - | 更新料 | - |
| 保証会社利用 | 必須 | 保証会社名 | - |
| 保証会社費用 | - | 保証会社備考 | 保証会社利用必 ユーミーサポート初回保証料総賃料50% |
| 契約形態 | - | 契約期間 | - |
| 入居・引渡期間 | 相談 | 現況 | - |
| 契約備考 | 未入居/ユーミーネット川内店管理物件!!家具・家電レンタルサービス4290円~対応可能です!お問い合わせはユーミーネット川内店( ナビダイヤル1番)まで!! 合計1.32万円(内訳:鍵交換費用13200円) 契約更新事務手数料:11,000円(2年毎)、安心マイスター241840円/月、口座振替手数料220円/月 1LDK 単身者可/二人入居可/子供可/事務所利用不可/フリーレント1ヶ月日割りで1ヶ月間です。 普通借家2年 損保【0.19万円】 バストイレ別、バルコニー、エアコン、ガスコンロ対応、クロゼット、フローリング、シャワー付洗面台、TVインターホン、浴室乾燥機、オートロック、室内洗濯置、陽当り良好、シューズボックス、システムキッチン、南向き、追焚機能浴室、温水洗浄便座、脱衣所、洗面所独立、洗面化粧台、2口コンロ、駐輪場、宅配ボックス、外壁タイル張り、礼金不要、最上階、BS・CS、防犯カメラ、敷金1ヶ月、全居室フローリング、2沿線利用可、ネット使用料不要、フリーレント、外壁コンクリート、複層ガラス、平坦地、電子キー、築3年以内、未入居、3駅以上利用可、上階無し、敷地内ごみ置き場、当社管理物件、プロパンガス、洗面所にドア、エコジョーズ、南面バルコニー、天井高シューズクロゼット、IT重説対応物件、初期費用カード決済可、通風良好 | ||
部屋の情報
| 間取り | 1LDK | 専有面積 | 30.45m2 |
|---|---|---|---|
| 所在階 / 向き | 3階 / 南 | バルコニー面積 | 4m2 |
| 水道 / ガス | - | ||
| 設備 | バス・トイレ別、2階以上、オートロック、テレビドアホン、宅配ボックス、浴室乾燥機、追い焚き、インターネット対応、システムキッチン、エアコン、温水洗浄便座、南向き、バルコニー、フローリング、洗髪洗面化粧台、2口コンロ、コンロ:ガス、CSアンテナ、BSアンテナ、インターネット使用料無料、洗濯機:室内 | ||
| 当社物件ID | 138835017 | ||
建物の情報
| 建物名 | FORTUNA川内平佐 | ||
|---|---|---|---|
| 所在地 | 鹿児島県薩摩川内市 | ||
| 交通 | JR鹿児島本線 川内駅(鹿児島) 徒歩19分 JR鹿児島本線 隈之城駅 徒歩46分 肥薩おれんじ鉄道 上川内駅 徒歩64分 | ||
| 階数 | 3階建 | 総戸数 | 18戸 |
| 築年月 | 2023年08月 / 築3年 | エレベーター | - |
| 駐車場 | 空有 2000円 | バイク置き場 | - |
| 駐輪場 | あり | 管理人/管理会社 | - |
| 周辺環境 | その他 A・コープ鹿児島 川内店(スーパー)まで217m その他 タイヨー 永利店(スーパー)まで871m その他 ディスカウントドラッグ コスモス 川内平佐店(ドラッグストア)まで666m その他 ファミリーマート 川内平佐店(コンビニ)まで320m その他 ドラッグストアモリ 川内平佐店(ドラッグストア)まで1398m その他 ローソン 薩摩川内宮崎町店(コンビニ)まで1366m | ||
| 建物種別 | マンション | 建物構造 | RC(鉄筋コンクリート) |
この部屋の取扱い不動産会社
| 会社名 | ユーミーネット川内店ユーミーコーポレーション(株)(SUUMO経由) | ||
|---|---|---|---|
| 所在地 | 鹿児島県薩摩川内市平佐町 2050-1 | 交通 | - |
| 営業時間 | 10時~18時 | 定休日 | 水曜・祝日 |
| 免許番号 | 国土交通大臣9190 | 取引態様 | 仲介 |
| 不動産会社管理番号 | 100469754456 | 当社管理番号 | 89 |
| 所属団体 | (公社)鹿児島県宅地建物取引業協会会員 | ||
| 公正取引協議会 | (一社)九州不動産公正取引協議会加盟 | ||
| 取扱い物件情報 | 物件詳細へ | ||
※各種情報と現状に差異がある場合は、現状優先となります。問い合わせをすることで、より詳しい条件、情報を確認する事ができます。
提供:ユーミーネット川内店ユーミーコーポレーション(株)(SUUMO経由)
この物件が気になったら掲載期限まであと10日
FORTUNA川内平佐に条件(家賃・エリア)が近い物件一覧
| 写真 | 家賃 管理費等 | 敷金 礼金 | 間取り 専有面積 | 築年数 | 最寄り駅 所在地 | キープ | 詳細 |
|---|---|---|---|---|---|---|---|
アパート メゾン・ドリームIII(1K/1階) | |||||||
![]() | 3.65万円 2,200円 | なし 3.65万円 | 1K 35m2 | 築1年 | JR鹿児島本線 串木野駅 徒歩21分 鹿児島県いちき串木野市浦和町 | 詳細を見る | |
アパート レオパレス黎明(1K/1階) | |||||||
![]() | 4.3万円 3,500円 | なし 4.3万円 | 1K 19.87m2 | 築23年 | 鹿児島市電谷山線 宇宿一丁目駅 徒歩4分 鹿児島市電谷山線 二軒茶屋駅(鹿児島) 徒歩5分 JR指宿枕崎線 宇宿駅 徒歩10分 鹿児島県鹿児島市宇宿 | 詳細を見る | |
アパート 鹿児島県鹿児島市 築1年(1LDK/1階) | |||||||
![]() | 5.8万円 なし | なし なし | 1LDK 33.3m2 | 築1年 | 鹿児島県鹿児島市下伊敷 | 詳細を見る | |
アパート レオパレスけーあい(1K/2階) | |||||||
![]() | 5万円 5,500円 | なし 5万円 | 1K 19.87m2 | 築18年 | 鹿児島市電谷山線 南鹿児島駅前駅 徒歩6分 鹿児島県鹿児島市宇宿 | 詳細を見る | |
アパート レオパレス紫原(1K/1階) | |||||||
![]() | 3.8万円 5,500円 | なし なし | 1K 19.87m2 | 築19年 | 鹿児島市電谷山線 南鹿児島駅前駅 徒歩19分 JR指宿枕崎線 南鹿児島駅 徒歩20分 鹿児島県鹿児島市紫原 | 詳細を見る | |
マンション エンジェル(2LDK/3階) | |||||||
![]() | 6.5万円 3,000円 | 6.5万円 なし | 2LDK 51m2 | 新築 | JR日豊本線 国分駅(鹿児島) 徒歩36分 鹿児島県霧島市国分山下町 | 詳細を見る | |
マンション ロイヤルシティ見次(1LDK/8階) | |||||||
![]() | 4.8万円 なし | なし なし | 1LDK 47m2 | 築34年 | 鹿児島県霧島市隼人町見次 | 詳細を見る | |
マンション シンシア(1LDK/3階) | |||||||
![]() | 6.05万円 3,500円 | なし なし | 1LDK 29.81m2 | 築1年 | 鹿児島市電谷山線 笹貫駅 徒歩4分 JR指宿枕崎線 宇宿駅 徒歩6分 鹿児島市電谷山線 上塩屋駅 徒歩13分 鹿児島県鹿児島市小原町 | 詳細を見る | |








