賃貸マンション
ビレッジハウス南高野2号棟の賃貸物件情報(3DK/4階)
| 家賃 | 管理費等 | 敷金 | 礼金 | 間取り | 専有面積 |
|---|---|---|---|---|---|
| 3.47万円 | なし | なし | なし | 3DK | 53.08m2 |
入居決定でお祝い金最大100,000円
- 保証金
- -
- 償却・敷引
- -
- 築年数
- 築33年
- 所在階
- 4階
- 向き
- 南西
Point
まずはお問い合わせ!
不動産会社は街のプロ、あなたに合った物件がきっと見つかります。
提供:ビレッジハウス住まい相談センター

詳細情報 ビレッジハウス南高野2号棟
物件紹介
このお部屋は2階以上に位置しているので、通行人や周囲の住人からの視線が気になりにくく、防犯面でも安心。インターホンにはTVモニタもついているため、相手の顔を確認してから来客対応することができます。
人気の角部屋。周囲の居住者の生活音も気になりにくい場所です。バス・トイレ別の仕様で、のんびりお風呂タイムも楽しめます。
人気の角部屋。周囲の居住者の生活音も気になりにくい場所です。バス・トイレ別の仕様で、のんびりお風呂タイムも楽しめます。
お金・契約の情報
※「-」と表示されているものは、実際は料金が発生するものもございます。詳細はお問い合わせください。
| 家賃 | 3.47万円 | 管理費・共益費 | なし |
|---|---|---|---|
| 敷金 | なし | 礼金 | なし |
| フリーレント | 0ヶ月 | ||
| 入居決定でお祝い金最大100,000円 | |||
| 保証金 | - | 償却・敷引 | - |
| 住宅保険料 | 1万円(2年) | 更新料 | - |
| 保証会社利用 | - | 保証会社名 | - |
| 保証会社費用 | - | 保証会社備考 | - |
| 契約形態 | - | 契約期間 | - |
| 入居・引渡期間 | - | 現況 | 空室 |
| 入居可能条件 | 2人入居可、高齢者相談、学生可 | ||
| 契約備考 | 契約種類:普通契約、24時間緊急対応 | ||
部屋の情報
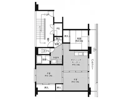
| 間取り | 3DK | 専有面積 | 53.08m2 |
|---|---|---|---|
| 所在階 / 向き | 4階 / 南西 | バルコニー面積 | - |
| 水道 / ガス | - | ||
| 設備 | バス・トイレ別、テレビドアホン、追い焚き、エアコン、角部屋、バルコニー、給湯、洗濯機:室内 | ||
| 当社物件ID | 136076229 | ||
建物の情報
| 建物名 | ビレッジハウス南高野2号棟 | ||
|---|---|---|---|
| 所在地 | 茨城県日立市南高野町1丁目23-10 | ||
| 交通 | 常磐線 大甕駅 バス乗車時間:8分 貝塚公園バス停で下車 徒歩37分 常磐線 東海駅 バス乗車時間:8分 最寄りバス停で下車 徒歩74分 | ||
| 階数 | 5階建 | 総戸数 | - |
| 築年月 | 1993年10月 / 築33年 | エレベーター | - |
| 駐車場 | 空有 円 | バイク置き場 | - |
| 駐輪場 | - | 管理人/管理会社 | 日勤 |
| 建物種別 | マンション | 建物構造 | RC(鉄筋コンクリート) |
この部屋の取扱い不動産会社
| 会社名 | ビレッジハウス住まい相談センター | ||
|---|---|---|---|
| 所在地 | 愛知県名古屋市中区大須4-10-32 上前津KDビル5階 | 交通 | 名城線「上前津駅」徒歩3分 |
| 営業時間 | 平日:9:00-18:30/土日祝:9:00-18:00 | 定休日 | 年中無休(年末年始を除く) |
| 免許番号 | 東京都知事(2)第100758号 | 取引態様 | 貸主 |
| 不動産会社管理番号 | 00008147161 | 当社管理番号 | 459 |
| 所属団体 | 公益社団法人東京都宅地建物取引業協会会員 日本賃貸住宅管理協会会員 | ||
| 取扱い物件情報 | 物件詳細へ | ||
※各種情報と現状に差異がある場合は、現状優先となります。問い合わせをすることで、より詳しい条件、情報を確認する事ができます。
提供:ビレッジハウス住まい相談センター
この物件が気になったら掲載期限まであと13日
ビレッジハウス南高野2号棟に条件(家賃・エリア)が近い物件一覧
| 写真 | 家賃 管理費等 | 敷金 礼金 | 間取り 専有面積 | 築年数 | 最寄り駅 所在地 | キープ | 詳細 |
|---|---|---|---|---|---|---|---|
アパート ベルクレール(2LDK/1階) | |||||||
![]() | 5万円 4,000円 | なし なし | 2LDK 53.76m2 | 築25年 | JR常磐線 常陸多賀駅 徒歩22分 茨城県日立市東金沢町 | 詳細を見る | |
アパート メーア ブリーゼ(1LDK/1階) | |||||||
![]() | 4.55万円 1,700円 | なし なし | 1LDK 45.12m2 | 築16年 | JR常磐線 小木津駅 徒歩19分 茨城県日立市日高町 | 詳細を見る | |
マンション レオパレスしろがね(1K/2階) | |||||||
![]() | 4.3万円 6,500円 | なし 4.3万円 | 1K 20.81m2 | 築16年 | 茨城県日立市中成沢町2丁目 | 詳細を見る | |
アパート 高橋アパート(1K/2階) | |||||||
![]() | 3.6万円 なし | なし なし | 1K 25.62m2 | 築44年 | JR常磐線 日立駅 徒歩20分 JR常磐線 常陸多賀駅 徒歩73分 JR常磐線 小木津駅 徒歩75分 茨城県日立市助川町 | 詳細を見る | |
アパート カーサM(1K/2階) | |||||||
![]() | 3万円 なし | 3万円 なし | 1K 24.22m2 | 築37年 | JR常磐線 常陸多賀駅 徒歩29分 JR常磐線 日立駅 徒歩55分 JR常磐線 大甕駅 徒歩89分 茨城県日立市鮎川町 | 詳細を見る | |
アパート サンロイヤル(3K/1階) | |||||||
![]() | 5万円 なし | なし なし | 3K 50.19m2 | 築37年 | JR常磐線 東海駅 徒歩26分 茨城県那珂郡東海村白方中央 | 詳細を見る | |
アパート シェリール蔵前B(1LDK/1階) | |||||||
![]() | 5.3万円 4,000円 | なし なし | 1LDK 32.4m2 | 築11年 | JR常磐線 日立駅 徒歩41分 JR常磐線 小木津駅 徒歩47分 JR常磐線 十王駅 徒歩99分 茨城県日立市滑川本町 | 詳細を見る | |
マンション シャロルM(1K/2階) | |||||||
![]() | 4.8万円 2,300円 | なし 4.8万円 | 1K 28.3m2 | 築12年 | JR常磐線 日立駅 徒歩27分 茨城県日立市東滑川町 | 詳細を見る | |









