賃貸マンション
ビレッジハウス日明 3号棟の賃貸物件情報(3DK/2階)
| 家賃 | 管理費等 | 敷金 | 礼金 | 間取り | 専有面積 |
|---|---|---|---|---|---|
| 5.14万円 | なし | なし | なし | 3DK | 53.96m2 |
入居決定でお祝い金最大100,000円
- 保証金
- -
- 償却・敷引
- -
- 築年数
- 築46年
- 所在階
- 2階
- 向き
- 南西
Point
まずはお問い合わせ!
不動産会社は街のプロ、あなたに合った物件がきっと見つかります。
提供:ビレッジハウス住まい相談センター

詳細情報 ビレッジハウス日明 3号棟
物件紹介
ビレッジハウス日明 3号棟は鹿児島本線西小倉駅から徒歩23分にあるマンションです。
このお部屋は2階以上に位置しているので、通行人や周囲の住人からの視線が気になりにくく、防犯面でも安心です。
人気の角部屋。周囲の居住者の生活音も気になりにくい場所です。バス・トイレ別の仕様で、のんびりお風呂タイムも楽しめます。
ペット飼育の相談ができますので、あなたの大切な家族の一員も快適に暮らせるか、ぜひ確認してみてください。
このお部屋は2階以上に位置しているので、通行人や周囲の住人からの視線が気になりにくく、防犯面でも安心です。
人気の角部屋。周囲の居住者の生活音も気になりにくい場所です。バス・トイレ別の仕様で、のんびりお風呂タイムも楽しめます。
ペット飼育の相談ができますので、あなたの大切な家族の一員も快適に暮らせるか、ぜひ確認してみてください。
お金・契約の情報
※「-」と表示されているものは、実際は料金が発生するものもございます。詳細はお問い合わせください。
| 家賃 | 5.14万円 | 管理費・共益費 | なし |
|---|---|---|---|
| 敷金 | なし | 礼金 | なし |
| フリーレント | 0ヶ月 | ||
| 入居決定でお祝い金最大100,000円 | |||
| 保証金 | - | 償却・敷引 | - |
| 住宅保険料 | 1万円(2年) | 更新料 | - |
| 保証会社利用 | - | 保証会社名 | - |
| 保証会社費用 | - | 保証会社備考 | - |
| 契約形態 | - | 契約期間 | - |
| 入居・引渡期間 | - | 現況 | 空室 |
| 入居可能条件 | 2人入居可、高齢者相談、学生可、ペット相談 | ||
| 契約備考 | 契約種類:普通契約、24時間緊急対応、防犯カメラ、洗面台 | ||
部屋の情報
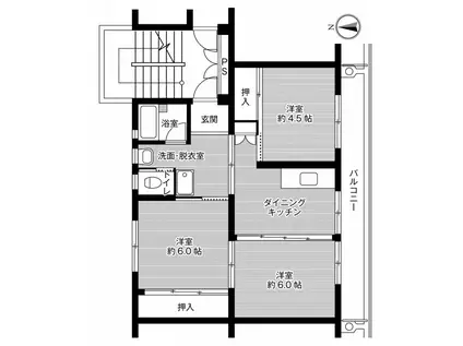
| 間取り | 3DK | 専有面積 | 53.96m2 |
|---|---|---|---|
| 所在階 / 向き | 2階 / 南西 | バルコニー面積 | - |
| 水道 / ガス | - | ||
| 設備 | バス・トイレ別、追い焚き、エアコン、角部屋、バルコニー、給湯、洗濯機:室内 | ||
| 当社物件ID | 101415576 | ||
建物の情報
| 建物名 | ビレッジハウス日明 3号棟 | ||
|---|---|---|---|
| 所在地 | 福岡県北九州市小倉北区日明4丁目9-13 | ||
| 交通 | 鹿児島本線 西小倉駅 徒歩23分 鹿児島本線 九州工大前駅 徒歩26分 鹿児島本線 小倉駅(福岡) 徒歩34分 北九州高速鉄道 平和通駅 徒歩37分 | ||
| 階数 | 5階建 | 総戸数 | - |
| 築年月 | 1980年03月 / 築46年 | エレベーター | - |
| 駐車場 | 空有 5,500円/月 円 | バイク置き場 | - |
| 駐輪場 | - | 管理人/管理会社 | 日勤 |
| 建物種別 | マンション | 建物構造 | RC(鉄筋コンクリート) |
この部屋の取扱い不動産会社
| 会社名 | ビレッジハウス住まい相談センター | ||
|---|---|---|---|
| 所在地 | 愛知県名古屋市中区大須4-10-32 上前津KDビル5階 | 交通 | 名城線「上前津駅」徒歩3分 |
| 営業時間 | 平日:9:00-18:30/土日祝:9:00-18:00 | 定休日 | 年中無休(年末年始を除く) |
| 免許番号 | 東京都知事(2)第100758号 | 取引態様 | 貸主 |
| 不動産会社管理番号 | 00013685010 | 当社管理番号 | 459 |
| 所属団体 | 公益社団法人東京都宅地建物取引業協会会員 日本賃貸住宅管理協会会員 | ||
| 取扱い物件情報 | 物件詳細へ | ||
※各種情報と現状に差異がある場合は、現状優先となります。問い合わせをすることで、より詳しい条件、情報を確認する事ができます。
提供:ビレッジハウス住まい相談センター
この物件が気になったら掲載期限まであと12日
ビレッジハウス日明 3号棟に条件(家賃・エリア)が近い物件一覧
| 写真 | 家賃 管理費等 | 敷金 礼金 | 間取り 専有面積 | 築年数 | 最寄り駅 所在地 | キープ | 詳細 |
|---|---|---|---|---|---|---|---|
マンション エルティアラ上富野2(2LDK/3階) | |||||||
![]() | 7.5万円 5,000円 | 3.75万円 7.5万円 | 2LDK 57.3m2 | 築9年 | 北九州高速鉄道 平和通駅 徒歩3分 鹿児島本線 小倉駅(福岡) 徒歩23分 福岡県北九州市小倉北区上富野3丁目 | 詳細を見る | |
マンション プリンセスメディアパークⅡ(2LDK/4階) | |||||||
![]() | 3.7万円 3,000円 | なし なし | 2LDK 46.28m2 | 築49年 | 北九州高速鉄道 香春口三萩野駅 徒歩11分 北九州高速鉄道 片野駅 徒歩14分 北九州高速鉄道 旦過駅 徒歩17分 福岡県北九州市小倉北区三萩野2丁目 | 詳細を見る | |
マンション シェーナ下到津(1LDK/1階) | |||||||
![]() | 5.25万円 3,500円 | なし 5.25万円 | 1LDK 39.15m2 | 築11年 | 日豊本線 南小倉駅 徒歩16分 福岡県北九州市小倉北区下到津4丁目 | 詳細を見る | |
アパート ロータス北泉1(1LDK/1階) | |||||||
![]() | 5.85万円 2,900円 | なし 5.85万円 | 1LDK 50.14m2 | 築2年 | 日豊本線 南行橋駅 徒歩10分 平成筑豊鉄道 令和コスタ行橋駅 徒歩24分 日豊本線 行橋駅 徒歩31分 福岡県行橋市北泉2丁目 | 詳細を見る | |
マンション フルール・ド・パリス(2K/4階) | |||||||
![]() | 5.2万円 4,000円 | なし なし | 2K 27.92m2 | 築20年 | 鹿児島本線 小倉駅(福岡) 徒歩6分 北九州高速鉄道 平和通駅 徒歩7分 鹿児島本線 西小倉駅 徒歩7分 福岡県北九州市小倉北区京町1丁目 | 詳細を見る | |
マンション プレジデンスざ・さくら通(1LDK/9階) | |||||||
![]() | 7.35万円 5,000円 | なし なし | 1LDK 35.15m2 | 築2年 | 北九州高速鉄道 旦過駅 徒歩3分 北九州高速鉄道 平和通駅 徒歩6分 鹿児島本線 小倉駅(福岡) 徒歩12分 福岡県北九州市小倉北区馬借1丁目 | 詳細を見る | |
アパート ドミールあしや(1LDK/3階) | |||||||
![]() | 3.5万円 3,000円 | なし なし | 1LDK 43m2 | 築51年 | 福岡県遠賀郡芦屋町祇園町 | 詳細を見る | |








