賃貸マンション
アパガーデンズ高崎駅前の賃貸物件情報(3LDK/8階)
| 家賃 | 管理費等 | 敷金 | 礼金 | 間取り | 専有面積 |
|---|---|---|---|---|---|
| 15.5万円 | 1万円 | 31万円 | 31万円 | 3LDK | 80.51m2 |
入居決定でお祝い金最大100,000円
Point
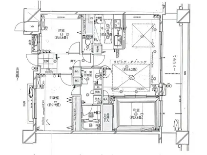
ワイドスパンの明るいリビング。バルコニーも2室またがり明るく広々。
提供:大同不動産(株)(SUUMO経由)

詳細情報 アパガーデンズ高崎駅前
物件紹介
アパガーデンズ高崎駅前はJR高崎線高崎駅から徒歩1分にあり、駅近で通勤通学に便利なマンションです。
このお部屋は2階以上に位置しているので、通行人や周囲の住人からの視線が気になりにくく、防犯面でも安心。建物のエントランスはオートロックがついており、インターホンにはTVモニタもついているため、相手の顔を確認してから来客対応することができます。
フローリングのお部屋なのでお掃除もラクラク。キッチンはシステムキッチン仕様になっていますので、お料理好きの方にもぴったり。バス・トイレは別なので、のんびりお風呂タイムも楽しめるでしょう。また、雨の日でも浴室乾燥機を使えば、お洗濯も問題ありません。
通信設備面では、インターネット接続が可能です。また、BSアンテナ・CSアンテナもありますので、おうち時間も充実するでしょう(別途工事、契約料が必要な場合あり)。
建物にはエレベーターがついているので、重い荷物があっても安心。
このお部屋は2階以上に位置しているので、通行人や周囲の住人からの視線が気になりにくく、防犯面でも安心。建物のエントランスはオートロックがついており、インターホンにはTVモニタもついているため、相手の顔を確認してから来客対応することができます。
フローリングのお部屋なのでお掃除もラクラク。キッチンはシステムキッチン仕様になっていますので、お料理好きの方にもぴったり。バス・トイレは別なので、のんびりお風呂タイムも楽しめるでしょう。また、雨の日でも浴室乾燥機を使えば、お洗濯も問題ありません。
通信設備面では、インターネット接続が可能です。また、BSアンテナ・CSアンテナもありますので、おうち時間も充実するでしょう(別途工事、契約料が必要な場合あり)。
建物にはエレベーターがついているので、重い荷物があっても安心。
お金・契約の情報
※「-」と表示されているものは、実際は料金が発生するものもございます。詳細はお問い合わせください。
| 家賃 | 15.5万円 | 管理費・共益費 | 1万円 |
|---|---|---|---|
| 敷金 | 31万円 | 礼金 | 31万円 |
| 入居決定でお祝い金最大100,000円 | |||
| 保証金 | - | 償却・敷引 | - |
| 住宅保険料 | - | 更新料 | - |
| 保証会社利用 | 必須 | 保証会社名 | - |
| 保証会社費用 | - | 保証会社備考 | 保証会社利用必 Jリース 初回保証料 月額賃料の50% 毎月800円 |
| 契約形態 | - | 契約期間 | - |
| 入居・引渡期間 | 相談 | 現況 | - |
| 契約備考 | 通勤管理/浴室テレビ使用不可です。 3LDK 損保【2万円2年】 バストイレ別、バルコニー、エアコン、シャワー付洗面台、TVインターホン、浴室乾燥機、オートロック、室内洗濯置、シューズボックス、システムキッチン、追焚機能浴室、温水洗浄便座、脱衣所、洗面所独立、駐輪場、押入、光ファイバー、BS・CS、IHクッキングヒーター、照明付、全居室収納、分譲賃貸、LDK15畳以上、敷金2ヶ月、食器洗乾燥機、ダブルロックキー、一部フローリング、エレベーター2基、始発駅、駅前、駅徒歩5分以内、温泉付、敷地内ごみ置き場、日勤管理、和室、都市ガス、礼金2ヶ月 | ||
部屋の情報
| 間取り | 3LDK | 専有面積 | 80.51m2 |
|---|---|---|---|
| 所在階 / 向き | 8階 / 東 | バルコニー面積 | 17m2 |
| 水道 / ガス | - | ||
| 設備 | バス・トイレ別、2階以上、オートロック、テレビドアホン、浴室乾燥機、追い焚き、インターネット対応、システムキッチン、エアコン、エレベーター、温水洗浄便座、バルコニー、フローリング、洗髪洗面化粧台、コンロ:IH、CSアンテナ、BSアンテナ、洗濯機:室内 | ||
| 当社物件ID | 43670727 | ||
建物の情報
| 建物名 | アパガーデンズ高崎駅前 | ||
|---|---|---|---|
| 所在地 | 群馬県高崎市八島町 | ||
| 交通 | JR高崎線 高崎駅(JR) 徒歩1分 | ||
| 階数 | 14階建 | 総戸数 | - |
| 築年月 | 2006年01月 / 築21年 | エレベーター | あり |
| 駐車場 | なし | バイク置き場 | - |
| 駐輪場 | あり | 管理人/管理会社 | - |
| 建物種別 | マンション | 建物構造 | SRC(鉄骨鉄筋コンクリート) |
この部屋の取扱い不動産会社
| 会社名 | 大同不動産(株)(SUUMO経由) | ||
|---|---|---|---|
| 所在地 | 群馬県高崎市八千代町2-1-6 竹中ビル1階 | 交通 | - |
| 営業時間 | 9:00-18:00 | 定休日 | 水・日・祝日 |
| 免許番号 | 群馬県知事6858 | 取引態様 | 仲介 |
| 不動産会社管理番号 | 100202103651 | 当社管理番号 | 89 |
| 所属団体 | (一社)群馬県宅地建物取引業協会会員 | ||
| 公正取引協議会 | (公社)首都圏不動産公正取引協議会加盟 | ||
| 取扱い物件情報 | 物件詳細へ | ||
※各種情報と現状に差異がある場合は、現状優先となります。問い合わせをすることで、より詳しい条件、情報を確認する事ができます。
提供:大同不動産(株)(SUUMO経由)
この物件が気になったら掲載期限まであと7日
アパガーデンズ高崎駅前に条件(家賃・エリア)が近い物件一覧
| 写真 | 家賃 管理費等 | 敷金 礼金 | 間取り 専有面積 | 築年数 | 最寄り駅 所在地 | キープ | 詳細 |
|---|---|---|---|---|---|---|---|
マンション ADVANCE NAGAIⅡ(3LDK/3階) | |||||||
![]() | 11.5万円 5,000円 | 23万円 23万円 | 3LDK 78.12m2 | 築23年 | 両毛線 前橋駅 徒歩8分 群馬県前橋市南町3丁目 | 詳細を見る | |
マンション 高崎タワー21(2LDK/13階) | |||||||
![]() | 15万円 なし | 30万円 7.5万円 | 2LDK 51.61m2 | 築28年 | JR高崎線 高崎駅(JR) 徒歩1分 上信電鉄 南高崎駅 徒歩18分 JR信越本線 北高崎駅 徒歩38分 群馬県高崎市栄町 | 詳細を見る | |
マンション ADVANCE NAGAI II(3LDK/6階) | |||||||
![]() | 12万円 5,000円 | 24万円 24万円 | 3LDK 80.1m2 | 築23年 | JR両毛線 前橋駅 徒歩7分 上毛電鉄 中央前橋駅 徒歩16分 上毛電鉄 城東駅 徒歩17分 群馬県前橋市南町 | 詳細を見る | |
アパート 相生町ガレージAP(ワンルーム/1階) | |||||||
![]() | 11万円 なし | なし なし | ワンルーム 61.47m2 | 築2年 | 信越本線 北高崎駅 徒歩10分 高崎線 高崎駅(JR) 徒歩27分 群馬県高崎市相生町 | 詳細を見る | |
アパート ラ ペ フランI(1LDK/1階) | |||||||
![]() | 10.3万円 2,200円 | なし 10.3万円 | 1LDK 50.42m2 | 築1年 | 湘南新宿ライン高海 高崎問屋町駅 徒歩9分 JR信越本線 北高崎駅 徒歩20分 群馬県高崎市飯塚町 | 詳細を見る | |
マンション まえばしガレリア(ワンルーム/3階) | |||||||
![]() | 13.1万円 8,000円 | 13.1万円 なし | ワンルーム 36.11m2 | 築3年 | 上毛電鉄 中央前橋駅 徒歩5分 上毛電鉄 城東駅 徒歩14分 JR両毛線 前橋駅 徒歩17分 群馬県前橋市千代田町 | 詳細を見る | |
マンション アーバンT(2LDK/3階) | |||||||
![]() | 13.4万円 6,000円 | なし 13.4万円 | 2LDK 61.21m2 | 築1年 | JR信越本線 北高崎駅 徒歩10分 JR高崎線 高崎駅(JR) 徒歩26分 JR上越線 高崎問屋町駅 徒歩32分 群馬県高崎市成田町 | 詳細を見る | |
アパート プライムアート(1LDK/2階) | |||||||
![]() | 9.8万円 4,000円 | なし 9.8万円 | 1LDK 41.75m2 | 築3年 | 上信電鉄 南高崎駅 徒歩8分 JR上越線 高崎駅(JR) 徒歩11分 上信電鉄 佐野のわたし駅 徒歩24分 群馬県高崎市和田町 | 詳細を見る | |









