賃貸マンション
プルミエール梶ヶ谷の賃貸物件情報(1K/2階)
| 家賃 | 管理費等 | 敷金 | 礼金 | 間取り | 専有面積 |
|---|---|---|---|---|---|
| 8.5万円 | 4,000円 | 8.5万円 | 12.75万円 | 1K | 23.2m2 |
入居決定でお祝い金最大100,000円
Point
まずはお問い合わせ!
不動産会社は街のプロ、あなたに合った物件がきっと見つかります。
提供:アパマンショップ菊名店

詳細情報 プルミエール梶ヶ谷
物件紹介
プルミエール梶ヶ谷は東急田園都市線梶が谷駅から徒歩8分にあり、駅近で通勤通学に便利なマンションです。
このお部屋は2階以上に位置しているので、通行人や周囲の住人からの視線が気になりにくく、防犯面でも安心。建物のエントランスはオートロックがついており、インターホンにはTVモニタもついているため、相手の顔を確認してから来客対応することができます。
人気の南向きのお部屋。また、フローリングなのでお掃除もラクラク。キッチンはシステムキッチン仕様になっていますので、お料理好きの方にもぴったり。バス・トイレは別なので、のんびりお風呂タイムも楽しめるでしょう。また、雨の日でも浴室乾燥機を使えば、お洗濯も問題ありません。
通信設備面では、インターネット接続が可能です。また、BSアンテナ・CSアンテナがありCATVにも対応しているので、おうち時間も充実するでしょう(別途工事、契約料が必要な場合あり)。
建物にはエレベーターがついているので、重い荷物があっても安心。共用部には宅配ボックスが設定されているので、不在の時にも荷物を受け取ることができます。
このお部屋は2階以上に位置しているので、通行人や周囲の住人からの視線が気になりにくく、防犯面でも安心。建物のエントランスはオートロックがついており、インターホンにはTVモニタもついているため、相手の顔を確認してから来客対応することができます。
人気の南向きのお部屋。また、フローリングなのでお掃除もラクラク。キッチンはシステムキッチン仕様になっていますので、お料理好きの方にもぴったり。バス・トイレは別なので、のんびりお風呂タイムも楽しめるでしょう。また、雨の日でも浴室乾燥機を使えば、お洗濯も問題ありません。
通信設備面では、インターネット接続が可能です。また、BSアンテナ・CSアンテナがありCATVにも対応しているので、おうち時間も充実するでしょう(別途工事、契約料が必要な場合あり)。
建物にはエレベーターがついているので、重い荷物があっても安心。共用部には宅配ボックスが設定されているので、不在の時にも荷物を受け取ることができます。
お金・契約の情報
※「-」と表示されているものは、実際は料金が発生するものもございます。詳細はお問い合わせください。
| 家賃 | 8.5万円 | 管理費・共益費 | 4,000円 |
|---|---|---|---|
| 敷金 | 8.5万円 | 礼金 | 12.75万円 |
| 入居決定でお祝い金最大100,000円 | |||
| 保証金 | - | 償却・敷引 | - |
| 住宅保険料 | - | 更新料 | - |
| 保証会社利用 | 利用可 | 保証会社名 | レジデントアシスタント |
| 保証会社費用 | - | 保証会社備考 | 初回:月額賃料(共益費・駐車場料金含む)の50%、年間:9,600円 |
| 契約形態 | - | 契約期間 | 2年 |
| 入居・引渡期間 | 2026年03月中旬 | 現況 | - |
| 契約備考 | 口座振替事務手数料 110円/鍵交換費 27500円、[退去時費用:室内清掃費 55,000円 ※故意・過失等別途実費] | ||
部屋の情報
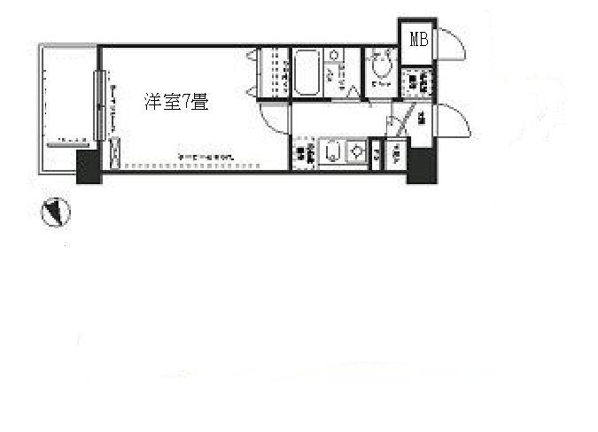
| 間取り | 1K | 専有面積 | 23.2m2 |
|---|---|---|---|
| 所在階 / 向き | 2階 / 南東 | バルコニー面積 | - |
| 水道 / ガス | - | ||
| 設備 | バス・トイレ別、オートロック、宅配ボックス、追い焚き、インターネット対応、エレベーター、バルコニー、フローリング、CATV、BSアンテナ、洗濯機:室内 | ||
| 当社物件ID | 60173 | ||
建物の情報
| 建物名 | プルミエール梶ヶ谷 | ||
|---|---|---|---|
| 所在地 | 神奈川県川崎市高津区梶ケ谷1丁目 | ||
| 交通 | 東急田園都市線 梶が谷駅 徒歩9分 | ||
| 階数 | 5階建 | 総戸数 | - |
| 築年月 | 2002年09月 / 築24年 | エレベーター | あり |
| 駐車場 | - | バイク置き場 | - |
| 駐輪場 | - | 管理人/管理会社 | - |
| 建物種別 | マンション | 建物構造 | RC(鉄筋コンクリート) |
この部屋の取扱い不動産会社
| 会社名 | アパマンショップ登戸店 | ||
|---|---|---|---|
| 所在地 | 神奈川県川崎市多摩区登戸 3414-7MOビル1階 | 交通 | 小田急電鉄小田原線登戸から徒歩1分 |
| 営業時間 | 10:00〜19:00 | 定休日 | 火曜日、水曜日 |
| 免許番号 | 神奈川県知事(5)23661 | 取引態様 | 仲介 |
| 不動産会社管理番号 | 99178646 | 当社管理番号 | 4 |
| 所属団体 | (公社)全日本不動産協会神奈川県本部 | ||
| 公正取引協議会 | (公社) 首都圏不動産公正取引協議会加盟 | ||
| 取扱い物件情報 | 物件詳細へ | ||
※各種情報と現状に差異がある場合は、現状優先となります。問い合わせをすることで、より詳しい条件、情報を確認する事ができます。
提供:アパマンショップ登戸店
この物件が気になったら掲載期限まであと12日
プルミエール梶ヶ谷に条件(家賃・エリア)が近い物件一覧
| 写真 | 家賃 管理費等 | 敷金 礼金 | 間取り 専有面積 | 築年数 | 最寄り駅 所在地 | キープ | 詳細 |
|---|---|---|---|---|---|---|---|
アパート MAESTRO (1LDK/3階) | |||||||
![]() | 13.5万円 6,000円 | 13.5万円 27万円 | 1LDK 36.96m2 | 築1年 | 相鉄本線 上星川駅 徒歩7分 相鉄本線 和田町駅 徒歩10分 相鉄本線 星川駅(神奈川) 徒歩21分 神奈川県横浜市保土ケ谷区坂本町 | 詳細を見る | |
アパート レオパレスKAZUKⅠⅡ(1K/2階) | |||||||
![]() | 8.3万円 5,500円 | なし 8.3万円 | 1K 19.87m2 | 築17年 | 横浜線 鴨居駅 徒歩21分 神奈川県横浜市神奈川区菅田町 | 詳細を見る | |
アパート クールヴェール・B(2LDK/1階) | |||||||
![]() | 10.1万円 6,000円 | なし 20.2万円 | 2LDK 54.61m2 | 築12年 | 相鉄本線 三ツ境駅 徒歩13分 相鉄本線 希望ケ丘駅 徒歩16分 相鉄本線 瀬谷駅 徒歩37分 神奈川県横浜市瀬谷区三ツ境 | 詳細を見る | |
アパート リブリ・武蔵新城(1K/1階) | |||||||
![]() | 8.4万円 4,000円 | なし 8.4万円 | 1K 26.08m2 | 築9年 | JR南武線 武蔵新城駅 徒歩11分 JR南武線 武蔵溝ノ口駅 徒歩26分 東急田園都市線 梶が谷駅 徒歩27分 神奈川県川崎市高津区新作 | 詳細を見る | |
マンション コーポ清川(1DK/4階) | |||||||
![]() | 6.5万円 3,000円 | 6.5万円 6.5万円 | 1DK 26.41m2 | 築48年 | 京急本線 日ノ出町駅 徒歩5分 ブルーライン 伊勢佐木長者町駅 徒歩9分 JR京浜東北線 関内駅 徒歩15分 神奈川県横浜市中区末吉町 | 詳細を見る | |
マンション パークアクシス横濱高島町(ワンルーム/6階) | |||||||
![]() | 10.8万円 1万円 | 10.8万円 なし | ワンルーム 22.84m2 | 築4年 | 京急本線 戸部駅 徒歩4分 JR京浜東北線 桜木町駅 徒歩16分 JR根岸線 横浜駅 徒歩17分 神奈川県横浜市西区戸部本町 | 詳細を見る | |
アパート ジュネスピアB(2LDK/2階) | |||||||
![]() | 12万円 4,000円 | なし 12万円 | 2LDK 53.22m2 | 築14年 | ブルーライン 中川駅(神奈川) 徒歩7分 ブルーライン センター北駅 徒歩20分 神奈川県横浜市都筑区牛久保 | 詳細を見る | |







