賃貸アパート
KAYS SUITE SUNNY MEDの賃貸物件情報(1LDK/1階)
| 家賃 | 管理費等 | 敷金 | 礼金 | 間取り | 専有面積 |
|---|---|---|---|---|---|
| 7万円 | 5,000円 | なし | 7万円 | 1LDK | 50.9m2 |
入居決定でお祝い金最大100,000円
- 保証金
- -
- 償却・敷引
- -
- 築年数
- 新築
- 所在階
- 1階
- 向き
- -
Point
クレジットカードでのお支払い(初期費用)OK。悪天候時やお急ぎの方には写真やパノラマ・動画などでもご内覧可能ですのでお気軽にご相談ください!
提供:ミニミニFCJR尼崎店シティネット(株)(SUUMO経由)

詳細情報 KAYS SUITE SUNNY MED
物件紹介
KAYS SUITE SUNNY MEDはJR山陽本線土山駅から徒歩15分にあるアパートです。
建物のエントランスはオートロックがついており、インターホンにはTVモニタもついているため、相手の顔を確認してから来客対応することができます。
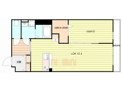
おしゃれなデザイナーズ物件!人気の角部屋で周囲の居住者の生活音も気になりにくく、また、フローリングのお部屋なのでお掃除もラクラク。室内にはウォークインクローゼットがありますので、たくさんの荷物も効率的に収納ができます。キッチンはシステムキッチン仕様になっていますので、お料理好きの方にもぴったり。バス・トイレは別なので、のんびりお風呂タイムも楽しめるでしょう。また、雨の日でも浴室乾燥機を使えば、お洗濯も問題ありません。
通信設備面では、インターネットが無料で使えるので、月々の出費を抑えられるのも魅力です。また、BSアンテナ・CSアンテナがありCATVにも対応しているので、おうち時間も充実するでしょう(別途工事、BS・CS・CATVの契約料等が必要な場合あり)。
建物のエントランスはオートロックがついており、インターホンにはTVモニタもついているため、相手の顔を確認してから来客対応することができます。
おしゃれなデザイナーズ物件!人気の角部屋で周囲の居住者の生活音も気になりにくく、また、フローリングのお部屋なのでお掃除もラクラク。室内にはウォークインクローゼットがありますので、たくさんの荷物も効率的に収納ができます。キッチンはシステムキッチン仕様になっていますので、お料理好きの方にもぴったり。バス・トイレは別なので、のんびりお風呂タイムも楽しめるでしょう。また、雨の日でも浴室乾燥機を使えば、お洗濯も問題ありません。
通信設備面では、インターネットが無料で使えるので、月々の出費を抑えられるのも魅力です。また、BSアンテナ・CSアンテナがありCATVにも対応しているので、おうち時間も充実するでしょう(別途工事、BS・CS・CATVの契約料等が必要な場合あり)。
お金・契約の情報
※「-」と表示されているものは、実際は料金が発生するものもございます。詳細はお問い合わせください。
| 家賃 | 7万円 | 管理費・共益費 | 5,000円 |
|---|---|---|---|
| 敷金 | なし | 礼金 | 7万円 |
| 入居決定でお祝い金最大100,000円 | |||
| 保証金 | - | 償却・敷引 | - |
| 住宅保険料 | - | 更新料 | - |
| 保証会社利用 | 必須 | 保証会社名 | - |
| 保証会社費用 | - | 保証会社備考 | 保証会社利用必 ■保証会社利用必須 初回保証料:総賃料50%,月額保証料:500円,更新料:1万円/年 |
| 契約形態 | - | 契約期間 | - |
| 入居・引渡期間 | - | 現況 | - |
| 契約備考 | 短期解約違約金有1ヵ月(1年未満) 町会費(月額)500円4,400円~5,500円(税込)書類作成代/契約時:2200円/初回、駐輪ステッカー代:1100円/初回 1LDK 二人入居可 損保【1.6万円2年】 バストイレ別、バルコニー、エアコン、ガスコンロ対応、フローリング、シャワー付洗面台、浴室乾燥機、オートロック、室内洗濯置、シューズボックス、角住戸、温水洗浄便座、洗面所独立、駐輪場、CATV、光ファイバー、対面式キッチン、全居室洋室、ウォークインクロゼット、二人入居相談、バイク置場、デザイナーズ、2沿線利用可、ネット使用料不要、2駅利用可、3駅以上利用可、都市ガス、シューズWIC、IT重説対応物件、初期費用カード決済可 入居日:'26年4月上旬 | ||
部屋の情報
| 間取り | 1LDK | 専有面積 | 50.9m2 |
|---|---|---|---|
| 所在階 / 向き | 1階 / - | バルコニー面積 | - |
| 水道 / ガス | - | ||
| 設備 | バス・トイレ別、オートロック、浴室乾燥機、ウォークインクローゼット、インターネット対応、エアコン、温水洗浄便座、角部屋、バルコニー、フローリング、洗髪洗面化粧台、コンロ:ガス、デザイナーズ、CATV、インターネット使用料無料、洗濯機:室内 | ||
| 当社物件ID | 160226186 | ||
建物の情報
| 建物名 | KAYS SUITE SUNNY MED | ||
|---|---|---|---|
| 所在地 | 兵庫県明石市二見町福里 | ||
| 交通 | JR山陽本線 土山駅 徒歩15分 山陽電鉄本線 東二見駅 徒歩26分 山陽電鉄本線 西二見駅 徒歩34分 | ||
| 階数 | 2階建 | 総戸数 | - |
| 築年月 | 2026年03月 / 新築 | エレベーター | - |
| 駐車場 | 空有 4400円 | バイク置き場 | あり |
| 駐輪場 | あり | 管理人/管理会社 | - |
| 周辺環境 | その他 明石市立二見北小学校(小学校)まで552m | ||
| 建物種別 | アパート | 建物構造 | 木造 |
この部屋の取扱い不動産会社
| 会社名 | ミニミニFC阪神甲子園店シティネット(株)(SUUMO経由) | ||
|---|---|---|---|
| 所在地 | 兵庫県西宮市甲子園浦風町 19-6 | 交通 | - |
| 営業時間 | 10:00~18:00 | 定休日 | - |
| 免許番号 | 兵庫県知事10417 | 取引態様 | 仲介 |
| 不動産会社管理番号 | 100483357888 | 当社管理番号 | 89 |
| 所属団体 | (公社)全日本不動産協会兵庫県本部会員 | ||
| 公正取引協議会 | (公社)近畿地区不動産公正取引協議会加盟 | ||
| 取扱い物件情報 | 物件詳細へ | ||
※各種情報と現状に差異がある場合は、現状優先となります。問い合わせをすることで、より詳しい条件、情報を確認する事ができます。
提供:ミニミニFC阪神甲子園店シティネット(株)(SUUMO経由)
この物件が気になったら掲載期限まであと10日
KAYS SUITE SUNNY MEDに条件(家賃・エリア)が近い物件一覧
| 写真 | 家賃 管理費等 | 敷金 礼金 | 間取り 専有面積 | 築年数 | 最寄り駅 所在地 | キープ | 詳細 |
|---|---|---|---|---|---|---|---|
アパート メゾン・ド・カルムⅡ(1LDK/1階) | |||||||
![]() | 5.65万円 3,300円 | なし 5.65万円 | 1LDK 42.19m2 | 築15年 | 山陽電気鉄道本線 東二見駅 徒歩11分 山陽電気鉄道本線 西二見駅 徒歩16分 兵庫県明石市二見町西二見 | 詳細を見る | |
アパート アーバンハイツ東加古川(2DK/2階) | |||||||
![]() | 5.5万円 なし | なし 10万円 | 2DK 38.58m2 | 築41年 | JR山陽本線 東加古川駅 徒歩2分 山陽電鉄本線 別府駅(兵庫) 徒歩38分 JR山陽本線 加古川駅 徒歩47分 兵庫県加古川市平岡町新在家 | 詳細を見る | |
アパート アルファポレールⅡ(1LDK/3階) | |||||||
![]() | 8.35万円 4,400円 | なし 10万円 | 1LDK 42.38m2 | 築1年 | 山陽本線 東加古川駅 徒歩9分 兵庫県加古川市平岡町西谷 | 詳細を見る | |
アパート 山陽本線 明石駅 徒歩10分 築10年(ワンルーム/2階) | |||||||
![]() | 6.1万円 5,000円 | なし 10万円 | ワンルーム 27m2 | 築10年 | 山陽本線 明石駅 徒歩10分 山陽電気鉄道本線 人丸前駅 徒歩10分 山陽電気鉄道本線 山陽明石駅 徒歩10分 兵庫県明石市上ノ丸1丁目 | 詳細を見る | |
マンション ポルトボヌールGS(1LDK/3階) | |||||||
![]() | 5.5万円 なし | なし 11万円 | 1LDK 44.08m2 | 築39年 | JR山陽本線 東加古川駅 徒歩10分 山陽電鉄本線 別府駅(兵庫) 徒歩32分 山陽電鉄本線 浜の宮駅 徒歩47分 兵庫県加古川市平岡町新在家 | 詳細を見る | |
マンション ハイツメルシー(3LDK/3階) | |||||||
![]() | 5.5万円 5,000円 | なし なし | 3LDK 64m2 | 築38年 | 兵庫県神戸市西区北別府4丁目 | 詳細を見る | |
マンション 阪神電鉄本線 元町駅(阪神) 徒歩4分 築30年(1K/2階) | |||||||
![]() | 5.1万円 5,000円 | なし なし | 1K 25.4m2 | 築30年 | 阪神電鉄本線 元町駅(阪神) 徒歩4分 山陽本線 神戸駅(兵庫) 徒歩7分 神戸高速鉄道東西線 花隈駅 徒歩10分 兵庫県神戸市中央区元町通6丁目 | 詳細を見る | |
アパート ヒカルサ稲美天満Ⅰ(2LDK/2階) | |||||||
![]() | 8.05万円 3,900円 | なし 8.05万円 | 2LDK 56.48m2 | 新築 | 兵庫県加古郡稲美町六分一 | 詳細を見る | |









