賃貸アパート
ブルームの賃貸物件情報(1K/2階)
| 家賃 | 管理費等 | 敷金 | 礼金 | 間取り | 専有面積 |
|---|---|---|---|---|---|
| 6万円 | 5,000円 | なし | なし | 1K | 17m2 |
入居決定でお祝い金最大100,000円
- 保証金
- -
- 償却・敷引
- -
- 築年数
- 新築
- 所在階
- 2階
- 向き
- 南東
Point
お問合せは上野徒歩1分のアップスタイル上野駅前店まで☆水曜日も元気に営業☆初めての一人暮らしから法人契約まで幅広くご対応致します!初期費用分割・クレジット決済可能!
提供:(株)アップスタイル上野駅前店(SUUMO経由)

詳細情報 ブルーム
物件紹介
ブルームは日暮里・舎人ライナー江北駅から徒歩5分にあり、駅近で通勤通学に便利なアパートです。
このお部屋は2階以上に位置しているので通行人や周囲の住人からの視線が気になりにくく、建物のエントランスはオートロックがついているので防犯性が高くなっています。
人気の南向きのお部屋。また、フローリングなのでお掃除もラクラク。バス・トイレ別の仕様で、のんびりお風呂タイムも楽しめます。また、浴室乾燥機を使えば、雨の日でもお洗濯は問題ありません。
通信設備面では、インターネットが無料で使えるので、月々の出費を抑えられるのも魅力です(別途工事等が必要な場合あり)。
このお部屋は2階以上に位置しているので通行人や周囲の住人からの視線が気になりにくく、建物のエントランスはオートロックがついているので防犯性が高くなっています。
人気の南向きのお部屋。また、フローリングなのでお掃除もラクラク。バス・トイレ別の仕様で、のんびりお風呂タイムも楽しめます。また、浴室乾燥機を使えば、雨の日でもお洗濯は問題ありません。
通信設備面では、インターネットが無料で使えるので、月々の出費を抑えられるのも魅力です(別途工事等が必要な場合あり)。
お金・契約の情報
※「-」と表示されているものは、実際は料金が発生するものもございます。詳細はお問い合わせください。
| 家賃 | 6万円 | 管理費・共益費 | 5,000円 |
|---|---|---|---|
| 敷金 | なし | 礼金 | なし |
| 入居決定でお祝い金最大100,000円 | |||
| 保証金 | - | 償却・敷引 | - |
| 住宅保険料 | - | 更新料 | - |
| 保証会社利用 | 必須 | 保証会社名 | - |
| 保証会社費用 | - | 保証会社備考 | 保証会社利用必 月額総賃料の50%要。 |
| 契約形態 | - | 契約期間 | - |
| 入居・引渡期間 | - | 現況 | - |
| 契約備考 | 東武伊勢崎線 大師前駅駅徒歩21分/巡回管理/短期解約違約金:1年未満の解約時に賃料等2ヶ月分、1年以上2年未満の解約時に賃料等1ヵ月分。 合計1.65万円(内訳:入居者サポート1.65万円) 更新料 新賃料1.00ヶ月分 月次保証料 月額780円 1K 単身者限定/事務所利用不可/ルームシェア不可 普通借家2年 損保【2万円2年】 バストイレ別、エアコン、ガスコンロ対応、クロゼット、フローリング、浴室乾燥機、オートロック、室内洗濯置、陽当り良好、洗面化粧台、礼金不要、敷金不要、照明付、全居室洋室、保証人不要、冷蔵庫、仲介手数料不要、全居室フローリング、2沿線利用可、ネット使用料不要、エアコン全室、築2年以内、築3年以内、南面リビング、全室東南向き、2駅利用可、3駅以上利用可、築5年以内、東南向き、都市ガス、敷金・礼金不要、保証会社利用可、初期費用カード決済可 入居日:'26年2月中旬 | ||
部屋の情報
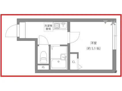
| 間取り | 1K | 専有面積 | 17m2 |
|---|---|---|---|
| 所在階 / 向き | 2階 / 南東 | バルコニー面積 | - |
| 水道 / ガス | - | ||
| 設備 | バス・トイレ別、2階以上、オートロック、浴室乾燥機、インターネット対応、エアコン、南向き、フローリング、コンロ:ガス、インターネット使用料無料、洗濯機:室内 | ||
| 当社物件ID | 160224910 | ||
建物の情報
| 建物名 | ブルーム | ||
|---|---|---|---|
| 所在地 | 東京都足立区江北 | ||
| 交通 | 日暮里・舎人ライナー 江北駅(東京) 徒歩5分 日暮里・舎人ライナー 高野駅(東京) 徒歩9分 東武大師線 大師前駅 徒歩21分 | ||
| 階数 | 3階建 | 総戸数 | 14戸 |
| 築年月 | 2026年02月 / 新築 | エレベーター | - |
| 駐車場 | なし | バイク置き場 | - |
| 駐輪場 | - | 管理人/管理会社 | - |
| 周辺環境 | その他 miniピアゴ(スーパー)まで505m その他 ビッグエー(スーパー)まで633m その他 大黒屋(その他)まで1546m その他 セブンイレブン(コンビニ)まで355m その他 セブンイレブン(コンビニ)まで670m | ||
| 建物種別 | アパート | 建物構造 | 木造 |
この部屋の取扱い不動産会社
| 会社名 | (株)アップスタイル上野駅前店(SUUMO経由) | ||
|---|---|---|---|
| 所在地 | 東京都台東区上野6-16-13 藤屋ビル4階 | 交通 | - |
| 営業時間 | 10:00~19:00 | 定休日 | 年中無休(年末年始除く) |
| 免許番号 | 東京都知事85744 | 取引態様 | 仲介 |
| 不動産会社管理番号 | 100483165739 | 当社管理番号 | 89 |
| 所属団体 | (公社)全日本不動産協会東京都本部会員 | ||
| 公正取引協議会 | (公社)首都圏不動産公正取引協議会加盟 | ||
| 取扱い物件情報 | 物件詳細へ | ||
※各種情報と現状に差異がある場合は、現状優先となります。問い合わせをすることで、より詳しい条件、情報を確認する事ができます。
提供:(株)アップスタイル上野駅前店(SUUMO経由)
この物件が気になったら掲載期限まであと10日
ブルームに条件(家賃・エリア)が近い物件一覧
| 写真 | 家賃 管理費等 | 敷金 礼金 | 間取り 専有面積 | 築年数 | 最寄り駅 所在地 | キープ | 詳細 |
|---|---|---|---|---|---|---|---|
マンション パセオ・ラルゴ(1K/4階) | |||||||
![]() | 8.5万円 1万円 | 8.5万円 8.5万円 | 1K 21.3m2 | 築18年 | 総武本線 錦糸町駅 徒歩9分 東京都大江戸線 両国駅 徒歩10分 総武・中央緩行線 両国駅 徒歩16分 東京都墨田区亀沢4丁目 | 詳細を見る | |
マンション ライジングプレイス錦糸町三番館(1K/3階) | |||||||
![]() | 9.2万円 5,000円 | 9.2万円 9.2万円 | 1K 25.9m2 | 築13年 | 東京都新宿線 菊川駅(東京) 徒歩9分 総武・中央緩行線 錦糸町駅 徒歩10分 東京都墨田区緑4丁目 | 詳細を見る | |
マンション リエトコート向島(1K/6階) | |||||||
![]() | 9.5万円 6,000円 | 9.5万円 9.5万円 | 1K 25.12m2 | 築18年 | 東武伊勢崎線 曳舟駅 徒歩8分 京成押上線 京成曳舟駅 徒歩12分 東京メトロ半蔵門線 押上駅 徒歩13分 東京都墨田区向島 | 詳細を見る | |
マンション TOP金町(1K/2階) | |||||||
![]() | 4.5万円 5,000円 | なし なし | 1K 16.1m2 | 築39年 | 京成電鉄金町線 京成金町駅 徒歩9分 千代田・常磐緩行線 金町駅 徒歩10分 京成電鉄本線 京成高砂駅 徒歩21分 東京都葛飾区金町2丁目 | 詳細を見る | |
マンション ライオンズマンション立石(1K/3階) | |||||||
![]() | 5.5万円 7,000円 | 5.5万円 5.5万円 | 1K 24.46m2 | 築38年 | 京成電鉄押上線 京成立石駅 徒歩6分 京成電鉄押上線 四ツ木駅 徒歩15分 京成電鉄本線 お花茶屋駅 徒歩21分 東京都葛飾区立石1丁目 | 詳細を見る | |
マンション 木下ダイヤモンドパレス(1K/6階) | |||||||
![]() | 6.8万円 7,000円 | 6.8万円 6.8万円 | 1K 19.09m2 | 築36年 | 東京都大江戸線 森下駅(東京) 徒歩6分 総武・中央緩行線 両国駅 徒歩8分 東京地下鉄半蔵門線 清澄白河駅 徒歩16分 東京都墨田区千歳2丁目 | 詳細を見る | |
マンション ダイヤモンドレジデンス西日暮里第三(ワンルーム/4階) | |||||||
![]() | 5.5万円 5,000円 | なし なし | ワンルーム 11.7m2 | 築41年 | 東京地下鉄千代田線 西日暮里駅 徒歩4分 山手線 西日暮里駅 徒歩6分 東京都荒川区西日暮里5丁目 | 詳細を見る | |
マンション 鈴木ビル(1K/1階) | |||||||
![]() | 7.1万円 3,000円 | 7.1万円 7.1万円 | 1K 26.17m2 | 築45年 | 東京地下鉄千代田線 町屋駅 徒歩8分 東京都荒川線 町屋駅前駅 徒歩8分 京成電鉄本線 町屋駅 徒歩10分 東京都荒川区町屋三丁目 | 詳細を見る | |









