賃貸マンション
フォーラム城ヶ岡弐番館の賃貸物件情報(3LDK/4階)
| 家賃 | 管理費等 | 敷金 | 礼金 | 間取り | 専有面積 |
|---|---|---|---|---|---|
| 6.1万円 | 7,000円 | なし | なし | 3LDK | 65.43m2 |
入居決定でお祝い金最大100,000円
- 保証金
- -
- 償却・敷引
- -
- 築年数
- 築32年
- 所在階
- 4階
- 向き
- 南
Point
ピタットハウス垂水店ではインターネット掲載物件は他社掲載分を含めエリア問わずご紹介可能です。何社も不動産会社を回る手間なくお部屋探しができます!
提供:ピタットハウス垂水店(株)ライブデザイン兵庫(SUUMO経由)

詳細情報 フォーラム城ヶ岡弐番館
物件紹介
フォーラム城ヶ岡弐番館は地下鉄西神・山手線名谷駅から徒歩25分にあるマンションです。
このお部屋は2階以上に位置しているので、通行人や周囲の住人からの視線が気になりにくく、防犯面でも安心です。
人気の南向き・フローリングのお部屋。角部屋でもあるため、周囲の居住者の生活音も気になりにくい場所です。キッチンはシステムキッチン仕様になっていますので、お料理好きの方にもぴったり。また、バス・トイレは別で、のんびりお風呂タイムも楽しめるでしょう。
通信設備面ではCATVに対応しているので、おうち時間も充実するでしょう(別途工事、契約料が必要な場合あり)。
建物にはエレベーターがついているので、重い荷物があっても安心。
このお部屋は2階以上に位置しているので、通行人や周囲の住人からの視線が気になりにくく、防犯面でも安心です。
人気の南向き・フローリングのお部屋。角部屋でもあるため、周囲の居住者の生活音も気になりにくい場所です。キッチンはシステムキッチン仕様になっていますので、お料理好きの方にもぴったり。また、バス・トイレは別で、のんびりお風呂タイムも楽しめるでしょう。
通信設備面ではCATVに対応しているので、おうち時間も充実するでしょう(別途工事、契約料が必要な場合あり)。
建物にはエレベーターがついているので、重い荷物があっても安心。
お金・契約の情報
※「-」と表示されているものは、実際は料金が発生するものもございます。詳細はお問い合わせください。
| 家賃 | 6.1万円 | 管理費・共益費 | 7,000円 |
|---|---|---|---|
| 敷金 | なし | 礼金 | なし |
| 入居決定でお祝い金最大100,000円 | |||
| 保証金 | - | 償却・敷引 | - |
| 住宅保険料 | - | 更新料 | - |
| 保証会社利用 | 必須 | 保証会社名 | 日本セーフティー |
| 保証会社費用 | - | 保証会社備考 | 日本セーフティー利用必 ・日本セーフティー 初回50%(保証人有)、70%(保証人無) 月1,330円 |
| 契約形態 | - | 契約期間 | - |
| 入居・引渡期間 | - | 現況 | - |
| 契約備考 | 物件情報ページをご覧いただき誠にありがとうございます!インターネットで募集中の物件は全て弊社でご紹介可能です!もちろんまとめてご案内も可能です!また、他社様でご紹介されている物件も弊社でご紹介の場合、様々な交渉が可能な物件も多数ございます。お問い合わせは【TEL:】までお電話ください!※当日のご内見予約も可能!是非、ピタットハウス垂水店へお越しください! 合計1.3万円(内訳:駐車場リモコン預り金13000円) 短期解約違約金1年未満2ヶ月、2年未満1ヶ月退去時ハウスクリーニング代55,000円(税込)保証人必須・禁煙書類作成事務手数料5,500円(税込)、TV視聴CATV770円/月、コールセンター費1100円/月 3LDK 単身者可/二人入居可/子供可 普通借家2年 バストイレ別、バルコニー、フローリング、室内洗濯置、陽当り良好、システムキッチン、南向き、角住戸、脱衣所、エレベーター、2口コンロ、駐輪場、押入、CATV、閑静な住宅地、対面式キッチン、グリル付、バイク置場、物置、高台に立地、3駅以上利用可、上階無し、敷地内ごみ置き場、LDK12畳以上、和室、都市ガス、ワイドバルコニー、敷金・礼金不要、IT重説対応物件、初期費用カード決済可、通風良好 入居日:'26年3月下旬 | ||
部屋の情報
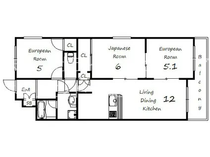
| 間取り | 3LDK | 専有面積 | 65.43m2 |
|---|---|---|---|
| 所在階 / 向き | 4階 / 南 | バルコニー面積 | - |
| 水道 / ガス | - | ||
| 設備 | バス・トイレ別、2階以上、システムキッチン、エレベーター、南向き、角部屋、バルコニー、フローリング、2口コンロ、CATV、洗濯機:室内 | ||
| 当社物件ID | 1029421 | ||
建物の情報
| 建物名 | フォーラム城ヶ岡弐番館 | ||
|---|---|---|---|
| 所在地 | 兵庫県神戸市須磨区北落合 | ||
| 交通 | 地下鉄西神・山手線 名谷駅 徒歩25分 地下鉄西神・山手線 総合運動公園駅 徒歩35分 地下鉄西神・山手線 妙法寺駅(兵庫) 徒歩43分 | ||
| 階数 | 4階建 | 総戸数 | 31戸 |
| 築年月 | 1994年07月 / 築32年 | エレベーター | あり |
| 駐車場 | 空有 14000円 | バイク置き場 | あり |
| 駐輪場 | あり | 管理人/管理会社 | - |
| 周辺環境 | その他 ローソン 白川台一丁目店(コンビニ)まで700m その他 寺下診療所(病院)まで1006m その他 神戸信用金庫白川台支店(銀行)まで843m その他 コープ白川台(スーパー)まで1025m その他 ステーキガスト神戸白川台店(その他)まで1164m その他 神戸白川台郵便局(郵便局)まで1081m | ||
| 建物種別 | マンション | 建物構造 | RC(鉄筋コンクリート) |
この部屋の取扱い不動産会社
| 会社名 | ピタットハウス垂水店(株)ライブデザイン兵庫(SUUMO経由) | ||
|---|---|---|---|
| 所在地 | 兵庫県神戸市垂水区宮本町 3-13 1階 | 交通 | - |
| 営業時間 | 09:00~18:00 | 定休日 | - |
| 免許番号 | 兵庫県知事12246 | 取引態様 | 仲介 |
| 不動産会社管理番号 | 100488730115 | 当社管理番号 | 89 |
| 所属団体 | (公社)全日本不動産協会兵庫県本部会員 | ||
| 公正取引協議会 | (公社)近畿地区不動産公正取引協議会加盟 | ||
| 取扱い物件情報 | 物件詳細へ | ||
※各種情報と現状に差異がある場合は、現状優先となります。問い合わせをすることで、より詳しい条件、情報を確認する事ができます。
提供:ピタットハウス垂水店(株)ライブデザイン兵庫(SUUMO経由)
この物件が気になったら掲載期限まであと10日
フォーラム城ヶ岡弐番館に条件(家賃・エリア)が近い物件一覧
| 写真 | 家賃 管理費等 | 敷金 礼金 | 間取り 専有面積 | 築年数 | 最寄り駅 所在地 | キープ | 詳細 |
|---|---|---|---|---|---|---|---|
マンション 兵庫県神戸市須磨区 築53年(2DK/6階) | |||||||
![]() | 4.96万円 1,600円 | 9.92万円 なし | 2DK 48m2 | 築53年 | 兵庫県神戸市須磨区高倉台4丁目 | 詳細を見る | |
マンション ベネフィス土山2(2DK/2階) | |||||||
![]() | 4.9万円 3,000円 | なし なし | 2DK 47m2 | 築37年 | 山陽本線 土山駅 徒歩15分 兵庫県加古郡稲美町六分一 | 詳細を見る | |
アパート D-ROOM明石オーシャンビューハイツA(1LDK/1階) | |||||||
![]() | 8.9万円 6,500円 | 2万円 18万円 | 1LDK 40.9m2 | 築4年 | JR山陽本線 西明石駅 徒歩12分 山陽電鉄本線 藤江駅 徒歩17分 山陽電鉄本線 中八木駅 徒歩30分 兵庫県明石市東藤江 | 詳細を見る | |
アパート 神戸電鉄粟生線 恵比須駅 徒歩7分 築20年(1K/2階) | |||||||
![]() | 4.8万円 4,000円 | なし 4.8万円 | 1K 38.09m2 | 築20年 | 神戸電鉄粟生線 恵比須駅 徒歩7分 神戸電鉄粟生線 三木上の丸駅 徒歩8分 神戸電鉄粟生線 三木駅(神戸電鉄) 徒歩16分 兵庫県三木市大塚 | 詳細を見る | |
アパート パークハイム参番館B棟(ワンルーム/3階) | |||||||
![]() | 6万円 4,500円 | 2万円 10万円 | ワンルーム 29.81m2 | 築21年 | 神戸電鉄粟生線 広野ゴルフ場前駅 徒歩15分 兵庫県三木市緑が丘町西 | 詳細を見る | |
アパート ヒューマンドエル(3LDK/2階) | |||||||
![]() | 5.5万円 3,300円 | 5.5万円 5.5万円 | 3LDK 65.57m2 | 築28年 | JR山陽本線 魚住駅 徒歩17分 山陽電鉄本線 山陽魚住駅 徒歩29分 兵庫県明石市魚住町長坂寺 | 詳細を見る | |
マンション ビレッジハウス志染(3DK/2階) | |||||||
![]() | 6.18万円 なし | なし なし | 3DK 54.38m2 | 築46年 | 神戸電鉄粟生線 志染駅 徒歩19分 神戸電鉄粟生線 恵比須駅 徒歩29分 神戸電鉄粟生線 広野ゴルフ場前駅 徒歩29分 兵庫県三木市志染町西自由が丘 | 詳細を見る | |
一戸建て 神戸電鉄粟生線 三木上の丸駅 徒歩2分 築53年(2DK) | |||||||
![]() | 7万円 なし | なし 14万円 | 2DK 52.99m2 | 築53年 | 神戸電鉄粟生線 三木上の丸駅 徒歩2分 神戸電鉄粟生線 三木駅(神戸電鉄) 徒歩12分 神戸電鉄粟生線 恵比須駅 徒歩14分 兵庫県三木市上の丸町 | 詳細を見る | |








