賃貸マンション
IDCヴィルヌーブ緑地公園ノースヒルの賃貸物件情報(3LDK/9階)
| 家賃 | 管理費等 | 敷金 | 礼金 | 間取り | 専有面積 |
|---|---|---|---|---|---|
| 14.8万円 | 1.2万円 | 15万円 | 30万円 | 3LDK | 70.96m2 |
入居決定でお祝い金最大100,000円
Point
桃山台駅周辺への引っ越しをお考えなら「IDCヴィルヌーブ緑地公園ノースヒル」。収納はクロゼット・シューズボックスなどが備え付けられているので、衣類や日用品の収納に重宝します。この物件はバルコニー付きで
提供:いい部屋ネット江坂店(株)ラックハウジング(SUUMO経由)

詳細情報 IDCヴィルヌーブ緑地公園ノースヒル
物件紹介
IDCヴィルヌーブ緑地公園ノースヒルは北大阪急行桃山台駅から徒歩13分にあるマンションです。
このお部屋は2階以上に位置しているので、通行人や周囲の住人からの視線が気になりにくく、防犯面でも安心。建物のエントランスはオートロックがついており、インターホンにはTVモニタもついているため、相手の顔を確認してから来客対応することができます。
人気の角部屋で周囲の居住者の生活音も気になりにくく、また、フローリングのお部屋なのでお掃除もラクラク。キッチンはシステムキッチン仕様になっていますので、お料理好きの方にもぴったり。また、バス・トイレは別で、のんびりお風呂タイムも楽しめるでしょう。
建物にはエレベーターがついているので、重い荷物があっても安心。共用部には宅配ボックスが設定されているので、不在の時にも荷物を受け取ることができます。
このお部屋は2階以上に位置しているので、通行人や周囲の住人からの視線が気になりにくく、防犯面でも安心。建物のエントランスはオートロックがついており、インターホンにはTVモニタもついているため、相手の顔を確認してから来客対応することができます。
人気の角部屋で周囲の居住者の生活音も気になりにくく、また、フローリングのお部屋なのでお掃除もラクラク。キッチンはシステムキッチン仕様になっていますので、お料理好きの方にもぴったり。また、バス・トイレは別で、のんびりお風呂タイムも楽しめるでしょう。
建物にはエレベーターがついているので、重い荷物があっても安心。共用部には宅配ボックスが設定されているので、不在の時にも荷物を受け取ることができます。
お金・契約の情報
※「-」と表示されているものは、実際は料金が発生するものもございます。詳細はお問い合わせください。
| 家賃 | 14.8万円 | 管理費・共益費 | 1.2万円 |
|---|---|---|---|
| 敷金 | 15万円 | 礼金 | 30万円 |
| 入居決定でお祝い金最大100,000円 | |||
| 保証金 | - | 償却・敷引 | - |
| 住宅保険料 | - | 更新料 | - |
| 保証会社利用 | 必須 | 保証会社名 | - |
| 保証会社費用 | - | 保証会社備考 | 保証会社利用必 初回契約時:65%、総賃料の65% |
| 契約形態 | - | 契約期間 | - |
| 入居・引渡期間 | 相談 | 現況 | - |
| 契約備考 | 巡回管理 合計3.85万円(内訳:鍵交換代3.85万円) 室内清掃費用 55000円 口座振替手数料 月額330円 3LDK 普通借家2年 損保【2万円2年】 バストイレ別、バルコニー、エアコン、クロゼット、フローリング、TVインターホン、オートロック、室内洗濯置、シューズボックス、システムキッチン、角住戸、エレベーター、洗面所独立、宅配ボックス、3口以上コンロ、都市ガス | ||
部屋の情報
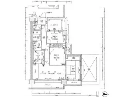
| 間取り | 3LDK | 専有面積 | 70.96m2 |
|---|---|---|---|
| 所在階 / 向き | 9階 / 西 | バルコニー面積 | - |
| 水道 / ガス | - | ||
| 設備 | バス・トイレ別、2階以上、オートロック、テレビドアホン、宅配ボックス、システムキッチン、エアコン、エレベーター、角部屋、バルコニー、フローリング、洗髪洗面化粧台、2口コンロ、洗濯機:室内 | ||
| 当社物件ID | 160060804 | ||
建物の情報
| 建物名 | IDCヴィルヌーブ緑地公園ノースヒル | ||
|---|---|---|---|
| 所在地 | 大阪府吹田市春日 | ||
| 交通 | 北大阪急行 桃山台駅 徒歩13分 | ||
| 階数 | 9階建 | 総戸数 | 1戸 |
| 築年月 | 1998年01月 / 築28年 | エレベーター | あり |
| 駐車場 | 空有 付無料 | バイク置き場 | - |
| 駐輪場 | - | 管理人/管理会社 | - |
| 建物種別 | マンション | 建物構造 | SRC(鉄骨鉄筋コンクリート) |
この部屋の取扱い不動産会社
| 会社名 | いい部屋ネット江坂店(株)ラックハウジング(SUUMO経由) | ||
|---|---|---|---|
| 所在地 | 大阪府吹田市江坂町1-23-34 第2梓ビル301 | 交通 | - |
| 営業時間 | 9:30~19:30 | 定休日 | 毎週水曜日 |
| 免許番号 | 大阪府知事63464 | 取引態様 | 仲介 |
| 不動産会社管理番号 | 100478173969 | 当社管理番号 | 89 |
| 所属団体 | (公社)全日本不動産協会大阪府本部会員 | ||
| 公正取引協議会 | (公社)近畿地区不動産公正取引協議会加盟 | ||
| 取扱い物件情報 | 物件詳細へ | ||
※各種情報と現状に差異がある場合は、現状優先となります。問い合わせをすることで、より詳しい条件、情報を確認する事ができます。
提供:いい部屋ネット江坂店(株)ラックハウジング(SUUMO経由)
この物件が気になったら掲載期限まであと10日
IDCヴィルヌーブ緑地公園ノースヒルに条件(家賃・エリア)が近い物件一覧
| 写真 | 家賃 管理費等 | 敷金 礼金 | 間取り 専有面積 | 築年数 | 最寄り駅 所在地 | キープ | 詳細 |
|---|---|---|---|---|---|---|---|
マンション シャーメゾン アプリクス(2LDK/2階) | |||||||
![]() | 16万円 1.2万円 | 10万円 なし | 2LDK 62.08m2 | 新築 | 阪急電鉄千里線 山田駅(大阪) 徒歩12分 大阪モノレール本線 万博記念公園駅(大阪) 徒歩13分 大阪モノレール彩都 万博記念公園駅(大阪) 徒歩13分 大阪府吹田市山田東4丁目210-17-1部 | 詳細を見る | |
マンション K-CRAFTUMEDA161(1LDK/2階) | |||||||
| 11.8万円 6,000円 | なし 11.8万円 | 1LDK 40.42m2 | 築22年 | 大阪市谷町線 中崎町駅 徒歩5分 大阪市堺筋線 天神橋筋六丁目駅 徒歩9分 阪急電鉄京都線 大阪梅田駅(阪急) 徒歩10分 大阪府大阪市北区中崎西4丁目2-20 | 詳細を見る | ||
マンション アドバンス江坂ラシュレ(1DK/9階) | |||||||
| 9.1万円 8,000円 | なし なし | 1DK 27.55m2 | 築3年 | 北大阪急行南北線 江坂駅 徒歩5分 阪急電鉄千里線 豊津駅(大阪) 徒歩16分 阪急電鉄千里線 関大前駅 徒歩18分 大阪府吹田市江坂町2丁目1-10 | 詳細を見る | ||
マンション スプランディッドライズ新大阪ノース(1LDK/10階) | |||||||
| 10.8万円 1万円 | なし 10.8万円 | 1LDK 32.15m2 | 新築 | 東海道本線 東淀川駅 徒歩3分 大阪市御堂筋線 新大阪駅 徒歩12分 大阪市御堂筋線 東三国駅 徒歩14分 大阪府大阪市東淀川区西淡路1丁目11-3-1部 | 詳細を見る | ||
マンション 滝川公園プライマリーワン(1LDK/4階) | |||||||
| 10.7万円 1.2万円 | 11.9万円 23.8万円 | 1LDK 30.24m2 | 築3年 | JR東西線 大阪天満宮駅 徒歩4分 大阪市谷町線 南森町駅 徒歩6分 大阪市堺筋線 南森町駅 徒歩6分 大阪府大阪市北区天満4丁目13-18 | 詳細を見る | ||
マンション プレアデス千里山田(1LDK/5階) | |||||||
| 10.4万円 6,000円 | なし 20.8万円 | 1LDK 35.91m2 | 築9年 | 大阪モノレール本線 山田駅(大阪) 徒歩10分 阪急電鉄千里線 北千里駅 徒歩17分 大阪モノレール彩都 万博記念公園駅(大阪) 徒歩21分 大阪府吹田市千里万博公園15-1 | 詳細を見る | ||
アパート KVELL GARDEN春日(1LDK/2階) | |||||||
![]() | 9万円 5,000円 | なし 18万円 | 1LDK 35.79m2 | 築1年 | 東海道本線 茨木駅 徒歩18分 阪急電鉄京都線 茨木市駅 徒歩19分 東海道本線 JR総持寺駅 徒歩26分 大阪府茨木市春日1丁目15-37 | 詳細を見る | |
マンション シャーメゾン ケー(2SLDK/2階) | |||||||
| 16.7万円 1.2万円 | 5万円 なし | 2SLDK 74.3m2 | 新築 | 阪急電鉄箕面線 牧落駅 徒歩5分 阪急電鉄箕面線 桜井駅(大阪) 徒歩15分 阪急電鉄箕面線 箕面駅 徒歩16分 大阪府箕面市桜4丁目503-1-505-2-507-1 | 詳細を見る | ||
吹田市の町名から探す
吹田市の部屋を間取りから探す
吹田市の駅から探す
吹田市と隣接している市区町村から探す
- 吹田市(6,624)
- 大阪市都島区(1,691)
- 大阪市福島区(2,030)
- 大阪市此花区(429)
- 大阪市西区(3,884)
- 大阪市港区(1,282)
- 大阪市大正区(920)
- 大阪市天王寺区(1,296)
- 大阪市浪速区(3,203)
- 大阪市西淀川区(1,868)
- 大阪市東淀川区(4,907)
- 大阪市東成区(2,207)
- 大阪市生野区(1,707)
- 大阪市旭区(1,718)
- 大阪市城東区(1,890)
- 大阪市阿倍野区(1,347)
- 大阪市住吉区(1,889)
- 大阪市東住吉区(1,993)
- 大阪市西成区(768)
- 大阪市淀川区(5,014)
- 大阪市鶴見区(1,067)
- 大阪市住之江区(925)
- 大阪市平野区(1,998)
- 大阪市北区(5,160)
- 大阪市中央区(4,401)
- 豊中市(4,822)
- 茨木市(3,053)
- 箕面市(1,645)
- 摂津市(1,160)


