賃貸マンション
グランドシャトー西明石の賃貸物件情報(3LDK/3階)
| 家賃 | 管理費等 | 敷金 | 礼金 | 間取り | 専有面積 |
|---|---|---|---|---|---|
| 7.4万円 | なし | なし | 22.2万円 | 3LDK | 76.23m2 |
入居決定でお祝い金最大100,000円
- 保証金
- -
- 償却・敷引
- -
- 築年数
- 築34年
- 所在階
- 3階
- 向き
- 南西
Point
クレジットカードで初期費用のお支払いが可能です。悪天候時やお急ぎの方には室内写真やパノラマ・動画などでもご内覧可能ですのでお気軽にご相談ください!
提供:KURAS岡本店(株)StarLifes(SUUMO経由)

詳細情報 グランドシャトー西明石
物件紹介
グランドシャトー西明石は山陽電鉄本線中八木駅から徒歩12分にあるマンションです。
このお部屋は2階以上に位置しているので、通行人や周囲の住人からの視線が気になりにくく、防犯面でも安心です。
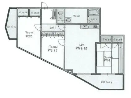
人気の南向き・フローリングのお部屋。角部屋でもあるため、周囲の居住者の生活音も気になりにくい場所です。キッチンはシステムキッチン仕様になっていますので、お料理好きの方にもぴったり。また、バス・トイレは別で、のんびりお風呂タイムも楽しめるでしょう。
通信設備面では、インターネット接続が可能です。また、CATVにも対応しているので、おうち時間も充実するでしょう(別途工事、契約料が必要な場合あり)。
建物にはエレベーターがついているので、重い荷物があっても安心。
このお部屋は2階以上に位置しているので、通行人や周囲の住人からの視線が気になりにくく、防犯面でも安心です。
人気の南向き・フローリングのお部屋。角部屋でもあるため、周囲の居住者の生活音も気になりにくい場所です。キッチンはシステムキッチン仕様になっていますので、お料理好きの方にもぴったり。また、バス・トイレは別で、のんびりお風呂タイムも楽しめるでしょう。
通信設備面では、インターネット接続が可能です。また、CATVにも対応しているので、おうち時間も充実するでしょう(別途工事、契約料が必要な場合あり)。
建物にはエレベーターがついているので、重い荷物があっても安心。
お金・契約の情報
※「-」と表示されているものは、実際は料金が発生するものもございます。詳細はお問い合わせください。
| 家賃 | 7.4万円 | 管理費・共益費 | なし |
|---|---|---|---|
| 敷金 | なし | 礼金 | 22.2万円 |
| 入居決定でお祝い金最大100,000円 | |||
| 保証金 | - | 償却・敷引 | - |
| 住宅保険料 | - | 更新料 | - |
| 保証会社利用 | 必須 | 保証会社名 | - |
| 保証会社費用 | - | 保証会社備考 | 保証会社利用必 ■保証会社利用必須 初回保証料:総賃料100%,更新料:1万円/年 |
| 契約形態 | - | 契約期間 | - |
| 入居・引渡期間 | 即時 | 現況 | - |
| 契約備考 | 3LDK 二人入居可 損保【要】 バストイレ別、バルコニー、フローリング、室内洗濯置、システムキッチン、洗面所独立、CATV、CATVインターネット、二人入居相談、2沿線利用可、2駅利用可、3駅以上利用可、都市ガス、IT重説対応物件、初期費用カード決済可 | ||
部屋の情報
| 間取り | 3LDK | 専有面積 | 76.23m2 |
|---|---|---|---|
| 所在階 / 向き | 3階 / 南西 | バルコニー面積 | - |
| 水道 / ガス | - | ||
| 設備 | バス・トイレ別、2階以上、インターネット対応、システムキッチン、南向き、バルコニー、フローリング、洗髪洗面化粧台、CATV、洗濯機:室内 | ||
| 当社物件ID | 120651376 | ||
建物の情報
| 建物名 | グランドシャトー西明石 | ||
|---|---|---|---|
| 所在地 | 兵庫県明石市大久保町谷八木 | ||
| 交通 | 山陽電鉄本線 中八木駅 徒歩13分 山陽電鉄本線 藤江駅 徒歩17分 JR山陽本線 大久保駅(兵庫) 徒歩18分 | ||
| 階数 | 6階建 | 総戸数 | - |
| 築年月 | 1992年07月 / 築34年 | エレベーター | - |
| 駐車場 | 近隣 300m6600円 | バイク置き場 | - |
| 駐輪場 | - | 管理人/管理会社 | - |
| 周辺環境 | その他 明石市立大久保南小学校(小学校)まで900m その他 明石市立谷八木小学校(小学校)まで1000m | ||
| 建物種別 | マンション | 建物構造 | RC(鉄筋コンクリート) |
この部屋の取扱い不動産会社
| 会社名 | ミニミニFC垂水店シティネット(株)(SUUMO経由) | ||
|---|---|---|---|
| 所在地 | 兵庫県神戸市垂水区宮本町 4-12 MARINE BLD1階 | 交通 | - |
| 営業時間 | 10:00~18:00 | 定休日 | - |
| 免許番号 | 兵庫県知事10417 | 取引態様 | 仲介 |
| 不動産会社管理番号 | 100456012470 | 当社管理番号 | 89 |
| 所属団体 | (公社)全日本不動産協会兵庫県本部会員 | ||
| 公正取引協議会 | (公社)近畿地区不動産公正取引協議会加盟 | ||
| 取扱い物件情報 | 物件詳細へ | ||
※各種情報と現状に差異がある場合は、現状優先となります。問い合わせをすることで、より詳しい条件、情報を確認する事ができます。
提供:ミニミニFC垂水店シティネット(株)(SUUMO経由)
この物件が気になったら掲載期限まであと10日
グランドシャトー西明石に条件(家賃・エリア)が近い物件一覧
| 写真 | 家賃 管理費等 | 敷金 礼金 | 間取り 専有面積 | 築年数 | 最寄り駅 所在地 | キープ | 詳細 |
|---|---|---|---|---|---|---|---|
アパート ハイツ山田(2DK/1階) | |||||||
![]() | 4.8万円 2,000円 | なし なし | 2DK 40m2 | 築35年 | JR加古川線 神野駅 徒歩3分 兵庫県加古川市神野町西条 | 詳細を見る | |
マンション シャーメゾン 神戸(1K/3階) | |||||||
![]() | 6万円 1万円 | 6万円 6万円 | 1K 24.6m2 | 築11年 | 神戸市西神山手線 大倉山駅(兵庫) 徒歩4分 東海道本線 神戸駅(兵庫) 徒歩9分 東海道本線 元町駅(JR) 徒歩20分 兵庫県神戸市中央区楠町6丁目 | 詳細を見る | |
アパート ヒカルサ稲美天満Ⅰ(1LDK/1階) | |||||||
![]() | 7.35万円 3,900円 | なし 7.35万円 | 1LDK 44.7m2 | 新築 | 兵庫県加古郡稲美町六分一 | 詳細を見る | |
マンション 阪神電鉄本線 元町駅(阪神) 徒歩4分 築30年(1K/2階) | |||||||
![]() | 5.1万円 5,000円 | なし なし | 1K 25.4m2 | 築30年 | 阪神電鉄本線 元町駅(阪神) 徒歩4分 山陽本線 神戸駅(兵庫) 徒歩7分 神戸高速鉄道東西線 花隈駅 徒歩10分 兵庫県神戸市中央区元町通6丁目 | 詳細を見る | |
アパート シャーメゾンいろは3(2LDK/2階) | |||||||
![]() | 8万円 4,000円 | 2万円 なし | 2LDK 60m2 | 築9年 | 山陽電気鉄道本線 浜の宮駅 徒歩4分 山陽電気鉄道本線 尾上の松駅 徒歩23分 山陽本線 加古川駅 徒歩47分 兵庫県加古川市尾上町口里 | 詳細を見る | |
マンション 兵庫県神戸市西区 築30年(3LDK/2階) | |||||||
![]() | 6.3万円 7,000円 | なし なし | 3LDK 66.94m2 | 築30年 | 兵庫県神戸市西区竜が岡2丁目 | 詳細を見る | |
アパート ロスマリーノ(1LDK/2階) | |||||||
![]() | 6.55万円 3,500円 | なし 8万円 | 1LDK 55.96m2 | 築8年 | 山陽本線 東加古川駅 徒歩14分 兵庫県加古川市平岡町新在家 | 詳細を見る | |
アパート サンライフFUJI(1LDK/1階) | |||||||
![]() | 4.6万円 5,000円 | なし なし | 1LDK 43m2 | 築35年 | 兵庫県神戸市西区南別府3丁目 | 詳細を見る | |








