賃貸アパート
メゾンプリエの賃貸物件情報(1K/2階)
| 家賃 | 管理費等 | 敷金 | 礼金 | 間取り | 専有面積 |
|---|---|---|---|---|---|
| 8万円 | 2,000円 | 8万円 | 8万円 | 1K | 19.25m2 |
入居決定でお祝い金最大100,000円
Point
(株)イトーハウジングは三軒茶屋密着で60年。地元をよく知る安心の接客です♪大家さんへ入居時期や家賃発生時期など交渉可能です!お気軽にお問い合わせください♪
提供:(株)イトーハウジング(SUUMO経由)

詳細情報 メゾンプリエ
物件紹介
メゾンプリエは東急田園都市線三軒茶屋駅から徒歩5分にあり、駅近で通勤通学に便利なアパートです。
このお部屋は2階以上に位置しているので、通行人や周囲の住人からの視線が気になりにくく、防犯面でも安心です。
人気の南向き・フローリングのお部屋。角部屋でもあるため、周囲の居住者の生活音も気になりにくい場所です。キッチンはシステムキッチン仕様になっていますので、お料理好きの方にもぴったり。また、バス・トイレは別で、のんびりお風呂タイムも楽しめるでしょう。
このお部屋は2階以上に位置しているので、通行人や周囲の住人からの視線が気になりにくく、防犯面でも安心です。
人気の南向き・フローリングのお部屋。角部屋でもあるため、周囲の居住者の生活音も気になりにくい場所です。キッチンはシステムキッチン仕様になっていますので、お料理好きの方にもぴったり。また、バス・トイレは別で、のんびりお風呂タイムも楽しめるでしょう。
お金・契約の情報
※「-」と表示されているものは、実際は料金が発生するものもございます。詳細はお問い合わせください。
| 家賃 | 8万円 | 管理費・共益費 | 2,000円 |
|---|---|---|---|
| 敷金 | 8万円 | 礼金 | 8万円 |
| 入居決定でお祝い金最大100,000円 | |||
| 保証金 | - | 償却・敷引 | - |
| 住宅保険料 | - | 更新料 | - |
| 保証会社利用 | 必須 | 保証会社名 | - |
| 保証会社費用 | - | 保証会社備考 | 保証会社利用必 宅建ハトさん保証加入 初回保証料:家賃の50% 年間保証料:1万円/年 |
| 契約形態 | - | 契約期間 | - |
| 入居・引渡期間 | - | 現況 | - |
| 契約備考 | 1K 普通借家2年 損保【1.8万円2年】 バストイレ別、バルコニー、エアコン、クロゼット、フローリング、システムキッチン、南向き、角住戸、最上階、敷金1ヶ月、始発駅、2駅利用可、都市ガス、礼金1ヶ月 入居日:'26年2月中旬 | ||
部屋の情報
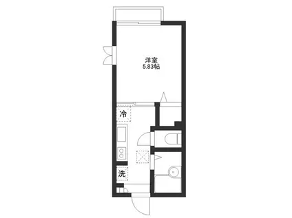
| 間取り | 1K | 専有面積 | 19.25m2 |
|---|---|---|---|
| 所在階 / 向き | 2階 / 南 | バルコニー面積 | - |
| 水道 / ガス | - | ||
| 設備 | バス・トイレ別、2階以上、システムキッチン、エアコン、南向き、角部屋、バルコニー、フローリング | ||
| 当社物件ID | 118296235 | ||
建物の情報
| 建物名 | メゾンプリエ | ||
|---|---|---|---|
| 所在地 | 東京都世田谷区太子堂 | ||
| 交通 | 東急田園都市線 三軒茶屋駅 徒歩5分 東急世田谷線 西太子堂駅 徒歩8分 | ||
| 階数 | 2階建 | 総戸数 | - |
| 築年月 | 2007年02月 / 築19年 | エレベーター | - |
| 駐車場 | なし | バイク置き場 | - |
| 駐輪場 | - | 管理人/管理会社 | - |
| 周辺環境 | その他 ユニクロキャロットタワー三軒茶屋とうきゅう店(ショッピングセンター)まで499m その他 まいばすけっと太子堂2丁目店(スーパー)まで61m その他 西友三軒茶屋店(スーパー)まで354m その他 セブンイレブン世田谷太子堂2丁目店(コンビニ)まで67m その他 ファミリーマート太子堂店(コンビニ)まで136m その他 ドラッグセイムス世田谷太子堂店(ドラッグストア)まで151m | ||
| 建物種別 | アパート | 建物構造 | 軽量鉄骨造 |
この部屋の取扱い不動産会社
| 会社名 | (株)イトーハウジング(SUUMO経由) | ||
|---|---|---|---|
| 所在地 | 東京都世田谷区三軒茶屋1-41-6 | 交通 | - |
| 営業時間 | AM10:00~PM7:00 | 定休日 | 水曜日 |
| 免許番号 | 東京都知事55407 | 取引態様 | 仲介 |
| 不動産会社管理番号 | 100480243591 | 当社管理番号 | 89 |
| 所属団体 | (公社)東京都宅地建物取引業協会会員 | ||
| 公正取引協議会 | (公社)首都圏不動産公正取引協議会加盟 | ||
| 取扱い物件情報 | 物件詳細へ | ||
※各種情報と現状に差異がある場合は、現状優先となります。問い合わせをすることで、より詳しい条件、情報を確認する事ができます。
提供:(株)イトーハウジング(SUUMO経由)
この物件が気になったら掲載期限まであと11日
メゾンプリエに条件(家賃・エリア)が近い物件一覧
| 写真 | 家賃 管理費等 | 敷金 礼金 | 間取り 専有面積 | 築年数 | 最寄り駅 所在地 | キープ | 詳細 |
|---|---|---|---|---|---|---|---|
アパート スプラウトハイム御嶽山(1K/1階) | |||||||
![]() | 7.4万円 3,000円 | なし なし | 1K 21.49m2 | 築5年 | 東急池上線 御嶽山駅 徒歩3分 東急池上線 久が原駅 徒歩9分 東急多摩川線 沼部駅 徒歩16分 東京都大田区東嶺町 | 詳細を見る | |
マンション RASICLAS KAMATA(1K/4階) | |||||||
![]() | 9.9万円 1.5万円 | なし なし | 1K 19.9m2 | 築8年 | 京急本線 梅屋敷駅(東京) 徒歩2分 京急空港線 京急蒲田駅 徒歩10分 JR京浜東北線 蒲田駅 徒歩15分 東京都大田区蒲田 | 詳細を見る | |
アパート ルネ山王(1K/2階) | |||||||
![]() | 7.4万円 3,000円 | 3.7万円 11.1万円 | 1K 22m2 | 築23年 | JR京浜東北線 大森駅(東京) 徒歩6分 京急本線 大森海岸駅 徒歩15分 都営浅草線 馬込駅 徒歩19分 東京都大田区山王 | 詳細を見る | |
アパート シャンテ蒲田(1K/3階) | |||||||
![]() | 6.5万円 3,200円 | なし なし | 1K 14.76m2 | 築15年 | 京急本線 京急蒲田駅 徒歩4分 JR京浜東北線 蒲田駅 徒歩12分 京急空港線 糀谷駅 徒歩12分 東京都大田区蒲田 | 詳細を見る | |
マンション KDXレジデンス西馬込(1K/4階) | |||||||
![]() | 11.5万円 1万円 | 11.5万円 11.5万円 | 1K 25.22m2 | 築10年 | 東京都浅草線 西馬込駅 徒歩4分 東京都大田区南馬込6丁目 | 詳細を見る | |
マンション ハイツACT(1K/2階) | |||||||
![]() | 7.7万円 3,000円 | 7.7万円 15.4万円 | 1K 20.56m2 | 築29年 | JR京浜東北線 蒲田駅 徒歩11分 京急本線 梅屋敷駅(東京) 徒歩13分 京急本線 京急蒲田駅 徒歩17分 東京都大田区蒲田 | 詳細を見る | |
マンション ライブカーサ下丸子(1K/3階) | |||||||
![]() | 9.2万円 5,000円 | 9.2万円 9.2万円 | 1K 22.54m2 | 築7年 | 東急多摩川線 下丸子駅 徒歩5分 東急多摩川線 武蔵新田駅 徒歩9分 東急池上線 千鳥町駅 徒歩9分 東京都大田区下丸子 | 詳細を見る | |
マンション SEED JUST B-BASE Ⅱ(1LDK/1階) | |||||||
![]() | 9.9万円 1.5万円 | 9.9万円 9.9万円 | 1LDK 25.41m2 | 新築 | 東京モノレール羽田 昭和島駅 徒歩11分 京浜急行電鉄本線 梅屋敷駅(東京) 徒歩19分 東京都大田区大森南4丁目 | 詳細を見る | |









