賃貸アパート
アザーレ・パッシオ平和台の賃貸物件情報(1K/3階)
| 家賃 | 管理費等 | 敷金 | 礼金 | 間取り | 専有面積 |
|---|---|---|---|---|---|
| 7.9万円 | 5,000円 | なし | なし | 1K | 20.15m2 |
入居決定でお祝い金最大100,000円
- 保証金
- -
- 償却・敷引
- -
- 築年数
- 築5年
- 所在階
- 3階
- 向き
- -
Point
【人気物件ですのでお早めに♪】 ※人気の物件は早々に募集が終了しますのでお早目にお問合せください。電話でのお問合せですとより迅速な対応が可能です。まずは【03ー6904ー1686】までお電話ください。
提供:アイハウス(株)(SUUMO経由)

詳細情報 アザーレ・パッシオ平和台
物件紹介
アザーレ・パッシオ平和台は東武東上線東武練馬駅から徒歩12分にあるアパートです。
このお部屋は2階以上に位置しているので、通行人や周囲の住人からの視線が気になりにくく、防犯面でも安心。インターホンにはTVモニタもついているため、相手の顔を確認してから来客対応することができます。
人気の角部屋で周囲の居住者の生活音も気になりにくく、また、フローリングのお部屋なのでお掃除もラクラク。キッチンはシステムキッチン仕様になっていますので、お料理好きの方にもぴったり。バス・トイレは別なので、のんびりお風呂タイムも楽しめるでしょう。また、雨の日でも浴室乾燥機を使えば、お洗濯も問題ありません。
通信設備面では、インターネットが無料で使えるので、月々の出費を抑えられるのも魅力です(別途工事等が必要な場合あり)。
共用部には宅配ボックスが設定されているので、不在の時にも荷物を受け取ることができます。
このお部屋は2階以上に位置しているので、通行人や周囲の住人からの視線が気になりにくく、防犯面でも安心。インターホンにはTVモニタもついているため、相手の顔を確認してから来客対応することができます。
人気の角部屋で周囲の居住者の生活音も気になりにくく、また、フローリングのお部屋なのでお掃除もラクラク。キッチンはシステムキッチン仕様になっていますので、お料理好きの方にもぴったり。バス・トイレは別なので、のんびりお風呂タイムも楽しめるでしょう。また、雨の日でも浴室乾燥機を使えば、お洗濯も問題ありません。
通信設備面では、インターネットが無料で使えるので、月々の出費を抑えられるのも魅力です(別途工事等が必要な場合あり)。
共用部には宅配ボックスが設定されているので、不在の時にも荷物を受け取ることができます。
お金・契約の情報
※「-」と表示されているものは、実際は料金が発生するものもございます。詳細はお問い合わせください。
| 家賃 | 7.9万円 | 管理費・共益費 | 5,000円 |
|---|---|---|---|
| 敷金 | なし | 礼金 | なし |
| 入居決定でお祝い金最大100,000円 | |||
| 保証金 | - | 償却・敷引 | - |
| 住宅保険料 | - | 更新料 | - |
| 保証会社利用 | 必須 | 保証会社名 | - |
| 保証会社費用 | - | 保証会社備考 | 保証会社利用必 初回80% 月額保証料1500円 外国籍可 高齢者相談 |
| 契約形態 | - | 契約期間 | - |
| 入居・引渡期間 | 相談 | 現況 | - |
| 契約備考 | まいばすけっと練馬北町商店街店まで923m/ローソン練馬錦二丁目店まで425m/『気になるお部屋をまとめて内見したい!』が出来るお店です♪※色々な物件をエリア問わずにご紹介してます。お部屋や周辺環境などのご説明も致します。★メールでのお問合せは返信に時間が掛かる場合があります。★初期費用の確認等は電話でお願いします。★感染症予防対策のため【店内の換気や消毒】を行っています。★問合せるか迷っている間に募集が終了する場合がございます。早目のお問合せをお勧め致します 合計3.17万円(内訳:鍵交換費用31680円) 火災保険料毎月1100円安心入居サポート1100円/月額退去時ハウスクリーニング代等46000円(税別)解約予告1ヶ月前短期解約違約金あり 1K バストイレ別、エアコン、ガスコンロ対応、クロゼット、フローリング、シャワー付洗面台、TVインターホン、浴室乾燥機、室内洗濯置、シューズボックス、システムキッチン、角住戸、温水洗浄便座、脱衣所、洗面所独立、洗面化粧台、2口コンロ、駐輪場、宅配ボックス、礼金不要、閑静な住宅地、最上階、防犯カメラ、照明付、全居室洋室、全居室フローリング、仲手0.55ヶ月、駅まで平坦、ネット使用料不要、24時間換気システム、平坦地、2駅利用可、3沿線以上利用可、上階無し、敷地内ごみ置き場、築5年以内、全居室6畳以上、プロパンガス、洗面所にドア、高速ネット対応、敷金・礼金不要 | ||
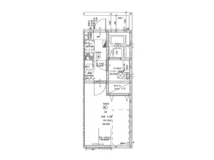
部屋の情報
| 間取り | 1K | 専有面積 | 20.15m2 |
|---|---|---|---|
| 所在階 / 向き | 3階 / - | バルコニー面積 | - |
| 水道 / ガス | - | ||
| 設備 | バス・トイレ別、2階以上、テレビドアホン、宅配ボックス、浴室乾燥機、インターネット対応、システムキッチン、エアコン、温水洗浄便座、角部屋、フローリング、洗髪洗面化粧台、2口コンロ、コンロ:ガス、インターネット使用料無料、洗濯機:室内 | ||
| 当社物件ID | 160753545 | ||
建物の情報
| 建物名 | アザーレ・パッシオ平和台 | ||
|---|---|---|---|
| 所在地 | 東京都練馬区平和台 | ||
| 交通 | 東武東上線 東武練馬駅 徒歩12分 東京メトロ有楽町線 平和台駅(東京) 徒歩13分 東武東上線 上板橋駅 徒歩20分 | ||
| 階数 | 3階建 | 総戸数 | 9戸 |
| 築年月 | 2022年01月 / 築5年 | エレベーター | - |
| 駐車場 | なし | バイク置き場 | - |
| 駐輪場 | あり | 管理人/管理会社 | - |
| 周辺環境 | その他 徳丸スクエア(ショッピングセンター)まで1296m その他 まいばすけっと練馬北町商店街店(スーパー)まで923m その他 オーケー上板橋店(スーパー)まで1039m その他 ローソン練馬錦二丁目店(コンビニ)まで425m その他 ウェルパーク練馬平和台店(ドラッグストア)まで300m | ||
| 建物種別 | アパート | 建物構造 | 木造 |
この部屋の取扱い不動産会社
| 会社名 | アイハウス(株)(SUUMO経由) | ||
|---|---|---|---|
| 所在地 | 東京都板橋区赤塚2-9-6 | 交通 | - |
| 営業時間 | 10時~18時 | 定休日 | 毎週水曜日 |
| 免許番号 | 東京都知事103939 | 取引態様 | 仲介 |
| 不動産会社管理番号 | 100501145553 | 当社管理番号 | 89 |
| 所属団体 | (公社)東京都宅地建物取引業協会会員 | ||
| 公正取引協議会 | (公社)首都圏不動産公正取引協議会加盟 | ||
| 取扱い物件情報 | 物件詳細へ | ||
※各種情報と現状に差異がある場合は、現状優先となります。問い合わせをすることで、より詳しい条件、情報を確認する事ができます。
提供:アイハウス(株)(SUUMO経由)
この物件が気になったら掲載期限まであと12日
アザーレ・パッシオ平和台に条件(家賃・エリア)が近い物件一覧
| 写真 | 家賃 管理費等 | 敷金 礼金 | 間取り 専有面積 | 築年数 | 最寄り駅 所在地 | キープ | 詳細 |
|---|---|---|---|---|---|---|---|
マンション ツエール中台(2DK/2階) | |||||||
![]() | 9万円 なし | 9万円 なし | 2DK 37.65m2 | 築39年 | 東武東上線 上板橋駅 徒歩7分 都営三田線 志村三丁目駅 徒歩20分 東京メトロ有楽町線 氷川台駅 徒歩30分 東京都板橋区中台 | 詳細を見る | |
マンション コープエンリッチ(1K/3階) | |||||||
![]() | 7.8万円 3,000円 | 7.8万円 7.8万円 | 1K 20.52m2 | 築35年 | 東武東上線 中板橋駅 徒歩2分 東武東上線 大山駅(東京) 徒歩12分 都営三田線 板橋本町駅 徒歩17分 東京都板橋区仲町 | 詳細を見る | |
アパート BLUE REEF2号館(ワンルーム/2階) | |||||||
![]() | 7.4万円 3,500円 | 7.4万円 7.4万円 | ワンルーム 10.75m2 | 築8年 | 東武東上線 大山駅(東京) 徒歩6分 東武東上線 下板橋駅 徒歩12分 都営三田線 板橋区役所前駅 徒歩13分 東京都板橋区大山町 | 詳細を見る | |
マンション アノン平和台(1K/1階) | |||||||
![]() | 6.1万円 3,000円 | 6.1万円 6.1万円 | 1K 22.68m2 | 築30年 | 東京地下鉄有楽町線 平和台駅(東京) 徒歩5分 東京都練馬区春日町2丁目 | 詳細を見る | |
マンション VENTO(ワンルーム/4階) | |||||||
![]() | 9万円 5,000円 | 9万円 なし | ワンルーム 28.78m2 | 築22年 | 西武池袋・豊島線 保谷駅 徒歩3分 東京都西東京市東町4丁目 | 詳細を見る | |
マンション TOP都立家政(ワンルーム/2階) | |||||||
![]() | 5.2万円 2,000円 | 5.2万円 なし | ワンルーム 14.71m2 | 築40年 | 西武新宿線 都立家政駅 徒歩6分 西武新宿線 野方駅 徒歩6分 JR中央線 高円寺駅 徒歩20分 東京都中野区若宮 | 詳細を見る | |
マンション ガレリアレジデンス石神井公園(1K/1階) | |||||||
![]() | 9.2万円 8,000円 | なし 9.2万円 | 1K 25.64m2 | 築3年 | 西武池袋線 石神井公園駅 徒歩9分 西武池袋線 練馬高野台駅 徒歩15分 都営大江戸線 光が丘駅 徒歩37分 東京都練馬区高野台 | 詳細を見る | |
アパート ビー・フローラ吉祥寺(1K/1階) | |||||||
![]() | 5.5万円 2,000円 | 5.5万円 5.5万円 | 1K 23.18m2 | 築41年 | 中央本線 吉祥寺駅 徒歩20分 東京都練馬区立野町 | 詳細を見る | |





/105x80-f1-q70-wp1)



