賃貸アパート
ラヴェンヌ堀前Aの賃貸物件情報(2SLDK/2階)
| 家賃 | 管理費等 | 敷金 | 礼金 | 間取り | 専有面積 |
|---|---|---|---|---|---|
| 8.7万円 | 5,000円 | 17.4万円 | 8.7万円 | 2SLDK | 58.83m2 |
入居決定でお祝い金最大100,000円
Point
インターネット無料サービス・エアコン・システムキッチン・洗髪洗面化粧台・温水洗浄便座・浴室乾燥機・追焚機能・TVモニターホン・宅配ボックス//新築物件のため設備及び諸条件が変更となる可能性がございます
提供:(株)御殿場地所(SUUMO経由)

詳細情報 ラヴェンヌ堀前A
物件紹介
ラヴェンヌ堀前AはJR御殿場線御殿場駅から徒歩11分にあるアパートです。
このお部屋は2階以上に位置しているので、通行人や周囲の住人からの視線が気になりにくく、防犯面でも安心。インターホンにはTVモニタもついているため、相手の顔を確認してから来客対応することができます。
人気の南向きのお部屋。キッチンはシステムキッチン仕様になっていますので、お料理好きの方にもぴったり。バス・トイレは別なので、のんびりお風呂タイムも楽しめるでしょう。また、雨の日でも浴室乾燥機を使えば、お洗濯も問題ありません。
通信設備面では、インターネットが無料で使えるので、月々の出費を抑えられるのも魅力です(別途工事等が必要な場合あり)。
このお部屋は2階以上に位置しているので、通行人や周囲の住人からの視線が気になりにくく、防犯面でも安心。インターホンにはTVモニタもついているため、相手の顔を確認してから来客対応することができます。
人気の南向きのお部屋。キッチンはシステムキッチン仕様になっていますので、お料理好きの方にもぴったり。バス・トイレは別なので、のんびりお風呂タイムも楽しめるでしょう。また、雨の日でも浴室乾燥機を使えば、お洗濯も問題ありません。
通信設備面では、インターネットが無料で使えるので、月々の出費を抑えられるのも魅力です(別途工事等が必要な場合あり)。
お金・契約の情報
※「-」と表示されているものは、実際は料金が発生するものもございます。詳細はお問い合わせください。
| 家賃 | 8.7万円 | 管理費・共益費 | 5,000円 |
|---|---|---|---|
| 敷金 | 17.4万円 | 礼金 | 8.7万円 |
| 入居決定でお祝い金最大100,000円 | |||
| 保証金 | - | 償却・敷引 | - |
| 住宅保険料 | - | 更新料 | - |
| 保証会社利用 | 必須 | 保証会社名 | - |
| 保証会社費用 | - | 保証会社備考 | 保証会社利用必 株式会社Casa:契約時保証料 月額賃料総額の50%、更新保証料10,000円(1年毎)、賃料引落手数料330円(月額) |
| 契約形態 | - | 契約期間 | - |
| 入居・引渡期間 | - | 現況 | - |
| 契約備考 | マックスバリュ御殿場新橋店まで500m/ローソン御殿場新橋東店まで313m/巡回管理 24時間サポート770円(月額) 2SLDK 事務所利用不可 損保【2万円2年】 バストイレ別、バルコニー、シャワー付洗面台、TVインターホン、浴室乾燥機、室内洗濯置、陽当り良好、シューズボックス、システムキッチン、追焚機能浴室、温水洗浄便座、洗面所独立、駐輪場、光ファイバー、閑静な住宅地、最上階、対面式キッチン、IHクッキングヒーター、駐車場1台無料、全居室洋室、エアコン2台、物置、駅まで平坦、ネット使用料不要、敷金2ヶ月、1フロア2住戸、浴室に窓、築2年以内、複層ガラス、クロゼット2ヶ所、平面駐車場、自走式駐車場、東南向き、LDK12畳以上、2階洗面台、洗面所にドア、年度内入居可、礼金1ヶ月、通風良好 入居日:'26年3月上旬 | ||
部屋の情報
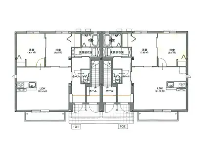
| 間取り | 2SLDK | 専有面積 | 58.83m2 |
|---|---|---|---|
| 所在階 / 向き | 2階 / 南東 | バルコニー面積 | - |
| 水道 / ガス | - | ||
| 設備 | バス・トイレ別、2階以上、テレビドアホン、浴室乾燥機、追い焚き、インターネット対応、システムキッチン、エアコン、温水洗浄便座、南向き、バルコニー、洗髪洗面化粧台、コンロ:IH、インターネット使用料無料、洗濯機:室内 | ||
| 当社物件ID | 159866375 | ||
建物の情報
| 建物名 | ラヴェンヌ堀前A | ||
|---|---|---|---|
| 所在地 | 静岡県御殿場市新橋 | ||
| 交通 | JR御殿場線 御殿場駅 徒歩11分 | ||
| 階数 | 2階建 | 総戸数 | - |
| 築年月 | 2026年03月 / 新築 | エレベーター | - |
| 駐車場 | 空有 付無料 | バイク置き場 | - |
| 駐輪場 | あり | 管理人/管理会社 | - |
| 周辺環境 | その他 御殿場市立南中学校(中学校)まで1537m その他 御殿場市立御殿場南小学校(小学校)まで1061m その他 マックスバリュ御殿場新橋店(スーパー)まで500m その他 ローソン御殿場新橋東店(コンビニ)まで313m その他 マツモトキヨシ御殿場新橋店(ドラッグストア)まで514m | ||
| 建物種別 | アパート | 建物構造 | 軽量鉄骨造 |
この部屋の取扱い不動産会社
| 会社名 | (株)御殿場地所(SUUMO経由) | ||
|---|---|---|---|
| 所在地 | 静岡県御殿場市新橋 1614-1 | 交通 | - |
| 営業時間 | AM9:00-PM5:30 | 定休日 | 毎週水曜日・第二第四日曜日 |
| 免許番号 | 静岡県知事10007 | 取引態様 | 仲介 |
| 不動産会社管理番号 | 100467258102 | 当社管理番号 | 89 |
| 所属団体 | (公社)静岡県宅地建物取引業協会会員 | ||
| 公正取引協議会 | 東海不動産公正取引協議会加盟 | ||
| 取扱い物件情報 | 物件詳細へ | ||
※各種情報と現状に差異がある場合は、現状優先となります。問い合わせをすることで、より詳しい条件、情報を確認する事ができます。
提供:(株)御殿場地所(SUUMO経由)
この物件が気になったら掲載期限まであと0日
ラヴェンヌ堀前Aに条件(家賃・エリア)が近い物件一覧
| 写真 | 家賃 管理費等 | 敷金 礼金 | 間取り 専有面積 | 築年数 | 最寄り駅 所在地 | キープ | 詳細 |
|---|---|---|---|---|---|---|---|
アパート レオパレスファンタジア(1K/2階) | |||||||
![]() | 6.7万円 4,000円 | なし 6.7万円 | 1K 22.02m2 | 築22年 | 東海道本線 富士駅 徒歩14分 静岡県富士市本市場 | 詳細を見る | |
アパート ボナール・ヌーボゥー(2LDK/2階) | |||||||
![]() | 5.35万円 2,200円 | なし なし | 2LDK 57.02m2 | 築22年 | 静岡県富士宮市舞々木町 | 詳細を見る | |
マンション グランメールコート永田町(1K/4階) | |||||||
![]() | 5.3万円 5,000円 | 5.3万円 5.3万円 | 1K 30.24m2 | 築6年 | 岳南電車 吉原本町駅 徒歩23分 岳南電車 本吉原駅 徒歩27分 静岡県富士市永田町 | 詳細を見る | |
マンション DSマンション(1LDK/5階) | |||||||
![]() | 10万円 3,000円 | 20万円 10万円 | 1LDK 83.25m2 | 築34年 | 岳南電車 吉原本町駅 徒歩8分 岳南電車 本吉原駅 徒歩12分 岳南電車 ジヤトコ前駅(ジヤトコ1地区前) 徒歩12分 静岡県富士市中央町 | 詳細を見る | |
アパート グレイス松富III(1LDK/3階) | |||||||
![]() | 6.7万円 2,300円 | なし 7.7万円 | 1LDK 59.21m2 | 築8年 | JR身延線 柚木駅(JR) 徒歩13分 JR東海道本線 富士駅 徒歩17分 静岡県富士市松富町 | 詳細を見る | |
マンション ドゥ・メゾン・マルショウ(3LDK/3階) | |||||||
![]() | 7.1万円 4,000円 | なし 7.1万円 | 3LDK 66.15m2 | 築19年 | 御殿場線 裾野駅 徒歩5分 静岡県裾野市茶畑 | 詳細を見る | |
マンション カーサカジマII(2LDK/1階) | |||||||
![]() | 6.3万円 3,000円 | なし なし | 2LDK 53.28m2 | 築26年 | JR東海道本線 富士駅 徒歩13分 JR身延線 竪堀駅 徒歩20分 静岡県富士市本市場 | 詳細を見る | |
アパート レオパレスコンフォール石脇3(1K/1階) | |||||||
![]() | 5.7万円 6,000円 | なし 5.7万円 | 1K 19.87m2 | 築24年 | 静岡県裾野市石脇 | 詳細を見る | |









