賃貸マンション
ローレルハイツ南福岡2号棟の賃貸物件情報(2LDK/1階)
| 家賃 | 管理費等 | 敷金 | 礼金 | 間取り | 専有面積 |
|---|---|---|---|---|---|
| 12.5万円 | 5,000円 | なし | 25万円 | 2LDK | 73.08m2 |
入居決定でお祝い金最大100,000円
Point
失敗しないお部屋探しを信頼のバロックで!コツや落し穴等々すべてお伝えします。天神にお店があるのでお気軽にご来店ください!ご相談だけでも大歓迎!LINEでもやり取り可能です→@341zmpor
提供:(株)BAROK(SUUMO経由)

詳細情報 ローレルハイツ南福岡2号棟
物件紹介
ローレルハイツ南福岡2号棟はJR鹿児島本線南福岡駅から徒歩7分にあり、駅近で通勤通学に便利なマンションです。
このお部屋のインターホンにはTVモニタがついているため、相手の顔を確認してから来客対応することができます。
おしゃれなデザイナーズ物件!フローリングのお部屋なのでお掃除もラクラク。室内には人気のウォークインクローゼットがありますので、たくさんの荷物も効率的に収納ができます。キッチンはシステムキッチン仕様になっていますので、お料理好きの方にもぴったり。バス・トイレは別なので、のんびりお風呂タイムも楽しめるでしょう。また、雨の日でも浴室乾燥機を使えば、お洗濯も問題ありません。
通信設備面ではBSアンテナ・CSアンテナがありますので、おうち時間も充実するでしょう(別途工事、契約料が必要な場合あり)。
建物にはエレベーターがついているので、重い荷物があっても安心。
このお部屋のインターホンにはTVモニタがついているため、相手の顔を確認してから来客対応することができます。
おしゃれなデザイナーズ物件!フローリングのお部屋なのでお掃除もラクラク。室内には人気のウォークインクローゼットがありますので、たくさんの荷物も効率的に収納ができます。キッチンはシステムキッチン仕様になっていますので、お料理好きの方にもぴったり。バス・トイレは別なので、のんびりお風呂タイムも楽しめるでしょう。また、雨の日でも浴室乾燥機を使えば、お洗濯も問題ありません。
通信設備面ではBSアンテナ・CSアンテナがありますので、おうち時間も充実するでしょう(別途工事、契約料が必要な場合あり)。
建物にはエレベーターがついているので、重い荷物があっても安心。
お金・契約の情報
※「-」と表示されているものは、実際は料金が発生するものもございます。詳細はお問い合わせください。
| 家賃 | 12.5万円 | 管理費・共益費 | 5,000円 |
|---|---|---|---|
| 敷金 | なし | 礼金 | 25万円 |
| 入居決定でお祝い金最大100,000円 | |||
| 保証金 | - | 償却・敷引 | - |
| 住宅保険料 | - | 更新料 | - |
| 保証会社利用 | 必須 | 保証会社名 | - |
| 保証会社費用 | - | 保証会社備考 | 保証会社利用必 初回50% |
| 契約形態 | - | 契約期間 | - |
| 入居・引渡期間 | 即時 | 現況 | - |
| 契約備考 | 合計2.2万円(内訳:室内消毒代2.2万円) 水道代 月額4400円 安心サポート 月額880円 2LDK 普通借家2年 損保【1.8万円2年】 バストイレ別、バルコニー、ガスコンロ対応、フローリング、TVインターホン、浴室乾燥機、室内洗濯置、システムキッチン、追焚機能浴室、温水洗浄便座、エレベーター、洗面所独立、駐輪場、即入居可、BS・CS、3口以上コンロ、防犯カメラ、分譲賃貸、オートバス、ウォークインクロゼット、バイク置場、全居室フローリング、デザイナーズ、CS、エレベーター2基、敷地内ごみ置き場、平面駐車場、都市ガス、BS、リノベーション、IT重説対応物件、初期費用カード決済可 | ||
部屋の情報
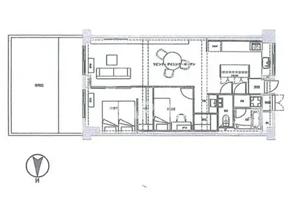
| 間取り | 2LDK | 専有面積 | 73.08m2 |
|---|---|---|---|
| 所在階 / 向き | 1階 / 東 | バルコニー面積 | - |
| 水道 / ガス | - | ||
| 設備 | バス・トイレ別、テレビドアホン、浴室乾燥機、ウォークインクローゼット、追い焚き、システムキッチン、エレベーター、温水洗浄便座、バルコニー、フローリング、洗髪洗面化粧台、2口コンロ、コンロ:ガス、デザイナーズ、CSアンテナ、BSアンテナ、洗濯機:室内 | ||
| 当社物件ID | 160296647 | ||
建物の情報
| 建物名 | ローレルハイツ南福岡2号棟 | ||
|---|---|---|---|
| 所在地 | 福岡県福岡市博多区元町 | ||
| 交通 | JR鹿児島本線 南福岡駅 徒歩7分 西鉄天神大牟田線 雑餉隈駅 徒歩10分 | ||
| 階数 | 11階建 | 総戸数 | - |
| 築年月 | 1977年06月 / 築49年 | エレベーター | あり |
| 駐車場 | 空有 7000円/平置駐 | バイク置き場 | あり |
| 駐輪場 | あり | 管理人/管理会社 | - |
| 周辺環境 | その他 Maxvalu Express(マックスバリュ エクスプレス(スーパー)まで508m その他 マルキョウ 雑餉隈店(スーパー)まで716m その他 ファミリーマート 南福岡元町2丁目店(コンビニ)まで409m その他 ローソン 南福岡駅前店(コンビニ)まで449m その他 博多南郵便局(郵便局)まで20m その他 スマイル保育園(幼稚園・保育園)まで400m | ||
| 建物種別 | マンション | 建物構造 | SRC(鉄骨鉄筋コンクリート) |
この部屋の取扱い不動産会社
| 会社名 | (株)BAROK(SUUMO経由) | ||
|---|---|---|---|
| 所在地 | 福岡県福岡市中央区今泉1-20-21-3階 | 交通 | - |
| 営業時間 | 9:30~18:30 | 定休日 | 水曜日 |
| 免許番号 | 福岡県知事20633 | 取引態様 | 代理 |
| 不動産会社管理番号 | 100485316293 | 当社管理番号 | 89 |
| 所属団体 | (公社)福岡県宅地建物取引業協会会員 | ||
| 公正取引協議会 | (一社)九州不動産公正取引協議会加盟 | ||
| 取扱い物件情報 | 物件詳細へ | ||
※各種情報と現状に差異がある場合は、現状優先となります。問い合わせをすることで、より詳しい条件、情報を確認する事ができます。
提供:(株)BAROK(SUUMO経由)
この物件が気になったら掲載期限まであと10日
ローレルハイツ南福岡2号棟に条件(家賃・エリア)が近い物件一覧
| 写真 | 家賃 管理費等 | 敷金 礼金 | 間取り 専有面積 | 築年数 | 最寄り駅 所在地 | キープ | 詳細 |
|---|---|---|---|---|---|---|---|
マンション ボヤージュ春日(3LDK/3階) | |||||||
![]() | 14.7万円 6,000円 | なし 29.4万円 | 3LDK 72.43m2 | 築1年 | 鹿児島本線 春日駅(福岡) 徒歩13分 西鉄天神大牟田線 春日原駅 徒歩22分 鹿児島本線 南福岡駅 徒歩25分 福岡県春日市若葉台東1丁目 | 詳細を見る | |
マンション ファーストポイント東比恵(2LDK/4階) | |||||||
| 13.7万円 8,000円 | なし 20.55万円 | 2LDK 54.82m2 | 築10年 | 福岡市空港線 東比恵駅 徒歩6分 福岡市空港線 博多駅 徒歩21分 福岡市空港線 福岡空港駅 徒歩34分 福岡県福岡市博多区東比恵3丁目 | 詳細を見る | ||
マンション MODERN PALAZZO博多駅南AXIA(2LDK/12階) | |||||||
| 16.4万円 5,000円 | なし なし | 2LDK 53.7m2 | 築3年 | 福岡市空港線 博多駅 徒歩16分 福岡市空港線 東比恵駅 徒歩16分 鹿児島本線 竹下駅 徒歩21分 福岡県福岡市博多区博多駅南3丁目 | 詳細を見る | ||
マンション サニークレスト須崎町(1LDK/5階) | |||||||
| 9.6万円 5,300円 | なし なし | 1LDK 33.39m2 | 築6年 | 福岡市箱崎線 中洲川端駅 徒歩5分 福岡市箱崎線 呉服町駅(福岡) 徒歩9分 福岡市空港線 天神駅 徒歩11分 福岡県福岡市博多区須崎町 | 詳細を見る | ||
アパート GRANDVALLEY 博多(2LDK/1階) | |||||||
![]() | 13.7万円 5,500円 | なし 27.4万円 | 2LDK 56.62m2 | 新築 | 鹿児島本線 竹下駅 徒歩14分 西鉄天神大牟田線 井尻駅 徒歩19分 鹿児島本線 笹原駅 徒歩20分 福岡県福岡市博多区諸岡3丁目 | 詳細を見る | |
マンション リーブル博多駅前(1LDK/13階) | |||||||
![]() | 12.5万円 1.4万円 | なし 25万円 | 1LDK 47.67m2 | 築12年 | 鹿児島本線 博多駅 徒歩5分 福岡市空港線 博多駅 徒歩5分 東海道・山陽新幹線 博多駅 徒歩5分 福岡県福岡市博多区博多駅前1丁目 | 詳細を見る | |
マンション サウスイン弥永(3LDK/2階) | |||||||
![]() | 8.3万円 5,000円 | なし なし | 3LDK 70m2 | 築36年 | 博多南線 博多南駅 徒歩15分 西鉄天神大牟田線 井尻駅 徒歩42分 鹿児島本線 南福岡駅 徒歩47分 福岡県福岡市南区弥永4丁目 | 詳細を見る | |





