賃貸マンション
ガーラ・ステーション東神奈川の賃貸物件情報(1K/11階)
| 家賃 | 管理費等 | 敷金 | 礼金 | 間取り | 専有面積 |
|---|---|---|---|---|---|
| 8万円 | 1万円 | 8万円 | 16万円 | 1K | 20m2 |
入居決定でお祝い金最大100,000円
- 保証金
- -
- 償却・敷引
- -
- 築年数
- 築3年
- 所在階
- 11階
- 向き
- -
Point
【LINEで簡単にお部屋探し】【内覧代行やLINEでお部屋探し】【来店不要で契約締結も可能です!】【様々なご職業の方ご相談可能】【営業時間1020時お仕事終わりでもご対応可能です!】
提供:(株)LIFIX川崎店(SUUMO経由)

詳細情報 ガーラ・ステーション東神奈川
物件紹介
ガーラ・ステーション東神奈川は京急本線京急東神奈川駅から徒歩3分にあり、駅近で通勤通学に便利なマンションです。
このお部屋は2階以上に位置しているので、通行人や周囲の住人からの視線が気になりにくく、防犯面でも安心。建物のエントランスはオートロックがついており、インターホンにはTVモニタもついているため、相手の顔を確認してから来客対応することができます。
フローリングのお部屋なのでお掃除もラクラク。キッチンはシステムキッチン仕様になっていますので、お料理好きの方にもぴったり。バス・トイレは別なので、のんびりお風呂タイムも楽しめるでしょう。また、雨の日でも浴室乾燥機を使えば、お洗濯も問題ありません。
通信設備面では、インターネットが無料で使えるので、月々の出費を抑えられるのも魅力です。また、BSアンテナ・CSアンテナもありますので、おうち時間も充実するでしょう(別途工事、BS・CSの契約料等が必要な場合あり)。
建物にはエレベーターがついているので、重い荷物があっても安心。共用部には宅配ボックスが設定されているので、不在の時にも荷物を受け取ることができます。
このお部屋は2階以上に位置しているので、通行人や周囲の住人からの視線が気になりにくく、防犯面でも安心。建物のエントランスはオートロックがついており、インターホンにはTVモニタもついているため、相手の顔を確認してから来客対応することができます。
フローリングのお部屋なのでお掃除もラクラク。キッチンはシステムキッチン仕様になっていますので、お料理好きの方にもぴったり。バス・トイレは別なので、のんびりお風呂タイムも楽しめるでしょう。また、雨の日でも浴室乾燥機を使えば、お洗濯も問題ありません。
通信設備面では、インターネットが無料で使えるので、月々の出費を抑えられるのも魅力です。また、BSアンテナ・CSアンテナもありますので、おうち時間も充実するでしょう(別途工事、BS・CSの契約料等が必要な場合あり)。
建物にはエレベーターがついているので、重い荷物があっても安心。共用部には宅配ボックスが設定されているので、不在の時にも荷物を受け取ることができます。
お金・契約の情報
※「-」と表示されているものは、実際は料金が発生するものもございます。詳細はお問い合わせください。
| 家賃 | 8万円 | 管理費・共益費 | 1万円 |
|---|---|---|---|
| 敷金 | 8万円 | 礼金 | 16万円 |
| 入居決定でお祝い金最大100,000円 | |||
| 保証金 | - | 償却・敷引 | - |
| 住宅保険料 | - | 更新料 | - |
| 保証会社利用 | 必須 | 保証会社名 | - |
| 保証会社費用 | - | 保証会社備考 | 保証会社利用必 初回:賃料+管理費の50% 月額:賃料+管理費の1.2% |
| 契約形態 | - | 契約期間 | - |
| 入居・引渡期間 | - | 現況 | - |
| 契約備考 | 【LINEで簡単にお部屋探し】【内覧代行やLINEでお部屋探し】【来店不要で契約締結も可能です!】【様々なご職業の方ご相談可能】【営業時間1020時お仕事終わりでもご対応可能です!】 合計7.48万円(内訳:エアコンクリーニング退去時1.32万円クリーニング代(退去時)3.85万円鍵交換代2.31万円) 更新料 新賃料1.00ヶ月分 1K 普通借家2年 損保【2万円2年】 バストイレ別、バルコニー、エアコン、ガスコンロ対応、クロゼット、フローリング、TVインターホン、浴室乾燥機、オートロック、室内洗濯置、シューズボックス、システムキッチン、温水洗浄便座、脱衣所、エレベーター、洗面所独立、洗面化粧台、2口コンロ、宅配ボックス、外壁タイル張り、最上階、BS・CS、防犯カメラ、分譲賃貸、グリル付、保証人不要、ガスレンジ付、2沿線利用可、眺望良好、保証金不要、24時間換気システム、築3年以内、学生相談、耐震構造、2駅利用可、3駅以上利用可、3沿線以上利用可、防犯強化地域、駅徒歩5分以内、駅徒歩10分以内、24時間ゴミ出し可、敷地内ごみ置き場、都市ガス、洗面所にドア、年内入居可、年度内入居可、保証会社利用可、IT重説対応物件、通風良好 入居日:'26年3月中旬 | ||
部屋の情報
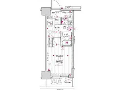
| 間取り | 1K | 専有面積 | 20m2 |
|---|---|---|---|
| 所在階 / 向き | 11階 / - | バルコニー面積 | - |
| 水道 / ガス | - | ||
| 設備 | バス・トイレ別、2階以上、オートロック、テレビドアホン、宅配ボックス、浴室乾燥機、システムキッチン、エアコン、エレベーター、温水洗浄便座、バルコニー、フローリング、洗髪洗面化粧台、2口コンロ、コンロ:ガス、CSアンテナ、BSアンテナ、洗濯機:室内 | ||
| 当社物件ID | 136172690 | ||
建物の情報
| 建物名 | ガーラ・ステーション東神奈川 | ||
|---|---|---|---|
| 所在地 | 神奈川県横浜市神奈川区神奈川 | ||
| 交通 | 京急本線 京急東神奈川駅 徒歩4分 JR京浜東北線 東神奈川駅 徒歩5分 東急東横線 反町駅 徒歩14分 | ||
| 階数 | 11階建 | 総戸数 | - |
| 築年月 | 2023年08月 / 築3年 | エレベーター | あり |
| 駐車場 | なし | バイク置き場 | - |
| 駐輪場 | - | 管理人/管理会社 | - |
| 周辺環境 | その他 餃子の王将 東神奈川駅西口店(飲食店)まで442m その他 すき家(飲食店)まで1104m その他 反町公園(公園)まで737m その他 イオンスタイル東神奈川(その他)まで838m その他 まいばすけっと 神奈川2丁目店(スーパー)まで391m その他 ファミリーマート 横浜青木町店(コンビニ)まで513m | ||
| 建物種別 | マンション | 建物構造 | RC(鉄筋コンクリート) |
この部屋の取扱い不動産会社
| 会社名 | (株)LIFIX(SUUMO経由) | ||
|---|---|---|---|
| 所在地 | 神奈川県横浜市西区岡野1-13-5 横浜西口サンエースビル702 | 交通 | - |
| 営業時間 | 10:00-21:00 | 定休日 | 年中無休 |
| 免許番号 | 神奈川県知事29539 | 取引態様 | 仲介 |
| 不動産会社管理番号 | 100484313126 | 当社管理番号 | 89 |
| 所属団体 | (公社)神奈川県宅地建物取引業協会会員 | ||
| 公正取引協議会 | (公社)首都圏不動産公正取引協議会加盟 | ||
| 取扱い物件情報 | 物件詳細へ | ||
※各種情報と現状に差異がある場合は、現状優先となります。問い合わせをすることで、より詳しい条件、情報を確認する事ができます。
提供:(株)LIFIX(SUUMO経由)
この物件が気になったら掲載期限まであと10日
ガーラ・ステーション東神奈川に条件(家賃・エリア)が近い物件一覧
| 写真 | 家賃 管理費等 | 敷金 礼金 | 間取り 専有面積 | 築年数 | 最寄り駅 所在地 | キープ | 詳細 |
|---|---|---|---|---|---|---|---|
アパート WALL ROSE(1LDK/1階) | |||||||
![]() | 8.72万円 5,000円 | 8.72万円 8.72万円 | 1LDK 35.68m2 | 新築 | 東急田園都市線 宮前平駅 徒歩31分 神奈川県川崎市宮前区平2丁目 | 詳細を見る | |
アパート サクセス矢口渡A棟(ワンルーム/2階) | |||||||
![]() | 4.9万円 3,500円 | なし なし | ワンルーム 12.17m2 | 築20年 | 東急多摩川線 矢口渡駅 徒歩15分 JR東海道本線 川崎駅 徒歩20分 京急本線 六郷土手駅 徒歩42分 神奈川県川崎市幸区小向仲野町 | 詳細を見る | |
アパート みつるハイツ(2DK/2階) | |||||||
![]() | 6.2万円 3,000円 | 6.2万円 なし | 2DK 35m2 | 築52年 | 小田急電鉄江ノ島線 南林間駅 徒歩9分 東急田園都市線 中央林間駅 徒歩13分 神奈川県大和市中央林間西1丁目 | 詳細を見る | |
マンション ルーブル武蔵中原弐番館(1K/3階) | |||||||
![]() | 9万円 1万円 | なし なし | 1K 25.5m2 | 築9年 | JR南武線 武蔵中原駅 徒歩11分 東急東横線 元住吉駅 徒歩22分 東急東横線 武蔵小杉駅 徒歩22分 神奈川県川崎市中原区下小田中 | 詳細を見る | |
アパート 湘南桜コーポD(2LDK/2階) | |||||||
![]() | 8.8万円 3,000円 | 8.8万円 8.8万円 | 2LDK 51.79m2 | 築39年 | 東海道本線 辻堂駅 徒歩6分 神奈川県藤沢市辻堂3丁目 | 詳細を見る | |
マンション レジデンス小山(1K/2階) | |||||||
![]() | 5.8万円 2,000円 | なし なし | 1K 16m2 | 築40年 | 南武線 武蔵新城駅 徒歩6分 神奈川県川崎市高津区新作5丁目 | 詳細を見る | |
マンション AKハイム反町(1LDK/3階) | |||||||
![]() | 9万円 3,000円 | 9万円 なし | 1LDK 35m2 | 築42年 | 東急東横線 反町駅 徒歩3分 京急本線 神奈川駅 徒歩10分 JR京浜東北線 東神奈川駅 徒歩11分 神奈川県横浜市神奈川区反町 | 詳細を見る | |
マンション レオパレス新百合(1K/3階) | |||||||
![]() | 6.5万円 5,500円 | なし なし | 1K 19.87m2 | 築23年 | 小田急線 柿生駅 徒歩12分 小田急線 新百合ケ丘駅 徒歩19分 神奈川県川崎市麻生区上麻生 | 詳細を見る | |








