賃貸マンション
アゼスト堀切菖蒲園Ⅱの賃貸物件情報(1K/4階)
| 家賃 | 管理費等 | 敷金 | 礼金 | 間取り | 専有面積 |
|---|---|---|---|---|---|
| 8.3万円 | 1.2万円 | 8.3万円 | なし | 1K | 25.65m2 |
入居決定でお祝い金最大100,000円
Point
セキュリティ面は、オートロック・TVインターホンなどを備え付けているので安心して暮らせます。
提供:アパマンショップ西船橋店

詳細情報 アゼスト堀切菖蒲園Ⅱ
物件紹介
アゼスト堀切菖蒲園Ⅱは京成電鉄本線堀切菖蒲園駅から徒歩3分にあり、駅近で通勤通学に便利なマンションです。
このお部屋は2階以上に位置しているので、通行人や周囲の住人からの視線が気になりにくく、防犯面でも安心。建物のエントランスはオートロックがついており、インターホンにはTVモニタもついているため、相手の顔を確認してから来客対応することができます。
フローリングのお部屋なのでお掃除もラクラク。キッチンはシステムキッチン仕様になっていますので、お料理好きの方にもぴったり。バス・トイレは別なので、のんびりお風呂タイムも楽しめるでしょう。また、雨の日でも浴室乾燥機を使えば、お洗濯も問題ありません。
通信設備面では、インターネットが無料で使えるので、月々の出費を抑えられるのも魅力です。また、BSアンテナ・CSアンテナもありますので、おうち時間も充実するでしょう(別途工事、BS・CSの契約料等が必要な場合あり)。
建物にはエレベーターがついているので、重い荷物があっても安心。共用部には宅配ボックスが設定されているので、不在の時にも荷物を受け取ることができます。
コンビニまで徒歩3分の場所にあり、日用品や食料品のお買い物にも便利です。
このお部屋は2階以上に位置しているので、通行人や周囲の住人からの視線が気になりにくく、防犯面でも安心。建物のエントランスはオートロックがついており、インターホンにはTVモニタもついているため、相手の顔を確認してから来客対応することができます。
フローリングのお部屋なのでお掃除もラクラク。キッチンはシステムキッチン仕様になっていますので、お料理好きの方にもぴったり。バス・トイレは別なので、のんびりお風呂タイムも楽しめるでしょう。また、雨の日でも浴室乾燥機を使えば、お洗濯も問題ありません。
通信設備面では、インターネットが無料で使えるので、月々の出費を抑えられるのも魅力です。また、BSアンテナ・CSアンテナもありますので、おうち時間も充実するでしょう(別途工事、BS・CSの契約料等が必要な場合あり)。
建物にはエレベーターがついているので、重い荷物があっても安心。共用部には宅配ボックスが設定されているので、不在の時にも荷物を受け取ることができます。
コンビニまで徒歩3分の場所にあり、日用品や食料品のお買い物にも便利です。
お金・契約の情報
※「-」と表示されているものは、実際は料金が発生するものもございます。詳細はお問い合わせください。
| 家賃 | 8.3万円 | 管理費・共益費 | 1.2万円 |
|---|---|---|---|
| 敷金 | 8.3万円 | 礼金 | なし |
| 入居決定でお祝い金最大100,000円 | |||
| 保証金 | - | 償却・敷引 | - |
| 住宅保険料 | 1円 | 更新料 | - |
| その他費用 | プレミアデスク(税込/2年):1.65万円 | ||
| 保証会社利用 | 必須 | 保証会社名 | Casa |
| 保証会社費用 | - | 保証会社備考 | CASAからの審査 初回保証料:総賃料の70%(最低20,000円)月額保証料:総賃料の1.5% |
| 契約形態 | - | 契約期間 | 2年 |
| 入居・引渡期間 | 即時 | 現況 | - |
| 入居可能条件 | 事務所不可、楽器不可、ペット不可 | ||
| 契約備考 | 短期解約違約金:1年未満2カ月 解約予告:2カ月前 プレミアデスク代の中に登録料4400円含む 駐輪場有り:有料 本物件は電子契約 インターネット無料:ファイバーゲート 鍵交換費用:38500 その他設備/条件:室内洗濯機置き場、独立洗面台、クローゼット、シューズボックス、分譲賃貸 | ||
部屋の情報
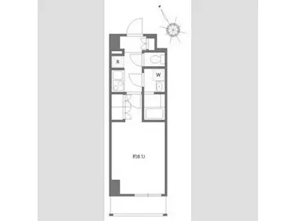
| 間取り | 1K | 専有面積 | 25.65m2 |
|---|---|---|---|
| 間取り詳細 | 洋室(8.1帖) | ||
| 所在階 / 向き | 4階 / 南西 | バルコニー面積 | - |
| 水道 / ガス | 水道【公営】、ガス【都市】 | ||
| 設備 | バス・トイレ別、オートロック、テレビドアホン、宅配ボックス、浴室乾燥機、インターネット対応、システムキッチン、エアコン、エレベーター、温水洗浄便座、バルコニー、フローリング、2口コンロ、コンロ:ガス、インターネット使用料無料、シャワー、給湯 | ||
| 当社物件ID | 159692471 | ||
建物の情報
| 建物名 | アゼスト堀切菖蒲園Ⅱ | ||
|---|---|---|---|
| 所在地 | 東京都葛飾区堀切3丁目 | ||
| 交通 | 京成電鉄本線 堀切菖蒲園駅 徒歩4分 東武伊勢崎・大師線 堀切駅 徒歩18分 | ||
| 階数 | 8階建 | 総戸数 | - |
| 築年月 | 2019年07月 / 築7年 | エレベーター | あり |
| 駐車場 | なし | バイク置き場 | - |
| 駐輪場 | あり | 管理人/管理会社 | - |
| 周辺環境 | コンビニ 徒歩3分(191m) 販売店 徒歩3分(224m) その他 ドラッグストア その他 公園 その他 銀行 その他 * | ||
| 建物種別 | マンション | 建物構造 | RC(鉄筋コンクリート) |
この部屋の取扱い不動産会社
| 会社名 | ハウスコム東東京株式会社 小岩店 | ||
|---|---|---|---|
| 所在地 | 東京都江戸川区22-7丸誠ビルディング1階 | 交通 | - |
| 営業時間 | 10:00~18:00 | 定休日 | 水曜定休 |
| 免許番号 | 東京都知事(1)第108283号 | 取引態様 | 仲介 |
| 不動産会社管理番号 | HC2-3951103-410-0152 | 当社管理番号 | 468 |
| 所属団体 | 、 | ||
| 取扱い物件情報 | 物件詳細へ | ||
※各種情報と現状に差異がある場合は、現状優先となります。問い合わせをすることで、より詳しい条件、情報を確認する事ができます。
提供:ハウスコム東東京株式会社 小岩店
この物件が気になったら掲載期限まであと4日
アゼスト堀切菖蒲園Ⅱに条件(家賃・エリア)が近い物件一覧
| 写真 | 家賃 管理費等 | 敷金 礼金 | 間取り 専有面積 | 築年数 | 最寄り駅 所在地 | キープ | 詳細 |
|---|---|---|---|---|---|---|---|
マンション パークアクシス菊川ステーションゲート(ワンルーム/8階) | |||||||
![]() | 12.7万円 1万円 | 12.7万円 12.7万円 | ワンルーム 25.35m2 | 築13年 | 東京都新宿線 菊川駅(東京) 徒歩2分 東京都新宿線 森下駅(東京) 徒歩11分 東京地下鉄半蔵門線 住吉駅(東京) 徒歩13分 東京都墨田区菊川3丁目 | 詳細を見る | |
マンション CALM.KOIWA ウエスト(1K/4階) | |||||||
![]() | 8.6万円 9,000円 | なし なし | 1K 25.44m2 | 築19年 | 総武・中央緩行線 小岩駅 徒歩6分 京成電鉄本線 京成小岩駅 徒歩22分 北総鉄道 新柴又駅 徒歩30分 東京都江戸川区西小岩1丁目 | 詳細を見る | |
マンション ヴェルメリオ本所(1K/10階) | |||||||
![]() | 11万円 8,000円 | 11万円 11万円 | 1K 25.14m2 | 築5年 | 東京都浅草線 本所吾妻橋駅 徒歩5分 東京都墨田区本所3丁目 | 詳細を見る | |
マンション S-RESIDENCE両国AVENUE(1K/5階) | |||||||
![]() | 11.5万円 1万円 | 11.5万円 11.5万円 | 1K 25.15m2 | 築6年 | 総武・中央緩行線 両国駅 徒歩6分 東京都大江戸線 森下駅(東京) 徒歩6分 東京都大江戸線 両国駅 徒歩6分 東京都墨田区緑1丁目 | 詳細を見る | |
マンション グランハイツ錦糸町(ワンルーム/7階) | |||||||
![]() | 11.4万円 6,000円 | 11.4万円 11.4万円 | ワンルーム 26.47m2 | 築19年 | 東京地下鉄半蔵門線 押上駅 徒歩5分 東京都浅草線 押上駅 徒歩11分 総武本線 錦糸町駅 徒歩12分 東京都墨田区横川3丁目 | 詳細を見る | |
アパート LALA柴又(ワンルーム/2階) | |||||||
![]() | 5.1万円 3,000円 | なし なし | ワンルーム 13.18m2 | 築7年 | 北総鉄道 新柴又駅 徒歩3分 京成電鉄金町線 柴又駅 徒歩8分 京成電鉄本線 京成高砂駅 徒歩13分 東京都葛飾区柴又4丁目 | 詳細を見る | |
マンション スカイコート両国壱番館(ワンルーム/11階) | |||||||
![]() | 9.31万円 5,900円 | 9.31万円 9.31万円 | ワンルーム 23.53m2 | 築24年 | 総武・中央緩行線 両国駅 徒歩3分 東京都浅草線 東日本橋駅 徒歩11分 東京都新宿線 浜町駅 徒歩16分 東京都墨田区両国2丁目 | 詳細を見る | |
マンション 松崎ビル(1K/3階) | |||||||
![]() | 8.5万円 4,100円 | 8.5万円 8.5万円 | 1K 25.18m2 | 築20年 | 東京都新宿線 菊川駅(東京) 徒歩10分 総武・中央緩行線 錦糸町駅 徒歩11分 総武・中央緩行線 亀戸駅 徒歩25分 東京都墨田区緑4丁目 | 詳細を見る | |








