賃貸マンション
ファミール羽衣公園前の賃貸物件情報(3SLDK/6階)
| 家賃 | 管理費等 | 敷金 | 礼金 | 間取り | 専有面積 |
|---|---|---|---|---|---|
| 13万円 | なし | 13万円 | 13万円 | 3SLDK | 96.81m2 |
入居決定でお祝い金最大100,000円
Point
接客グランプリ[全国1位]受賞!お部屋探しは関西リビング不動産へ☆圧倒的な物件情報量から、ご希望にピッタリな物件をご紹介いたします!他社ではうまくいかなかったお部屋探しもぜひご相談下さい!
提供:関西リビング不動産リアルティ(株)鳳店(SUUMO経由)

詳細情報 ファミール羽衣公園前
物件紹介
ファミール羽衣公園前は南海本線羽衣駅から徒歩6分にあり、駅近で通勤通学に便利なマンションです。
このお部屋は2階以上に位置しているので、通行人や周囲の住人からの視線が気になりにくく、防犯面でも安心。インターホンにはTVモニタもついているため、相手の顔を確認してから来客対応することができます。
人気の南向き・フローリングのお部屋。室内にはウォークインクローゼットがありますので、たくさんの荷物も効率的に収納ができます。キッチンはシステムキッチン仕様になっていますので、お料理好きの方にもぴったり。また、バス・トイレは別で、のんびりお風呂タイムも楽しめるでしょう。
このお部屋は2階以上に位置しているので、通行人や周囲の住人からの視線が気になりにくく、防犯面でも安心。インターホンにはTVモニタもついているため、相手の顔を確認してから来客対応することができます。
人気の南向き・フローリングのお部屋。室内にはウォークインクローゼットがありますので、たくさんの荷物も効率的に収納ができます。キッチンはシステムキッチン仕様になっていますので、お料理好きの方にもぴったり。また、バス・トイレは別で、のんびりお風呂タイムも楽しめるでしょう。
お金・契約の情報
※「-」と表示されているものは、実際は料金が発生するものもございます。詳細はお問い合わせください。
| 家賃 | 13万円 | 管理費・共益費 | なし |
|---|---|---|---|
| 敷金 | 13万円 | 礼金 | 13万円 |
| 入居決定でお祝い金最大100,000円 | |||
| 保証金 | - | 償却・敷引 | - |
| 住宅保険料 | - | 更新料 | - |
| 保証会社利用 | 必須 | 保証会社名 | - |
| 保証会社費用 | - | 保証会社備考 | 保証会社利用必 お問い合せ下さい お問い合せ下さい |
| 契約形態 | - | 契約期間 | - |
| 入居・引渡期間 | - | 現況 | - |
| 契約備考 | 現地お待ち合わせやご送迎等は勿論、遠方のお客様へはオンライン契約もご対応可能です★インターネット未公開物件のご紹介や、初期費用の分割支払い、保証人不要物件や福祉可能物件等、どんなご相談もお気軽にお問合せ下さい。きっと上手くいきます 合計2.97万円(内訳:除菌施工料2.97万円) リロサポ 月額1500円 3SLDK 子供可 普通借家2年 損保【要】 バストイレ別、バルコニー、クロゼット、フローリング、TVインターホン、室内洗濯置、シューズボックス、システムキッチン、南向き、追焚機能浴室、温水洗浄便座、洗面所独立、洗面化粧台、駐輪場、ウォークインクロゼット、敷金1ヶ月、2沿線利用可、2駅利用可、駅徒歩10分以内、敷地内ごみ置き場、LDK18畳以上、和室、都市ガス、礼金1ヶ月、IT重説対応物件、初期費用カード決済可 入居日:'26年4月中旬 | ||
部屋の情報
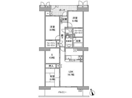
| 間取り | 3SLDK | 専有面積 | 96.81m2 |
|---|---|---|---|
| 所在階 / 向き | 6階 / - | バルコニー面積 | - |
| 水道 / ガス | - | ||
| 設備 | バス・トイレ別、2階以上、テレビドアホン、ウォークインクローゼット、追い焚き、システムキッチン、温水洗浄便座、南向き、バルコニー、フローリング、洗髪洗面化粧台、洗濯機:室内 | ||
| 当社物件ID | 160312103 | ||
建物の情報
| 建物名 | ファミール羽衣公園前 | ||
|---|---|---|---|
| 所在地 | 大阪府高石市 | ||
| 交通 | 南海本線 羽衣駅 徒歩6分 南海本線 浜寺公園駅 徒歩8分 JR阪和線 鳳駅 徒歩27分 | ||
| 階数 | 8階建 | 総戸数 | - |
| 築年月 | 2003年10月 / 築23年 | エレベーター | - |
| 駐車場 | 近隣 200m11000円 | バイク置き場 | - |
| 駐輪場 | あり | 管理人/管理会社 | - |
| 周辺環境 | その他 ファミリーマート 羽衣駅西店(コンビニ)まで359m その他 イコ ネはごろも(スーパー)まで464m その他 耳原高石診療所(病院)まで1551m その他 浜寺郵便局(郵便局)まで297m その他 三菱UFJ銀行羽衣支店(銀行)まで350m その他 高石警察署 東羽衣交番(警察署・交番)まで429m | ||
| 建物種別 | マンション | 建物構造 | RC(鉄筋コンクリート) |
この部屋の取扱い不動産会社
| 会社名 | 関西リビング不動産リアルティ(株)鳳店(SUUMO経由) | ||
|---|---|---|---|
| 所在地 | 大阪府堺市西区鳳中町3-61-14 | 交通 | - |
| 営業時間 | 10:00~18:30 | 定休日 | お盆・年末年始 |
| 免許番号 | 大阪府知事59912 | 取引態様 | 仲介 |
| 不動産会社管理番号 | 100485701545 | 当社管理番号 | 89 |
| 所属団体 | (公社)全日本不動産協会大阪府本部会員 | ||
| 公正取引協議会 | (公社)近畿地区不動産公正取引協議会加盟 | ||
| 取扱い物件情報 | 物件詳細へ | ||
※各種情報と現状に差異がある場合は、現状優先となります。問い合わせをすることで、より詳しい条件、情報を確認する事ができます。
提供:関西リビング不動産リアルティ(株)鳳店(SUUMO経由)
この物件が気になったら掲載期限まであと10日
ファミール羽衣公園前に条件(家賃・エリア)が近い物件一覧
| 写真 | 家賃 管理費等 | 敷金 礼金 | 間取り 専有面積 | 築年数 | 最寄り駅 所在地 | キープ | 詳細 |
|---|---|---|---|---|---|---|---|
マンション 南海電鉄南海本線 泉大津駅 徒歩3分 築31年(2LDK/5階) | |||||||
![]() | 7.9万円 8,000円 | 5万円 15万円 | 2LDK 57.6m2 | 築31年 | 南海電鉄南海本線 泉大津駅 徒歩3分 南海電鉄南海本線 松ノ浜駅 徒歩19分 南海電鉄南海本線 忠岡駅 徒歩24分 大阪府泉大津市旭町 | 詳細を見る | |
マンション アルテーヌ浜寺元町(2LDK/3階) | |||||||
![]() | 13.7万円 1.2万円 | 2万円 29万円 | 2LDK 65.2m2 | 新築 | 南海電鉄南海本線 浜寺公園駅 徒歩12分 南海電鉄南海本線 諏訪ノ森駅 徒歩15分 南海電鉄南海本線 羽衣駅 徒歩19分 大阪府堺市西区浜寺元町3丁 | 詳細を見る | |
マンション 南海電鉄南海本線 羽衣駅 徒歩6分 築29年(2LDK/2階) | |||||||
![]() | 8万円 5,000円 | なし 8万円 | 2LDK 60m2 | 築29年 | 南海電鉄南海本線 羽衣駅 徒歩6分 南海電鉄南海本線 浜寺公園駅 徒歩8分 阪和線 鳳駅 徒歩21分 大阪府高石市東羽衣1丁目 | 詳細を見る | |
一戸建て 南海電鉄南海本線 高石駅 徒歩12分 築31年(4SLDK) | |||||||
![]() | 12.5万円 なし | なし 12.5万円 | 4SLDK 117m2 | 築31年 | 南海電鉄南海本線 高石駅 徒歩12分 阪和線 北信太駅 徒歩15分 阪和線 富木駅 徒歩20分 大阪府高石市綾園2丁目 | 詳細を見る | |
マンション 阪和線 津久野駅 徒歩7分 築30年(3LDK/7階) | |||||||
![]() | 8.5万円 5,000円 | なし 15万円 | 3LDK 65.5m2 | 築30年 | 阪和線 津久野駅 徒歩7分 阪和線 上野芝駅 徒歩19分 阪和線 鳳駅 徒歩24分 大阪府堺市西区下田町 | 詳細を見る | |
アパート ラ ヴィータ鳳(2LDK/1階) | |||||||
![]() | 13.2万円 6,000円 | なし なし | 2LDK 64.5m2 | 築1年 | 阪和線 鳳駅 徒歩4分 阪和線 富木駅 徒歩16分 阪和線 東羽衣駅 徒歩17分 大阪府堺市西区鳳中町4丁 | 詳細を見る | |
マンション 阪和線 和泉府中駅 徒歩3分 築35年(2LDK/2階) | |||||||
![]() | 8万円 5,000円 | なし なし | 2LDK 79.28m2 | 築35年 | 阪和線 和泉府中駅 徒歩3分 阪和線 信太山駅 徒歩21分 南海電鉄南海本線 泉大津駅 徒歩34分 大阪府和泉市府中町1丁目 | 詳細を見る | |
アパート LUPINUS HEIM(2LDK/1階) | |||||||
![]() | 9.55万円 4,400円 | なし 9.55万円 | 2LDK 50.4m2 | 築1年 | 南海電鉄南海本線 北助松駅 徒歩13分 南海電鉄南海本線 松ノ浜駅 徒歩23分 南海電鉄南海本線 高石駅 徒歩25分 大阪府泉大津市千原町2丁目 | 詳細を見る | |









