賃貸アパート
京阪電気鉄道宇治線 木幡駅(京阪) 徒歩8分 3階建 築12年の賃貸物件情報(1LDK/2階)
| 家賃 | 管理費等 | 敷金 | 礼金 | 間取り | 専有面積 |
|---|---|---|---|---|---|
| 9.2万円 | 7,000円 | なし | 15万円 | 1LDK | 45.07m2 |
入居決定でお祝い金最大100,000円
Point
2014年7月完成。 生活環境良し、2014年7月完成物件。
提供:株式会社 京都ライフ 丹波橋店(賃貸スモッカ経由)

詳細情報 京阪電気鉄道宇治線 木幡駅(京阪) 徒歩8分 3階建 築12年
物件紹介
京阪電気鉄道宇治線木幡駅から徒歩8分にあり、駅近で通勤通学に便利なアパートです。
このお部屋は2階以上に位置しているので通行人や周囲の住人からの視線が気になりにくく、建物のエントランスはオートロックがついているので防犯性が高くなっています。
人気の南向きのお部屋。また、フローリングなのでお掃除もラクラク。キッチンはシステムキッチン仕様になっていますので、お料理好きの方にもぴったり。また、バス・トイレは別で、のんびりお風呂タイムも楽しめるでしょう。
通信設備面ではBSアンテナがありますので、おうち時間も充実するでしょう(別途工事、契約料が必要な場合あり)。
このお部屋は2階以上に位置しているので通行人や周囲の住人からの視線が気になりにくく、建物のエントランスはオートロックがついているので防犯性が高くなっています。
人気の南向きのお部屋。また、フローリングなのでお掃除もラクラク。キッチンはシステムキッチン仕様になっていますので、お料理好きの方にもぴったり。また、バス・トイレは別で、のんびりお風呂タイムも楽しめるでしょう。
通信設備面ではBSアンテナがありますので、おうち時間も充実するでしょう(別途工事、契約料が必要な場合あり)。
お金・契約の情報
※「-」と表示されているものは、実際は料金が発生するものもございます。詳細はお問い合わせください。
| 家賃 | 9.2万円 | 管理費・共益費 | 7,000円 |
|---|---|---|---|
| 敷金 | なし | 礼金 | 15万円 |
| 入居決定でお祝い金最大100,000円 | |||
| 保証金 | - | 償却・敷引 | - |
| 住宅保険料 | 住宅保険料あり | 更新料 | - |
| 契約形態 | - | 契約期間 | 2年 |
| 入居・引渡期間 | 2025年12月下旬 | 現況 | 賃貸中 |
| 契約備考 | 害虫駆除費:22,000円 ファイテック消火剤:4,950円 ICロック電池代:2,750円 更新料:1ヶ月 保証会社:利用必須 初回:3.5万円、月額:月額賃料等の1% その他設備/条件:コンロ2口以上、独立洗面台、TVドアホン | ||
部屋の情報
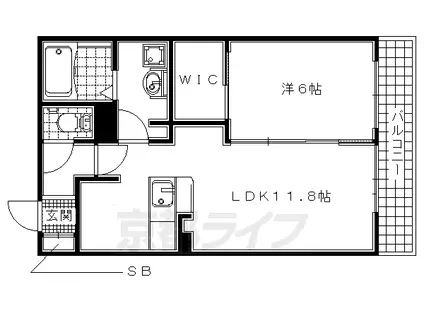
| 間取り | 1LDK | 専有面積 | 45.07m2 |
|---|---|---|---|
| 間取り詳細 | 洋室(6帖)、LDK(11.7帖) | ||
| 所在階 / 向き | 2階 / 南西 | バルコニー面積 | - |
| 水道 / ガス | - | ||
| 設備 | バス・トイレ別、2階以上、オートロック、追い焚き、システムキッチン、エアコン、温水洗浄便座、南向き、バルコニー、フローリング、オール電化、コンロ:IH、BSアンテナ、洗濯機:室内 | ||
| 当社物件ID | 159803891 | ||
建物の情報
| 建物名 | 京阪電気鉄道宇治線 木幡駅(京阪) 徒歩8分 3階建 築12年 | ||
|---|---|---|---|
| 所在地 | 京都府宇治市木幡熊小路 | ||
| 交通 | 京阪電気鉄道宇治線 木幡駅(京阪) 徒歩8分 奈良線 木幡駅(JR) 徒歩10分 | ||
| 階数 | 3階建 | 総戸数 | - |
| 築年月 | 2014年07月 / 築12年 | エレベーター | - |
| 駐車場 | - | バイク置き場 | - |
| 駐輪場 | あり | 管理人/管理会社 | - |
| 建物種別 | アパート | 建物構造 | 軽量鉄骨造 |
この部屋の取扱い不動産会社
| 会社名 | 株式会社 京都ライフ 丹波橋店(賃貸スモッカ経由) | ||
|---|---|---|---|
| 所在地 | 京都市伏見区京町北7丁目1-4 | 交通 | - |
| 営業時間 | - | 定休日 | - |
| 免許番号 | 京都府知事(11)第6353号 | 取引態様 | 仲介 |
| 不動産会社管理番号 | kyotolife_51828-206-05 | 当社管理番号 | 463 |
| 所属団体 | 京都府宅地建物取引業協会\n公益社団法人近畿地区不動産公正取引協議会 | ||
| 公正取引協議会 | 全国宅地建物取引業保証協会 | ||
| 取扱い物件情報 | 物件詳細へ | ||
※各種情報と現状に差異がある場合は、現状優先となります。問い合わせをすることで、より詳しい条件、情報を確認する事ができます。
提供:株式会社 京都ライフ 丹波橋店(賃貸スモッカ経由)
この物件が気になったら掲載期限まであと5日
京阪電気鉄道宇治線 木幡駅(京阪) 徒歩8分 3階建 築12年に条件(家賃・エリア)が近い物件一覧
| 写真 | 家賃 管理費等 | 敷金 礼金 | 間取り 専有面積 | 築年数 | 最寄り駅 所在地 | キープ | 詳細 |
|---|---|---|---|---|---|---|---|
アパート 東海道本線 山科駅 徒歩12分 築7年(ワンルーム/1階) | |||||||
![]() | 7.2万円 5,000円 | なし 7.2万円 | ワンルーム 26.5m2 | 築7年 | 東海道本線 山科駅 徒歩12分 京阪電気鉄道京津線 京阪山科駅 徒歩12分 京都府京都市山科区厨子奥矢倉町 | 詳細を見る | |
マンション 京都市烏丸線 丸太町駅(京都市営) 徒歩6分 築31年(1K/2階) | |||||||
![]() | 6万円 なし | 6万円 6万円 | 1K 25.38m2 | 築31年 | 京都市烏丸線 丸太町駅(京都市営) 徒歩6分 京都市烏丸線 烏丸御池駅 徒歩7分 京都府京都市中京区松屋町 | 詳細を見る | |
マンション パラシオ池田(1DK/1階) | |||||||
![]() | 5.6万円 6,000円 | 5.6万円 10万円 | 1DK 26m2 | 築34年 | 山陰本線 丹波口駅 徒歩7分 阪急電鉄京都線 西院駅(阪急) 徒歩10分 京都府京都市下京区中堂寺庄ノ内町 | 詳細を見る | |
マンション 山陰本線 丹波口駅 徒歩12分 築21年(2LDK/9階) | |||||||
![]() | 10.9万円 8,000円 | なし 20万円 | 2LDK 59.25m2 | 築21年 | 山陰本線 丹波口駅 徒歩12分 東海道本線 西大路駅 徒歩17分 京都府京都市下京区西七条掛越町 | 詳細を見る | |
マンション グレースHAYAMA(1LDK/1階) | |||||||
![]() | 6.5万円 なし | 5万円 10万円 | 1LDK 49m2 | 築36年 | 京阪本線 淀駅 徒歩3分 京阪本線 石清水八幡宮駅 徒歩48分 京都府京都市伏見区淀下津町 | 詳細を見る | |
マンション 阪急電鉄京都線 西京極駅 徒歩7分 築20年(1DK/2階) | |||||||
![]() | 5.9万円 7,000円 | なし 10万円 | 1DK 32.7m2 | 築20年 | 阪急電鉄京都線 西京極駅 徒歩7分 阪急電鉄京都線 西院駅(阪急) 徒歩20分 京都府京都市右京区西京極南大入町 | 詳細を見る | |
マンション 阪急電鉄嵐山線 松尾大社駅 徒歩1分 築41年(1LDK/3階) | |||||||
![]() | 7万円 5,000円 | なし なし | 1LDK 40m2 | 築41年 | 阪急電鉄嵐山線 松尾大社駅 徒歩1分 阪急電鉄嵐山線 嵐山駅(阪急) 徒歩15分 京都府京都市西京区嵐山朝月町 | 詳細を見る | |
アパート 近鉄京都線 大久保駅(京都) 徒歩10分 築1年(1LDK/1階) | |||||||
![]() | 9.05万円 5,500円 | なし 12万円 | 1LDK 35.06m2 | 築1年 | 近鉄京都線 大久保駅(京都) 徒歩10分 近鉄京都線 久津川駅 徒歩14分 京都府宇治市大久保町 | 詳細を見る | |









