賃貸マンション
古千谷マンションの賃貸物件情報(3DK/4階)
| 家賃 | 管理費等 | 敷金 | 礼金 | 間取り | 専有面積 |
|---|---|---|---|---|---|
| 12万円 | 2万円 | なし | 12万円 | 3DK | 55.57m2 |
入居決定でお祝い金最大100,000円
- 保証金
- -
- 償却・敷引
- -
- 築年数
- 築19年
- 所在階
- 4階
- 向き
- 南東
Point
まずはお問い合わせ!
不動産会社は街のプロ、あなたに合った物件がきっと見つかります。
提供:(株)パートナーズ(SUUMO経由)

詳細情報 古千谷マンション
物件紹介
古千谷マンションは日暮里・舎人ライナー舎人駅から徒歩11分にあるマンションです。
このお部屋は2階以上に位置しているので通行人や周囲の住人からの視線が気になりにくく、建物のエントランスはオートロックがついているので防犯性が高くなっています。
人気の南向きのお部屋。また、フローリングなのでお掃除もラクラク。キッチンはシステムキッチン仕様になっていますので、お料理好きの方にもぴったり。また、バス・トイレは別で、のんびりお風呂タイムも楽しめるでしょう。
通信設備面では、インターネット接続が可能です(別途工事、契約料が必要な場合あり)。
建物にはエレベーターがついているので、重い荷物があっても安心。共用部には宅配ボックスが設定されているので、不在の時にも荷物を受け取ることができます。また、ペット飼育の相談ができますので、あなたの大切な家族の一員も快適に暮らせるか、ぜひ確認してみてください。
このお部屋は2階以上に位置しているので通行人や周囲の住人からの視線が気になりにくく、建物のエントランスはオートロックがついているので防犯性が高くなっています。
人気の南向きのお部屋。また、フローリングなのでお掃除もラクラク。キッチンはシステムキッチン仕様になっていますので、お料理好きの方にもぴったり。また、バス・トイレは別で、のんびりお風呂タイムも楽しめるでしょう。
通信設備面では、インターネット接続が可能です(別途工事、契約料が必要な場合あり)。
建物にはエレベーターがついているので、重い荷物があっても安心。共用部には宅配ボックスが設定されているので、不在の時にも荷物を受け取ることができます。また、ペット飼育の相談ができますので、あなたの大切な家族の一員も快適に暮らせるか、ぜひ確認してみてください。
お金・契約の情報
※「-」と表示されているものは、実際は料金が発生するものもございます。詳細はお問い合わせください。
| 家賃 | 12万円 | 管理費・共益費 | 2万円 |
|---|---|---|---|
| 敷金 | なし | 礼金 | 12万円 |
| 入居決定でお祝い金最大100,000円 | |||
| 保証金 | - | 償却・敷引 | - |
| 住宅保険料 | - | 更新料 | - |
| 保証会社利用 | 必須 | 保証会社名 | - |
| 保証会社費用 | - | 保証会社備考 | 保証会社利用必 の家賃保証(RentQuick)初回保証料:家賃総額50%、年間保証料:10,000円、口座手数料:なし ※審査状況により変更する場合有 |
| 契約形態 | - | 契約期間 | - |
| 入居・引渡期間 | 即時 | 現況 | - |
| 入居可能条件 | ペット相談 | ||
| 契約備考 | 合計6.05万円(内訳:契約事務手数料1.1万円抗菌消臭代1.65万円鍵交換代3.3万円) 更新料 新賃料1.00ヶ月分 24時間緊急サポート料(保険付帯) 月額2200円 3DK ペット相談 普通借家2年 バストイレ別、バルコニー、エアコン、ガスコンロ対応、クロゼット、フローリング、オートロック、室内洗濯置、シューズボックス、システムキッチン、温水洗浄便座、エレベーター、洗面所独立、駐輪場、宅配ボックス、外壁タイル張り、即入居可、最上階、敷金不要、3口以上コンロ、ペット相談、全居室収納、分譲賃貸、グリル付、バイク置場、エアコン2台、ネット専用回線、保証金不要、耐火構造、3駅以上利用可、都市ガス、礼金1ヶ月、保証会社利用可 | ||
部屋の情報
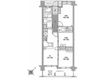
| 間取り | 3DK | 専有面積 | 55.57m2 |
|---|---|---|---|
| 所在階 / 向き | 4階 / 南東 | バルコニー面積 | - |
| 水道 / ガス | - | ||
| 設備 | バス・トイレ別、2階以上、オートロック、宅配ボックス、インターネット対応、システムキッチン、エアコン、エレベーター、温水洗浄便座、南向き、バルコニー、フローリング、洗髪洗面化粧台、2口コンロ、コンロ:ガス、洗濯機:室内 | ||
| 当社物件ID | 160216075 | ||
建物の情報
| 建物名 | 古千谷マンション | ||
|---|---|---|---|
| 所在地 | 東京都足立区古千谷本町 | ||
| 交通 | 日暮里・舎人ライナー 舎人駅 徒歩11分 日暮里・舎人ライナー 見沼代親水公園駅 徒歩11分 日暮里・舎人ライナー 舎人公園駅 徒歩24分 | ||
| 階数 | 4階建 | 総戸数 | 65戸 |
| 築年月 | 2008年01月 / 築19年 | エレベーター | あり |
| 駐車場 | なし | バイク置き場 | あり |
| 駐輪場 | あり | 管理人/管理会社 | - |
| 周辺環境 | その他 ベルクス足立古千谷店(スーパー)まで371m その他 セブンイレブン 足立古千谷本町3丁目店(コンビニ)まで250m その他 ファミリーマート 草加新里町店(コンビニ)まで1392m その他 ローソン 舎人一丁目店(コンビニ)まで897m その他 有限会社イコー薬局 古千谷店(ドラッグストア)まで490m | ||
| 建物種別 | マンション | 建物構造 | RC(鉄筋コンクリート) |
この部屋の取扱い不動産会社
| 会社名 | (株)パートナーズ(SUUMO経由) | ||
|---|---|---|---|
| 所在地 | 東京都渋谷区千駄ヶ谷4-27-5-5階 | 交通 | - |
| 営業時間 | 年中無休 | 定休日 | なし |
| 免許番号 | 東京都知事113100 | 取引態様 | 仲介 |
| 不動産会社管理番号 | 100482977855 | 当社管理番号 | 89 |
| 所属団体 | (公社)全日本不動産協会東京都本部会員 | ||
| 公正取引協議会 | (公社)首都圏不動産公正取引協議会加盟 | ||
| 取扱い物件情報 | 物件詳細へ | ||
※各種情報と現状に差異がある場合は、現状優先となります。問い合わせをすることで、より詳しい条件、情報を確認する事ができます。
提供:(株)パートナーズ(SUUMO経由)
この物件が気になったら掲載期限まであと11日
古千谷マンションに条件(家賃・エリア)が近い物件一覧
| 写真 | 家賃 管理費等 | 敷金 礼金 | 間取り 専有面積 | 築年数 | 最寄り駅 所在地 | キープ | 詳細 |
|---|---|---|---|---|---|---|---|
マンション GENOVIA本所吾妻橋SKYGARDEN(1K/1階) | |||||||
![]() | 11万円 1.5万円 | なし なし | 1K 25.57m2 | 築5年 | 東京都浅草線 本所吾妻橋駅 徒歩10分 東京都大江戸線 両国駅 徒歩12分 東京地下鉄銀座線 浅草駅(東武・都営・メトロ) 徒歩15分 東京都墨田区石原3丁目 | 詳細を見る | |
マンション クレストコート本所吾妻橋ノース 本所吾妻橋ノース(1DK/8階) | |||||||
![]() | 15.7万円 1.2万円 | 15.7万円 なし | 1DK 25.42m2 | 築1年 | 東京都浅草線 本所吾妻橋駅 徒歩2分 東京地下鉄銀座線 浅草駅(東武・都営・メトロ) 徒歩9分 東武伊勢崎・大師線 とうきょうスカイツリー駅 徒歩10分 東京都墨田区吾妻橋2丁目 | 詳細を見る | |
マンション モンシェール錦糸町(1K/2階) | |||||||
![]() | 9.4万円 7,000円 | 9.4万円 9.4万円 | 1K 20.6m2 | 築24年 | 東京地下鉄半蔵門線 錦糸町駅 徒歩6分 総武本線 錦糸町駅 徒歩8分 東武伊勢崎・大師線 押上駅 徒歩15分 東京都墨田区太平4丁目 | 詳細を見る | |
マンション エーデルワイス本所(1LDK/6階) | |||||||
![]() | 14万円 8,000円 | 14万円 14万円 | 1LDK 40.95m2 | 築23年 | 東京都浅草線 蔵前駅 徒歩12分 東京都大江戸線 両国駅 徒歩13分 東京都墨田区本所2丁目 | 詳細を見る | |
マンション アルファコート曳舟2(1SLDK/5階) | |||||||
![]() | 17.1万円 1.5万円 | なし なし | 1SLDK 41.02m2 | 築1年 | 東武伊勢崎・大師線 曳舟駅 徒歩10分 京成電鉄押上線 京成曳舟駅 徒歩15分 東京地下鉄半蔵門線 押上駅 徒歩16分 東京都墨田区向島5丁目 | 詳細を見る | |
マンション KDXレジデンス森下千歳(1K/4階) | |||||||
![]() | 10.7万円 5,000円 | 10.7万円 10.7万円 | 1K 21.28m2 | 築20年 | 東京都新宿線 森下駅(東京) 徒歩7分 東京都大江戸線 森下駅(東京) 徒歩7分 総武・中央緩行線 両国駅 徒歩10分 東京都墨田区千歳1丁目 | 詳細を見る | |
マンション WHARF森下(1K/4階) | |||||||
![]() | 14.8万円 1万円 | 14.8万円 なし | 1K 26.84m2 | 築12年 | 東京都大江戸線 森下駅(東京) 徒歩3分 東京都墨田区菊川1丁目 | 詳細を見る | |
マンション イクシオ熊野前駅(1DK/1階) | |||||||
![]() | 11.4万円 5,000円 | なし 11.4万円 | 1DK 30.25m2 | 築1年 | 東京都荒川線 東尾久三丁目駅 徒歩4分 日暮里舎人ライナー 熊野前駅 徒歩5分 東京地下鉄千代田線 町屋駅 徒歩13分 東京都荒川区町屋 六丁目 | 詳細を見る | |








/105x80-f1-q70-wp1)
