賃貸マンション
ミハス旗の台の賃貸物件情報(1K/1階)
| 家賃 | 管理費等 | 敷金 | 礼金 | 間取り | 専有面積 |
|---|---|---|---|---|---|
| 8.3万円 | 6,000円 | なし | 8.3万円 | 1K | 20.56m2 |
入居決定でお祝い金最大100,000円
- 保証金
- -
- 償却・敷引
- -
- 築年数
- 築7年
- 所在階
- 1階
- 向き
- 南東
Point
★本物件、ネット非公開のお部屋情報多数★ご契約まで来店不要でお手続きできます★カード払い・分割払いOK★家具・家電付きに変更もできます★
提供:(株)大ハウジング(SUUMO経由)

詳細情報 ミハス旗の台
物件紹介
ミハス旗の台は東急池上線長原駅から徒歩3分にあり、駅近で通勤通学に便利なマンションです。
このお部屋のインターホンにはTVモニタがついているため、相手の顔を確認してから来客対応することができます。
人気の南向き・フローリングのお部屋。角部屋でもあるため、周囲の居住者の生活音も気になりにくい場所です。キッチンはシステムキッチン仕様になっていますので、お料理好きの方にもぴったり。バス・トイレは別なので、のんびりお風呂タイムも楽しめるでしょう。また、雨の日でも浴室乾燥機を使えば、お洗濯も問題ありません。
通信設備面では、インターネットが無料で使えるので、月々の出費を抑えられるのも魅力です。また、CATVにも対応しているので、おうち時間も充実するでしょう(別途工事、CATVの契約料等が必要な場合あり)。
このお部屋のインターホンにはTVモニタがついているため、相手の顔を確認してから来客対応することができます。
人気の南向き・フローリングのお部屋。角部屋でもあるため、周囲の居住者の生活音も気になりにくい場所です。キッチンはシステムキッチン仕様になっていますので、お料理好きの方にもぴったり。バス・トイレは別なので、のんびりお風呂タイムも楽しめるでしょう。また、雨の日でも浴室乾燥機を使えば、お洗濯も問題ありません。
通信設備面では、インターネットが無料で使えるので、月々の出費を抑えられるのも魅力です。また、CATVにも対応しているので、おうち時間も充実するでしょう(別途工事、CATVの契約料等が必要な場合あり)。
お金・契約の情報
※「-」と表示されているものは、実際は料金が発生するものもございます。詳細はお問い合わせください。
| 家賃 | 8.3万円 | 管理費・共益費 | 6,000円 |
|---|---|---|---|
| 敷金 | なし | 礼金 | 8.3万円 |
| 入居決定でお祝い金最大100,000円 | |||
| 保証金 | - | 償却・敷引 | - |
| 住宅保険料 | - | 更新料 | - |
| 契約形態 | - | 契約期間 | - |
| 入居・引渡期間 | 即時 | 現況 | - |
| 契約備考 | 巡回管理/★すぐに空室情報をお調べいたしますので、電話かメールでお気軽にご連絡ください★___★お部屋の写真・お図面の送付・入居時期のご相談・ご契約金のクレジットカード払い、分割払いも、お客様のご要望を喜んでお受けいたします★___★なんでもお気軽にご相談ください!!保証人様不要プランもございます!! 合計5.83万円(内訳:鍵交換代 19800円税込 ハウスクリーニング 38500円税込) 24時間サポート 1320円/月額 更新料 1ヶ月 1K 普通借家2年 損保【2万円2年】 バストイレ別、エアコン、ガスコンロ対応、クロゼット、フローリング、TVインターホン、浴室乾燥機、室内洗濯置、陽当り良好、シューズボックス、システムキッチン、角住戸、温水洗浄便座、脱衣所、洗面所独立、洗面化粧台、2口コンロ、CATV、光ファイバー、外壁タイル張り、即入居可、閑静な住宅地、敷金不要、照明付、オートバス、保証人不要、東南角住戸、CATVインターネット、24時間緊急通報システム、全居室フローリング、ネット専用回線、駅まで平坦、ネット使用料不要、緑豊かな住宅地、眺望良好、24時間換気システム、平坦地、南面リビング、全室東南向き、3駅以上利用可、3沿線以上利用可、防犯強化地域、駅徒歩5分以内、敷地内ごみ置き場、東南向き、都市ガス、玄関収納、高速ネット対応、礼金1ヶ月、通風良好 | ||
部屋の情報
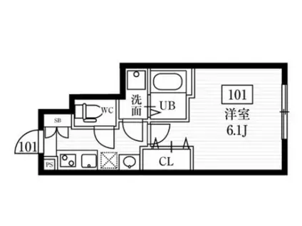
| 間取り | 1K | 専有面積 | 20.56m2 |
|---|---|---|---|
| 所在階 / 向き | 1階 / 南東 | バルコニー面積 | - |
| 水道 / ガス | - | ||
| 設備 | バス・トイレ別、テレビドアホン、浴室乾燥機、追い焚き、インターネット対応、システムキッチン、エアコン、温水洗浄便座、南向き、角部屋、フローリング、洗髪洗面化粧台、2口コンロ、コンロ:ガス、CATV、インターネット使用料無料、洗濯機:室内 | ||
| 当社物件ID | 30615479 | ||
建物の情報
| 建物名 | ミハス旗の台 | ||
|---|---|---|---|
| 所在地 | 東京都品川区旗の台 | ||
| 交通 | 東急池上線 長原駅(東京) 徒歩3分 東急大井町線 旗の台駅 徒歩5分 東急目黒線 大岡山駅 徒歩20分 | ||
| 階数 | 3階建 | 総戸数 | - |
| 築年月 | 2019年07月 / 築7年 | エレベーター | - |
| 駐車場 | 近隣 100m30000円 | バイク置き場 | - |
| 駐輪場 | - | 管理人/管理会社 | - |
| 周辺環境 | その他 まいばすけっと旗の台2丁目店(スーパー)まで797m その他 松屋 中延店(飲食店)まで1500m その他 マクドナルド大岡山店(飲食店)まで1557m その他 なかのぶスキップロード商店街(その他)まで1595m その他 武蔵小山商店街パルム(その他)まで2210m その他 イトーヨーカドー 戸越店(ショッピングセンター)まで2183m | ||
| 建物種別 | マンション | 建物構造 | 鉄骨造 |
この部屋の取扱い不動産会社
| 会社名 | (株)大ハウジング(SUUMO経由) | ||
|---|---|---|---|
| 所在地 | 東京都品川区東五反田2-3-4 ビックナインビル9階 | 交通 | - |
| 営業時間 | 10:00~18:30 | 定休日 | 水曜日 |
| 免許番号 | 東京都知事96877 | 取引態様 | 仲介 |
| 不動産会社管理番号 | 100488753260 | 当社管理番号 | 89 |
| 所属団体 | (公社)全日本不動産協会東京都本部会員 | ||
| 公正取引協議会 | (公社)首都圏不動産公正取引協議会加盟 | ||
| 取扱い物件情報 | 物件詳細へ | ||
※各種情報と現状に差異がある場合は、現状優先となります。問い合わせをすることで、より詳しい条件、情報を確認する事ができます。
提供:(株)大ハウジング(SUUMO経由)
この物件が気になったら掲載期限まであと11日
ミハス旗の台に条件(家賃・エリア)が近い物件一覧
| 写真 | 家賃 管理費等 | 敷金 礼金 | 間取り 専有面積 | 築年数 | 最寄り駅 所在地 | キープ | 詳細 |
|---|---|---|---|---|---|---|---|
アパート SEED SAVE PETIRASU(1K/1階) | |||||||
![]() | 7.6万円 1万円 | 15.2万円 7.6万円 | 1K 21.83m2 | 築2年 | 京急本線 梅屋敷駅(東京) 徒歩16分 京急本線 大森町駅 徒歩16分 東京都大田区大森東 | 詳細を見る | |
アパート スズキコーポ(ワンルーム/1階) | |||||||
![]() | 5.6万円 3,000円 | 5.6万円 5.6万円 | ワンルーム 17.3m2 | 築53年 | 東急多摩川線 鵜の木駅 徒歩5分 東急多摩川線 下丸子駅 徒歩7分 東急池上線 千鳥町駅 徒歩12分 東京都大田区鵜の木 | 詳細を見る | |
マンション マレオドゥール(2K/5階) | |||||||
![]() | 7万円 2,000円 | なし なし | 2K 29.16m2 | 築40年 | 京葉線 潮見駅 徒歩8分 東京地下鉄東西線 木場駅 徒歩24分 東京地下鉄有楽町線 辰巳駅 徒歩24分 東京都江東区潮見1丁目 | 詳細を見る | |
マンション クレヴィスタ亀戸V(1K/6階) | |||||||
![]() | 12.8万円 1.1万円 | なし 12.8万円 | 1K 25.41m2 | 築6年 | 東武鉄道亀戸線 亀戸水神駅 徒歩2分 総武・中央緩行線 亀戸駅 徒歩9分 東武鉄道亀戸線 東あずま駅 徒歩12分 東京都江東区亀戸8丁目 | 詳細を見る | |
マンション SEED JUST B-BASE Ⅱ(1LDK/4階) | |||||||
![]() | 8.8万円 1.5万円 | 8.8万円 8.8万円 | 1LDK 23.07m2 | 築1年 | 東京モノレール羽田 昭和島駅 徒歩11分 京浜急行電鉄本線 梅屋敷駅(東京) 徒歩19分 東京都大田区大森南4丁目 | 詳細を見る | |
アパート SEED SAVE PETIRASU Ⅲ(1LDK/2階) | |||||||
![]() | 10.6万円 1万円 | 21.2万円 10.6万円 | 1LDK 30.55m2 | 築1年 | 東京モノレール羽田 昭和島駅 徒歩12分 京浜急行電鉄本線 大森町駅 徒歩18分 東京都大田区大森東5丁目 | 詳細を見る | |
アパート タカマルハイム(1LDK/1階) | |||||||
![]() | 11.1万円 3,000円 | 11.1万円 22.2万円 | 1LDK 34m2 | 築11年 | 東急多摩川線 武蔵新田駅 徒歩8分 東急多摩川線 下丸子駅 徒歩9分 東京都大田区下丸子2丁目 | 詳細を見る | |








