賃貸マンション
ズーム本郷の賃貸物件情報(1DK/11階)
| 家賃 | 管理費等 | 敷金 | 礼金 | 間取り | 専有面積 |
|---|---|---|---|---|---|
| 16.2万円 | 1.5万円 | 16.2万円 | 16.2万円 | 1DK | 25.82m2 |
入居決定でお祝い金最大100,000円
- 保証金
- -
- 償却・敷引
- -
- 築年数
- 築1年
- 所在階
- 11階
- 向き
- 南西
Point
モニタ付オートロックなので、不審者の侵入を防ぐとともに大切なお客様をスムーズにお迎えする事ができます。モニター付インターホンで来訪者が一目瞭然。セールスや勧誘対策もできて安心です。
提供:恵比寿不動産 都心チーム(株)ライフアドバンス(SUUMO経由)

詳細情報 ズーム本郷
物件紹介
ズーム本郷は東京メトロ丸ノ内線本郷三丁目駅から徒歩4分にあり、駅近で通勤通学に便利なマンションです。
このお部屋は2階以上に位置しているので、通行人や周囲の住人からの視線が気になりにくく、防犯面でも安心。建物のエントランスはオートロックがついており、インターホンにはTVモニタもついているため、相手の顔を確認してから来客対応することができます。
人気の南向きのお部屋。また、フローリングなのでお掃除もラクラク。キッチンはシステムキッチン仕様になっていますので、お料理好きの方にもぴったり。バス・トイレは別なので、のんびりお風呂タイムも楽しめるでしょう。また、雨の日でも浴室乾燥機を使えば、お洗濯も問題ありません。
通信設備面では、インターネットが無料で使えるので、月々の出費を抑えられるのも魅力です(別途工事等が必要な場合あり)。
ペット飼育の相談ができますので、あなたの大切な家族の一員も快適に暮らせるか、ぜひ確認してみてください。
このお部屋は2階以上に位置しているので、通行人や周囲の住人からの視線が気になりにくく、防犯面でも安心。建物のエントランスはオートロックがついており、インターホンにはTVモニタもついているため、相手の顔を確認してから来客対応することができます。
人気の南向きのお部屋。また、フローリングなのでお掃除もラクラク。キッチンはシステムキッチン仕様になっていますので、お料理好きの方にもぴったり。バス・トイレは別なので、のんびりお風呂タイムも楽しめるでしょう。また、雨の日でも浴室乾燥機を使えば、お洗濯も問題ありません。
通信設備面では、インターネットが無料で使えるので、月々の出費を抑えられるのも魅力です(別途工事等が必要な場合あり)。
ペット飼育の相談ができますので、あなたの大切な家族の一員も快適に暮らせるか、ぜひ確認してみてください。
お金・契約の情報
※「-」と表示されているものは、実際は料金が発生するものもございます。詳細はお問い合わせください。
| 家賃 | 16.2万円 | 管理費・共益費 | 1.5万円 |
|---|---|---|---|
| 敷金 | 16.2万円 | 礼金 | 16.2万円 |
| 入居決定でお祝い金最大100,000円 | |||
| 保証金 | - | 償却・敷引 | - |
| 住宅保険料 | - | 更新料 | - |
| 保証会社利用 | 必須 | 保証会社名 | リクルートフォレントインシュア |
| 保証会社費用 | - | 保証会社備考 | オリコフォレントインシュア利用必 トーシンライフ、オリコフォレントインシュア、全保連/保証料:初回=賃料等×50%、月額=賃料等×1% |
| 契約形態 | - | 契約期間 | - |
| 入居・引渡期間 | 即時 | 現況 | - |
| 入居可能条件 | ペット相談 | ||
| 契約備考 | 更新料新賃料(ヶ月):1.00ヶ月、家財保険+付帯サービス(税込):1735円/月 1DK 二人入居可/ペット相談 普通借家2年 バストイレ別、バルコニー、エアコン、ガスコンロ対応、クロゼット、フローリング、TVインターホン、浴室乾燥機、オートロック、室内洗濯置、シューズボックス、システムキッチン、追焚機能浴室、温水洗浄便座、洗面所独立、2口コンロ、駐輪場、即入居可、ペット相談、照明付、オートバス、敷金1ヶ月、二人入居相談、バイク置場、2沿線利用可、ネット専用回線、ネット使用料不要、保証金不要、24時間換気システム、人感照明センサー、2駅利用可、駅徒歩5分以内、高層階、南西向き、都市ガス、オートライト、マルチメディアコンセント、礼金1ヶ月、初期費用カード決済可 | ||
部屋の情報
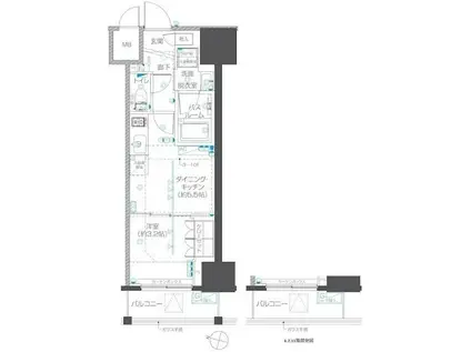
| 間取り | 1DK | 専有面積 | 25.82m2 |
|---|---|---|---|
| 所在階 / 向き | 11階 / 南西 | バルコニー面積 | 9m2 |
| 水道 / ガス | - | ||
| 設備 | バス・トイレ別、2階以上、オートロック、テレビドアホン、浴室乾燥機、追い焚き、インターネット対応、システムキッチン、エアコン、温水洗浄便座、南向き、バルコニー、フローリング、洗髪洗面化粧台、2口コンロ、コンロ:ガス、インターネット使用料無料、洗濯機:室内 | ||
| 当社物件ID | 160514527 | ||
建物の情報
| 建物名 | ズーム本郷 | ||
|---|---|---|---|
| 所在地 | 東京都文京区本郷 | ||
| 交通 | 東京メトロ丸ノ内線 本郷三丁目駅 徒歩4分 都営大江戸線 本郷三丁目駅 徒歩4分 東京メトロ丸ノ内線 御茶ノ水駅 徒歩8分 | ||
| 階数 | 15階建 | 総戸数 | - |
| 築年月 | 2026年02月 / 築1年 | エレベーター | - |
| 駐車場 | なし | バイク置き場 | あり |
| 駐輪場 | あり | 管理人/管理会社 | - |
| 周辺環境 | その他 ミーツポート(ショッピングセンター)まで860m その他 まいばすけっと本郷3丁目店(スーパー)まで60m その他 セブンイレブン文京本郷3丁目店(コンビニ)まで150m その他 くすりの福太郎本郷店(ドラッグストア)まで310m その他 ホームセンターコーナンドイト後楽園店(ホームセンター)まで900m その他 平久公園(公園)まで6560m | ||
| 建物種別 | マンション | 建物構造 | RC(鉄筋コンクリート) |
この部屋の取扱い不動産会社
| 会社名 | 恵比寿不動産 恵比寿店(株)ライフアドバンス(SUUMO経由) | ||
|---|---|---|---|
| 所在地 | 東京都渋谷区東3-25-11 TOKYUREIT恵比寿ビル7階 | 交通 | - |
| 営業時間 | 10時~19時 | 定休日 | 水曜日 |
| 免許番号 | 東京都知事97301 | 取引態様 | 仲介 |
| 不動産会社管理番号 | 100492127697 | 当社管理番号 | 89 |
| 所属団体 | (公社)全日本不動産協会東京都本部会員 | ||
| 公正取引協議会 | (公社)首都圏不動産公正取引協議会加盟 | ||
| 取扱い物件情報 | 物件詳細へ | ||
※各種情報と現状に差異がある場合は、現状優先となります。問い合わせをすることで、より詳しい条件、情報を確認する事ができます。
提供:恵比寿不動産 恵比寿店(株)ライフアドバンス(SUUMO経由)
この物件が気になったら掲載期限まであと12日
ズーム本郷の空き部屋一覧
全部で29の空き部屋があります。
ズーム本郷に条件(家賃・エリア)が近い物件一覧
| 写真 | 家賃 管理費等 | 敷金 礼金 | 間取り 専有面積 | 築年数 | 最寄り駅 所在地 | キープ | 詳細 |
|---|---|---|---|---|---|---|---|
マンション ドゥーエ王子神谷(1SLDK/10階) | |||||||
![]() | 19.9万円 1.5万円 | なし なし | 1SLDK 46.58m2 | 新築 | 東京地下鉄南北線 王子神谷駅 徒歩13分 東京都北区豊島6丁目 | 詳細を見る | |
マンション ALTERNA東池袋(2K/2階) | |||||||
![]() | 14.9万円 1万円 | なし なし | 2K 25.74m2 | 築4年 | 東京地下鉄有楽町線 東池袋駅 徒歩3分 東京都豊島区南池袋2丁目 | 詳細を見る | |
マンション ルキシア神楽坂(1DK/6階) | |||||||
![]() | 15.1万円 1.4万円 | なし 15.1万円 | 1DK 32.72m2 | 築5年 | 東京メトロ東西線 神楽坂駅 徒歩8分 都営大江戸線 飯田橋駅 徒歩9分 東京メトロ有楽町線 江戸川橋駅 徒歩10分 東京都新宿区東五軒町 | 詳細を見る | |
アパート スカイノッツ北赤羽(1LDK/2階) | |||||||
![]() | 14.2万円 3,900円 | なし 14.2万円 | 1LDK 41.91m2 | 新築 | 埼京線 浮間舟渡駅 徒歩11分 埼京線 北赤羽駅 徒歩15分 東京都北区浮間2丁目 | 詳細を見る | |
マンション ブランノワール早稲田(ワンルーム/4階) | |||||||
![]() | 12.3万円 1.5万円 | なし 12.3万円 | ワンルーム 24.75m2 | 築19年 | 東京メトロ有楽町線 江戸川橋駅 徒歩6分 東京メトロ東西線 早稲田駅(メトロ) 徒歩8分 都営大江戸線 牛込柳町駅 徒歩15分 東京都新宿区早稲田鶴巻町 | 詳細を見る | |
マンション ルフォンプログレ上野御徒町(1LDK/14階) | |||||||
![]() | 19.1万円 2万円 | 19.1万円 なし | 1LDK 32.75m2 | 築1年 | 東京都大江戸線 新御徒町駅 徒歩5分 東京都台東区台東3丁目 | 詳細を見る | |
マンション AZEST浮間舟渡(2LDK/2階) | |||||||
![]() | 16.5万円 1万円 | なし 16.5万円 | 2LDK 55.86m2 | 築6年 | JR埼京線 浮間舟渡駅 徒歩9分 JR埼京線 北赤羽駅 徒歩10分 都営三田線 志村坂上駅 徒歩28分 東京都北区浮間 | 詳細を見る | |
アパート バークリー尾久(1LDK/3階) | |||||||
![]() | 11.5万円 5,000円 | 11.5万円 11.5万円 | 1LDK 35.57m2 | 築8年 | 都電荒川線 荒川車庫前駅 徒歩4分 JR高崎線 尾久駅 徒歩10分 JR京浜東北線 王子駅 徒歩20分 東京都荒川区西尾久 | 詳細を見る | |


/105x80-f1-q70-wp1)






