賃貸マンション
サンリヤン和白V番館の賃貸物件情報(4LDK/1階)
| 家賃 | 管理費等 | 敷金 | 礼金 | 間取り | 専有面積 |
|---|---|---|---|---|---|
| 11万円 | なし | 11万円 | 22万円 | 4LDK | 95.37m2 |
入居決定でお祝い金最大100,000円
- 保証金
- -
- 償却・敷引
- -
- 築年数
- 築23年
- 所在階
- 1階
- 向き
- -
Point
4LDKの分譲賃貸マンション!小・中学校や駅が近く人気なエリアです!
提供:(株)不動産情報管理センター(SUUMO経由)

詳細情報 サンリヤン和白V番館
物件紹介
サンリヤン和白V番館はJR香椎線和白駅から徒歩3分にあり、駅近で通勤通学に便利なマンションです。
建物のエントランスはオートロックがついており、インターホンにはTVモニタもついているため、相手の顔を確認してから来客対応することができます。
人気の角部屋で周囲の居住者の生活音も気になりにくく、また、フローリングのお部屋なのでお掃除もラクラク。キッチンはシステムキッチン仕様になっていますので、お料理好きの方にもぴったり。また、バス・トイレは別で、のんびりお風呂タイムも楽しめるでしょう。
通信設備面ではCATVに対応しているので、おうち時間も充実するでしょう(別途工事、契約料が必要な場合あり)。
建物にはエレベーターがついているので、重い荷物があっても安心。共用部には宅配ボックスが設定されているので、不在の時にも荷物を受け取ることができます。
建物のエントランスはオートロックがついており、インターホンにはTVモニタもついているため、相手の顔を確認してから来客対応することができます。
人気の角部屋で周囲の居住者の生活音も気になりにくく、また、フローリングのお部屋なのでお掃除もラクラク。キッチンはシステムキッチン仕様になっていますので、お料理好きの方にもぴったり。また、バス・トイレは別で、のんびりお風呂タイムも楽しめるでしょう。
通信設備面ではCATVに対応しているので、おうち時間も充実するでしょう(別途工事、契約料が必要な場合あり)。
建物にはエレベーターがついているので、重い荷物があっても安心。共用部には宅配ボックスが設定されているので、不在の時にも荷物を受け取ることができます。
お金・契約の情報
※「-」と表示されているものは、実際は料金が発生するものもございます。詳細はお問い合わせください。
| 家賃 | 11万円 | 管理費・共益費 | なし |
|---|---|---|---|
| 敷金 | 11万円 | 礼金 | 22万円 |
| 入居決定でお祝い金最大100,000円 | |||
| 保証金 | - | 償却・敷引 | - |
| 住宅保険料 | - | 更新料 | - |
| 保証会社利用 | 必須 | 保証会社名 | - |
| 保証会社費用 | - | 保証会社備考 | 保証会社利用必 初回保証料:賃料総額の50% |
| 契約形態 | - | 契約期間 | - |
| 入居・引渡期間 | 即時 | 現況 | - |
| 契約備考 | JR鹿児島本線福工大前駅徒歩22分/来店予約はメールよりもお電話の方がスムーズな対応が可能です。 合計3.85万円(内訳:鍵交換代 38500円) 口座振替料 440円/月額 24時間管理費 880円/月額 4LDK 普通借家2年 損保【2万円2年】 バストイレ別、バルコニー、クロゼット、フローリング、TVインターホン、オートロック、室内洗濯置、システムキッチン、角住戸、温水洗浄便座、洗面所独立、洗面化粧台、宅配ボックス、CATV、即入居可、3口以上コンロ、防犯カメラ、敷金1ヶ月、専用庭、防犯ガラス、3駅以上利用可、3沿線以上利用可、駅徒歩10分以内、専有面積25坪以上、和室、都市ガス、礼金2ヶ月、IT重説対応物件、初期費用カード決済可 | ||
部屋の情報
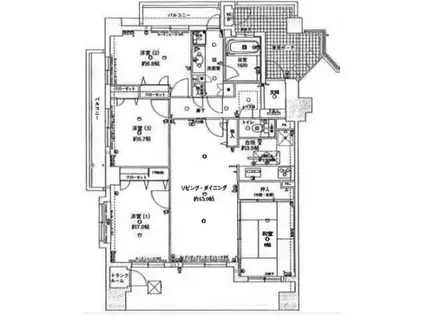
| 間取り | 4LDK | 専有面積 | 95.37m2 |
|---|---|---|---|
| 所在階 / 向き | 1階 / - | バルコニー面積 | - |
| 水道 / ガス | - | ||
| 設備 | バス・トイレ別、オートロック、テレビドアホン、宅配ボックス、システムキッチン、温水洗浄便座、角部屋、バルコニー、フローリング、洗髪洗面化粧台、2口コンロ、CATV、専用庭、洗濯機:室内 | ||
| 当社物件ID | 158781754 | ||
建物の情報
| 建物名 | サンリヤン和白V番館 | ||
|---|---|---|---|
| 所在地 | 福岡県福岡市東区和白 | ||
| 交通 | JR香椎線 和白駅(JR) 徒歩8分 西鉄貝塚線 三苫駅 徒歩21分 西鉄貝塚線 唐の原駅 徒歩22分 | ||
| 階数 | 10階建 | 総戸数 | - |
| 築年月 | 2003年02月 / 築23年 | エレベーター | - |
| 駐車場 | 近隣 340m6600円 | バイク置き場 | - |
| 駐輪場 | - | 管理人/管理会社 | - |
| 周辺環境 | その他 グロッサリアトライアル和白店(ホームセンター)まで400m その他 ファミリーマート福岡和白五丁目店(コンビニ)まで487m その他 和白郵便局(郵便局)まで455m その他 マルキョウ和白店(スーパー)まで586m その他 サトー食鮮館和白店(スーパー)まで610m | ||
| 建物種別 | マンション | 建物構造 | SRC(鉄骨鉄筋コンクリート) |
この部屋の取扱い不動産会社
| 会社名 | リロの賃貸 福工大前駅店(株)ルーム(SUUMO経由) | ||
|---|---|---|---|
| 所在地 | 福岡県福岡市東区和白丘1-22-22 | 交通 | - |
| 営業時間 | 10:00~18:00 | 定休日 | - |
| 免許番号 | 福岡県知事14254 | 取引態様 | 仲介 |
| 不動産会社管理番号 | 100452803242 | 当社管理番号 | 89 |
| 所属団体 | (公社)福岡県宅地建物取引業協会会員 | ||
| 公正取引協議会 | (一社)九州不動産公正取引協議会加盟 | ||
| 取扱い物件情報 | 物件詳細へ | ||
※各種情報と現状に差異がある場合は、現状優先となります。問い合わせをすることで、より詳しい条件、情報を確認する事ができます。
提供:リロの賃貸 福工大前駅店(株)ルーム(SUUMO経由)
この物件が気になったら掲載期限まであと10日
サンリヤン和白V番館に条件(家賃・エリア)が近い物件一覧
| 写真 | 家賃 管理費等 | 敷金 礼金 | 間取り 専有面積 | 築年数 | 最寄り駅 所在地 | キープ | 詳細 |
|---|---|---|---|---|---|---|---|
マンション クレアールガーデンズ春日(3LDK/2階) | |||||||
![]() | 12万円 なし | 12万円 24万円 | 3LDK 85.39m2 | 築26年 | 福岡県春日市昇町6丁目 | 詳細を見る | |
マンション コンフォルト春日西Ⅱ(2LDK/1階) | |||||||
![]() | 9.4万円 5,000円 | 9.4万円 9.4万円 | 2LDK 60.94m2 | 築1年 | 福岡県春日市 | 詳細を見る | |
マンション グランドゥール・オニクラ(2LDK/4階) | |||||||
![]() | 7.4万円 4,000円 | なし 14.8万円 | 2LDK 65.07m2 | 築27年 | 西鉄天神大牟田線 井尻駅 徒歩25分 鹿児島本線 南福岡駅 徒歩27分 西鉄天神大牟田線 雑餉隈駅 徒歩32分 福岡県春日市須玖南5丁目 | 詳細を見る | |
アパート フラテッリ S(1LDK/3階) | |||||||
![]() | 7.4万円 2,800円 | なし 7.4万円 | 1LDK 42.2m2 | 築1年 | 鹿児島本線 笹原駅 徒歩25分 西鉄天神大牟田線 井尻駅 徒歩31分 鹿児島本線 南福岡駅 徒歩35分 福岡県大野城市仲畑1丁目 | 詳細を見る | |
マンション シグレア下大利(3LDK/5階) | |||||||
![]() | 14万円 6,000円 | なし 28万円 | 3LDK 70.08m2 | 新築 | 西鉄天神大牟田線 下大利駅 徒歩5分 JR鹿児島本線 水城駅 徒歩10分 福岡県大野城市下大利 | 詳細を見る | |
アパート 松尾コーポ(3LDK/2階) | |||||||
![]() | 7.9万円 なし | なし 7.9万円 | 3LDK 60.03m2 | 築38年 | 西鉄天神大牟田線 春日原駅 徒歩8分 JR鹿児島本線 春日駅(福岡) 徒歩10分 西鉄天神大牟田線 白木原駅 徒歩14分 福岡県春日市春日原東町 | 詳細を見る | |
アパート エコロジースクエア須玖南(3LDK/1階) | |||||||
![]() | 7.8万円 3,800円 | なし 11.7万円 | 3LDK 6835m2 | 築17年 | 西鉄天神大牟田線 井尻駅 徒歩19分 鹿児島本線 笹原駅 徒歩23分 鹿児島本線 南福岡駅 徒歩24分 福岡県春日市須玖南3丁目 | 詳細を見る | |
マンション PEACE COURT(3DK/2階) | |||||||
![]() | 7.3万円 3,000円 | なし 7.3万円 | 3DK 49.03m2 | 築16年 | 鹿児島本線 南福岡駅 徒歩18分 鹿児島本線 春日駅(福岡) 徒歩25分 西鉄天神大牟田線 雑餉隈駅 徒歩26分 福岡県春日市 | 詳細を見る | |








