賃貸マンション
ドゥーエ練馬IIの賃貸物件情報(1K/8階)
| 家賃 | 管理費等 | 敷金 | 礼金 | 間取り | 専有面積 |
|---|---|---|---|---|---|
| 9.3万円 | 7,000円 | 9.3万円 | 9.3万円 | 1K | 20.59m2 |
入居決定でお祝い金最大100,000円
Point
雨の日でも効率的に洗濯物を干せる浴室乾燥機付きの物件です。宅配ボックスに鍵をかけることができるので、置き配よりも盗難の心配がなくなります。防犯対策もバッチリなマンションタイプの物件です。
提供:ハウス・トゥ・ハウス・ネットサービス(株)板橋区役所前店(SUUMO経由)

詳細情報 ドゥーエ練馬II
物件紹介
ドゥーエ練馬IIは西武有楽町線練馬駅から徒歩3分にあり、駅近で通勤通学に便利なマンションです。
このお部屋は2階以上に位置しているので、通行人や周囲の住人からの視線が気になりにくく、防犯面でも安心。建物のエントランスはオートロックがついており、インターホンにはTVモニタもついているため、相手の顔を確認してから来客対応することができます。
おしゃれなデザイナーズ物件!フローリングのお部屋なのでお掃除もラクラク。室内には多目的に利用できる人気のロフトもあり、お部屋のアレンジも自在です。キッチンはシステムキッチン仕様になっていますので、お料理好きの方にもぴったり。バス・トイレは別なので、のんびりお風呂タイムも楽しめるでしょう。また、雨の日でも浴室乾燥機を使えば、お洗濯も問題ありません。
通信設備面では、インターネットが無料で使えるので、月々の出費を抑えられるのも魅力です。また、BSアンテナ・CSアンテナがありCATVにも対応しているので、おうち時間も充実するでしょう(別途工事、BS・CS・CATVの契約料等が必要な場合あり)。
建物にはエレベーターがついているので、重い荷物があっても安心。共用部には宅配ボックスが設定されているので、不在の時にも荷物を受け取ることができます。また、ペット飼育の相談ができますので、あなたの大切な家族の一員も快適に暮らせるか、ぜひ確認してみてください。
このお部屋は2階以上に位置しているので、通行人や周囲の住人からの視線が気になりにくく、防犯面でも安心。建物のエントランスはオートロックがついており、インターホンにはTVモニタもついているため、相手の顔を確認してから来客対応することができます。
おしゃれなデザイナーズ物件!フローリングのお部屋なのでお掃除もラクラク。室内には多目的に利用できる人気のロフトもあり、お部屋のアレンジも自在です。キッチンはシステムキッチン仕様になっていますので、お料理好きの方にもぴったり。バス・トイレは別なので、のんびりお風呂タイムも楽しめるでしょう。また、雨の日でも浴室乾燥機を使えば、お洗濯も問題ありません。
通信設備面では、インターネットが無料で使えるので、月々の出費を抑えられるのも魅力です。また、BSアンテナ・CSアンテナがありCATVにも対応しているので、おうち時間も充実するでしょう(別途工事、BS・CS・CATVの契約料等が必要な場合あり)。
建物にはエレベーターがついているので、重い荷物があっても安心。共用部には宅配ボックスが設定されているので、不在の時にも荷物を受け取ることができます。また、ペット飼育の相談ができますので、あなたの大切な家族の一員も快適に暮らせるか、ぜひ確認してみてください。
お金・契約の情報
※「-」と表示されているものは、実際は料金が発生するものもございます。詳細はお問い合わせください。
| 家賃 | 9.3万円 | 管理費・共益費 | 7,000円 |
|---|---|---|---|
| 敷金 | 9.3万円 | 礼金 | 9.3万円 |
| 入居決定でお祝い金最大100,000円 | |||
| 保証金 | - | 償却・敷引 | - |
| 住宅保険料 | - | 更新料 | - |
| 保証会社利用 | 必須 | 保証会社名 | - |
| 保証会社費用 | - | 保証会社備考 | 保証会社利用必 初回保証料40%、年間保証料10 000円/年 |
| 契約形態 | - | 契約期間 | - |
| 入居・引渡期間 | - | 現況 | - |
| 入居可能条件 | ペット相談 | ||
| 契約備考 | 1年未満の解約は賃料1ヶ月分の違約金あり。セキュリティ面は、オートロック・TVインターホンなど充実しているので、防犯対策もばっちりです。宅配ボックスがあるので再配達依頼をする手間が省けます。日中でなくても洗濯物を干せるため毎日忙しい人にもおすすめの浴室乾燥機を設置しております。2駅利用できる場所にあり、行き先に合わせて使い分けができます。 合計1.65万円(内訳:鍵交換代1.65万円) 更新料 新賃料1.00ヶ月分 1K ペット相談 普通借家2年 損保【1.8万円2年】 バストイレ別、バルコニー、エアコン、ガスコンロ対応、クロゼット、フローリング、TVインターホン、浴室乾燥機、オートロック、室内洗濯置、シューズボックス、システムキッチン、温水洗浄便座、エレベーター、2口コンロ、宅配ボックス、外壁タイル張り、防犯カメラ、ペット相談、2沿線利用可、ネット使用料不要、2駅利用可、3駅以上利用可、敷地内ごみ置き場、都市ガス、IT重説対応物件、初期費用カード決済可 入居日:'26年2月下旬 | ||
部屋の情報
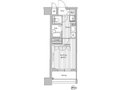
| 間取り | 1K | 専有面積 | 20.59m2 |
|---|---|---|---|
| 所在階 / 向き | 8階 / 東 | バルコニー面積 | - |
| 水道 / ガス | - | ||
| 設備 | バス・トイレ別、2階以上、オートロック、テレビドアホン、宅配ボックス、浴室乾燥機、インターネット対応、システムキッチン、エアコン、エレベーター、温水洗浄便座、バルコニー、フローリング、2口コンロ、コンロ:ガス、インターネット使用料無料、洗濯機:室内 | ||
| 当社物件ID | 101029254 | ||
建物の情報
| 建物名 | ドゥーエ練馬II | ||
|---|---|---|---|
| 所在地 | 東京都練馬区練馬 | ||
| 交通 | 西武有楽町線 練馬駅 徒歩3分 都営大江戸線 練馬駅 徒歩4分 都営大江戸線 豊島園駅 徒歩8分 | ||
| 階数 | 10階建 | 総戸数 | - |
| 築年月 | 2007年11月 / 築19年 | エレベーター | あり |
| 駐車場 | なし | バイク置き場 | - |
| 駐輪場 | - | 管理人/管理会社 | - |
| 周辺環境 | その他 ローソン 練馬豊玉北六丁目店(コンビニ)まで202m その他 練馬いちょう並木緑地(公園)まで396m その他 練馬警察署 練馬駅前交番(警察署・交番)まで384m その他 はなみずきのみち緑道(公園)まで529m その他 オオゼキ 練馬店(スーパー)まで165m その他 Coconeri(ココネリ)(ショッピングセンター)まで348m | ||
| 建物種別 | マンション | 建物構造 | RC(鉄筋コンクリート) |
この部屋の取扱い不動産会社
| 会社名 | ハウス・トゥ・ハウス・ネットサービス(株)志村坂上店(SUUMO経由) | ||
|---|---|---|---|
| 所在地 | 東京都板橋区志村1-14-111F | 交通 | - |
| 営業時間 | 10時~18時30分(1月~3月は9:30~) | 定休日 | 水曜日 (1月~3月無休) |
| 免許番号 | 国土交通大臣7400 | 取引態様 | 仲介 |
| 不動産会社管理番号 | 100478758203 | 当社管理番号 | 89 |
| 所属団体 | (公社)全日本不動産協会東京都本部会員 | ||
| 公正取引協議会 | (公社)首都圏不動産公正取引協議会加盟 | ||
| 取扱い物件情報 | 物件詳細へ | ||
※各種情報と現状に差異がある場合は、現状優先となります。問い合わせをすることで、より詳しい条件、情報を確認する事ができます。
提供:ハウス・トゥ・ハウス・ネットサービス(株)志村坂上店(SUUMO経由)
この物件が気になったら掲載期限まであと12日
ドゥーエ練馬IIに条件(家賃・エリア)が近い物件一覧
| 写真 | 家賃 管理費等 | 敷金 礼金 | 間取り 専有面積 | 築年数 | 最寄り駅 所在地 | キープ | 詳細 |
|---|---|---|---|---|---|---|---|
マンション リヴシティ中野(1K/4階) | |||||||
![]() | 9.9万円 1万円 | なし 9.9万円 | 1K 20.31m2 | 築14年 | 東京メトロ丸ノ内線 新中野駅 徒歩10分 東京メトロ東西線 中野駅(東京) 徒歩11分 都営大江戸線 中野坂上駅 徒歩17分 東京都中野区中野 | 詳細を見る | |
アパート マルバ上板橋(ワンルーム/1階) | |||||||
![]() | 7万円 4,000円 | なし 7万円 | ワンルーム 11.5m2 | 築1年 | 東武東上線 上板橋駅 徒歩8分 東武東上線 東武練馬駅 徒歩20分 都営三田線 志村三丁目駅 徒歩21分 東京都板橋区中台 | 詳細を見る | |
アパート レオネクストミーヤ前野(1K/2階) | |||||||
![]() | 9.6万円 5,500円 | なし 9.6万円 | 1K 31.32m2 | 築14年 | 東京都三田線 志村三丁目駅 徒歩8分 東京都板橋区前野町4丁目 | 詳細を見る | |
マンション CITY WALK新江古田DUE(ワンルーム/2階) | |||||||
![]() | 8.7万円 5,000円 | なし なし | ワンルーム 18.02m2 | 築1年 | 東京都大江戸線 新江古田駅 徒歩5分 東京都中野区江原町2丁目 | 詳細を見る | |
アパート BONHEUR(1LDK/1階) | |||||||
![]() | 11.6万円 2,000円 | 11.6万円 23.2万円 | 1LDK 31.92m2 | 築11年 | 東京地下鉄丸ノ内線 東高円寺駅 徒歩10分 東京地下鉄丸ノ内線 新高円寺駅 徒歩13分 東京都杉並区和田3丁目 | 詳細を見る | |
マンション FORTUNA目白(1K/3階) | |||||||
![]() | 7.7万円 8,000円 | なし 7.7万円 | 1K 21.09m2 | 築22年 | 西武池袋線 椎名町駅 徒歩5分 JR山手線 目白駅 徒歩12分 東京メトロ有楽町線 要町駅 徒歩16分 東京都豊島区目白 | 詳細を見る | |
マンション スカイコート池袋第5(ワンルーム/4階) | |||||||
![]() | 6.55万円 6,500円 | 6.55万円 なし | ワンルーム 16.45m2 | 築28年 | 東武東上線 北池袋駅 徒歩5分 JR山手線 池袋駅 徒歩15分 JR埼京線 板橋駅 徒歩15分 東京都豊島区池袋本町 | 詳細を見る | |
マンション CORUJA BRANCA(ワンルーム/2階) | |||||||
![]() | 8.1万円 4,000円 | なし 8.1万円 | ワンルーム 20.3m2 | 築11年 | 山手線 池袋駅 徒歩14分 東京都豊島区上池袋1丁目 | 詳細を見る | |









/105x80-f1-q70-wp1)