賃貸マンション
EFFORT S7の賃貸物件情報(1LDK/1階)
| 家賃 | 管理費等 | 敷金 | 礼金 | 間取り | 専有面積 |
|---|---|---|---|---|---|
| 5.4万円 | 5,000円 | なし | なし | 1LDK | 38m2 |
入居決定でお祝い金最大100,000円
Point
☆地元で愛される不動産屋を目指してます☆即日ご案内可能です!
提供:アパマンショップ円山店

詳細情報 EFFORT S7
物件紹介
EFFORT S7は札幌市軌道線西線6条駅から徒歩5分にあり、駅近で通勤通学に便利なマンションです。
建物のエントランスはオートロックがついており、インターホンにはTVモニタもついているため、相手の顔を確認してから来客対応することができます。
おしゃれなデザイナーズ物件!人気の角部屋で周囲の居住者の生活音も気になりにくく、また、フローリングのお部屋なのでお掃除もラクラク。室内にはウォークインクローゼットがありますので、たくさんの荷物も効率的に収納ができます。キッチンはシステムキッチン仕様になっていますので、お料理好きの方にもぴったり。また、バス・トイレは別で、のんびりお風呂タイムも楽しめるでしょう。
通信設備面では、インターネットが無料で使えるので、月々の出費を抑えられるのも魅力です。また、BSアンテナ・CSアンテナがありCATVにも対応しているので、おうち時間も充実するでしょう(別途工事、BS・CS・CATVの契約料等が必要な場合あり)。
建物にはエレベーターがついているので、重い荷物があっても安心。共用部には宅配ボックスが設定されているので、不在の時にも荷物を受け取ることができます。
建物のエントランスはオートロックがついており、インターホンにはTVモニタもついているため、相手の顔を確認してから来客対応することができます。
おしゃれなデザイナーズ物件!人気の角部屋で周囲の居住者の生活音も気になりにくく、また、フローリングのお部屋なのでお掃除もラクラク。室内にはウォークインクローゼットがありますので、たくさんの荷物も効率的に収納ができます。キッチンはシステムキッチン仕様になっていますので、お料理好きの方にもぴったり。また、バス・トイレは別で、のんびりお風呂タイムも楽しめるでしょう。
通信設備面では、インターネットが無料で使えるので、月々の出費を抑えられるのも魅力です。また、BSアンテナ・CSアンテナがありCATVにも対応しているので、おうち時間も充実するでしょう(別途工事、BS・CS・CATVの契約料等が必要な場合あり)。
建物にはエレベーターがついているので、重い荷物があっても安心。共用部には宅配ボックスが設定されているので、不在の時にも荷物を受け取ることができます。
お金・契約の情報
※「-」と表示されているものは、実際は料金が発生するものもございます。詳細はお問い合わせください。
| 家賃 | 5.4万円 | 管理費・共益費 | 5,000円 |
|---|---|---|---|
| 敷金 | なし | 礼金 | なし |
| 入居決定でお祝い金最大100,000円 | |||
| 保証金 | - | 償却・敷引 | - |
| 住宅保険料 | 1.7万円(2年) | 更新料 | - |
| 保証会社利用 | 必須 | 保証会社名 | 日本セーフティー |
| 保証会社費用 | - | 保証会社備考 | 初回:保証人あり家賃総額の40%(下限16,000円)、保証人なし 家賃総額の50%(下限20,000円)、月額:なし、更新料:1万円/年 |
| 契約形態 | - | 契約期間 | 2年 |
| 入居・引渡期間 | 2026年01月下旬 | 現況 | - |
| 契約備考 | 室内清掃費用 27500円 24時間サポート料 800円 | ||
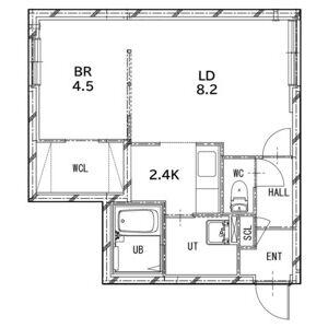
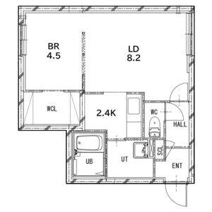
部屋の情報
| 間取り | 1LDK | 専有面積 | 38m2 |
|---|---|---|---|
| 所在階 / 向き | 1階 / 北 | バルコニー面積 | - |
| 水道 / ガス | ガス【プロパン】 | ||
| 設備 | バス・トイレ別、オートロック、テレビドアホン、宅配ボックス、ウォークインクローゼット、インターネット対応、システムキッチン、エレベーター、温水洗浄便座、コンロ:ガス、CATV、BSアンテナ、インターネット使用料無料、冷房 | ||
| 当社物件ID | 157292710 | ||
建物の情報
| 建物名 | EFFORT S7 | ||
|---|---|---|---|
| 所在地 | 北海道札幌市中央区南七条西12丁目 | ||
| 交通 | 札幌市軌道線 西線6条駅 徒歩5分 | ||
| 階数 | 4階建 | 総戸数 | 19戸 |
| 築年月 | 2024年08月 / 築2年 | エレベーター | あり |
| 駐車場 | - | バイク置き場 | - |
| 駐輪場 | あり | 管理人/管理会社 | - |
| 周辺環境 | 保育園 保育園めるる 徒歩6分(431m) その他 セブンイレブン 徒歩3分(169m) その他 ローソン 徒歩2分(139m) その他 セイコーマート 徒歩5分(352m) その他 ガスト 徒歩4分(280m) その他 イーグル 徒歩4分(300m) その他 まいばすけっと 徒歩4分(303m) その他 セイコーマート 徒歩7分(511m) | ||
| 建物種別 | マンション | 建物構造 | RC(鉄筋コンクリート) |
この部屋の取扱い不動産会社
| 会社名 | アパマンショップ札幌西28丁目店 | ||
|---|---|---|---|
| 所在地 | 北海道札幌市中央区北5条西26丁目 1-7ベンビル1F | 交通 | 札幌市東西線西28丁目から徒歩1分 |
| 営業時間 | 09:00〜18:00(オンライン見学可能です!) | 定休日 | - |
| 免許番号 | 北海道知事石狩(2)8831 | 取引態様 | 仲介 |
| 不動産会社管理番号 | 102046180 | 当社管理番号 | 4 |
| 所属団体 | (公社)北海道宅地建物取引業協会 | ||
| 公正取引協議会 | (一社) 北海道不動産公正取引協議会加盟 | ||
| 取扱い物件情報 | 物件詳細へ | ||
※各種情報と現状に差異がある場合は、現状優先となります。問い合わせをすることで、より詳しい条件、情報を確認する事ができます。
提供:アパマンショップ札幌西28丁目店
この物件が気になったら掲載期限まであと12日
EFFORT S7に条件(家賃・エリア)が近い物件一覧
| 写真 | 家賃 管理費等 | 敷金 礼金 | 間取り 専有面積 | 築年数 | 最寄り駅 所在地 | キープ | 詳細 |
|---|---|---|---|---|---|---|---|
マンション グランドハイツ当別(ワンルーム/2階) | |||||||
![]() | 3.5万円 2,000円 | なし なし | ワンルーム 29.12m2 | 築41年 | 札沼線 当別駅 徒歩2分 北海道石狩郡当別町園生 | 詳細を見る | |
アパート レオパレス 野幌(1K/2階) | |||||||
![]() | 3.4万円 6,500円 | なし 3.4万円 | 1K 23.18m2 | 築18年 | 北海道江別市野幌住吉町 | 詳細を見る | |
アパート レオパレスノースERLY(1K/2階) | |||||||
![]() | 3.8万円 4,000円 | なし なし | 1K 23.18m2 | 築21年 | 函館本線 森林公園駅(北海道) 徒歩15分 北海道江別市文京台 | 詳細を見る | |
マンション クラッセ山鼻(1LDK/6階) | |||||||
![]() | 5.2万円 4,000円 | なし なし | 1LDK 31.15m2 | 築20年 | 札幌市軌道線 西線14条駅 徒歩4分 北海道札幌市中央区南十五条西13丁目 | 詳細を見る | |
マンション RESITRUST(1LDK/3階) | |||||||
![]() | 5.9万円 4,000円 | 5.9万円 なし | 1LDK 30.5m2 | 築2年 | 地下鉄東豊線 豊水すすきの駅 徒歩5分 地下鉄南北線 中島公園駅 徒歩6分 地下鉄南北線 すすきの駅(市営) 徒歩8分 北海道札幌市中央区南七条西 | 詳細を見る | |
マンション S-RESIDENCE医大南ALTIER(1LDK/3階) | |||||||
![]() | 6.3万円 5,000円 | なし なし | 1LDK 30.92m2 | 築1年 | 札幌市電 西線6条駅 徒歩6分 地下鉄東西線 西18丁目駅 徒歩8分 札幌市電 西15丁目駅 徒歩10分 北海道札幌市中央区南五条西 | 詳細を見る | |
マンション ノール山鼻(1LDK/6階) | |||||||
![]() | 4.5万円 5,000円 | なし なし | 1LDK 31.99m2 | 築36年 | 札幌市電 西線11条駅 徒歩7分 札幌市電 中島公園通駅 徒歩7分 地下鉄南北線 中島公園駅 徒歩10分 北海道札幌市中央区南十一条西 | 詳細を見る | |
アパート メゾンド新光Ⅲ(2LDK/1階) | |||||||
![]() | 3.5万円 なし | なし 3.5万円 | 2LDK 47.85m2 | 築40年 | 北海道小樽市新光5丁目 | 詳細を見る | |



/105x80-f1-q70-wp1)




