賃貸アパート
リブライト湘南の賃貸物件情報(1K/2階)
| 家賃 | 管理費等 | 敷金 | 礼金 | 間取り | 専有面積 |
|---|---|---|---|---|---|
| 6.7万円 | 5,000円 | 6.7万円 | 6.7万円 | 1K | 24.84m2 |
入居決定でお祝い金最大100,000円
- 保証金
- -
- 償却・敷引
- -
- 築年数
- 築5年
- 所在階
- 2階
- 向き
- 南
Point
★安心のTVモニター付きオートロック対応♪★お部屋の詳細、見学希望等はタウンハウジング神奈川までお気軽にお問合せください♪★
提供:(株)タウンハウジング神奈川 湘南台店(SUUMO経由)

詳細情報 リブライト湘南
物件紹介
リブライト湘南は小田急江ノ島線六会日大前駅から徒歩5分にあり、駅近で通勤通学に便利なアパートです。
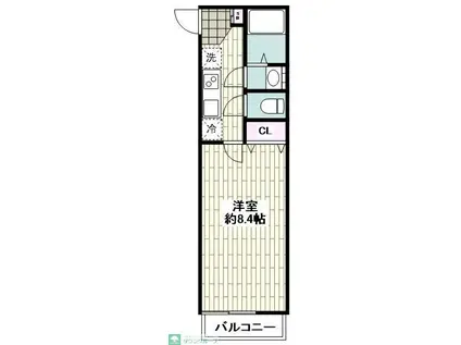
このお部屋は2階以上に位置しているので、通行人や周囲の住人からの視線が気になりにくく、防犯面でも安心。建物のエントランスはオートロックがついており、インターホンにはTVモニタもついているため、相手の顔を確認してから来客対応することができます。
人気の南向き・フローリングのお部屋。角部屋でもあるため、周囲の居住者の生活音も気になりにくい場所です。キッチンはシステムキッチン仕様になっていますので、お料理好きの方にもぴったり。バス・トイレは別なので、のんびりお風呂タイムも楽しめるでしょう。また、雨の日でも浴室乾燥機を使えば、お洗濯も問題ありません。
通信設備面では、インターネットが無料で使えるので、月々の出費を抑えられるのも魅力です(別途工事等が必要な場合あり)。
共用部には宅配ボックスが設定されているので、不在の時にも荷物を受け取ることができます。
このお部屋は2階以上に位置しているので、通行人や周囲の住人からの視線が気になりにくく、防犯面でも安心。建物のエントランスはオートロックがついており、インターホンにはTVモニタもついているため、相手の顔を確認してから来客対応することができます。
人気の南向き・フローリングのお部屋。角部屋でもあるため、周囲の居住者の生活音も気になりにくい場所です。キッチンはシステムキッチン仕様になっていますので、お料理好きの方にもぴったり。バス・トイレは別なので、のんびりお風呂タイムも楽しめるでしょう。また、雨の日でも浴室乾燥機を使えば、お洗濯も問題ありません。
通信設備面では、インターネットが無料で使えるので、月々の出費を抑えられるのも魅力です(別途工事等が必要な場合あり)。
共用部には宅配ボックスが設定されているので、不在の時にも荷物を受け取ることができます。
お金・契約の情報
※「-」と表示されているものは、実際は料金が発生するものもございます。詳細はお問い合わせください。
| 家賃 | 6.7万円 | 管理費・共益費 | 5,000円 |
|---|---|---|---|
| 敷金 | 6.7万円 | 礼金 | 6.7万円 |
| 入居決定でお祝い金最大100,000円 | |||
| 保証金 | - | 償却・敷引 | - |
| 住宅保険料 | - | 更新料 | - |
| 保証会社利用 | 必須 | 保証会社名 | リクルートフォレントインシュア |
| 保証会社費用 | - | 保証会社備考 | オリコフォレントインシュア利用必 賃貸保証料:0.35ヶ月 初回総賃料の35%、月額1.8% |
| 契約形態 | - | 契約期間 | - |
| 入居・引渡期間 | - | 現況 | - |
| 契約備考 | 巡回管理/★お部屋探しはタウンハウジング神奈川にお任せ下さい!【地域密着】・【懇切丁寧】・【一生懸命】を心掛けております★弊社独自のネットワークにより取扱い物件数には自信があります!他社様ネット掲載物件もご紹介・ご案内可能です。まとめてお車でご案内致しますのでぜひお役立てください★お引越しに関する事ならまずはタウンハウジング神奈川までお気軽にお問合せください♪★ 合計3.63万円(内訳:ファイテック(消火剤):5500円/ムシ駆除サービス:16500円/除菌抗菌施工:14300円) 更新料新賃料(ヶ月):1.00ヶ月、TPC月額会費:1540円/月 1K 普通借家2年 損保【1.5万円2年】 バストイレ別、バルコニー、エアコン、ガスコンロ対応、クロゼット、フローリング、TVインターホン、浴室乾燥機、オートロック、室内洗濯置、陽当り良好、シューズボックス、システムキッチン、南向き、追焚機能浴室、角住戸、温水洗浄便座、脱衣所、洗面所独立、2口コンロ、駐輪場、宅配ボックス、光ファイバー、独立型キッチン、全居室収納、保証人不要、敷金1ヶ月、ガスレンジ付、2沿線利用可、駅まで平坦、ネット使用料不要、平坦地、一部フローリング、始発駅、2駅利用可、駅徒歩5分以内、駅徒歩10分以内、当社管理物件、洗面所にドア、南面バルコニー、高速ネット対応、LAN、礼金1ヶ月、IT重説対応物件、初期費用カード決済可、通風良好 入居日:'26年2月中旬 | ||
部屋の情報
| 間取り | 1K | 専有面積 | 24.84m2 |
|---|---|---|---|
| 所在階 / 向き | 2階 / 南 | バルコニー面積 | - |
| 水道 / ガス | - | ||
| 設備 | バス・トイレ別、2階以上、オートロック、テレビドアホン、宅配ボックス、浴室乾燥機、追い焚き、インターネット対応、システムキッチン、エアコン、温水洗浄便座、南向き、角部屋、バルコニー、フローリング、洗髪洗面化粧台、2口コンロ、コンロ:ガス、インターネット使用料無料、洗濯機:室内 | ||
| 当社物件ID | 101755016 | ||
建物の情報
| 建物名 | リブライト湘南 | ||
|---|---|---|---|
| 所在地 | 神奈川県藤沢市亀井野 | ||
| 交通 | 小田急江ノ島線 六会日大前駅 徒歩5分 小田急江ノ島線 湘南台駅 徒歩18分 ブルーライン 下飯田駅 車で8分 | ||
| 階数 | 3階建 | 総戸数 | 21戸 |
| 築年月 | 2021年12月 / 築5年 | エレベーター | - |
| 駐車場 | 近隣 300m11000円 | バイク置き場 | - |
| 駐輪場 | あり | 管理人/管理会社 | - |
| 周辺環境 | その他 ユニクロ湘南台店(ショッピングセンター)まで530m その他 ヨークマート六会店(スーパー)まで370m その他 業務スーパー湘南台店(スーパー)まで1310m その他 セブンイレブン藤沢亀井野北店(コンビニ)まで320m その他 ファミリーマート六会日大駅前店(コンビニ)まで530m その他 ウェルシア六会日大前駅東口店(ドラッグストア)まで410m | ||
| 建物種別 | アパート | 建物構造 | 木造 |
この部屋の取扱い不動産会社
| 会社名 | (株)タウンハウジング神奈川 湘南台店(SUUMO経由) | ||
|---|---|---|---|
| 所在地 | 神奈川県藤沢市湘南台1-12-7 カーサ湘南台101 | 交通 | - |
| 営業時間 | AM10:00~PM7:00 | 定休日 | 水曜日 |
| 免許番号 | 国土交通大臣9928 | 取引態様 | 仲介 |
| 不動産会社管理番号 | 100479671235 | 当社管理番号 | 89 |
| 所属団体 | (公社)神奈川県宅地建物取引業協会会員 | ||
| 公正取引協議会 | (公社)首都圏不動産公正取引協議会加盟 | ||
| 取扱い物件情報 | 物件詳細へ | ||
※各種情報と現状に差異がある場合は、現状優先となります。問い合わせをすることで、より詳しい条件、情報を確認する事ができます。
提供:(株)タウンハウジング神奈川 湘南台店(SUUMO経由)
この物件が気になったら掲載期限まであと10日
リブライト湘南に条件(家賃・エリア)が近い物件一覧
| 写真 | 家賃 管理費等 | 敷金 礼金 | 間取り 専有面積 | 築年数 | 最寄り駅 所在地 | キープ | 詳細 |
|---|---|---|---|---|---|---|---|
アパート ピュアハウス鎌倉(2K/2階) | |||||||
![]() | 6.9万円 なし | 13.8万円 6.9万円 | 2K 32.4m2 | 築38年 | 江ノ島電鉄線 由比ケ浜駅 徒歩12分 JR横須賀線 鎌倉駅 徒歩17分 神奈川県鎌倉市材木座 | 詳細を見る | |
アパート リベルール戸塚(1K/1階) | |||||||
![]() | 4.9万円 3,000円 | 4.9万円 なし | 1K 24.22m2 | 築35年 | JR東海道本線 戸塚駅 徒歩9分 ブルーライン 舞岡駅 徒歩22分 神奈川県横浜市戸塚区上倉田町 | 詳細を見る | |
アパート ギャロップ常盤台(1K/3階) | |||||||
![]() | 6万円 3,000円 | なし なし | 1K 16.8m2 | 築4年 | 相模鉄道本線 和田町駅 徒歩14分 神奈川県横浜市保土ケ谷区常盤台 | 詳細を見る | |
アパート リブリ・HALEKULANIII(1K/2階) | |||||||
![]() | 6.8万円 4,000円 | なし 3.4万円 | 1K 22.35m2 | 築11年 | ブルーライン 阪東橋駅 徒歩11分 京急本線 黄金町駅 徒歩15分 ブルーライン 伊勢佐木長者町駅 徒歩20分 神奈川県横浜市南区中村町 | 詳細を見る | |
アパート エルミタージュⅡ(1K/1階) | |||||||
![]() | 8.05万円 4,400円 | なし 8.05万円 | 1K 27.02m2 | 築1年 | 横浜線 小机駅 徒歩3分 神奈川県横浜市港北区小机町 | 詳細を見る | |
マンション 荻野ビル(1LDK/4階) | |||||||
![]() | 10.8万円 7,000円 | 10.8万円 10.8万円 | 1LDK 44.64m2 | 築38年 | 京急本線 上大岡駅 徒歩4分 ブルーライン 港南中央駅 徒歩8分 ブルーライン 弘明寺駅(横浜市営) 徒歩26分 神奈川県横浜市港南区上大岡西 | 詳細を見る | |
アパート ウィステリア菊名(1K/1階) | |||||||
![]() | 8.4万円 3,000円 | 8.4万円 8.4万円 | 1K 22.35m2 | 築1年 | 東急東横線 菊名駅 徒歩1分 JR横浜線 菊名駅 徒歩1分 神奈川県横浜市港北区菊名 | 詳細を見る | |
アパート みどり荘(2K/1階) | |||||||
![]() | 5万円 なし | 5万円 5万円 | 2K 28.92m2 | 築64年 | 京浜急行電鉄本線 上大岡駅 徒歩19分 神奈川県横浜市南区別所4丁目 | 詳細を見る | |









