賃貸アパート
メテオールの賃貸物件情報(1LK/1階)
| 家賃 | 管理費等 | 敷金 | 礼金 | 間取り | 専有面積 |
|---|---|---|---|---|---|
| 13.6万円 | 5,000円 | 13.6万円 | 13.6万円 | 1LK | 36.64m2 |
入居決定でお祝い金最大100,000円
- 保証金
- -
- 償却・敷引
- -
- 築年数
- 新築
- 所在階
- 1階
- 向き
- 南
Point
小さな1LDK!玄関から見えないベッドスペースや充分な収納スペースの確保!オートロック、防犯カメラ、宅配ボックス、インターネット無料物件!現在建築中のため、QRコードから室内イメージを確認できます!
提供:(株)Den(SUUMO経由)

詳細情報 メテオール
物件紹介
メテオールはJR南武線向河原駅から徒歩10分にあり、駅近で通勤通学に便利なアパートです。
建物のエントランスはオートロックがついており、防犯性が高くなっています。
人気の南向きのお部屋。バス・トイレ別の仕様で、のんびりお風呂タイムも楽しめます。
通信設備面では、インターネットが無料で使えるので、月々の出費を抑えられるのも魅力です(別途工事等が必要な場合あり)。
共用部には宅配ボックスが設定されているので、不在の時にも荷物を受け取ることができます。
建物のエントランスはオートロックがついており、防犯性が高くなっています。
人気の南向きのお部屋。バス・トイレ別の仕様で、のんびりお風呂タイムも楽しめます。
通信設備面では、インターネットが無料で使えるので、月々の出費を抑えられるのも魅力です(別途工事等が必要な場合あり)。
共用部には宅配ボックスが設定されているので、不在の時にも荷物を受け取ることができます。
お金・契約の情報
※「-」と表示されているものは、実際は料金が発生するものもございます。詳細はお問い合わせください。
| 家賃 | 13.6万円 | 管理費・共益費 | 5,000円 |
|---|---|---|---|
| 敷金 | 13.6万円 | 礼金 | 13.6万円 |
| 入居決定でお祝い金最大100,000円 | |||
| 保証金 | - | 償却・敷引 | - |
| 住宅保険料 | - | 更新料 | - |
| 保証会社利用 | 必須 | 保証会社名 | - |
| 保証会社費用 | - | 保証会社備考 | 保証会社利用必 Jリース初回50% 以後1年ごと1万円 |
| 契約形態 | 定期借家 | 契約期間 | 2年 |
| 入居・引渡期間 | - | 現況 | - |
| 契約備考 | 巡回管理/・再契約可能物件・駐輪場1台当たり月額1000円※1部屋1台のみ・専任媒介 1LK 定期借家2年 損保【2万円2年】 バストイレ別、バルコニー、エアコン、オートロック、南向き、追焚機能浴室、洗面所独立、駐輪場、宅配ボックス、防犯カメラ、ネット使用料不要、築2年以内、平坦地、3駅以上利用可、当社管理物件 入居日:'26年3月上旬 | ||
部屋の情報
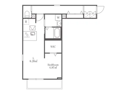
| 間取り | 1LK | 専有面積 | 36.64m2 |
|---|---|---|---|
| 所在階 / 向き | 1階 / 南 | バルコニー面積 | - |
| 水道 / ガス | - | ||
| 設備 | バス・トイレ別、オートロック、宅配ボックス、追い焚き、インターネット対応、エアコン、南向き、バルコニー、洗髪洗面化粧台、インターネット使用料無料 | ||
| 当社物件ID | 160265539 | ||
建物の情報
| 建物名 | メテオール | ||
|---|---|---|---|
| 所在地 | 神奈川県川崎市中原区中丸子 | ||
| 交通 | JR南武線 向河原駅 徒歩10分 JR南武線 平間駅 徒歩13分 JR横須賀線 武蔵小杉駅 徒歩17分 | ||
| 階数 | 2階建 | 総戸数 | 6戸 |
| 築年月 | 2026年03月 / 新築 | エレベーター | - |
| 駐車場 | なし | バイク置き場 | - |
| 駐輪場 | あり | 管理人/管理会社 | - |
| 周辺環境 | その他 まいばすけっと中丸子店(スーパー)まで271m その他 ファミリーマート川崎中丸子店(コンビニ)まで312m その他 中丸子緑道緑地(公園)まで135m その他 川崎上平間郵便局(郵便局)まで411m | ||
| 建物種別 | アパート | 建物構造 | 軽量鉄骨造 |
この部屋の取扱い不動産会社
| 会社名 | (株)Den(SUUMO経由) | ||
|---|---|---|---|
| 所在地 | 神奈川県川崎市高津区久本3-1-14 eMPARKBLDG.3階 | 交通 | - |
| 営業時間 | 午前10時~午後18時 | 定休日 | 水曜日、日曜日、祝日 |
| 免許番号 | 神奈川県知事31378 | 取引態様 | 仲介 |
| 不動産会社管理番号 | 100484405919 | 当社管理番号 | 89 |
| 所属団体 | (公社)神奈川県宅地建物取引業協会会員 | ||
| 公正取引協議会 | (公社)首都圏不動産公正取引協議会加盟 | ||
| 取扱い物件情報 | 物件詳細へ | ||
※各種情報と現状に差異がある場合は、現状優先となります。問い合わせをすることで、より詳しい条件、情報を確認する事ができます。
提供:(株)Den(SUUMO経由)
この物件が気になったら掲載期限まであと9日
メテオールに条件(家賃・エリア)が近い物件一覧
| 写真 | 家賃 管理費等 | 敷金 礼金 | 間取り 専有面積 | 築年数 | 最寄り駅 所在地 | キープ | 詳細 |
|---|---|---|---|---|---|---|---|
マンション エルム大倉山第9(2DK/1階) | |||||||
![]() | 9万円 3,800円 | 9万円 なし | 2DK 41.07m2 | 築36年 | ブルーライン 新羽駅 徒歩7分 東急東横線 大倉山駅(神奈川) 徒歩13分 ブルーライン 北新横浜駅 徒歩23分 神奈川県横浜市港北区大倉山 | 詳細を見る | |
マンション リルシア伊勢佐木長者町(ワンルーム/9階) | |||||||
![]() | 9.35万円 1万円 | なし 9.35万円 | ワンルーム 22.77m2 | 築1年 | ブルーライン 阪東橋駅 徒歩5分 京急本線 黄金町駅 徒歩6分 神奈川県横浜市中区伊勢佐木町 | 詳細を見る | |
アパート D PAINA 小机町Ⅱ(1LDK/3階) | |||||||
![]() | 13.5万円 5,500円 | なし 27万円 | 1LDK 40.24m2 | 新築 | 横浜線 小机駅 徒歩3分 神奈川県横浜市港北区小机町 | 詳細を見る | |
マンション カーネルパーク(1LDK/4階) | |||||||
![]() | 11.5万円 5,000円 | なし なし | 1LDK 39.82m2 | 築12年 | グリーンライン 北山田駅(神奈川) 徒歩1分 ブルーライン センター北駅 徒歩22分 神奈川県横浜市都筑区北山田 | 詳細を見る | |
マンション セジョリ横浜ウエストⅡ(1K/2階) | |||||||
![]() | 8.6万円 1万円 | なし なし | 1K 21m2 | 築1年 | 相鉄本線 西横浜駅 徒歩9分 京急本線 戸部駅 徒歩9分 JR京浜東北線 横浜駅 徒歩19分 神奈川県横浜市西区平沼 | 詳細を見る | |
アパート 本牧町1丁目279アパート 1階(2LDK/1階) | |||||||
![]() | 9.5万円 なし | 19万円 なし | 2LDK 48.85m2 | 築53年 | JR根岸線 山手駅 徒歩22分 神奈川県横浜市中区本牧町 | 詳細を見る | |
マンション メゾン林(3LDK/1階) | |||||||
![]() | 10万円 なし | なし なし | 3LDK 78.07m2 | 築41年 | 相鉄本線 和田町駅 徒歩3分 相鉄本線 上星川駅 徒歩7分 相鉄新横浜線 羽沢横浜国大駅 徒歩33分 神奈川県横浜市保土ケ谷区仏向町 | 詳細を見る | |
アパート グラン レガーロ上星川I(1LDK/3階) | |||||||
![]() | 8.5万円 3,000円 | 8.5万円 17万円 | 1LDK 32.87m2 | 築8年 | 相鉄本線 上星川駅 徒歩6分 相鉄本線 和田町駅 徒歩8分 相鉄新横浜線 羽沢横浜国大駅 徒歩31分 神奈川県横浜市保土ケ谷区仏向町 | 詳細を見る | |









