賃貸マンション
ラフィネ大崎の賃貸物件情報(2LDK/4階)
| 家賃 | 管理費等 | 敷金 | 礼金 | 間取り | 専有面積 |
|---|---|---|---|---|---|
| 21.8万円 | 1.2万円 | 21.8万円 | 21.8万円 | 2LDK | 61.84m2 |
入居決定でお祝い金最大100,000円
Point
東京の高級賃貸・ファミリー物件の仲介・管理・売買をお探しの方は、高級物件専門のプライムコーポレーションへ/海外転勤・国内転勤・入居審査・条件交渉等お任せ下さい/オンライン内見・オンライン契約対応可能
提供:(株)プライムコーポレーション中目黒店(SUUMO経由)

詳細情報 ラフィネ大崎
物件紹介
ラフィネ大崎はJR山手線大崎駅から徒歩4分にあり、駅近で通勤通学に便利なマンションです。
このお部屋は2階以上に位置しているので、通行人や周囲の住人からの視線が気になりにくく、防犯面でも安心。建物のエントランスはオートロックがついており、インターホンにはTVモニタもついているため、相手の顔を確認してから来客対応することができます。
フローリングのお部屋なのでお掃除もラクラク。キッチンはシステムキッチン仕様になっていますので、お料理好きの方にもぴったり。また、バス・トイレは別で、のんびりお風呂タイムも楽しめるでしょう。
建物にはエレベーターがついているので、重い荷物があっても安心。共用部には宅配ボックスが設定されているので、不在の時にも荷物を受け取ることができます。
このお部屋は2階以上に位置しているので、通行人や周囲の住人からの視線が気になりにくく、防犯面でも安心。建物のエントランスはオートロックがついており、インターホンにはTVモニタもついているため、相手の顔を確認してから来客対応することができます。
フローリングのお部屋なのでお掃除もラクラク。キッチンはシステムキッチン仕様になっていますので、お料理好きの方にもぴったり。また、バス・トイレは別で、のんびりお風呂タイムも楽しめるでしょう。
建物にはエレベーターがついているので、重い荷物があっても安心。共用部には宅配ボックスが設定されているので、不在の時にも荷物を受け取ることができます。
お金・契約の情報
※「-」と表示されているものは、実際は料金が発生するものもございます。詳細はお問い合わせください。
| 家賃 | 21.8万円 | 管理費・共益費 | 1.2万円 |
|---|---|---|---|
| 敷金 | 21.8万円 | 礼金 | 21.8万円 |
| 入居決定でお祝い金最大100,000円 | |||
| 保証金 | - | 償却・敷引 | - |
| 住宅保険料 | - | 更新料 | - |
| 保証会社利用 | 必須 | 保証会社名 | - |
| 保証会社費用 | - | 保証会社備考 | 保証会社利用必 初回保証時:50%、月額1.5% |
| 契約形態 | - | 契約期間 | - |
| 入居・引渡期間 | - | 現況 | - |
| 契約備考 | 室内清掃費:100650円/エアコン清掃費用:1台16500円/短期解約違約金有/芳水小学校学区域/駐車場:要確認/東京の高級賃貸や高級不動産の仲介・管理・売買をお探しの方は、高級物件専門のプライムコーポレーションへお気軽にご相談下さい。分譲賃貸マンション、戸建、テラスハウス、タワーマンション、デザイナーズ物件などの豊富なファミリー物件情報を取り揃えております。 合計3.3万円(内訳:鍵交換費用33000円) 2LDK 普通借家2年 損保【2.97万円2年】 バストイレ別、バルコニー、エアコン、ガスコンロ対応、クロゼット、フローリング、TVインターホン、オートロック、室内洗濯置、シューズボックス、システムキッチン、追焚機能浴室、温水洗浄便座、エレベーター、洗面所独立、洗面化粧台、駐輪場、宅配ボックス、防犯カメラ、全居室収納、分譲賃貸、全居室洋室、敷金1ヶ月、バイク置場、2沿線利用可、LDK15畳以上、3駅以上利用可、駅徒歩5分以内、敷地内ごみ置き場、都市ガス、礼金1ヶ月、IT重説対応物件、初期費用カード決済可 入居日:'26年1月上旬 | ||
部屋の情報
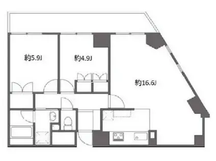
| 間取り | 2LDK | 専有面積 | 61.84m2 |
|---|---|---|---|
| 所在階 / 向き | 4階 / 西 | バルコニー面積 | - |
| 水道 / ガス | - | ||
| 設備 | バス・トイレ別、2階以上、オートロック、テレビドアホン、宅配ボックス、追い焚き、システムキッチン、エアコン、エレベーター、温水洗浄便座、バルコニー、フローリング、洗髪洗面化粧台、コンロ:ガス、洗濯機:室内 | ||
| 当社物件ID | 134418609 | ||
建物の情報
| 建物名 | ラフィネ大崎 | ||
|---|---|---|---|
| 所在地 | 東京都品川区大崎 | ||
| 交通 | JR山手線 大崎駅 徒歩4分 東急池上線 大崎広小路駅 徒歩5分 JR山手線 五反田駅 徒歩8分 | ||
| 階数 | 12階建 | 総戸数 | - |
| 築年月 | 1997年09月 / 築29年 | エレベーター | あり |
| 駐車場 | なし | バイク置き場 | あり |
| 駐輪場 | あり | 管理人/管理会社 | - |
| 周辺環境 | その他 品川区立芳水小学校(小学校)まで600m その他 品川区立大崎中学校(中学校)まで948m その他 ライフ大崎ニューシティ店(スーパー)まで400m その他 セブンイレブン品川・大崎3丁目店(コンビニ)まで220m その他 くすりの福太郎 大崎駅前店(ドラッグストア)まで240m その他 大崎公園(公園)まで180m | ||
| 建物種別 | マンション | 建物構造 | SRC(鉄骨鉄筋コンクリート) |
この部屋の取扱い不動産会社
| 会社名 | (株)プライムコーポレーション目黒店(SUUMO経由) | ||
|---|---|---|---|
| 所在地 | 東京都品川区上大崎3-3-1 オバタビル6階 | 交通 | - |
| 営業時間 | 10:00~19:00 | 定休日 | 第1・第3水曜日 |
| 免許番号 | 東京都知事86964 | 取引態様 | 仲介 |
| 不動産会社管理番号 | 100473883297 | 当社管理番号 | 89 |
| 所属団体 | (公社)東京都宅地建物取引業協会会員 | ||
| 公正取引協議会 | (公社)首都圏不動産公正取引協議会加盟 | ||
| 取扱い物件情報 | 物件詳細へ | ||
※各種情報と現状に差異がある場合は、現状優先となります。問い合わせをすることで、より詳しい条件、情報を確認する事ができます。
提供:(株)プライムコーポレーション目黒店(SUUMO経由)
この物件が気になったら掲載期限まであと12日
ラフィネ大崎に条件(家賃・エリア)が近い物件一覧
| 写真 | 家賃 管理費等 | 敷金 礼金 | 間取り 専有面積 | 築年数 | 最寄り駅 所在地 | キープ | 詳細 |
|---|---|---|---|---|---|---|---|
アパート 御殿山テラスⅡ(2LDK/1階) | |||||||
![]() | 23.2万円 3,000円 | 23.2万円 23.2万円 | 2LDK 57.6m2 | 築2年 | 山手線 大崎駅 徒歩8分 京浜急行電鉄本線 北品川駅 徒歩14分 東京都品川区北品川5丁目 | 詳細を見る | |
マンション NORUM VIENTO(1LDK/3階) | |||||||
![]() | 14.5万円 3,000円 | 14.5万円 14.5万円 | 1LDK 40.27m2 | 築18年 | JR京浜東北線 蒲田駅 徒歩12分 東急池上線 蓮沼駅 徒歩16分 京急本線 京急蒲田駅 徒歩22分 東京都大田区西蒲田 | 詳細を見る | |
マンション エスティメゾン大島(1LDK/15階) | |||||||
![]() | 17.7万円 1.2万円 | 17.7万円 17.7万円 | 1LDK 44.4m2 | 築19年 | 都営新宿線 大島駅(東京) 徒歩2分 都営新宿線 西大島駅 徒歩12分 都営新宿線 東大島駅 徒歩15分 東京都江東区大島 | 詳細を見る | |
マンション パークハビオ門前仲町(ワンルーム/2階) | |||||||
![]() | 13.8万円 1.5万円 | 13.8万円 13.8万円 | ワンルーム 28.73m2 | 築12年 | 東京メトロ東西線 門前仲町駅 徒歩2分 JR京葉線 越中島駅 徒歩14分 東京メトロ半蔵門線 清澄白河駅 徒歩14分 東京都江東区深川 | 詳細を見る | |
アパート イーストテラス大森東(2SLDK/1階) | |||||||
![]() | 19.9万円 3,000円 | 19.9万円 19.9万円 | 2SLDK 79.91m2 | 築1年 | 京浜急行電鉄本線 梅屋敷駅(東京) 徒歩14分 京浜急行電鉄本線 大森町駅 徒歩16分 東京都大田区大森東4丁目 | 詳細を見る | |
タウンハウス 大田菜園長屋(2LDK) | |||||||
![]() | 15.9万円 5,000円 | 15.9万円 7.95万円 | 2LDK 52.17m2 | 築9年 | 京浜急行電鉄本線 雑色駅 徒歩8分 京浜急行電鉄本線 六郷土手駅 徒歩13分 東京都大田区東六郷3丁目 | 詳細を見る | |
アパート M SONIA KUGAHARA(2LDK/1階) | |||||||
![]() | 16.5万円 3,000円 | 16.5万円 33万円 | 2LDK 49.27m2 | 築1年 | 東急池上線 久が原駅 徒歩8分 東急池上線 御嶽山駅 徒歩9分 東京都大田区西嶺町 | 詳細を見る | |
マンション ラ・メゾン足柄(2LDK/3階) | |||||||
![]() | 15.7万円 3,000円 | 15.7万円 15.7万円 | 2LDK 54.74m2 | 築34年 | JR京浜東北線 蒲田駅 徒歩6分 京急本線 京急蒲田駅 徒歩14分 京急本線 梅屋敷駅(東京) 徒歩18分 東京都大田区蒲田 | 詳細を見る | |








