賃貸マンション
メゾンド・ヴェールの賃貸物件情報(1DK/2階)
| 家賃 | 管理費等 | 敷金 | 礼金 | 間取り | 専有面積 |
|---|---|---|---|---|---|
| 5.4万円 | 5,000円 | なし | なし | 1DK | 30.5m2 |
入居決定でお祝い金最大100,000円
- 保証金
- -
- 償却・敷引
- -
- 築年数
- 築26年
- 所在階
- 2階
- 向き
- 北
Point
建物のエントランスには防犯対策として優れているオートロック機能を備えております。
提供:ルームセレクト本郷店(株)洞口(SUUMO経由)

詳細情報 メゾンド・ヴェール
物件紹介
メゾンド・ヴェールは地下鉄桜通線瑞穂運動場西駅から徒歩5分にあり、駅近で通勤通学に便利なマンションです。
このお部屋は2階以上に位置しているので、通行人や周囲の住人からの視線が気になりにくく、防犯面でも安心。建物のエントランスはオートロックがついており、インターホンにはTVモニタもついているため、相手の顔を確認してから来客対応することができます。
人気の南向き・フローリングのお部屋。角部屋でもあるため、周囲の居住者の生活音も気になりにくい場所です。キッチンはシステムキッチン仕様になっていますので、お料理好きの方にもぴったり。また、バス・トイレは別で、のんびりお風呂タイムも楽しめるでしょう。
通信設備面では、インターネットが無料で使えるので、月々の出費を抑えられるのも魅力です。また、BSアンテナがありCATVにも対応しているので、おうち時間も充実するでしょう(別途工事、BS・CATVの契約料等が必要な場合あり)。
建物にはエレベーターがついているので、重い荷物があっても安心。
コンビニまで徒歩2分の場所にあり、日用品や食料品のお買い物にも便利です。
このお部屋は2階以上に位置しているので、通行人や周囲の住人からの視線が気になりにくく、防犯面でも安心。建物のエントランスはオートロックがついており、インターホンにはTVモニタもついているため、相手の顔を確認してから来客対応することができます。
人気の南向き・フローリングのお部屋。角部屋でもあるため、周囲の居住者の生活音も気になりにくい場所です。キッチンはシステムキッチン仕様になっていますので、お料理好きの方にもぴったり。また、バス・トイレは別で、のんびりお風呂タイムも楽しめるでしょう。
通信設備面では、インターネットが無料で使えるので、月々の出費を抑えられるのも魅力です。また、BSアンテナがありCATVにも対応しているので、おうち時間も充実するでしょう(別途工事、BS・CATVの契約料等が必要な場合あり)。
建物にはエレベーターがついているので、重い荷物があっても安心。
コンビニまで徒歩2分の場所にあり、日用品や食料品のお買い物にも便利です。
お金・契約の情報
※「-」と表示されているものは、実際は料金が発生するものもございます。詳細はお問い合わせください。
| 家賃 | 5.4万円 | 管理費・共益費 | 5,000円 |
|---|---|---|---|
| 敷金 | なし | 礼金 | なし |
| 入居決定でお祝い金最大100,000円 | |||
| 保証金 | - | 償却・敷引 | - |
| 住宅保険料 | 1円 | 更新料 | - |
| 保証会社利用 | 必須 | 保証会社名 | 全保連 |
| 保証会社費用 | - | 保証会社備考 | 初回保証料:総賃料の40%、毎月口座振替手数料330円、継続保証料年13000円 |
| 契約形態 | - | 契約期間 | 2年 |
| 入居・引渡期間 | 即時 | 現況 | - |
| 契約備考 | 退去時クリーニング費用 退去時 44000円(税込)・更新事務手数料:11000円/2年 月額(CATV 550円) 鍵交換費用:22000 その他設備/条件:室内洗濯機置き場、独立洗面台、クローゼット、シューズボックス | ||
部屋の情報
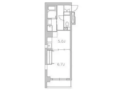
| 間取り | 1DK | 専有面積 | 30.5m2 |
|---|---|---|---|
| 間取り詳細 | 洋室(6.7帖)、DK(5帖) | ||
| 所在階 / 向き | 2階 / 北 | バルコニー面積 | - |
| 水道 / ガス | ガス【都市】 | ||
| 設備 | バス・トイレ別、オートロック、エアコン、エレベーター、角部屋、バルコニー、フローリング、洗髪洗面化粧台、CATV、BSアンテナ、インターネット使用料無料、シャワー、給湯 | ||
| 当社物件ID | 21542102 | ||
建物の情報
| 建物名 | メゾンド・ヴェール | ||
|---|---|---|---|
| 所在地 | 愛知県名古屋市瑞穂区豊岡通3丁目 | ||
| 交通 | 名古屋市桜通線 瑞穂運動場西駅 徒歩8分 名古屋市名城線 新瑞橋駅 徒歩10分 | ||
| 階数 | 5階建 | 総戸数 | 18戸 |
| 築年月 | 2001年01月 / 築26年 | エレベーター | あり |
| 駐車場 | 空無 | バイク置き場 | - |
| 駐輪場 | あり | 管理人/管理会社 | - |
| 周辺環境 | コンビニ 徒歩2分(133m) 販売店 徒歩6分(407m) その他 ドラッグストア その他 公園 その他 銀行 その他 マックスバリュエクスプレス瑞穂通店 徒歩6分(407m) | ||
| 建物種別 | マンション | 建物構造 | RC(鉄筋コンクリート) |
この部屋の取扱い不動産会社
| 会社名 | ハウスコム東海株式会社 新瑞橋店 | ||
|---|---|---|---|
| 所在地 | 愛知県名古屋市瑞穂区15-2大塚新瑞ビル1階 | 交通 | - |
| 営業時間 | 10:00~18:00 | 定休日 | - |
| 免許番号 | 国土交通大臣(1)第10227号 | 取引態様 | 仲介 |
| 不動産会社管理番号 | HC2-1421-203-0162 | 当社管理番号 | 468 |
| 所属団体 | 、 | ||
| 取扱い物件情報 | 物件詳細へ | ||
※各種情報と現状に差異がある場合は、現状優先となります。問い合わせをすることで、より詳しい条件、情報を確認する事ができます。
提供:ハウスコム東海株式会社 新瑞橋店
この物件が気になったら掲載期限まであと5日
メゾンド・ヴェールに条件(家賃・エリア)が近い物件一覧
| 写真 | 家賃 管理費等 | 敷金 礼金 | 間取り 専有面積 | 築年数 | 最寄り駅 所在地 | キープ | 詳細 |
|---|---|---|---|---|---|---|---|
アパート リヴィエール(2LDK/2階) | |||||||
![]() | 6.3万円 3,600円 | なし なし | 2LDK 60.51m2 | 築22年 | 名鉄常滑線 名和駅(愛知) 徒歩12分 名鉄常滑線 柴田駅 徒歩14分 愛知県東海市名和町一番割上 | 詳細を見る | |
アパート メゾンドグランデ(2LDK/2階) | |||||||
![]() | 8.35万円 4,600円 | なし 12.525万円 | 2LDK 65.47m2 | 新築 | 中央本線 神領駅 徒歩10分 愛知県春日井市大留町2丁目 | 詳細を見る | |
マンション ザトクゲツ20(3DK/4階) | |||||||
![]() | 5.6万円 3,700円 | なし なし | 3DK 55m2 | 築39年 | 名古屋市東山線 藤が丘駅(愛知) 徒歩16分 愛知県長久手市上川原 | 詳細を見る | |
アパート サンハイツ藤山台(2LDK/2階) | |||||||
![]() | 4.9万円 3,000円 | なし なし | 2LDK 47.8m2 | 築37年 | 中央本線 高蔵寺駅 徒歩48分 愛知県春日井市藤山台10丁目 | 詳細を見る | |
アパート フォーブル川北(3DK/1階) | |||||||
![]() | 4.5万円 3,000円 | なし なし | 3DK 40.78m2 | 築43年 | 名鉄瀬戸線 三郷駅(愛知) 徒歩15分 名鉄瀬戸線 水野駅 徒歩15分 名鉄瀬戸線 新瀬戸駅 徒歩26分 愛知県瀬戸市川北町 | 詳細を見る | |
マンション アルカディア長久手(3LDK/4階) | |||||||
![]() | 7.5万円 6,000円 | なし なし | 3LDK 69.31m2 | 築35年 | 愛知高速東部丘陵線 杁ケ池公園駅 徒歩7分 愛知県長久手市根の神 | 詳細を見る | |
マンション BLOIS 亀城(1LDK/2階) | |||||||
![]() | 6.5万円 3,000円 | 6.5万円 なし | 1LDK 38.28m2 | 築22年 | 地下鉄桜通線 桜山駅 徒歩10分 地下鉄桜通線 瑞穂区役所駅 徒歩12分 地下鉄鶴舞線 荒畑駅 徒歩20分 愛知県名古屋市瑞穂区亀城町 | 詳細を見る | |
マンション メゾン内方(1K/2階) | |||||||
![]() | 3.9万円 4,000円 | 3.9万円 なし | 1K 22m2 | 築25年 | 名古屋市桜通線 瑞穂運動場西駅 徒歩7分 名古屋市名城線 新瑞橋駅 徒歩9分 愛知県名古屋市瑞穂区内方町2丁目 | 詳細を見る | |








