賃貸マンション
メゾンド・ヴェールの賃貸物件情報(1DK/3階)
| 家賃 | 管理費等 | 敷金 | 礼金 | 間取り | 専有面積 |
|---|---|---|---|---|---|
| 5.9万円 | 5,000円 | なし | なし | 1DK | 29.5m2 |
入居決定でお祝い金最大100,000円
- 保証金
- -
- 償却・敷引
- -
- 築年数
- 築26年
- 所在階
- 3階
- 向き
- 北
Point
人気の角部屋! お隣さまが少ないので気になる生活音が軽減されます◎
提供:ルームセレクト藤が丘店(株)洞口(SUUMO経由)

詳細情報 メゾンド・ヴェール
物件紹介
メゾンド・ヴェールは地下鉄桜通線瑞穂運動場西駅から徒歩7分にあり、駅近で通勤通学に便利なマンションです。
このお部屋は2階以上に位置しているので通行人や周囲の住人からの視線が気になりにくく、建物のエントランスはオートロックがついているので防犯性が高くなっています。
人気の角部屋で周囲の居住者の生活音も気になりにくく、また、フローリングのお部屋なのでお掃除もラクラク。室内にはウォークインクローゼットがありますので、たくさんの荷物も効率的に収納ができます。バス・トイレ別の仕様で、のんびりお風呂タイムも楽しめます。
通信設備面では、インターネットが無料で使えるので、月々の出費を抑えられるのも魅力です。また、BSアンテナがありCATVにも対応しているので、おうち時間も充実するでしょう(別途工事、BS・CATVの契約料等が必要な場合あり)。
建物にはエレベーターがついているので、重い荷物があっても安心。
このお部屋は2階以上に位置しているので通行人や周囲の住人からの視線が気になりにくく、建物のエントランスはオートロックがついているので防犯性が高くなっています。
人気の角部屋で周囲の居住者の生活音も気になりにくく、また、フローリングのお部屋なのでお掃除もラクラク。室内にはウォークインクローゼットがありますので、たくさんの荷物も効率的に収納ができます。バス・トイレ別の仕様で、のんびりお風呂タイムも楽しめます。
通信設備面では、インターネットが無料で使えるので、月々の出費を抑えられるのも魅力です。また、BSアンテナがありCATVにも対応しているので、おうち時間も充実するでしょう(別途工事、BS・CATVの契約料等が必要な場合あり)。
建物にはエレベーターがついているので、重い荷物があっても安心。
お金・契約の情報
※「-」と表示されているものは、実際は料金が発生するものもございます。詳細はお問い合わせください。
| 家賃 | 5.9万円 | 管理費・共益費 | 5,000円 |
|---|---|---|---|
| 敷金 | なし | 礼金 | なし |
| 入居決定でお祝い金最大100,000円 | |||
| 保証金 | - | 償却・敷引 | - |
| 住宅保険料 | - | 更新料 | - |
| 保証会社利用 | 必須 | 保証会社名 | 全保連 |
| 保証会社費用 | - | 保証会社備考 | 全保連利用必 全保連利用必須 Z-value個人プラン 初回40% 月額1,990円 |
| 契約形態 | - | 契約期間 | - |
| 入居・引渡期間 | - | 現況 | - |
| 契約備考 | 合計2.2万円(内訳:鍵交換費22000円) CATV代550円更新料11000円退去時クリーニング費用退去時44,000円 1DK 損保【要】 バストイレ別、バルコニー、エアコン、ガスコンロ対応、フローリング、シャワー付洗面台、オートロック、室内洗濯置、シューズボックス、角住戸、エレベーター、洗面所独立、駐輪場、CATV、光ファイバー、閑静な住宅地、全居室洋室、ウォークインクロゼット、保証人不要、24時間緊急通報システム、2沿線利用可、ネット使用料不要、2駅利用可、3駅以上利用可、都市ガス、BS、IT重説対応物件、初期費用カード決済可、通風良好 入居日:'26年3月下旬 | ||
部屋の情報
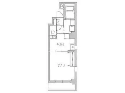
| 間取り | 1DK | 専有面積 | 29.5m2 |
|---|---|---|---|
| 所在階 / 向き | 3階 / 北 | バルコニー面積 | - |
| 水道 / ガス | - | ||
| 設備 | バス・トイレ別、2階以上、オートロック、ウォークインクローゼット、インターネット対応、エアコン、エレベーター、角部屋、バルコニー、フローリング、洗髪洗面化粧台、コンロ:ガス、CATV、BSアンテナ、インターネット使用料無料、洗濯機:室内 | ||
| 当社物件ID | 12670437 | ||
建物の情報
| 建物名 | メゾンド・ヴェール | ||
|---|---|---|---|
| 所在地 | 愛知県名古屋市瑞穂区豊岡通 | ||
| 交通 | 地下鉄桜通線 瑞穂運動場西駅 徒歩7分 地下鉄名城線 新瑞橋駅 徒歩12分 地下鉄名城線 瑞穂運動場東駅 徒歩12分 | ||
| 階数 | 5階建 | 総戸数 | 18戸 |
| 築年月 | 2001年01月 / 築26年 | エレベーター | あり |
| 駐車場 | なし | バイク置き場 | - |
| 駐輪場 | あり | 管理人/管理会社 | - |
| 周辺環境 | その他 名古屋市立豊岡小学校(小学校)まで200m その他 名古屋市立萩山中学校(中学校)まで700m その他 名古屋女子大学中学校 高等学校(高校・高専)まで800m その他 ファミリーマート 瑞穂内方町店(コンビニ)まで100m その他 ヤマナカ瑞穂店(スーパー)まで900m | ||
| 建物種別 | マンション | 建物構造 | RC(鉄筋コンクリート) |
この部屋の取扱い不動産会社
| 会社名 | ルームセレクト本山店(株)洞口(SUUMO経由) | ||
|---|---|---|---|
| 所在地 | 愛知県名古屋市千種区東山通1-30-3 ジオステージ本山1F | 交通 | - |
| 営業時間 | 10:00-18:30 | 定休日 | 毎週水曜日、年末年始 |
| 免許番号 | 国土交通大臣7901 | 取引態様 | 仲介 |
| 不動産会社管理番号 | 100490014176 | 当社管理番号 | 89 |
| 取扱い物件情報 | 物件詳細へ | ||
※各種情報と現状に差異がある場合は、現状優先となります。問い合わせをすることで、より詳しい条件、情報を確認する事ができます。
提供:ルームセレクト本山店(株)洞口(SUUMO経由)
この物件が気になったら掲載期限まであと11日
メゾンド・ヴェールに条件(家賃・エリア)が近い物件一覧
| 写真 | 家賃 管理費等 | 敷金 礼金 | 間取り 専有面積 | 築年数 | 最寄り駅 所在地 | キープ | 詳細 |
|---|---|---|---|---|---|---|---|
アパート DUPLEX高蔵寺(2DK/1階) | |||||||
![]() | 5.8万円 4,500円 | なし なし | 2DK 49.68m2 | 築28年 | JR中央本線 高蔵寺駅 徒歩9分 JR中央本線 神領駅 徒歩40分 愛知環状鉄道 中水野駅 徒歩58分 愛知県春日井市高蔵寺町 | 詳細を見る | |
マンション パークサイド庄南 南館(4LDK/4階) | |||||||
![]() | 8.9万円 3,000円 | 26.7万円 なし | 4LDK 87.34m2 | 築38年 | 地下鉄東山線 藤が丘駅(愛知) 徒歩22分 名鉄瀬戸線 印場駅 徒歩29分 愛知県尾張旭市庄南町 | 詳細を見る | |
アパート 名鉄瀬戸線 尾張瀬戸駅 徒歩13分 築17年(1K/1階) | |||||||
![]() | 4.05万円 3,000円 | なし なし | 1K 23.61m2 | 築17年 | 名鉄瀬戸線 尾張瀬戸駅 徒歩13分 愛知県瀬戸市前田町 | 詳細を見る | |
マンション シャンドジョイ(1K/4階) | |||||||
![]() | 5万円 3,000円 | 5万円 なし | 1K 30.35m2 | 築17年 | 名鉄犬山線 西春駅 徒歩16分 名鉄犬山線 徳重・名古屋芸大駅 徒歩29分 名鉄犬山線 大山寺駅 徒歩41分 愛知県北名古屋市鹿田南蒲屋敷 | 詳細を見る | |
アパート ラ・セーヌ(2LDK/1階) | |||||||
![]() | 5.8万円 3,000円 | なし なし | 2LDK 53.7m2 | 築30年 | JR中央本線 勝川駅(JR) 徒歩22分 愛知県春日井市鳥居松町 | 詳細を見る | |
テラスハウス PLACIDO(2LDK) | |||||||
![]() | 6.8万円 3,500円 | なし なし | 2LDK 65.66m2 | 築15年 | 東海道本線 枇杷島駅 徒歩13分 愛知県清須市助七1丁目 | 詳細を見る | |
マンション 六軒屋ハイツ(3DK/3階) | |||||||
![]() | 6万円 なし | 12万円 なし | 3DK 60m2 | 築38年 | 中央本線 神領駅 徒歩50分 愛知県春日井市六軒屋町4丁目 | 詳細を見る | |
アパート パイン・ウォール(1LDK/2階) | |||||||
![]() | 4.2万円 5,000円 | なし なし | 1LDK 41.95m2 | 築25年 | 名古屋市東山線 岩塚駅 徒歩34分 名古屋市東山線 中村公園駅 徒歩36分 愛知県海部郡大治町大字鎌須賀字山廻 | 詳細を見る | |







