賃貸マンション
ルフォンプログレ上野御徒町の賃貸物件情報(1LDK/8階)
| 家賃 | 管理費等 | 敷金 | 礼金 | 間取り | 専有面積 |
|---|---|---|---|---|---|
| 18.8万円 | 2万円 | 18.8万円 | なし | 1LDK | 34.22m2 |
入居決定でお祝い金最大100,000円
Point
まずはお問い合わせ!
不動産会社は街のプロ、あなたに合った物件がきっと見つかります。
提供:ハウスコム東東京株式会社 押上店

詳細情報 ルフォンプログレ上野御徒町
物件紹介
ルフォンプログレ上野御徒町は東京都大江戸線新御徒町駅から徒歩5分にあり、駅近で通勤通学に便利なマンションです。
このお部屋は2階以上に位置しているので、通行人や周囲の住人からの視線が気になりにくく、防犯面でも安心。建物のエントランスはオートロックがついており、インターホンにはTVモニタもついているため、相手の顔を確認してから来客対応することができます。
おしゃれなデザイナーズ物件!フローリングのお部屋なのでお掃除もラクラク。室内には人気のウォークインクローゼットがありますので、たくさんの荷物も効率的に収納ができます。キッチンはシステムキッチン仕様になっていますので、お料理好きの方にもぴったり。バス・トイレは別なので、のんびりお風呂タイムも楽しめるでしょう。また、雨の日でも浴室乾燥機を使えば、お洗濯も問題ありません。
通信設備面では、インターネットが無料で使えるので、月々の出費を抑えられるのも魅力です。また、BSアンテナ・CSアンテナがありCATVにも対応しているので、おうち時間も充実するでしょう(別途工事、BS・CS・CATVの契約料等が必要な場合あり)。
建物にはエレベーターがついているので、重い荷物があっても安心。共用部には宅配ボックスが設定されているので、不在の時にも荷物を受け取ることができます。また、ペット飼育の相談ができますので、あなたの大切な家族の一員も快適に暮らせるか、ぜひ確認してみてください。
コンビニまで徒歩11分の場所にあり、日用品や食料品のお買い物にも便利です。
このお部屋は2階以上に位置しているので、通行人や周囲の住人からの視線が気になりにくく、防犯面でも安心。建物のエントランスはオートロックがついており、インターホンにはTVモニタもついているため、相手の顔を確認してから来客対応することができます。
おしゃれなデザイナーズ物件!フローリングのお部屋なのでお掃除もラクラク。室内には人気のウォークインクローゼットがありますので、たくさんの荷物も効率的に収納ができます。キッチンはシステムキッチン仕様になっていますので、お料理好きの方にもぴったり。バス・トイレは別なので、のんびりお風呂タイムも楽しめるでしょう。また、雨の日でも浴室乾燥機を使えば、お洗濯も問題ありません。
通信設備面では、インターネットが無料で使えるので、月々の出費を抑えられるのも魅力です。また、BSアンテナ・CSアンテナがありCATVにも対応しているので、おうち時間も充実するでしょう(別途工事、BS・CS・CATVの契約料等が必要な場合あり)。
建物にはエレベーターがついているので、重い荷物があっても安心。共用部には宅配ボックスが設定されているので、不在の時にも荷物を受け取ることができます。また、ペット飼育の相談ができますので、あなたの大切な家族の一員も快適に暮らせるか、ぜひ確認してみてください。
コンビニまで徒歩11分の場所にあり、日用品や食料品のお買い物にも便利です。
お金・契約の情報
※「-」と表示されているものは、実際は料金が発生するものもございます。詳細はお問い合わせください。
| 家賃 | 18.8万円 | 管理費・共益費 | 2万円 |
|---|---|---|---|
| 敷金 | 18.8万円 | 礼金 | なし |
| 入居決定でお祝い金最大100,000円 | |||
| 保証金 | - | 償却・敷引 | - |
| 住宅保険料 | 1円 | 更新料 | - |
| その他費用 | 火災保険料:1.8万円 | ||
| 契約形態 | - | 契約期間 | 2年 |
| 入居・引渡期間 | 即時 | 現況 | - |
| 入居可能条件 | ペット可 | ||
| 契約備考 | その他設備/条件:室内洗濯機置き場、独立洗面台、クローゼット、シューズボックス、照明器具付き | ||
部屋の情報
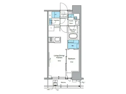
| 間取り | 1LDK | 専有面積 | 34.22m2 |
|---|---|---|---|
| 所在階 / 向き | 8階 / - | バルコニー面積 | - |
| 水道 / ガス | 水道【公営】、ガス【都市】 | ||
| 設備 | オートロック、テレビドアホン、宅配ボックス、浴室乾燥機、追い焚き、システムキッチン、エアコン、エレベーター、温水洗浄便座、バルコニー、フローリング、2口コンロ、コンロ:ガス、CATV、CSアンテナ、BSアンテナ、インターネット使用料無料、給湯 | ||
| 当社物件ID | 160321887 | ||
建物の情報
| 建物名 | ルフォンプログレ上野御徒町 | ||
|---|---|---|---|
| 所在地 | 東京都台東区台東3丁目 | ||
| 交通 | 東京都大江戸線 新御徒町駅 徒歩5分 東京地下鉄日比谷線 仲御徒町駅 徒歩5分 | ||
| 階数 | 15階建 | 総戸数 | - |
| 築年月 | 2025年09月 / 築1年 | エレベーター | あり |
| 駐車場 | 空無 | バイク置き場 | あり |
| 駐輪場 | あり | 管理人/管理会社 | - |
| 周辺環境 | コンビニ 徒歩11分(835m) 販売店 徒歩11分(805m) その他 ドラッグストア その他 公園 その他 銀行 その他 * | ||
| 建物種別 | マンション | 建物構造 | RC(鉄筋コンクリート) |
この部屋の取扱い不動産会社
| 会社名 | ハウスコム東東京株式会社 押上店 | ||
|---|---|---|---|
| 所在地 | 東京都墨田区16-2三橋ビル1階 | 交通 | - |
| 営業時間 | 10:00~18:00 | 定休日 | 水曜定休 |
| 免許番号 | 東京都知事(1)第108283号 | 取引態様 | 仲介 |
| 不動産会社管理番号 | HC5-5100452-0803-0072 | 当社管理番号 | 468 |
| 所属団体 | 、 | ||
| 取扱い物件情報 | 物件詳細へ | ||
※各種情報と現状に差異がある場合は、現状優先となります。問い合わせをすることで、より詳しい条件、情報を確認する事ができます。
提供:ハウスコム東東京株式会社 押上店
この物件が気になったら掲載期限まであと5日
ルフォンプログレ上野御徒町の空き部屋一覧
全部で21の空き部屋があります。
ルフォンプログレ上野御徒町に条件(家賃・エリア)が近い物件一覧
| 写真 | 家賃 管理費等 | 敷金 礼金 | 間取り 専有面積 | 築年数 | 最寄り駅 所在地 | キープ | 詳細 |
|---|---|---|---|---|---|---|---|
マンション LUMEED勝どき(1K/4階) | |||||||
![]() | 11.3万円 8,000円 | 11.3万円 11.3万円 | 1K 25.85m2 | 築8年 | 東京都大江戸線 勝どき駅 徒歩2分 東京都中央区勝どき2丁目 | 詳細を見る | |
マンション プラウドフラット浅草アベニュー(1K/10階) | |||||||
![]() | 11.5万円 1万円 | 11.5万円 11.5万円 | 1K 25.08m2 | 築4年 | つくばエクスプレス 浅草駅(つくばEXP) 徒歩7分 東京地下鉄日比谷線 入谷駅(東京) 徒歩11分 東京地下鉄銀座線 田原町駅(東京) 徒歩13分 東京都台東区千束1丁目 | 詳細を見る | |
マンション ルーラル二十四番館(1LDK/5階) | |||||||
![]() | 15万円 1.5万円 | 15万円 なし | 1LDK 35.47m2 | 築7年 | 東京都新宿線 菊川駅(東京) 徒歩2分 東京都大江戸線 森下駅(東京) 徒歩10分 東京地下鉄半蔵門線 住吉駅(東京) 徒歩12分 東京都墨田区菊川2丁目 | 詳細を見る | |
マンション プラウドフラット上野松が谷(1LDK/2階) | |||||||
![]() | 17.3万円 1.2万円 | 17.3万円 17.3万円 | 1LDK 40.18m2 | 築6年 | 東京地下鉄日比谷線 入谷駅(東京) 徒歩6分 つくばエクスプレス 浅草駅(つくばEXP) 徒歩10分 山手線 上野駅 徒歩15分 東京都台東区松が谷4丁目 | 詳細を見る | |
マンション LOG本所吾妻橋(1LDK/4階) | |||||||
![]() | 17.9万円 1.5万円 | なし なし | 1LDK 41.31m2 | 築7年 | 東京都浅草線 本所吾妻橋駅 徒歩2分 東京都浅草線 押上駅 徒歩10分 東京都墨田区東駒形4丁目 | 詳細を見る | |
マンション 日神デュオステージ両国(1DK/4階) | |||||||
![]() | 12.9万円 1.5万円 | なし なし | 1DK 35.63m2 | 築18年 | 東京都大江戸線 両国駅 徒歩6分 東京都浅草線 蔵前駅 徒歩10分 東京都浅草線 浅草駅(東武・都営・メトロ) 徒歩13分 東京都墨田区本所1丁目 | 詳細を見る | |
マンション ARCOBALENO HIGASHIMUKOJIMA(1LDK/4階) | |||||||
![]() | 15.9万円 なし | なし 7.95万円 | 1LDK 40.77m2 | 築3年 | 京成電鉄押上線 京成曳舟駅 徒歩5分 東武伊勢崎・大師線 曳舟駅 徒歩6分 東武伊勢崎・大師線 東向島駅 徒歩8分 東京都墨田区東向島2丁目 | 詳細を見る | |
マンション GRAN PASEO 田原町(1LDK/5階) | |||||||
![]() | 22万円 2万円 | なし なし | 1LDK 50.75m2 | 築5年 | 東京地下鉄銀座線 田原町駅(東京) 徒歩3分 東京都浅草線 浅草駅(東武・都営・メトロ) 徒歩6分 東京都台東区寿4丁目 | 詳細を見る | |









