賃貸マンション
ラクラス南福岡サウスの賃貸物件情報(1LDK/4階)
| 家賃 | 管理費等 | 敷金 | 礼金 | 間取り | 専有面積 |
|---|---|---|---|---|---|
| 8.4万円 | 5,300円 | なし | 8.4万円 | 1LDK | 27.36m2 |
入居決定でお祝い金最大100,000円
Point
まずはお問い合わせ!
不動産会社は街のプロ、あなたに合った物件がきっと見つかります。
提供:ドッとあ~る賃貸南福岡店(株)DR・エステート(SUUMO経由)

詳細情報 ラクラス南福岡サウス
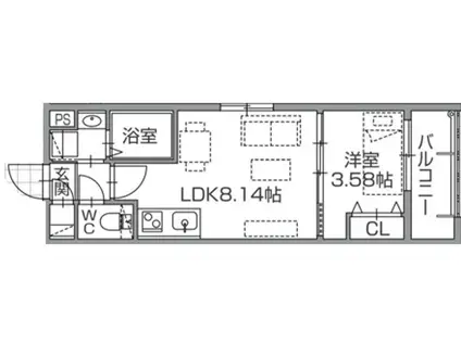
物件紹介
ラクラス南福岡サウスはJR鹿児島本線南福岡駅から徒歩4分にあり、駅近で通勤通学に便利なマンションです。
このお部屋は2階以上に位置しているので、通行人や周囲の住人からの視線が気になりにくく、防犯面でも安心。建物のエントランスはオートロックがついており、インターホンにはTVモニタもついているため、相手の顔を確認してから来客対応することができます。
人気の南向きのお部屋。また、フローリングなのでお掃除もラクラク。キッチンはシステムキッチン仕様になっていますので、お料理好きの方にもぴったり。バス・トイレは別なので、のんびりお風呂タイムも楽しめるでしょう。また、雨の日でも浴室乾燥機を使えば、お洗濯も問題ありません。
通信設備面では、インターネットが無料で使えるので、月々の出費を抑えられるのも魅力です。また、BSアンテナ・CSアンテナもありますので、おうち時間も充実するでしょう(別途工事、BS・CSの契約料等が必要な場合あり)。
建物にはエレベーターがついているので、重い荷物があっても安心。共用部には宅配ボックスが設定されているので、不在の時にも荷物を受け取ることができます。また、ペット飼育の相談ができますので、あなたの大切な家族の一員も快適に暮らせるか、ぜひ確認してみてください。
このお部屋は2階以上に位置しているので、通行人や周囲の住人からの視線が気になりにくく、防犯面でも安心。建物のエントランスはオートロックがついており、インターホンにはTVモニタもついているため、相手の顔を確認してから来客対応することができます。
人気の南向きのお部屋。また、フローリングなのでお掃除もラクラク。キッチンはシステムキッチン仕様になっていますので、お料理好きの方にもぴったり。バス・トイレは別なので、のんびりお風呂タイムも楽しめるでしょう。また、雨の日でも浴室乾燥機を使えば、お洗濯も問題ありません。
通信設備面では、インターネットが無料で使えるので、月々の出費を抑えられるのも魅力です。また、BSアンテナ・CSアンテナもありますので、おうち時間も充実するでしょう(別途工事、BS・CSの契約料等が必要な場合あり)。
建物にはエレベーターがついているので、重い荷物があっても安心。共用部には宅配ボックスが設定されているので、不在の時にも荷物を受け取ることができます。また、ペット飼育の相談ができますので、あなたの大切な家族の一員も快適に暮らせるか、ぜひ確認してみてください。
お金・契約の情報
※「-」と表示されているものは、実際は料金が発生するものもございます。詳細はお問い合わせください。
| 家賃 | 8.4万円 | 管理費・共益費 | 5,300円 |
|---|---|---|---|
| 敷金 | なし | 礼金 | 8.4万円 |
| 入居決定でお祝い金最大100,000円 | |||
| 保証金 | - | 償却・敷引 | - |
| 住宅保険料 | - | 更新料 | - |
| 保証会社利用 | 必須 | 保証会社名 | - |
| 保証会社費用 | - | 保証会社備考 | 保証会社利用必 初回保証料家賃総額50%、更新時12000円 |
| 契約形態 | - | 契約期間 | - |
| 入居・引渡期間 | 相談 | 現況 | - |
| 入居可能条件 | ペット相談 | ||
| 契約備考 | ドッとあ~る賃貸南福岡店は、福岡市、春日市、那珂川市、大野城市を中心に、お部屋探しをサポートさせて頂きます。ご不明な点やご相談、交渉等はお気軽に無料通話へお電話ください。 町費300円 退去時クリーニング代55000円(税別) 1LDK ペット相談 損保【2.2万円2年】 バストイレ別、バルコニー、エアコン、クロゼット、フローリング、シャワー付洗面台、TVインターホン、浴室乾燥機、オートロック、室内洗濯置、陽当り良好、シューズボックス、システムキッチン、南向き、温水洗浄便座、脱衣所、エレベーター、洗面所独立、洗面化粧台、2口コンロ、駐輪場、宅配ボックス、閑静な住宅地、BS・CS、敷金不要、防犯カメラ、ペット相談、グリル付、全居室洋室、バイク置場、全居室フローリング、ガスレンジ付、2沿線利用可、専用庭、CS、ネット使用料不要、保証金不要、2駅利用可、3駅以上利用可、駅徒歩5分以内、敷地内ごみ置き場、BS、礼金1ヶ月、保証会社利用可 | ||
部屋の情報
| 間取り | 1LDK | 専有面積 | 27.36m2 |
|---|---|---|---|
| 所在階 / 向き | 4階 / 南 | バルコニー面積 | - |
| 水道 / ガス | - | ||
| 設備 | バス・トイレ別、2階以上、オートロック、テレビドアホン、宅配ボックス、浴室乾燥機、インターネット対応、システムキッチン、エアコン、エレベーター、温水洗浄便座、南向き、バルコニー、フローリング、洗髪洗面化粧台、2口コンロ、コンロ:ガス、CSアンテナ、BSアンテナ、インターネット使用料無料、専用庭、洗濯機:室内 | ||
| 当社物件ID | 160474174 | ||
建物の情報
| 建物名 | ラクラス南福岡サウス | ||
|---|---|---|---|
| 所在地 | 福岡県福岡市博多区元町 | ||
| 交通 | JR鹿児島本線 南福岡駅 徒歩4分 西鉄天神大牟田線 雑餉隈駅 徒歩11分 | ||
| 階数 | 5階建 | 総戸数 | - |
| 築年月 | 2025年03月 / 築1年 | エレベーター | あり |
| 駐車場 | なし | バイク置き場 | あり |
| 駐輪場 | あり | 管理人/管理会社 | - |
| 周辺環境 | その他 マックスバリュエクスプレスJR南福岡店(スーパー)まで187m その他 マルキョウ雑餉隈店(スーパー)まで616m その他 ファミリーマート南福岡元町2丁目店(コンビニ)まで168m その他 ローソン南福岡駅前店(コンビニ)まで191m その他 ディスカウントドラッグコスモス春町店(ドラッグストア)まで951m | ||
| 建物種別 | マンション | 建物構造 | RC(鉄筋コンクリート) |
この部屋の取扱い不動産会社
| 会社名 | ドッとあ~る賃貸南福岡店(株)DR・エステート(SUUMO経由) | ||
|---|---|---|---|
| 所在地 | 福岡県福岡市博多区元町1-7-10 後藤ビル1階 | 交通 | - |
| 営業時間 | 9:00~19:30 | 定休日 | - |
| 免許番号 | 福岡県知事17172 | 取引態様 | 仲介 |
| 不動産会社管理番号 | 100490586044 | 当社管理番号 | 89 |
| 所属団体 | (公社)福岡県宅地建物取引業協会会員 | ||
| 公正取引協議会 | (一社)九州不動産公正取引協議会加盟 | ||
| 取扱い物件情報 | 物件詳細へ | ||
※各種情報と現状に差異がある場合は、現状優先となります。問い合わせをすることで、より詳しい条件、情報を確認する事ができます。
提供:ドッとあ~る賃貸南福岡店(株)DR・エステート(SUUMO経由)
この物件が気になったら掲載期限まであと10日
ラクラス南福岡サウスに条件(家賃・エリア)が近い物件一覧
| 写真 | 家賃 管理費等 | 敷金 礼金 | 間取り 専有面積 | 築年数 | 最寄り駅 所在地 | キープ | 詳細 |
|---|---|---|---|---|---|---|---|
マンション ETERUNO(2SLDK/5階) | |||||||
![]() | 11万円 6,500円 | なし 22万円 | 2SLDK 60.96m2 | 築1年 | 西鉄天神大牟田線 雑餉隈駅 徒歩15分 西鉄天神大牟田線 桜並木駅 徒歩20分 鹿児島本線 笹原駅 徒歩21分 福岡県福岡市博多区麦野2丁目 | 詳細を見る | |
アパート ブラン惣利(1LDK/1階) | |||||||
![]() | 6.5万円 5,000円 | なし 6.5万円 | 1LDK 36.14m2 | 築9年 | 西鉄天神大牟田線 白木原駅 徒歩34分 福岡県春日市惣利1丁目 | 詳細を見る | |
アパート グランスイート横手南(1LDK/2階) | |||||||
![]() | 8.05万円 2,800円 | なし 8.05万円 | 1LDK 43.93m2 | 新築 | 西鉄天神大牟田線 井尻駅 徒歩16分 鹿児島本線 笹原駅 徒歩21分 鹿児島本線 南福岡駅 徒歩32分 福岡県福岡市南区横手南町 | 詳細を見る | |
アパート シャルム須玖南(2LDK/2階) | |||||||
![]() | 7万円 3,800円 | なし 10.5万円 | 2LDK 69.94m2 | 築22年 | 西鉄天神大牟田線 井尻駅 徒歩27分 鹿児島本線 南福岡駅 徒歩28分 博多南線 博多南駅 徒歩31分 福岡県春日市須玖南5丁目 | 詳細を見る | |
アパート エレガント 白水 A(1LDK/1階) | |||||||
![]() | 8.25万円 2,900円 | なし 8.25万円 | 1LDK 51.74m2 | 新築 | 博多南線 博多南駅 徒歩13分 鹿児島本線 南福岡駅 徒歩65分 鹿児島本線 春日駅(福岡) 徒歩66分 福岡県那珂川市 | 詳細を見る | |
マンション ウエストビレッジ春日(1LDK/2階) | |||||||
![]() | 5.2万円 3,000円 | なし 5.2万円 | 1LDK 50.22m2 | 築36年 | 博多南線 博多南駅 徒歩23分 鹿児島本線 南福岡駅 徒歩30分 福岡県春日市昇町5丁目 | 詳細を見る | |
アパート D-ROOM平田台4丁目(2LDK/2階) | |||||||
![]() | 10.4万円 5,000円 | なし 20.8万円 | 2LDK 56.4m2 | 新築 | 鹿児島本線 大野城駅 徒歩25分 鹿児島本線 水城駅 徒歩27分 西鉄天神大牟田線 下大利駅 徒歩28分 福岡県春日市平田台4丁目 | 詳細を見る | |
マンション ハイム飛松(2DK/3階) | |||||||
![]() | 5.5万円 3,000円 | なし なし | 2DK 50m2 | 築39年 | 博多南線 博多南駅 徒歩10分 鹿児島本線 南福岡駅 徒歩51分 西鉄天神大牟田線 井尻駅 徒歩51分 福岡県那珂川市今光2丁目 | 詳細を見る | |









