賃貸アパート
OSレジデンス B棟の賃貸物件情報(3DK/1階)
| 家賃 | 管理費等 | 敷金 | 礼金 | 間取り | 専有面積 |
|---|---|---|---|---|---|
| 3.8万円 | 3,000円 | 3.8万円 | 3.8万円 | 3DK | 44.7m2 |
入居決定でお祝い金最大100,000円
Point
駐車場に空きがあるので車を駐車するスペースにお困りの方にもお薦めです。落ち着きある、フローリング張りのアパートとなっています。賃料3.8万円が魅力の物件です。魅力も多い賃貸物件はいかがでしょうか。こちらは初期費用をカードでお支払いいただけるアパートです。駅まで徒歩12分でアクセス可能な物件です。独立
提供:株式会社後楽不動産 ホームメイトFC門田屋敷店(賃貸スモッカ経由)

詳細情報 OSレジデンス B棟
物件紹介
OSレジデンス B棟は山陽本線高島駅から徒歩12分にあるアパートです。
人気の南向きのお部屋。また、フローリングなのでお掃除もラクラク。バス・トイレ別の仕様で、のんびりお風呂タイムも楽しめます。
人気の南向きのお部屋。また、フローリングなのでお掃除もラクラク。バス・トイレ別の仕様で、のんびりお風呂タイムも楽しめます。
お金・契約の情報
※「-」と表示されているものは、実際は料金が発生するものもございます。詳細はお問い合わせください。
| 家賃 | 3.8万円 | 管理費・共益費 | 3,000円 |
|---|---|---|---|
| 敷金 | 3.8万円 | 礼金 | 3.8万円 |
| 入居決定でお祝い金最大100,000円 | |||
| 保証金 | - | 償却・敷引 | - |
| 住宅保険料 | 住宅保険料あり | 更新料 | - |
| 契約形態 | - | 契約期間 | 2年 |
| 入居・引渡期間 | 即時 | 現況 | 空室 |
| 契約備考 | どこの不動産会社にお願いしようか迷っている方☆お部屋探しはホームメイト後楽不動産へ♪当社スタッフはお客様に寄り添った提案を心がけております♪女性スタッフ対応の要望や、初めてのお引越し時のアドバイス、初期費用についてや、保証人について、などなど何でもお気軽にご相談いただけたらと思います!お客様の条件に合う物件を納得いくまで一生懸命お探します♪ こちらのアパートは閑静な住宅地にあります。好評の駅近物件で、徒歩12分でのアクセスが可能です。アパートの不備も定期的にメンテナンスしてくれるので安心。暑い日も寒い日も使えるエアコンが付いており、空調管理に便利。新しい生活にお勧めなのが、こちらのアパートです。風通しが良く真夏の暑い日も快適に過ごせるアパートです。忙しい朝でも鏡を見ながらサッと身支度を整えられる洗面化粧台を備えております。収納はシューズボックス・押入などが備え付けられているので、衣類や日用品の収納に重宝します。「OSレジデンスB棟」のここがイチオシ。 鍵交換費:12,100円 保証会社:利用必須 20,500円 賃料総額の120%又は、初回50%で毎年13,000円 その他設備/条件:IT重説 対応物件、免震・耐震・制震、1階の物件、独立洗面台、即入居可 | ||
部屋の情報
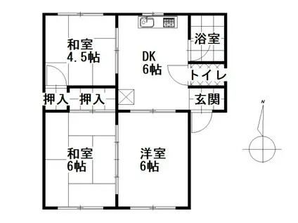
| 間取り | 3DK | 専有面積 | 44.7m2 |
|---|---|---|---|
| 間取り詳細 | DK(6帖)、洋室(6帖)、和室(4.5帖)、和室(6帖) | ||
| 所在階 / 向き | 1階 / 南 | バルコニー面積 | - |
| 水道 / ガス | ガス【プロパン】 | ||
| 設備 | バス・トイレ別、エアコン、南向き、バルコニー、フローリング、洗濯機:室内 | ||
| 当社物件ID | 42270461 | ||
建物の情報
| 建物名 | OSレジデンス B棟 | ||
|---|---|---|---|
| 所在地 | 岡山県岡山市中区中井3丁目 | ||
| 交通 | 山陽本線 高島駅(岡山) 徒歩12分 山陽本線 東岡山駅 徒歩32分 | ||
| 階数 | 2階建 | 総戸数 | - |
| 築年月 | 1986年04月 / 築40年 | エレベーター | - |
| 駐車場 | 空有 | バイク置き場 | あり |
| 駐輪場 | あり | 管理人/管理会社 | - |
| 建物種別 | アパート | 建物構造 | 木造 |
この部屋の取扱い不動産会社
| 会社名 | 株式会社後楽不動産 ホームメイトFC門田屋敷店(賃貸スモッカ経由) | ||
|---|---|---|---|
| 所在地 | 岡山県岡山市中区門田屋敷1-7-38 | 交通 | - |
| 営業時間 | - | 定休日 | - |
| 免許番号 | 岡山県知事免許(1)第6267号 | 取引態様 | 仲介 |
| 不動産会社管理番号 | kouraku-fudousan3_330730000359128 | 当社管理番号 | 463 |
| 所属団体 | (公社)全国宅地建物取引業協会連合会\n(一社)岡山県宅地建物取引業協会\n四国地区不動産公正取引協議会 | ||
| 公正取引協議会 | (公社)全国宅地建物取引業保証協会 | ||
| 取扱い物件情報 | 物件詳細へ | ||
※各種情報と現状に差異がある場合は、現状優先となります。問い合わせをすることで、より詳しい条件、情報を確認する事ができます。
提供:株式会社後楽不動産 ホームメイトFC門田屋敷店(賃貸スモッカ経由)
この物件が気になったら掲載期限まであと7日
OSレジデンス B棟に条件(家賃・エリア)が近い物件一覧
| 写真 | 家賃 管理費等 | 敷金 礼金 | 間取り 専有面積 | 築年数 | 最寄り駅 所在地 | キープ | 詳細 |
|---|---|---|---|---|---|---|---|
アパート トゥルーハートⅠ(1LDK/2階) | |||||||
![]() | 5.65万円 3,000円 | なし 5.65万円 | 1LDK 44.97m2 | 築9年 | 山陽本線 東岡山駅 徒歩10分 山陽本線 高島駅(岡山) 徒歩34分 赤穂線 大多羅駅 徒歩45分 岡山県岡山市中区長岡 | 詳細を見る | |
マンション グリーンパーク賞田(1K/2階) | |||||||
![]() | 3.5万円 2,000円 | なし 3.5万円 | 1K 23.4m2 | 築30年 | 山陽本線 高島駅(岡山) 徒歩15分 津山線 備前原駅 徒歩36分 山陽本線 西川原駅 徒歩40分 岡山県岡山市中区賞田 | 詳細を見る | |
アパート ドゥリーム浜(1K/3階) | |||||||
![]() | 2.5万円 3,000円 | なし なし | 1K 23.8m2 | 築38年 | 山陽本線 西川原駅 徒歩11分 岡山電軌東山本線 城下駅(岡山) 徒歩18分 岡山電軌清輝橋線 柳川駅 徒歩21分 岡山県岡山市中区浜1丁目 | 詳細を見る | |
アパート ベルエポック西片上(2DK/2階) | |||||||
![]() | 4.2万円 2,500円 | 8.4万円 4.2万円 | 2DK 39.74m2 | 築32年 | 赤穂線 西片上駅 徒歩22分 赤穂線 備前片上駅 徒歩28分 赤穂線 伊部駅 徒歩35分 岡山県備前市西片上 | 詳細を見る | |
アパート プレジール原田(2LDK/2階) | |||||||
![]() | 4.7万円 3,000円 | なし なし | 2LDK 55m2 | 築37年 | 山陽本線 高島駅(岡山) 徒歩16分 山陽本線 西川原駅 徒歩25分 岡山県岡山市中区さい東町1丁目 | 詳細を見る | |
アパート クレル西川原 N棟(1K/1階) | |||||||
![]() | 5.8万円 3,500円 | 5.8万円 5.8万円 | 1K 35.09m2 | 築4年 | 山陽本線 西川原駅 徒歩9分 津山線 法界院駅 徒歩24分 山陽本線 高島駅(岡山) 徒歩28分 岡山県岡山市中区竹田 | 詳細を見る | |
アパート レオーネ竜之口(1K/2階) | |||||||
![]() | 2.5万円 4,000円 | 2.5万円 なし | 1K 22.58m2 | 築30年 | 山陽本線 東岡山駅 徒歩25分 山陽本線 高島駅(岡山) 徒歩41分 津山線 玉柏駅 徒歩63分 岡山県岡山市中区四御神 | 詳細を見る | |








