賃貸マンション
MOCO-DICEの賃貸物件情報(1LDK/1階)
| 家賃 | 管理費等 | 敷金 | 礼金 | 間取り | 専有面積 |
|---|---|---|---|---|---|
| 6.1万円 | 4,000円 | 12.2万円 | なし | 1LDK | 40.46m2 |
入居決定でお祝い金最大100,000円
Point
備充実です。、インターネット無料、モニター付きインターホン、エレベーターがあります。
提供:(株)福徳不動産佐賀支店(SUUMO経由)

詳細情報 MOCO-DICE
物件紹介
MOCO-DICEはJR長崎本線鍋島駅から徒歩36分にあるマンションです。
建物のエントランスはオートロックがついており、インターホンにはTVモニタもついているため、相手の顔を確認してから来客対応することができます。
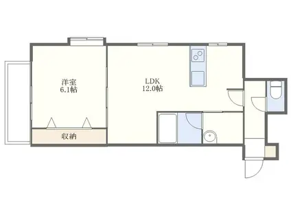
人気の南向き・フローリングのお部屋。角部屋でもあるため、周囲の居住者の生活音も気になりにくい場所です。キッチンはシステムキッチン仕様になっていますので、お料理好きの方にもぴったり。バス・トイレは別なので、のんびりお風呂タイムも楽しめるでしょう。また、雨の日でも浴室乾燥機を使えば、お洗濯も問題ありません。
通信設備面では、インターネットが無料で使えるので、月々の出費を抑えられるのも魅力です。また、BSアンテナ・CSアンテナもありますので、おうち時間も充実するでしょう(別途工事、BS・CSの契約料等が必要な場合あり)。
建物にはエレベーターがついているので、重い荷物があっても安心。共用部には宅配ボックスが設定されているので、不在の時にも荷物を受け取ることができます。
建物のエントランスはオートロックがついており、インターホンにはTVモニタもついているため、相手の顔を確認してから来客対応することができます。
人気の南向き・フローリングのお部屋。角部屋でもあるため、周囲の居住者の生活音も気になりにくい場所です。キッチンはシステムキッチン仕様になっていますので、お料理好きの方にもぴったり。バス・トイレは別なので、のんびりお風呂タイムも楽しめるでしょう。また、雨の日でも浴室乾燥機を使えば、お洗濯も問題ありません。
通信設備面では、インターネットが無料で使えるので、月々の出費を抑えられるのも魅力です。また、BSアンテナ・CSアンテナもありますので、おうち時間も充実するでしょう(別途工事、BS・CSの契約料等が必要な場合あり)。
建物にはエレベーターがついているので、重い荷物があっても安心。共用部には宅配ボックスが設定されているので、不在の時にも荷物を受け取ることができます。
お金・契約の情報
※「-」と表示されているものは、実際は料金が発生するものもございます。詳細はお問い合わせください。
| 家賃 | 6.1万円 | 管理費・共益費 | 4,000円 |
|---|---|---|---|
| 敷金 | 12.2万円 | 礼金 | なし |
| 入居決定でお祝い金最大100,000円 | |||
| 保証金 | - | 償却・敷引 | 12.2万円 |
| 住宅保険料 | - | 更新料 | - |
| 保証会社利用 | 必須 | 保証会社名 | - |
| 保証会社費用 | - | 保証会社備考 | 保証会社利用必 リーガル 16500円/入居時、以降は1.0万円/毎年(入居期間中)、月額:月額総額賃料×2% |
| 契約形態 | - | 契約期間 | - |
| 入居・引渡期間 | 即時 | 現況 | - |
| 契約備考 | 水道料:2,200円/月、個人契約:退去時クリーニング費用家賃1ヶ月、法人契約:敷金2ヶ月敷引2ヶ月 合計6.38万円(内訳:鍵交換費用:19800円、ポート開放設定費:5500円、ルームケア+:38500円) プラスライフ24:990円/1ヵ月、浄水器リース代:1320円/1ヵ月 1LDK 損保【要】 バストイレ別、バルコニー、エアコン、シャワー付洗面台、TVインターホン、浴室乾燥機、オートロック、室内洗濯置、システムキッチン、温水洗浄便座、エレベーター、宅配ボックス、即入居可、礼金不要、対面式キッチン、全居室洋室、ネット使用料不要、保証金不要、2駅利用可、バス停徒歩3分以内、LDK12畳以上、全居室6畳以上 | ||
部屋の情報
| 間取り | 1LDK | 専有面積 | 40.46m2 |
|---|---|---|---|
| 所在階 / 向き | 1階 / - | バルコニー面積 | - |
| 水道 / ガス | - | ||
| 設備 | バス・トイレ別、オートロック、テレビドアホン、宅配ボックス、浴室乾燥機、インターネット対応、システムキッチン、エアコン、エレベーター、温水洗浄便座、バルコニー、インターネット使用料無料、洗濯機:室内 | ||
| 当社物件ID | 19193919 | ||
建物の情報
| 建物名 | MOCO-DICE | ||
|---|---|---|---|
| 所在地 | 佐賀県佐賀市鍋島 | ||
| 交通 | JR長崎本線 鍋島駅 徒歩37分 JR長崎本線 佐賀駅 徒歩53分 | ||
| 階数 | 5階建 | 総戸数 | - |
| 築年月 | 2016年02月 / 築10年 | エレベーター | あり |
| 駐車場 | なし | バイク置き場 | - |
| 駐輪場 | - | 管理人/管理会社 | - |
| 周辺環境 | その他 佐賀銀行佐賀医大前支店(その他)まで130m その他 スーパードラッグコスモス鍋島店(その他)まで267m その他 マックスバリュ佐賀医大前店(その他)まで520m その他 佐賀大学医学部附属病院(その他)まで618m その他 ローソン佐賀鍋島店(その他)まで1000m | ||
| 建物種別 | マンション | 建物構造 | RC(鉄筋コンクリート) |
この部屋の取扱い不動産会社
| 会社名 | ホームメイトFC佐賀中央店(株)ネット(SUUMO経由) | ||
|---|---|---|---|
| 所在地 | 佐賀県佐賀市神野東3-12-38 | 交通 | - |
| 営業時間 | 平日・ 土日:10時~17時 | 定休日 | 水曜日・祝日 |
| 免許番号 | 佐賀県知事2153 | 取引態様 | 仲介 |
| 不動産会社管理番号 | 100483418553 | 当社管理番号 | 89 |
| 所属団体 | (公社)佐賀県宅地建物取引業協会会員 | ||
| 公正取引協議会 | (一社)九州不動産公正取引協議会加盟 | ||
| 取扱い物件情報 | 物件詳細へ | ||
※各種情報と現状に差異がある場合は、現状優先となります。問い合わせをすることで、より詳しい条件、情報を確認する事ができます。
提供:ホームメイトFC佐賀中央店(株)ネット(SUUMO経由)
この物件が気になったら掲載期限まであと11日
MOCO-DICEに条件(家賃・エリア)が近い物件一覧
| 写真 | 家賃 管理費等 | 敷金 礼金 | 間取り 専有面積 | 築年数 | 最寄り駅 所在地 | キープ | 詳細 |
|---|---|---|---|---|---|---|---|
マンション サングリーム(1DK/2階) | |||||||
![]() | 4.3万円 3,000円 | なし なし | 1DK 27.65m2 | 築20年 | JR長崎本線 鍋島駅 徒歩37分 JR長崎本線 佐賀駅 徒歩44分 JR長崎本線 久保田駅(佐賀) 徒歩82分 佐賀県佐賀市西与賀町大字厘外 | 詳細を見る | |
アパート LADDER神埼NEXT(1K/2階) | |||||||
![]() | 4.3万円 4,000円 | なし 4.3万円 | 1K 30.67m2 | 築7年 | JR長崎本線 神埼駅 徒歩29分 JR長崎本線 伊賀屋駅 徒歩41分 佐賀県神埼市神埼町横武 | 詳細を見る | |
アパート フロントフィールド2番館(ワンルーム/1階) | |||||||
![]() | 4.4万円 2,000円 | なし 4.4万円 | ワンルーム 32.9m2 | 築13年 | JR筑肥線 唐津駅 徒歩16分 佐賀県唐津市神田 | 詳細を見る | |
アパート 桜ハイツ(1LDK/1階) | |||||||
![]() | 5.5万円 3,500円 | なし 5.5万円 | 1LDK 40.85m2 | 築10年 | JR唐津線 小城駅 徒歩9分 JR長崎本線 久保田駅(佐賀) 徒歩60分 JR長崎本線 牛津駅 徒歩62分 佐賀県小城市三日月町久米 | 詳細を見る | |
アパート 東与賀町下古賀アパート(2LDK/2階) | |||||||
![]() | 6.2万円 2,400円 | なし 6.2万円 | 2LDK 59.55m2 | 新築 | 佐賀県佐賀市東与賀町大字下古賀 | 詳細を見る | |
アパート エムメゾン(3K/1階) | |||||||
![]() | 4.1万円 3,000円 | なし なし | 3K 60m2 | 築29年 | JR長崎本線 伊賀屋駅 徒歩25分 JR長崎本線 神埼駅 徒歩43分 JR長崎本線 吉野ケ里公園駅 徒歩83分 佐賀県神埼市神埼町横武 | 詳細を見る | |
アパート ハイド リアン(1K/1階) | |||||||
![]() | 5.5万円 2,900円 | なし 5.5万円 | 1K 28.87m2 | 築1年 | JR長崎本線 佐賀駅 徒歩11分 JR長崎本線 鍋島駅 徒歩54分 JR長崎本線 伊賀屋駅 徒歩72分 佐賀県佐賀市愛敬町 | 詳細を見る | |







