賃貸マンション
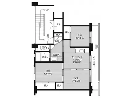
ビレッジハウス三草2号棟の賃貸物件情報(3DK/2階)
| 家賃 | 管理費等 | 敷金 | 礼金 | 間取り | 専有面積 |
|---|---|---|---|---|---|
| 4.6万円 | なし | なし | なし | 3DK | 53.08m2 |
入居決定でお祝い金最大100,000円
- 保証金
- -
- 償却・敷引
- -
- 築年数
- 築34年
- 所在階
- 2階
- 向き
- 南
Point
まずはお問い合わせ!
不動産会社は街のプロ、あなたに合った物件がきっと見つかります。
提供:ビレッジハウス・マネジメント株式会社 住まい相談センター

詳細情報 ビレッジハウス三草2号棟
物件紹介
ビレッジハウス三草2号棟はJR加古川線滝駅から徒歩44分にあるマンションです。
このお部屋は2階以上に位置しているので、通行人や周囲の住人からの視線が気になりにくく、防犯面でも安心。インターホンにはTVモニタもついているため、相手の顔を確認してから来客対応することができます。
人気の南向きのお部屋。また、フローリングなのでお掃除もラクラク。キッチンはシステムキッチン仕様になっていますので、お料理好きの方にもぴったり。また、バス・トイレは別で、のんびりお風呂タイムも楽しめるでしょう。
通信設備面では、インターネット接続が可能です(別途工事、契約料が必要な場合あり)。
ペット飼育の相談ができますので、あなたの大切な家族の一員も快適に暮らせるか、ぜひ確認してみてください。
このお部屋は2階以上に位置しているので、通行人や周囲の住人からの視線が気になりにくく、防犯面でも安心。インターホンにはTVモニタもついているため、相手の顔を確認してから来客対応することができます。
人気の南向きのお部屋。また、フローリングなのでお掃除もラクラク。キッチンはシステムキッチン仕様になっていますので、お料理好きの方にもぴったり。また、バス・トイレは別で、のんびりお風呂タイムも楽しめるでしょう。
通信設備面では、インターネット接続が可能です(別途工事、契約料が必要な場合あり)。
ペット飼育の相談ができますので、あなたの大切な家族の一員も快適に暮らせるか、ぜひ確認してみてください。
お金・契約の情報
※「-」と表示されているものは、実際は料金が発生するものもございます。詳細はお問い合わせください。
| 家賃 | 4.6万円 | 管理費・共益費 | なし |
|---|---|---|---|
| 敷金 | なし | 礼金 | なし |
| フリーレント | 0ヶ月 | ||
| 入居決定でお祝い金最大100,000円 | |||
| 保証金 | - | 償却・敷引 | - |
| 住宅保険料 | 1万円(2年) | 更新料 | - |
| 保証会社利用 | - | 保証会社名 | - |
| 保証会社費用 | - | 保証会社備考 | - |
| 契約形態 | - | 契約期間 | - |
| 入居・引渡期間 | - | 現況 | 空室 |
| 入居可能条件 | 2人入居可、学生可、ペット相談 | ||
| 契約備考 | 契約種類:普通契約、24時間緊急対応、ウォシュレット、ウォームレット、洗面台 | ||
部屋の情報
| 間取り | 3DK | 専有面積 | 53.08m2 |
|---|---|---|---|
| 所在階 / 向き | 2階 / 南 | バルコニー面積 | - |
| 水道 / ガス | - | ||
| 設備 | バス・トイレ別、テレビドアホン、追い焚き、エアコン、バルコニー、2口コンロ、給湯、洗濯機:室内 | ||
| 当社物件ID | 30883208 | ||
建物の情報
| 建物名 | ビレッジハウス三草2号棟 | ||
|---|---|---|---|
| 所在地 | 兵庫県加東市上三草115-80 | ||
| 交通 | 加古川線 滝野駅 徒歩48分 加古川線 滝駅(兵庫) 徒歩48分 加古川線 西脇市駅 徒歩70分 | ||
| 階数 | 5階建 | 総戸数 | - |
| 築年月 | 1993年04月 / 築34年 | エレベーター | - |
| 駐車場 | 空有 3,300円/月 円 | バイク置き場 | - |
| 駐輪場 | - | 管理人/管理会社 | 日勤 |
| 建物種別 | マンション | 建物構造 | RC(鉄筋コンクリート) |
この部屋の取扱い不動産会社
| 会社名 | ビレッジハウス・マネジメント株式会社 住まい相談センター | ||
|---|---|---|---|
| 所在地 | 東京都港区六本木6-10-1 六本木ヒルズ森タワー44階 | 交通 | 東京メトロ日比谷線「六本木駅」 直結 |
| 営業時間 | 平日:9:00-18:30/土日祝:9:00-18:00 | 定休日 | 年中無休(年末年始を除く) |
| 免許番号 | 東京都知事(2)第100758号 | 取引態様 | 貸主 |
| 不動産会社管理番号 | 00013536303 | 当社管理番号 | 459 |
| 所属団体 | 公益社団法人東京都宅地建物取引業協会会員 日本賃貸住宅管理協会会員 | ||
| 取扱い物件情報 | 物件詳細へ | ||
※各種情報と現状に差異がある場合は、現状優先となります。問い合わせをすることで、より詳しい条件、情報を確認する事ができます。
提供:ビレッジハウス・マネジメント株式会社 住まい相談センター
この物件が気になったら掲載期限まであと13日
ビレッジハウス三草2号棟に条件(家賃・エリア)が近い物件一覧
| 写真 | 家賃 管理費等 | 敷金 礼金 | 間取り 専有面積 | 築年数 | 最寄り駅 所在地 | キープ | 詳細 |
|---|---|---|---|---|---|---|---|
アパート ラフィーネ緑が丘(1K/2階) | |||||||
![]() | 4.8万円 4,000円 | なし なし | 1K 29m2 | 築19年 | 神戸電鉄粟生線 緑が丘駅(兵庫) 徒歩8分 神戸電鉄粟生線 広野ゴルフ場前駅 徒歩17分 神戸電鉄粟生線 押部谷駅 徒歩23分 兵庫県三木市緑が丘町東 | 詳細を見る | |
アパート MOE3(1K/2階) | |||||||
![]() | 4.9万円 5,500円 | 4.9万円 なし | 1K 30.96m2 | 築19年 | 兵庫県加東市藤田 | 詳細を見る | |
アパート シャンⅠ(ワンルーム/1階) | |||||||
![]() | 2.8万円 なし | なし なし | ワンルーム 19.87m2 | 築38年 | 兵庫県加東市社 | 詳細を見る | |
アパート ヒューマンハイツⅠ(1K/2階) | |||||||
![]() | 2.8万円 2,000円 | なし なし | 1K 17.5m2 | 築39年 | 加古川線 社町駅 徒歩56分 加古川線 滝野駅 徒歩57分 加古川線 滝駅(兵庫) 徒歩65分 兵庫県加東市山国 | 詳細を見る | |
アパート 神戸電鉄粟生線 葉多駅 徒歩15分 築22年(1DK/2階) | |||||||
![]() | 5.3万円 3,000円 | なし 10万円 | 1DK 34m2 | 築22年 | 神戸電鉄粟生線 葉多駅 徒歩15分 神戸電鉄粟生線 小野駅(兵庫) 徒歩17分 加古川線 小野町駅 徒歩17分 兵庫県小野市片山町 | 詳細を見る | |
アパート ベル・エクラ(1LDK/1階) | |||||||
![]() | 6.8万円 3,900円 | なし 6.8万円 | 1LDK 50.01m2 | 新築 | 福知山線 篠山口駅 徒歩58分 福知山線 南矢代駅 徒歩75分 福知山線 丹波大山駅 徒歩76分 兵庫県丹波篠山市野中堀ノ内ノ坪 | 詳細を見る | |
アパート フェリーシード桜丘A棟・B棟(1LDK/1階) | |||||||
![]() | 6.2万円 6,000円 | 2万円 なし | 1LDK 41.53m2 | 築6年 | JR加古川線 滝野駅 徒歩12分 JR加古川線 滝駅(兵庫) 徒歩22分 JR加古川線 社町駅 徒歩43分 兵庫県加東市下滝野 | 詳細を見る | |
アパート S&RⅡ(2DK/1階) | |||||||
![]() | 4万円 1,700円 | なし なし | 2DK 46.06m2 | 築30年 | 加古川線 滝野駅 徒歩7分 加古川線 滝駅(兵庫) 徒歩20分 兵庫県加東市下滝野2 | 詳細を見る | |








