賃貸マンション
アゼリアヒルハイツの賃貸物件情報(1K/2階)
| 家賃 | 管理費等 | 敷金 | 礼金 | 間取り | 専有面積 |
|---|---|---|---|---|---|
| 9.7万円 | 5,000円 | 9.7万円 | 9.7万円 | 1K | 28.14m2 |
入居決定でお祝い金最大100,000円
- 保証金
- -
- 償却・敷引
- -
- 築年数
- 築22年
- 所在階
- 2階
- 向き
- 東
Point
まずはお問い合わせ!
不動産会社は街のプロ、あなたに合った物件がきっと見つかります。
提供:i-Room(株)ルーク不動産(SUUMO経由)

詳細情報 アゼリアヒルハイツ
物件紹介
アゼリアヒルハイツは東京メトロ南北線王子神谷駅から徒歩6分にあり、駅近で通勤通学に便利なマンションです。
このお部屋は2階以上に位置しているので、通行人や周囲の住人からの視線が気になりにくく、防犯面でも安心。建物のエントランスはオートロックがついており、インターホンにはTVモニタもついているため、相手の顔を確認してから来客対応することができます。
フローリングのお部屋なのでお掃除もラクラク。キッチンはシステムキッチン仕様になっていますので、お料理好きの方にもぴったり。バス・トイレは別なので、のんびりお風呂タイムも楽しめるでしょう。また、雨の日でも浴室乾燥機を使えば、お洗濯も問題ありません。
通信設備面では、インターネットが無料で使えるので、月々の出費を抑えられるのも魅力です。また、BSアンテナ・CSアンテナがありCATVにも対応しているので、おうち時間も充実するでしょう(別途工事、BS・CS・CATVの契約料等が必要な場合あり)。
建物にはエレベーターがついているので、重い荷物があっても安心。共用部には宅配ボックスが設定されているので、不在の時にも荷物を受け取ることができます。
コンビニまで徒歩2分の場所にあり、日用品や食料品のお買い物にも便利です。
このお部屋は2階以上に位置しているので、通行人や周囲の住人からの視線が気になりにくく、防犯面でも安心。建物のエントランスはオートロックがついており、インターホンにはTVモニタもついているため、相手の顔を確認してから来客対応することができます。
フローリングのお部屋なのでお掃除もラクラク。キッチンはシステムキッチン仕様になっていますので、お料理好きの方にもぴったり。バス・トイレは別なので、のんびりお風呂タイムも楽しめるでしょう。また、雨の日でも浴室乾燥機を使えば、お洗濯も問題ありません。
通信設備面では、インターネットが無料で使えるので、月々の出費を抑えられるのも魅力です。また、BSアンテナ・CSアンテナがありCATVにも対応しているので、おうち時間も充実するでしょう(別途工事、BS・CS・CATVの契約料等が必要な場合あり)。
建物にはエレベーターがついているので、重い荷物があっても安心。共用部には宅配ボックスが設定されているので、不在の時にも荷物を受け取ることができます。
コンビニまで徒歩2分の場所にあり、日用品や食料品のお買い物にも便利です。
お金・契約の情報
※「-」と表示されているものは、実際は料金が発生するものもございます。詳細はお問い合わせください。
| 家賃 | 9.7万円 | 管理費・共益費 | 5,000円 |
|---|---|---|---|
| 敷金 | 9.7万円 | 礼金 | 9.7万円 |
| 入居決定でお祝い金最大100,000円 | |||
| 保証金 | - | 償却・敷引 | - |
| 住宅保険料 | - | 更新料 | - |
| 保証会社利用 | 必須 | 保証会社名 | - |
| 保証会社費用 | - | 保証会社備考 | 保証会社利用必 DHF(初回総賃料40%、毎月総賃料1%、更新時更新料1%、解約時原状回復費用1%※クレジットカード発行必須)GTN(敷2/初回総賃料70%、月々2,000円 ※火災保険料を含みます) |
| 契約形態 | - | 契約期間 | - |
| 入居・引渡期間 | 相談 | 現況 | - |
| 契約備考 | 更新料新賃料1ヶ月 合計2.2万円(内訳:鍵交換代22000円) 1K 普通借家2年 損保【要】 バストイレ別、バルコニー、エアコン、ガスコンロ対応、クロゼット、フローリング、TVインターホン、浴室乾燥機、オートロック、室内洗濯置、シューズボックス、システムキッチン、エレベーター、洗面所独立、2口コンロ、駐輪場、宅配ボックス、CATV、BS・CS、グリル付、敷金1ヶ月、全居室フローリング、2沿線利用可、CS、ネット専用回線、ネット使用料不要、3駅以上利用可、駅徒歩10分以内、都市ガス、BS、礼金1ヶ月、保証会社利用可 | ||
部屋の情報
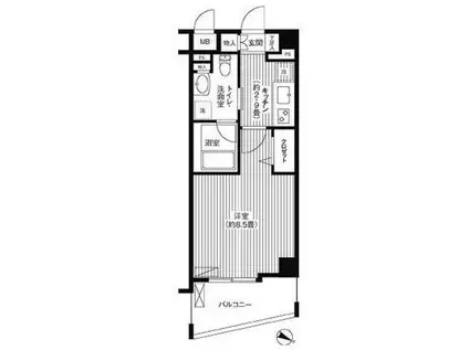
| 間取り | 1K | 専有面積 | 28.14m2 |
|---|---|---|---|
| 所在階 / 向き | 2階 / 東 | バルコニー面積 | - |
| 水道 / ガス | - | ||
| 設備 | バス・トイレ別、2階以上、オートロック、テレビドアホン、宅配ボックス、浴室乾燥機、インターネット対応、システムキッチン、エアコン、エレベーター、バルコニー、フローリング、洗髪洗面化粧台、2口コンロ、コンロ:ガス、CATV、CSアンテナ、BSアンテナ、インターネット使用料無料、洗濯機:室内 | ||
| 当社物件ID | 4955545 | ||
建物の情報
| 建物名 | アゼリアヒルハイツ | ||
|---|---|---|---|
| 所在地 | 東京都北区王子 | ||
| 交通 | 東京メトロ南北線 王子神谷駅 徒歩6分 東京メトロ南北線 王子駅 徒歩11分 JR京浜東北線 東十条駅 徒歩14分 | ||
| 階数 | 6階建 | 総戸数 | - |
| 築年月 | 2004年07月 / 築22年 | エレベーター | あり |
| 駐車場 | 空有 25300円 | バイク置き場 | - |
| 駐輪場 | あり | 管理人/管理会社 | - |
| 建物種別 | マンション | 建物構造 | RC(鉄筋コンクリート) |
この部屋の取扱い不動産会社
| 会社名 | シャーメゾンショップ (有)喜屋(SUUMO経由) | ||
|---|---|---|---|
| 所在地 | 東京都北区赤羽西1-37-1 | 交通 | - |
| 営業時間 | 10:00~19:00 | 定休日 | 毎週 水曜日 |
| 免許番号 | 東京都知事78820 | 取引態様 | 仲介 |
| 不動産会社管理番号 | 100502965795 | 当社管理番号 | 89 |
| 所属団体 | (公社)東京都宅地建物取引業協会会員 | ||
| 公正取引協議会 | (公社)首都圏不動産公正取引協議会加盟 | ||
| 取扱い物件情報 | 物件詳細へ | ||
※各種情報と現状に差異がある場合は、現状優先となります。問い合わせをすることで、より詳しい条件、情報を確認する事ができます。
提供:シャーメゾンショップ (有)喜屋(SUUMO経由)
この物件が気になったら掲載期限まであと10日
アゼリアヒルハイツに条件(家賃・エリア)が近い物件一覧
| 写真 | 家賃 管理費等 | 敷金 礼金 | 間取り 専有面積 | 築年数 | 最寄り駅 所在地 | キープ | 詳細 |
|---|---|---|---|---|---|---|---|
マンション AIR TOWER OTSUKA(1K/4階) | |||||||
![]() | 11.8万円 1万円 | 11.8万円 なし | 1K 25.35m2 | 築3年 | 都電荒川線 巣鴨新田駅 徒歩3分 JR山手線 大塚駅(東京) 徒歩7分 東武東上線 北池袋駅 徒歩14分 東京都豊島区西巣鴨 | 詳細を見る | |
マンション ザ・パークハビオ東長崎(1DK/4階) | |||||||
![]() | 14.1万円 1.5万円 | 14.1万円 14.1万円 | 1DK 30.77m2 | 築3年 | 西武池袋線 東長崎駅 徒歩1分 都営大江戸線 落合南長崎駅 徒歩10分 東京メトロ有楽町線 千川駅 徒歩18分 東京都豊島区南長崎 | 詳細を見る | |
マンション ウィンベルソロ亀有第6(ワンルーム/6階) | |||||||
![]() | 6.3万円 5,000円 | 6.3万円 なし | ワンルーム 23.63m2 | 築34年 | JR常磐線 亀有駅 徒歩17分 JR常磐線 綾瀬駅 徒歩18分 東京メトロ千代田線 北綾瀬駅 徒歩19分 東京都足立区東和 | 詳細を見る | |
マンション レオパレスシュペリュール(1K/1階) | |||||||
![]() | 8.4万円 5,500円 | なし 8.4万円 | 1K 19.87m2 | 築16年 | 東武東上線 上板橋駅 徒歩16分 東武東上線 ときわ台駅(東京) 徒歩17分 都営三田線 志村三丁目駅 徒歩18分 東京都板橋区前野町 | 詳細を見る | |
マンション VERXEED綾瀬駅前(1K/6階) | |||||||
![]() | 8.9万円 1.5万円 | なし 17.8万円 | 1K 25.83m2 | 築11年 | 東京メトロ千代田線 綾瀬駅 徒歩3分 つくばエクスプレス 青井駅 徒歩16分 東武伊勢崎線 小菅駅 徒歩16分 東京都足立区綾瀬 | 詳細を見る | |
マンション 関屋ステーションハイツ(1LDK/7階) | |||||||
![]() | 11.3万円 1.5万円 | なし なし | 1LDK 45m2 | 築51年 | 京成本線 京成関屋駅 徒歩1分 東武伊勢崎線 牛田駅(東京) 徒歩2分 東京メトロ千代田線 北千住駅 徒歩13分 東京都足立区千住曙町 | 詳細を見る | |
マンション ハニーマンション(1K/4階) | |||||||
![]() | 8万円 5,000円 | 4万円 12万円 | 1K 23.73m2 | 築18年 | 東武伊勢崎線 梅島駅 徒歩5分 東武伊勢崎線 五反野駅 徒歩15分 東武伊勢崎線 西新井駅 徒歩16分 東京都足立区梅島 | 詳細を見る | |
マンション WILLE NISHIARAI(ワンルーム/2階) | |||||||
![]() | 7.3万円 1万円 | なし なし | ワンルーム 20.55m2 | 築4年 | 東武伊勢崎線 梅島駅 徒歩2分 東武大師線 西新井駅 徒歩13分 東武伊勢崎線 五反野駅 徒歩19分 東京都足立区梅田 | 詳細を見る | |








