賃貸マンション
八木フラットの賃貸物件情報(2DK/3階)
| 家賃 | 管理費等 | 敷金 | 礼金 | 間取り | 専有面積 |
|---|---|---|---|---|---|
| 4.9万円 | なし | 9.8万円 | 4.9万円 | 2DK | 44.93m2 |
入居決定でお祝い金最大100,000円
- 保証金
- -
- 償却・敷引
- -
- 築年数
- 築32年
- 所在階
- 3階
- 向き
- 南東
Point
【良和ハウス】他店舗や他社様が掲載されている物件でも同条件でまとめてご紹介可能です!お客様駐車場完備!ご案内・ご相談は無料です!ご予約なしのご来店でも大歓迎♪お部屋探しは良和ハウスまで!!
提供:(株)良和ハウス上安店(SUUMO経由)

詳細情報 八木フラット
物件紹介
八木フラットはJR可部線梅林駅から徒歩6分にあり、駅近で通勤通学に便利なマンションです。
このお部屋は2階以上に位置しているので、通行人や周囲の住人からの視線が気になりにくく、防犯面でも安心です。
人気の南向き・フローリングのお部屋。角部屋でもあるため、周囲の居住者の生活音も気になりにくい場所です。バス・トイレ別の仕様で、のんびりお風呂タイムも楽しめます。
このお部屋は2階以上に位置しているので、通行人や周囲の住人からの視線が気になりにくく、防犯面でも安心です。
人気の南向き・フローリングのお部屋。角部屋でもあるため、周囲の居住者の生活音も気になりにくい場所です。バス・トイレ別の仕様で、のんびりお風呂タイムも楽しめます。
お金・契約の情報
※「-」と表示されているものは、実際は料金が発生するものもございます。詳細はお問い合わせください。
| 家賃 | 4.9万円 | 管理費・共益費 | なし |
|---|---|---|---|
| 敷金 | 9.8万円 | 礼金 | 4.9万円 |
| 入居決定でお祝い金最大100,000円 | |||
| 保証金 | - | 償却・敷引 | - |
| 住宅保険料 | - | 更新料 | - |
| 保証会社利用 | 必須 | 保証会社名 | 全保連 |
| 保証会社費用 | - | 保証会社備考 | 全保連利用必 初回総賃料の50% 年間保証委託料10,000円(1年毎) |
| 契約形態 | - | 契約期間 | - |
| 入居・引渡期間 | 相談 | 現況 | - |
| 契約備考 | 合計0.66万円(内訳:カギ交換代:6600円) 2DK 損保【2万円2年】 バストイレ別、バルコニー、エアコン、シャワー付洗面台、室内洗濯置、陽当り良好、シューズボックス、角住戸、温水洗浄便座、脱衣所、洗面所独立、駐輪場、押入、閑静な住宅地、最上階、駐車場1台無料、単身者相談、二人入居相談、2沿線利用可、駅まで平坦、内装リフォーム済、平坦地、3駅以上利用可、駅徒歩10分以内、上階無し、敷地内ごみ置き場、平面駐車場、東南向き、和室、オープンキッチン、プロパンガス、洗面所にドア、保証会社利用可、初期費用カード決済可 | ||
部屋の情報
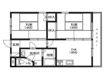
| 間取り | 2DK | 専有面積 | 44.93m2 |
|---|---|---|---|
| 所在階 / 向き | 3階 / 南東 | バルコニー面積 | - |
| 水道 / ガス | - | ||
| 設備 | バス・トイレ別、2階以上、エアコン、温水洗浄便座、南向き、角部屋、バルコニー、洗髪洗面化粧台、洗濯機:室内 | ||
| 当社物件ID | 18279355 | ||
建物の情報
| 建物名 | 八木フラット | ||
|---|---|---|---|
| 所在地 | 広島県広島市安佐南区 | ||
| 交通 | JR可部線 梅林駅(広島) 徒歩6分 JR可部線 上八木駅 徒歩12分 JR芸備線 玖村駅 徒歩27分 | ||
| 階数 | 3階建 | 総戸数 | 6戸 |
| 築年月 | 1994年02月 / 築32年 | エレベーター | - |
| 駐車場 | 空有 6000円 | バイク置き場 | - |
| 駐輪場 | あり | 管理人/管理会社 | - |
| 周辺環境 | その他 ゆめマート八木(スーパー)まで765m その他 セブンイレブン広島八木4丁目店(コンビニ)まで115m その他 ウォンツ八木店(ドラッグストア)まで433m その他 広島市立梅林小学校(小学校)まで1070m その他 八木郵便局(郵便局)まで56m その他 広島市立城山北中学校(中学校)まで619m | ||
| 建物種別 | マンション | 建物構造 | RC(鉄筋コンクリート) |
この部屋の取扱い不動産会社
| 会社名 | (株)良和ハウス祇園店(SUUMO経由) | ||
|---|---|---|---|
| 所在地 | 広島県広島市安佐南区西原4-34-23 | 交通 | - |
| 営業時間 | 10時~18時 | 定休日 | 火曜日 |
| 免許番号 | 国土交通大臣9113 | 取引態様 | 仲介 |
| 不動産会社管理番号 | 100470048993 | 当社管理番号 | 89 |
| 所属団体 | (公社)広島県宅地建物取引業協会会員 | ||
| 公正取引協議会 | 中国地区不動産公正取引協議会加盟 | ||
| 取扱い物件情報 | 物件詳細へ | ||
※各種情報と現状に差異がある場合は、現状優先となります。問い合わせをすることで、より詳しい条件、情報を確認する事ができます。
提供:(株)良和ハウス祇園店(SUUMO経由)
この物件が気になったら掲載期限まであと10日
八木フラットに条件(家賃・エリア)が近い物件一覧
| 写真 | 家賃 管理費等 | 敷金 礼金 | 間取り 専有面積 | 築年数 | 最寄り駅 所在地 | キープ | 詳細 |
|---|---|---|---|---|---|---|---|
マンション KSB 祇園(1K/4階) | |||||||
![]() | 4.5万円 3,000円 | なし 4.5万円 | 1K 25m2 | 築34年 | 可部線 下祇園駅 徒歩13分 広島県広島市安佐南区祇園2丁目 | 詳細を見る | |
マンション ハーシオンフルタIII(1DK/2階) | |||||||
![]() | 4.3万円 3,000円 | 8.6万円 4.3万円 | 1DK 26m2 | 築30年 | アストラムライン 祇園新橋北駅 徒歩7分 可部線 下祇園駅 徒歩12分 アストラムライン 不動院前駅 徒歩13分 広島県広島市安佐南区西原2丁目 | 詳細を見る | |


