賃貸マンション
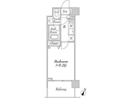
BLUROCK豊洲の賃貸物件情報(1K/7階)
| 家賃 | 管理費等 | 敷金 | 礼金 | 間取り | 専有面積 |
|---|---|---|---|---|---|
| 10.8万円 | 2万円 | なし | なし | 1K | 20.47m2 |
入居決定でお祝い金最大100,000円
- 保証金
- -
- 償却・敷引
- -
- 築年数
- 築20年
- 所在階
- 7階
- 向き
- 南東
Point
オンライン内見可☆初期費用クレカ決済ご相談ください!!お部屋探しはピアホームにお任せください◎
提供:みんなのへや月島駅前店(株)Lotus Link(SUUMO経由)

詳細情報 BLUROCK豊洲
物件紹介
BLUROCK豊洲は東京メトロ有楽町線豊洲駅から徒歩9分にあり、駅近で通勤通学に便利なマンションです。
このお部屋は2階以上に位置しているので、通行人や周囲の住人からの視線が気になりにくく、防犯面でも安心。建物のエントランスはオートロックがついており、インターホンにはTVモニタもついているため、相手の顔を確認してから来客対応することができます。
おしゃれなデザイナーズ物件!人気の南向きのお部屋。また、フローリングなのでお掃除もラクラク。キッチンはシステムキッチン仕様になっていますので、お料理好きの方にもぴったり。バス・トイレは別なので、のんびりお風呂タイムも楽しめるでしょう。また、雨の日でも浴室乾燥機を使えば、お洗濯も問題ありません。
通信設備面では、インターネットが無料で使えるので、月々の出費を抑えられるのも魅力です。また、BSアンテナ・CSアンテナもありますので、おうち時間も充実するでしょう(別途工事、BS・CSの契約料等が必要な場合あり)。
建物にはエレベーターがついているので、重い荷物があっても安心。共用部には宅配ボックスが設定されているので、不在の時にも荷物を受け取ることができます。
このお部屋は2階以上に位置しているので、通行人や周囲の住人からの視線が気になりにくく、防犯面でも安心。建物のエントランスはオートロックがついており、インターホンにはTVモニタもついているため、相手の顔を確認してから来客対応することができます。
おしゃれなデザイナーズ物件!人気の南向きのお部屋。また、フローリングなのでお掃除もラクラク。キッチンはシステムキッチン仕様になっていますので、お料理好きの方にもぴったり。バス・トイレは別なので、のんびりお風呂タイムも楽しめるでしょう。また、雨の日でも浴室乾燥機を使えば、お洗濯も問題ありません。
通信設備面では、インターネットが無料で使えるので、月々の出費を抑えられるのも魅力です。また、BSアンテナ・CSアンテナもありますので、おうち時間も充実するでしょう(別途工事、BS・CSの契約料等が必要な場合あり)。
建物にはエレベーターがついているので、重い荷物があっても安心。共用部には宅配ボックスが設定されているので、不在の時にも荷物を受け取ることができます。
お金・契約の情報
※「-」と表示されているものは、実際は料金が発生するものもございます。詳細はお問い合わせください。
| 家賃 | 10.8万円 | 管理費・共益費 | 2万円 |
|---|---|---|---|
| 敷金 | なし | 礼金 | なし |
| フリーレント | あり | ||
| 入居決定でお祝い金最大100,000円 | |||
| 保証金 | - | 償却・敷引 | - |
| 住宅保険料 | - | 更新料 | - |
| 保証会社利用 | 必須 | 保証会社名 | - |
| 保証会社費用 | - | 保証会社備考 | 保証会社利用必 【エポス】初回保証料:月額賃料等の40%、次年度以降保証料:1.0万円/年、または1.4万円/年 |
| 契約形態 | - | 契約期間 | - |
| 入居・引渡期間 | 相談 | 現況 | - |
| 契約備考 | 通勤管理/※短期解約違約金有:1年未満(賃料1ヶ月分)、半年未満(賃料2ヶ月分) 合計3.63万円(内訳:カードキー:16500円、24hサポート:19800円) ■室内清掃費・エアコン清掃費:借主負担□インターネット無料 1K 損保【1.8万円2年】 バストイレ別、バルコニー、エアコン、ガスコンロ対応、クロゼット、フローリング、TVインターホン、浴室乾燥機、オートロック、室内洗濯置、陽当り良好、シューズボックス、システムキッチン、温水洗浄便座、エレベーター、2口コンロ、駐輪場、宅配ボックス、光ファイバー、防犯カメラ、保証人不要、カードキー、CS、ネット使用料不要、フリーレント、南面リビング、24時間ゴミ出し可、敷地内ごみ置き場、東南向き、都市ガス、南面バルコニー、BS、初期費用カード決済可 | ||
部屋の情報
| 間取り | 1K | 専有面積 | 20.47m2 |
|---|---|---|---|
| 所在階 / 向き | 7階 / 南東 | バルコニー面積 | - |
| 水道 / ガス | - | ||
| 設備 | バス・トイレ別、2階以上、オートロック、テレビドアホン、宅配ボックス、浴室乾燥機、インターネット対応、システムキッチン、エアコン、エレベーター、温水洗浄便座、南向き、バルコニー、フローリング、2口コンロ、コンロ:ガス、CSアンテナ、BSアンテナ、インターネット使用料無料、洗濯機:室内 | ||
| 当社物件ID | 159462712 | ||
建物の情報
| 建物名 | BLUROCK豊洲 | ||
|---|---|---|---|
| 所在地 | 東京都江東区東雲 | ||
| 交通 | 東京メトロ有楽町線 豊洲駅 徒歩9分 りんかい線 東雲駅(東京) 徒歩14分 新交通ゆりかもめ 新豊洲駅 徒歩22分 | ||
| 階数 | 11階建 | 総戸数 | - |
| 築年月 | 2006年08月 / 築20年 | エレベーター | あり |
| 駐車場 | 近隣 50m45000円 | バイク置き場 | - |
| 駐輪場 | あり | 管理人/管理会社 | - |
| 周辺環境 | その他 セブン-イレブン 東雲1丁目店(コンビニ)まで62m その他 ライフ豊洲店(スーパー)まで293m その他 東雲小学校(小学校)まで757m その他 有明中学校(中学校)まで1095m その他 昭和大学江東豊洲病院(病院)まで427m | ||
| 建物種別 | マンション | 建物構造 | RC(鉄筋コンクリート) |
この部屋の取扱い不動産会社
| 会社名 | SEG(株)PeerHome新橋店(SUUMO経由) | ||
|---|---|---|---|
| 所在地 | 東京都港区西新橋1-5-10 TJ内幸町ビル10階 | 交通 | - |
| 営業時間 | 9:00-18:30 | 定休日 | - |
| 免許番号 | 東京都知事103362 | 取引態様 | 仲介 |
| 不動産会社管理番号 | 100475594715 | 当社管理番号 | 89 |
| 取扱い物件情報 | 物件詳細へ | ||
※各種情報と現状に差異がある場合は、現状優先となります。問い合わせをすることで、より詳しい条件、情報を確認する事ができます。
提供:SEG(株)PeerHome新橋店(SUUMO経由)
この物件が気になったら掲載期限まであと10日
BLUROCK豊洲に条件(家賃・エリア)が近い物件一覧
| 写真 | 家賃 管理費等 | 敷金 礼金 | 間取り 専有面積 | 築年数 | 最寄り駅 所在地 | キープ | 詳細 |
|---|---|---|---|---|---|---|---|
マンション SEED JUST B-BASE Ⅱ(1LDK/3階) | |||||||
![]() | 8.8万円 1.5万円 | 8.8万円 8.8万円 | 1LDK 23.07m2 | 新築 | 東京モノレール羽田 昭和島駅 徒歩11分 京浜急行電鉄本線 梅屋敷駅(東京) 徒歩19分 東京都大田区大森南4丁目 | 詳細を見る | |
マンション プレール・ドゥーク銀座イースト 6階(1K/6階) | |||||||
![]() | 10万円 1万円 | なし 10万円 | 1K 23.35m2 | 築22年 | 東京メトロ有楽町線 新富町駅(東京) 徒歩6分 JR京葉線 八丁堀駅(東京) 徒歩11分 東京メトロ日比谷線 八丁堀駅(東京) 徒歩11分 東京都中央区湊 | 詳細を見る | |
マンション レジディア大井町Ⅱ(ワンルーム/9階) | |||||||
![]() | 15.6万円 2万円 | なし なし | ワンルーム 30.24m2 | 築19年 | 東急大井町線 大井町駅 徒歩5分 東京都品川区大井1丁目 | 詳細を見る | |
マンション RASICLAS KAMATA(1K/4階) | |||||||
![]() | 9.9万円 1.5万円 | なし なし | 1K 19.9m2 | 築8年 | 京急本線 梅屋敷駅(東京) 徒歩2分 京急空港線 京急蒲田駅 徒歩10分 JR京浜東北線 蒲田駅 徒歩15分 東京都大田区蒲田 | 詳細を見る | |
アパート M SONIA KUGAHARA(ワンルーム/1階) | |||||||
![]() | 9.1万円 3,000円 | 9.1万円 13.65万円 | ワンルーム 24.64m2 | 築1年 | 東急池上線 久が原駅 徒歩8分 東急池上線 御嶽山駅 徒歩9分 東京都大田区西嶺町 | 詳細を見る | |
アパート 月島ひまわり荘(ワンルーム/2階) | |||||||
![]() | 10万円 なし | なし 20万円 | ワンルーム 12.94m2 | 築40年 | 都営大江戸線 月島駅 徒歩4分 東京メトロ有楽町線 月島駅 徒歩5分 都営大江戸線 勝どき駅 徒歩10分 東京都中央区月島 | 詳細を見る | |
マンション MODULOR久が原(ワンルーム/1階) | |||||||
![]() | 10.6万円 1万円 | なし なし | ワンルーム 22.41m2 | 築22年 | 東急池上線 千鳥町駅 徒歩6分 東急池上線 池上駅 徒歩10分 東京都大田区千鳥1丁目 | 詳細を見る | |
マンション グランドモンド羽田(1DK/5階) | |||||||
![]() | 11.5万円 5,800円 | なし 17.25万円 | 1DK 31.8m2 | 築4年 | 京浜急行電鉄本線 大森町駅 徒歩17分 東京都大田区大森東5丁目 | 詳細を見る | |








