賃貸アパート
リブリ・ラフィットの賃貸物件情報(1K/1階)
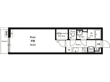
| 家賃 | 管理費等 | 敷金 | 礼金 | 間取り | 専有面積 |
|---|---|---|---|---|---|
| 6.3万円 | 4,000円 | なし | 6.3万円 | 1K | 27.32m2 |
入居決定でお祝い金最大100,000円
- 保証金
- -
- 償却・敷引
- -
- 築年数
- 築13年
- 所在階
- 1階
- 向き
- 北西
Point
室内設備は洗面所独立・浴室乾燥機などが揃っており、とても充実しています。収納はシューズボックス・クロゼットなどが備え付けられているので、衣類や日用品の収納に重宝します。初期費用のカード決済ができます。
提供:(株)FT-ハウス(SUUMO経由)

詳細情報 リブリ・ラフィット
物件紹介
リブリ・ラフィットは京成松戸線前原駅から徒歩10分にあり、駅近で通勤通学に便利なアパートです。
このお部屋は2階以上に位置しているので、通行人や周囲の住人からの視線が気になりにくく、防犯面でも安心。建物のエントランスはオートロックがついており、インターホンにはTVモニタもついているため、相手の顔を確認してから来客対応することができます。
フローリングのお部屋なのでお掃除もラクラク。室内には人気のウォークインクローゼットがありますので、たくさんの荷物も効率的に収納ができます。キッチンはシステムキッチン仕様になっていますので、お料理好きの方にもぴったり。バス・トイレは別なので、のんびりお風呂タイムも楽しめるでしょう。また、雨の日でも浴室乾燥機を使えば、お洗濯も問題ありません。
通信設備面では、インターネットが無料で使えるので、月々の出費を抑えられるのも魅力です。また、BSアンテナもありますので、おうち時間も充実するでしょう(別途工事、BSの契約料等が必要な場合あり)。
このお部屋は2階以上に位置しているので、通行人や周囲の住人からの視線が気になりにくく、防犯面でも安心。建物のエントランスはオートロックがついており、インターホンにはTVモニタもついているため、相手の顔を確認してから来客対応することができます。
フローリングのお部屋なのでお掃除もラクラク。室内には人気のウォークインクローゼットがありますので、たくさんの荷物も効率的に収納ができます。キッチンはシステムキッチン仕様になっていますので、お料理好きの方にもぴったり。バス・トイレは別なので、のんびりお風呂タイムも楽しめるでしょう。また、雨の日でも浴室乾燥機を使えば、お洗濯も問題ありません。
通信設備面では、インターネットが無料で使えるので、月々の出費を抑えられるのも魅力です。また、BSアンテナもありますので、おうち時間も充実するでしょう(別途工事、BSの契約料等が必要な場合あり)。
お金・契約の情報
※「-」と表示されているものは、実際は料金が発生するものもございます。詳細はお問い合わせください。
| 家賃 | 6.3万円 | 管理費・共益費 | 4,000円 |
|---|---|---|---|
| 敷金 | なし | 礼金 | 6.3万円 |
| 入居決定でお祝い金最大100,000円 | |||
| 保証金 | - | 償却・敷引 | - |
| 住宅保険料 | - | 更新料 | - |
| 保証会社利用 | 必須 | 保証会社名 | - |
| 保証会社費用 | - | 保証会社備考 | 保証会社利用必 基本料:月額支払合計の100%、月額:1.1%、手数料:330円/月 基本料:月額支払合計の100%、月額:1.1%、手数料:330円/月 |
| 契約形態 | 定期借家 | 契約期間 | 2年 |
| 入居・引渡期間 | - | 現況 | - |
| 契約備考 | 巡回管理 合計4.84万円(内訳:リブリクラブ入会費0.77万円室内消毒費1.65万円鍵交換代2.42万円) 更新料 新賃料1.00ヶ月分 室内清掃費用 41800円 リブリクラブ会費(毎月) 月額2200円 1K 子供不可/事務所利用不可/ルームシェア不可 定期借家2年 損保【1.9万円2年】 バストイレ別、バルコニー、エアコン、クロゼット、フローリング、TVインターホン、浴室乾燥機、オートロック、室内洗濯置、シューズボックス、システムキッチン、温水洗浄便座、洗面所独立、2口コンロ、駐輪場、IHクッキングヒーター、保証人不要、ディンプルキー、ネット使用料不要、学生相談、敷地内ごみ置き場、セキュリティ会社加入済、プロパンガス、玄関収納、保証会社利用可、初期費用カード決済可 入居日:'26年3月下旬 | ||
部屋の情報
| 間取り | 1K | 専有面積 | 27.32m2 |
|---|---|---|---|
| 所在階 / 向き | 1階 / 北西 | バルコニー面積 | - |
| 水道 / ガス | - | ||
| 設備 | バス・トイレ別、オートロック、テレビドアホン、浴室乾燥機、インターネット対応、システムキッチン、エアコン、温水洗浄便座、バルコニー、フローリング、洗髪洗面化粧台、2口コンロ、コンロ:IH、インターネット使用料無料、洗濯機:室内 | ||
| 当社物件ID | 10286918 | ||
建物の情報
| 建物名 | リブリ・ラフィット | ||
|---|---|---|---|
| 所在地 | 千葉県船橋市前原西 | ||
| 交通 | 京成松戸線 前原駅 徒歩11分 JR総武線 津田沼駅 徒歩20分 京成松戸線 新津田沼駅 徒歩22分 | ||
| 階数 | 3階建 | 総戸数 | 15戸 |
| 築年月 | 2013年07月 / 築13年 | エレベーター | - |
| 駐車場 | なし | バイク置き場 | - |
| 駐輪場 | あり | 管理人/管理会社 | - |
| 周辺環境 | その他 リブレ京成 アルビス前原店(スーパー)まで214m その他 トップマート 津田沼店(スーパー)まで1173m その他 ミニストップ 前原西6丁目店(コンビニ)まで411m その他 ファミリーマート 前原駅前店(コンビニ)まで699m その他 くすりの福太郎 前原店(ドラッグストア)まで447m その他 セブンイレブン 船橋前原西6丁目店(コンビニ)まで133m | ||
| 建物種別 | アパート | 建物構造 | 鉄骨造 |
この部屋の取扱い不動産会社
| 会社名 | ケイエスホーム(株)船橋駅前支店(SUUMO経由) | ||
|---|---|---|---|
| 所在地 | 千葉県船橋市本町5-4-1 シンワ船橋第一ビル1階 | 交通 | - |
| 営業時間 | AM10:00~PM6:00 | 定休日 | 水、日曜日 |
| 免許番号 | 国土交通大臣10073 | 取引態様 | 仲介 |
| 不動産会社管理番号 | 100450332962 | 当社管理番号 | 89 |
| 所属団体 | (一社)千葉県宅地建物取引業協会会員 | ||
| 公正取引協議会 | (公社)首都圏不動産公正取引協議会加盟 | ||
| 取扱い物件情報 | 物件詳細へ | ||
※各種情報と現状に差異がある場合は、現状優先となります。問い合わせをすることで、より詳しい条件、情報を確認する事ができます。
提供:ケイエスホーム(株)船橋駅前支店(SUUMO経由)
この物件が気になったら掲載期限まであと10日
リブリ・ラフィットに条件(家賃・エリア)が近い物件一覧
| 写真 | 家賃 管理費等 | 敷金 礼金 | 間取り 専有面積 | 築年数 | 最寄り駅 所在地 | キープ | 詳細 |
|---|---|---|---|---|---|---|---|
マンション 市川妙典レジデンス(1K/1階) | |||||||
![]() | 8.8万円 1万円 | なし なし | 1K 27.04m2 | 築19年 | 東京メトロ東西線 妙典駅 徒歩9分 東京メトロ東西線 行徳駅 徒歩28分 東京メトロ東西線 原木中山駅 徒歩31分 千葉県市川市塩焼 | 詳細を見る | |
アパート サニーハウス(1K/2階) | |||||||
![]() | 5.2万円 1,000円 | 5.2万円 なし | 1K 20.22m2 | 築44年 | JR総武線 船橋駅 徒歩7分 京成本線 京成船橋駅 徒歩7分 東葉高速鉄道 東海神駅 徒歩8分 千葉県船橋市海神 | 詳細を見る | |
アパート LIKES飯山満町A棟(1LDK/2階) | |||||||
![]() | 8.3万円 4,000円 | なし なし | 1LDK 32.85m2 | 築1年 | 東葉高速鉄道 飯山満駅 徒歩17分 京成松戸線 前原駅 徒歩19分 JR総武線 東船橋駅 徒歩26分 千葉県船橋市飯山満町 | 詳細を見る | |
マンション ラレーブ津田沼IV(ワンルーム/1階) | |||||||
![]() | 4.7万円 5,000円 | なし なし | ワンルーム 16.8m2 | 築36年 | 京成松戸線 前原駅 徒歩10分 JR総武線 津田沼駅 徒歩12分 千葉県船橋市前原西 | 詳細を見る | |
アパート グリーンホース(2K/1階) | |||||||
![]() | 4.9万円 1,000円 | なし なし | 2K 34.78m2 | 築42年 | 東葉高速鉄道 飯山満駅 徒歩4分 京成松戸線 前原駅 徒歩32分 千葉県船橋市芝山 | 詳細を見る | |
マンション アーバンパーク西船橋(1K/2階) | |||||||
![]() | 8.2万円 1.5万円 | なし なし | 1K 20.59m2 | 築1年 | 京成本線 東中山駅 徒歩4分 JR総武線 西船橋駅 徒歩11分 東京メトロ東西線 原木中山駅 徒歩29分 千葉県船橋市西船 | 詳細を見る | |
マンション エスコートビル(ワンルーム/2階) | |||||||
![]() | 5.9万円 3,000円 | 5.9万円 なし | ワンルーム 30.93m2 | 築36年 | 総武・中央緩行線 船橋駅 徒歩17分 東武鉄道野田線 塚田駅 徒歩17分 千葉県船橋市夏見4丁目 | 詳細を見る | |
マンション プレミールS(ワンルーム/3階) | |||||||
![]() | 6.2万円 2,000円 | 6.2万円 なし | ワンルーム 25.46m2 | 築24年 | 京成本線 京成津田沼駅 徒歩6分 JR総武線 津田沼駅 徒歩20分 JR京葉線 新習志野駅 徒歩25分 千葉県習志野市津田沼 | 詳細を見る | |









