賃貸マンション
ジェノヴィア学芸大学の賃貸物件情報(1K/2階)
| 家賃 | 管理費等 | 敷金 | 礼金 | 間取り | 専有面積 |
|---|---|---|---|---|---|
| 14万円 | 1万円 | なし | なし | 1K | 25.56m2 |
入居決定でお祝い金最大100,000円
- 保証金
- -
- 償却・敷引
- -
- 築年数
- 築3年
- 所在階
- 2階
- 向き
- 北
Point
当物件は初期費用分割払い可(クレジットカード決済も可)/お客様のご希望に合わせた方法(店頭、オンライン等)で物件をご提案いたします。初期費用のお見積りや入居希望日のご相談もお気軽にお問い合わせください
提供:NAVI HOME(株)恵比寿2nd(SUUMO経由)

詳細情報 ジェノヴィア学芸大学
物件紹介
ジェノヴィア学芸大学は東急東横線学芸大学駅から徒歩12分にあるマンションです。
このお部屋は2階以上に位置しているので、通行人や周囲の住人からの視線が気になりにくく、防犯面でも安心。建物のエントランスはオートロックがついており、インターホンにはTVモニタもついているため、相手の顔を確認してから来客対応することができます。
人気の角部屋で周囲の居住者の生活音も気になりにくく、また、フローリングのお部屋なのでお掃除もラクラク。キッチンはシステムキッチン仕様になっていますので、お料理好きの方にもぴったり。バス・トイレは別なので、のんびりお風呂タイムも楽しめるでしょう。また、雨の日でも浴室乾燥機を使えば、お洗濯も問題ありません。
通信設備面では、インターネットが無料で使えるので、月々の出費を抑えられるのも魅力です。また、BSアンテナ・CSアンテナもありますので、おうち時間も充実するでしょう(別途工事、BS・CSの契約料等が必要な場合あり)。
建物にはエレベーターがついているので、重い荷物があっても安心。共用部には宅配ボックスが設定されているので、不在の時にも荷物を受け取ることができます。また、ペット飼育の相談ができますので、あなたの大切な家族の一員も快適に暮らせるか、ぜひ確認してみてください。
このお部屋は2階以上に位置しているので、通行人や周囲の住人からの視線が気になりにくく、防犯面でも安心。建物のエントランスはオートロックがついており、インターホンにはTVモニタもついているため、相手の顔を確認してから来客対応することができます。
人気の角部屋で周囲の居住者の生活音も気になりにくく、また、フローリングのお部屋なのでお掃除もラクラク。キッチンはシステムキッチン仕様になっていますので、お料理好きの方にもぴったり。バス・トイレは別なので、のんびりお風呂タイムも楽しめるでしょう。また、雨の日でも浴室乾燥機を使えば、お洗濯も問題ありません。
通信設備面では、インターネットが無料で使えるので、月々の出費を抑えられるのも魅力です。また、BSアンテナ・CSアンテナもありますので、おうち時間も充実するでしょう(別途工事、BS・CSの契約料等が必要な場合あり)。
建物にはエレベーターがついているので、重い荷物があっても安心。共用部には宅配ボックスが設定されているので、不在の時にも荷物を受け取ることができます。また、ペット飼育の相談ができますので、あなたの大切な家族の一員も快適に暮らせるか、ぜひ確認してみてください。
お金・契約の情報
※「-」と表示されているものは、実際は料金が発生するものもございます。詳細はお問い合わせください。
| 家賃 | 14万円 | 管理費・共益費 | 1万円 |
|---|---|---|---|
| 敷金 | なし | 礼金 | なし |
| 入居決定でお祝い金最大100,000円 | |||
| 保証金 | - | 償却・敷引 | - |
| 住宅保険料 | - | 更新料 | - |
| 保証会社利用 | 必須 | 保証会社名 | - |
| 保証会社費用 | - | 保証会社備考 | 保証会社利用必 初回:賃料等の50%、月額:2700円 |
| 契約形態 | - | 契約期間 | - |
| 入居・引渡期間 | - | 現況 | - |
| 入居可能条件 | ペット相談 | ||
| 契約備考 | 小西医院まで440m/目黒郵便局まで354m/ペット飼育時敷金1ヶ月積増(解約時償却)/短期解約違約金1年未満の解約で総賃料1ヵ月分/留学生ワーホリの方敷金1ヵ月追加(解約時返還)/駐輪場代借主負担(使用時)/鍵交換代借主負担 合計7.7万円(内訳:室内清掃費用38500円/消臭抗菌サービス11000円/契約事務手数料11000円/エアコン内部洗浄16500円) 1K ペット相談 普通借家2年 損保【要】 バストイレ別、バルコニー、エアコン、ガスコンロ対応、フローリング、TVインターホン、浴室乾燥機、オートロック、室内洗濯置、システムキッチン、角住戸、温水洗浄便座、エレベーター、駐輪場、宅配ボックス、光ファイバー、外壁タイル張り、BS・CS、防犯カメラ、分譲賃貸、バイク置場、2沿線利用可、ネット使用料不要、保証金不要、外壁コンクリート、築3年以内、3駅以上利用可、24時間ゴミ出し可、都市ガス、高速ネット対応、敷金・礼金不要、初期費用カード決済可 入居日:'26年3月下旬 | ||
部屋の情報
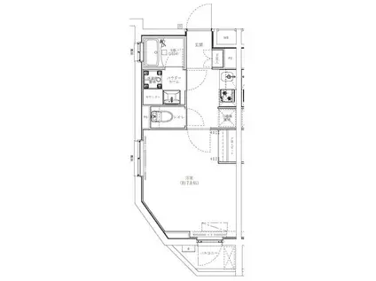
| 間取り | 1K | 専有面積 | 25.56m2 |
|---|---|---|---|
| 所在階 / 向き | 2階 / 北 | バルコニー面積 | - |
| 水道 / ガス | - | ||
| 設備 | バス・トイレ別、2階以上、オートロック、テレビドアホン、宅配ボックス、浴室乾燥機、インターネット対応、システムキッチン、エアコン、エレベーター、温水洗浄便座、角部屋、バルコニー、フローリング、コンロ:ガス、CSアンテナ、BSアンテナ、インターネット使用料無料、洗濯機:室内 | ||
| 当社物件ID | 147245052 | ||
建物の情報
| 建物名 | ジェノヴィア学芸大学 | ||
|---|---|---|---|
| 所在地 | 東京都目黒区目黒本町 | ||
| 交通 | 東急東横線 学芸大学駅 徒歩12分 東急目黒線 武蔵小山駅 徒歩20分 東急東横線 祐天寺駅 徒歩22分 | ||
| 階数 | 5階建 | 総戸数 | - |
| 築年月 | 2023年06月 / 築3年 | エレベーター | あり |
| 駐車場 | 近隣 200m40700円 | バイク置き場 | あり |
| 駐輪場 | あり | 管理人/管理会社 | - |
| 周辺環境 | その他 GAKUDAI KOUKASHITA(ショッピングセンター)まで1034m その他 まいばすけっと目黒本町2丁目店(スーパー)まで245m その他 セブン-イレブン 目黒本町2丁目店(コンビニ)まで274m その他 サンドラッグ 学芸大学駅前店(ドラッグストア)まで859m その他 Factory & Labo 神乃珈琲(飲食店)まで422m その他 目黒病院(病院)まで849m | ||
| 建物種別 | マンション | 建物構造 | RC(鉄筋コンクリート) |
この部屋の取扱い不動産会社
| 会社名 | アエラス目黒店 (株)アエラス.FR(SUUMO経由) | ||
|---|---|---|---|
| 所在地 | 東京都目黒区目黒1-4-8 東レクビル 5階 | 交通 | - |
| 営業時間 | 10:00~19:00(時間外対応出来る場合有り) | 定休日 | 年中無休(年末年始などを除く) |
| 免許番号 | 国土交通大臣10206 | 取引態様 | 仲介 |
| 不動産会社管理番号 | 100479870746 | 当社管理番号 | 89 |
| 所属団体 | (公社)全日本不動産協会東京都本部会員 | ||
| 公正取引協議会 | (公社)首都圏不動産公正取引協議会加盟 | ||
| 取扱い物件情報 | 物件詳細へ | ||
※各種情報と現状に差異がある場合は、現状優先となります。問い合わせをすることで、より詳しい条件、情報を確認する事ができます。
提供:アエラス目黒店 (株)アエラス.FR(SUUMO経由)
この物件が気になったら掲載期限まであと11日
ジェノヴィア学芸大学に条件(家賃・エリア)が近い物件一覧
| 写真 | 家賃 管理費等 | 敷金 礼金 | 間取り 専有面積 | 築年数 | 最寄り駅 所在地 | キープ | 詳細 |
|---|---|---|---|---|---|---|---|
アパート セゾン橋本(1K/2階) | |||||||
![]() | 8.5万円 2,000円 | 8.5万円 8.5万円 | 1K 23.52m2 | 築18年 | 京急本線 梅屋敷駅(東京) 徒歩7分 京急本線 大森町駅 徒歩11分 京急本線 京急蒲田駅 徒歩19分 東京都大田区大森中 | 詳細を見る | |
マンション SEED JUST B-BASE Ⅱ(1LDK/1階) | |||||||
![]() | 8.8万円 1.5万円 | 8.8万円 8.8万円 | 1LDK 23.07m2 | 新築 | 東京モノレール羽田 昭和島駅 徒歩11分 京浜急行電鉄本線 梅屋敷駅(東京) 徒歩19分 東京都大田区大森南4丁目 | 詳細を見る | |
マンション 菊鮨ビル(1K/3階) | |||||||
![]() | 8.5万円 3,000円 | 8.5万円 なし | 1K 22m2 | 築42年 | JR京浜東北線 蒲田駅 徒歩9分 京急本線 京急蒲田駅 徒歩10分 京急本線 梅屋敷駅(東京) 徒歩12分 東京都大田区蒲田 | 詳細を見る | |
マンション パイングロリア(ワンルーム/4階) | |||||||
![]() | 9.8万円 7,000円 | なし 9.8万円 | ワンルーム 30.97m2 | 築21年 | 京浜急行電鉄本線 京急蒲田駅 徒歩10分 東急多摩川線 蒲田駅 徒歩11分 京浜急行電鉄本線 雑色駅 徒歩13分 東京都大田区蒲田本町2丁目 | 詳細を見る | |
アパート REGALEST KAMATA(1LDK/3階) | |||||||
![]() | 14.4万円 5,000円 | なし 14.4万円 | 1LDK 30.06m2 | 築3年 | 京急本線 梅屋敷駅(東京) 徒歩7分 京急本線 京急蒲田駅 徒歩9分 JR京浜東北線 蒲田駅 徒歩12分 東京都大田区蒲田 | 詳細を見る | |
アパート SEED SAVE PETIRASU Ⅲ(2DK/1階) | |||||||
![]() | 12万円 1万円 | 24万円 12万円 | 2DK 35.83m2 | 新築 | 東京モノレール羽田 昭和島駅 徒歩12分 京浜急行電鉄本線 大森町駅 徒歩18分 東京都大田区大森東5丁目 | 詳細を見る | |
マンション ドゥーエ蒲田(1K/7階) | |||||||
![]() | 10.6万円 7,000円 | 10.6万円 10.6万円 | 1K 22.08m2 | 築19年 | JR京浜東北線 蒲田駅 徒歩5分 東急池上線 蓮沼駅 徒歩6分 京急本線 京急蒲田駅 徒歩16分 東京都大田区西蒲田 | 詳細を見る | |
マンション クレストコート池上(2LDK/10階) | |||||||
![]() | 22.6万円 1.8万円 | 22.6万円 なし | 2LDK 45.88m2 | 築1年 | 東急池上線 池上駅 徒歩4分 東急池上線 蓮沼駅 徒歩13分 東急多摩川線 矢口渡駅 徒歩21分 東京都大田区池上 | 詳細を見る | |








