賃貸アパート
京都市東西線 椥辻駅 徒歩19分 2階建 築51年の賃貸物件情報(2K/1階)
| 家賃 | 管理費等 | 敷金 | 礼金 | 間取り | 専有面積 |
|---|---|---|---|---|---|
| 3.5万円 | なし | なし | 3万円 | 2K | 28m2 |
入居決定でお祝い金最大100,000円
Point
山科西野エリアより 京都でのお部屋探しは京都ライフにお任せ下さい
提供:株式会社 京都ライフ 丹波橋店(賃貸スモッカ経由)

詳細情報 京都市東西線 椥辻駅 徒歩19分 2階建 築51年
物件紹介
京都市東西線椥辻駅から徒歩19分にあるアパートです。
人気の角部屋。周囲の居住者の生活音も気になりにくい場所です。バス・トイレ別の仕様で、のんびりお風呂タイムも楽しめます。
人気の角部屋。周囲の居住者の生活音も気になりにくい場所です。バス・トイレ別の仕様で、のんびりお風呂タイムも楽しめます。
お金・契約の情報
※「-」と表示されているものは、実際は料金が発生するものもございます。詳細はお問い合わせください。
| 家賃 | 3.5万円 | 管理費・共益費 | なし |
|---|---|---|---|
| 敷金 | なし | 礼金 | 3万円 |
| 入居決定でお祝い金最大100,000円 | |||
| 保証金 | - | 償却・敷引 | - |
| 住宅保険料 | 住宅保険料あり | 更新料 | - |
| 契約形態 | - | 契約期間 | 2年 |
| 入居・引渡期間 | 即時 | 現況 | 空室 |
| 契約備考 | 京都市山科区 西野エリアの2Kです。敷金ナシ。コンビニ、スーパー、ホームセンターなど近くにあって便利ですよ。 更新料:1ヶ月 その他設備/条件:1階の物件、即入居可 | ||
部屋の情報
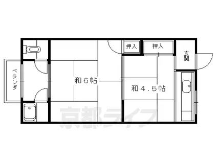
| 間取り | 2K | 専有面積 | 28m2 |
|---|---|---|---|
| 間取り詳細 | 和室(6帖)、和室(4.5帖)、K(2帖) | ||
| 所在階 / 向き | 1階 / 西 | バルコニー面積 | - |
| 水道 / ガス | ガス【プロパン】 | ||
| 設備 | バス・トイレ別、角部屋、バルコニー | ||
| 当社物件ID | 159548512 | ||
建物の情報
| 建物名 | 京都市東西線 椥辻駅 徒歩19分 2階建 築51年 | ||
|---|---|---|---|
| 所在地 | 京都府京都市山科区西野山欠ノ上町 | ||
| 交通 | 京都市東西線 椥辻駅 徒歩19分 京都市東西線 東野駅(京都) 徒歩25分 | ||
| 階数 | 2階建 | 総戸数 | - |
| 築年月 | 1976年02月 / 築51年 | エレベーター | - |
| 駐車場 | - | バイク置き場 | - |
| 駐輪場 | あり | 管理人/管理会社 | - |
| 建物種別 | アパート | 建物構造 | 木造 |
この部屋の取扱い不動産会社
| 会社名 | 株式会社 京都ライフ 丹波橋店(賃貸スモッカ経由) | ||
|---|---|---|---|
| 所在地 | 京都市伏見区京町北7丁目1-4 | 交通 | - |
| 営業時間 | - | 定休日 | - |
| 免許番号 | 京都府知事(11)第6353号 | 取引態様 | 仲介 |
| 不動産会社管理番号 | kyotolife_04828-7-05 | 当社管理番号 | 463 |
| 所属団体 | 京都府宅地建物取引業協会\n公益社団法人近畿地区不動産公正取引協議会 | ||
| 公正取引協議会 | 全国宅地建物取引業保証協会 | ||
| 取扱い物件情報 | 物件詳細へ | ||
※各種情報と現状に差異がある場合は、現状優先となります。問い合わせをすることで、より詳しい条件、情報を確認する事ができます。
提供:株式会社 京都ライフ 丹波橋店(賃貸スモッカ経由)
この物件が気になったら掲載期限まであと6日
京都市東西線 椥辻駅 徒歩19分 2階建 築51年に条件(家賃・エリア)が近い物件一覧
| 写真 | 家賃 管理費等 | 敷金 礼金 | 間取り 専有面積 | 築年数 | 最寄り駅 所在地 | キープ | 詳細 |
|---|---|---|---|---|---|---|---|
アパート 京都市東西線 椥辻駅 徒歩7分 築24年(1K/2階) | |||||||
![]() | 5.3万円 5,000円 | なし 5.3万円 | 1K 19.87m2 | 築24年 | 京都市東西線 椥辻駅 徒歩7分 京都市東西線 東野駅(京都) 徒歩8分 京都府京都市山科区東野八反畑町 | 詳細を見る | |
マンション 京都市東西線 椥辻駅 徒歩7分 築39年(1K/1階) | |||||||
![]() | 3.4万円 3,000円 | 3.3万円 なし | 1K 19m2 | 築39年 | 京都市東西線 椥辻駅 徒歩7分 京都市東西線 東野駅(京都) 徒歩18分 京都府京都市山科区大宅辻脇町 | 詳細を見る | |
アパート 阪急電鉄京都線 西向日駅 徒歩10分 築53年(2K/2階) | |||||||
![]() | 3.9万円 3,000円 | なし なし | 2K 27.9m2 | 築53年 | 阪急電鉄京都線 西向日駅 徒歩10分 東海道本線 長岡京駅 徒歩29分 京都府向日市上植野町南小路 | 詳細を見る | |
アパート コーポサンミドロ(1DK/3階) | |||||||
![]() | 4.8万円 なし | 5万円 5万円 | 1DK 30m2 | 築51年 | 東海道本線 長岡京駅 徒歩9分 阪急電鉄京都線 長岡天神駅 徒歩18分 阪急電鉄京都線 西向日駅 徒歩27分 京都府長岡京市神足ミドロ | 詳細を見る | |
アパート PREMO(ワンルーム/1階) | |||||||
![]() | 4.7万円 5,000円 | なし 4.7万円 | ワンルーム 21.92m2 | 築15年 | 阪急京都線 長岡天神駅 徒歩10分 JR東海道本線 長岡京駅 徒歩20分 阪急京都線 西向日駅 徒歩30分 京都府長岡京市長岡 | 詳細を見る | |
マンション 京阪電気鉄道京津線 四宮駅 徒歩15分 築33年(1K/3階) | |||||||
![]() | 3.6万円 6,000円 | なし なし | 1K 26m2 | 築33年 | 京阪電気鉄道京津線 四宮駅 徒歩15分 東海道本線 山科駅 徒歩23分 京都府京都市山科区小山中ノ川町 | 詳細を見る | |
マンション 京都市東西線 椥辻駅 徒歩20分 築36年(1DK/3階) | |||||||
![]() | 4.2万円 3,000円 | 5万円 なし | 1DK 25.42m2 | 築36年 | 京都市東西線 椥辻駅 徒歩20分 京都市東西線 東野駅(京都) 徒歩32分 京都府京都市山科区西野山射庭ノ上町 | 詳細を見る | |
アパート 京都市東西線 御陵駅 徒歩15分 築30年(1K/1階) | |||||||
![]() | 3.8万円 なし | 2万円 3万円 | 1K 21m2 | 築30年 | 京都市東西線 御陵駅 徒歩15分 京阪電気鉄道京津線 御陵駅 徒歩15分 京都府京都市山科区北花山中道町 | 詳細を見る | |









