賃貸マンション
スカイコート後楽園イーストの賃貸物件情報(1K/6階)
| 家賃 | 管理費等 | 敷金 | 礼金 | 間取り | 専有面積 |
|---|---|---|---|---|---|
| 8.9万円 | 9,000円 | なし | なし | 1K | 19.52m2 |
入居決定でお祝い金最大100,000円
- 保証金
- -
- 償却・敷引
- -
- 築年数
- 築21年
- 所在階
- 6階
- 向き
- 南西
Point
【業界新システム】正直不動産公式副読本掲載の話題沸騰店舗☆
提供:神宮前不動産(株)公園前店(SUUMO経由)

詳細情報 スカイコート後楽園イースト
物件紹介
スカイコート後楽園イーストは東京メトロ丸ノ内線後楽園駅から徒歩10分にあり、駅近で通勤通学に便利なマンションです。
このお部屋は2階以上に位置しているので、通行人や周囲の住人からの視線が気になりにくく、防犯面でも安心。建物のエントランスはオートロックがついており、インターホンにはTVモニタもついているため、相手の顔を確認してから来客対応することができます。
人気の南向きのお部屋。また、フローリングなのでお掃除もラクラク。キッチンはシステムキッチン仕様になっていますので、お料理好きの方にもぴったり。バス・トイレは別なので、のんびりお風呂タイムも楽しめるでしょう。また、雨の日でも浴室乾燥機を使えば、お洗濯も問題ありません。
通信設備面では、インターネット接続が可能です。また、BSアンテナ・CSアンテナがありCATVにも対応しているので、おうち時間も充実するでしょう(別途工事、契約料が必要な場合あり)。
建物にはエレベーターがついているので、重い荷物があっても安心。共用部には宅配ボックスが設定されているので、不在の時にも荷物を受け取ることができます。
このお部屋は2階以上に位置しているので、通行人や周囲の住人からの視線が気になりにくく、防犯面でも安心。建物のエントランスはオートロックがついており、インターホンにはTVモニタもついているため、相手の顔を確認してから来客対応することができます。
人気の南向きのお部屋。また、フローリングなのでお掃除もラクラク。キッチンはシステムキッチン仕様になっていますので、お料理好きの方にもぴったり。バス・トイレは別なので、のんびりお風呂タイムも楽しめるでしょう。また、雨の日でも浴室乾燥機を使えば、お洗濯も問題ありません。
通信設備面では、インターネット接続が可能です。また、BSアンテナ・CSアンテナがありCATVにも対応しているので、おうち時間も充実するでしょう(別途工事、契約料が必要な場合あり)。
建物にはエレベーターがついているので、重い荷物があっても安心。共用部には宅配ボックスが設定されているので、不在の時にも荷物を受け取ることができます。
お金・契約の情報
※「-」と表示されているものは、実際は料金が発生するものもございます。詳細はお問い合わせください。
| 家賃 | 8.9万円 | 管理費・共益費 | 9,000円 |
|---|---|---|---|
| 敷金 | なし | 礼金 | なし |
| 入居決定でお祝い金最大100,000円 | |||
| 保証金 | - | 償却・敷引 | - |
| 住宅保険料 | - | 更新料 | - |
| 保証会社利用 | 必須 | 保証会社名 | - |
| 保証会社費用 | - | 保証会社備考 | 保証会社利用必 いえらぶ安心保証 初回保証料:総賃料30% 月額:1700円(安心サポート24・口座振替手数料含)永住権の無い外国籍の方は下記保証会社となります。 保証会社:ニッポンインシュア 初回保証料:総賃料3 |
| 契約形態 | - | 契約期間 | - |
| 入居・引渡期間 | - | 現況 | - |
| 契約備考 | 巡回管理/【業界新システム】正直不動産公式副読本掲載の話題沸騰店舗☆ 合計3.3万円(内訳:鍵交換代3.3万円) 更新料 新賃料1.00ヶ月分 1K 単身者限定/事務所利用不可/ルームシェア不可 普通借家2年 損保【1.8万円2年】 バストイレ別、バルコニー、エアコン、ガスコンロ対応、クロゼット、フローリング、TVインターホン、浴室乾燥機、オートロック、室内洗濯置、シューズボックス、システムキッチン、エレベーター、2口コンロ、宅配ボックス、外壁タイル張り、礼金不要、敷金不要、分譲賃貸、グリル付、ディンプルキー、CS、保証金不要、24時間ゴミ出し可、南西向き、都市ガス、BS、年内入居可、敷金・礼金不要、初期費用カード決済可 入居日:'26年2月下旬 | ||
部屋の情報
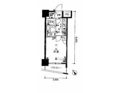
| 間取り | 1K | 専有面積 | 19.52m2 |
|---|---|---|---|
| 所在階 / 向き | 6階 / 南西 | バルコニー面積 | 3m2 |
| 水道 / ガス | - | ||
| 設備 | バス・トイレ別、2階以上、オートロック、テレビドアホン、宅配ボックス、浴室乾燥機、システムキッチン、エアコン、エレベーター、南向き、バルコニー、フローリング、2口コンロ、コンロ:ガス、CSアンテナ、BSアンテナ、洗濯機:室内 | ||
| 当社物件ID | 16369490 | ||
建物の情報
| 建物名 | スカイコート後楽園イースト | ||
|---|---|---|---|
| 所在地 | 東京都文京区小石川 | ||
| 交通 | 東京メトロ丸ノ内線 後楽園駅 徒歩10分 都営大江戸線 春日駅(東京) 徒歩10分 JR中央線 飯田橋駅 徒歩15分 | ||
| 階数 | 14階建 | 総戸数 | - |
| 築年月 | 2005年04月 / 築21年 | エレベーター | あり |
| 駐車場 | なし | バイク置き場 | - |
| 駐輪場 | - | 管理人/管理会社 | - |
| 建物種別 | マンション | 建物構造 | RC(鉄筋コンクリート) |
この部屋の取扱い不動産会社
| 会社名 | 神宮前不動産(株)(SUUMO経由) | ||
|---|---|---|---|
| 所在地 | 東京都渋谷区神宮前6-19-15 高野第一ビル6階 | 交通 | - |
| 営業時間 | 10:00-19:00 | 定休日 | 水曜日 |
| 免許番号 | 東京都知事105473 | 取引態様 | 仲介 |
| 不動産会社管理番号 | 100485886975 | 当社管理番号 | 89 |
| 所属団体 | (公社)全日本不動産協会東京都本部会員 | ||
| 公正取引協議会 | (公社)首都圏不動産公正取引協議会加盟 | ||
| 取扱い物件情報 | 物件詳細へ | ||
※各種情報と現状に差異がある場合は、現状優先となります。問い合わせをすることで、より詳しい条件、情報を確認する事ができます。
提供:神宮前不動産(株)(SUUMO経由)
この物件が気になったら掲載期限まであと10日
スカイコート後楽園イーストに条件(家賃・エリア)が近い物件一覧
| 写真 | 家賃 管理費等 | 敷金 礼金 | 間取り 専有面積 | 築年数 | 最寄り駅 所在地 | キープ | 詳細 |
|---|---|---|---|---|---|---|---|
マンション TRIAS629(1DK/3階) | |||||||
![]() | 9.6万円 1.8万円 | なし 9.6万円 | 1DK 17.31m2 | 築1年 | 東京地下鉄丸ノ内線 新大塚駅 徒歩3分 山手線 大塚駅(東京) 徒歩9分 東京地下鉄有楽町線 東池袋駅 徒歩10分 東京都文京区大塚6丁目 | 詳細を見る | |
マンション コンフォート文京小石川(1DK/1階) | |||||||
![]() | 13.8万円 3万円 | 13.8万円 なし | 1DK 33.27m2 | 築34年 | 東京都三田線 春日駅(東京) 徒歩5分 東京地下鉄丸ノ内線 後楽園駅 徒歩5分 総武・中央緩行線 飯田橋駅 徒歩16分 東京都文京区小石川2丁目 | 詳細を見る | |
マンション レジデンス千駄木(1K/2階) | |||||||
![]() | 9.2万円 4,000円 | 9.2万円 9.2万円 | 1K 24.98m2 | 築22年 | 東京地下鉄千代田線 千駄木駅 徒歩1分 山手線 日暮里駅 徒歩8分 東京地下鉄南北線 本駒込駅 徒歩15分 東京都文京区千駄木3丁目 | 詳細を見る | |
マンション プラティーク鳥越(1DK/4階) | |||||||
![]() | 11.5万円 5,000円 | 11.5万円 11.5万円 | 1DK 33.85m2 | 築27年 | 都営大江戸線 新御徒町駅 徒歩5分 JR総武線 浅草橋駅 徒歩10分 東京メトロ日比谷線 仲御徒町駅 徒歩13分 東京都台東区鳥越 | 詳細を見る | |
マンション 光10マンション(1K/3階) | |||||||
![]() | 8.8万円 3,000円 | なし なし | 1K 26.29m2 | 築42年 | 日暮里舎人ライナー 熊野前駅 徒歩4分 東京都荒川区東尾久3丁目 | 詳細を見る | |
マンション メゾンエーデルワイス(1K/2階) | |||||||
![]() | 8.5万円 3,000円 | 8.5万円 8.5万円 | 1K 20.09m2 | 築32年 | JR山手線 大塚駅(東京) 徒歩5分 都電荒川線 大塚駅前駅 徒歩5分 JR山手線 巣鴨駅 徒歩10分 東京都豊島区北大塚 | 詳細を見る | |
アパート リキュー王子神谷(1K/3階) | |||||||
![]() | 8.1万円 6,000円 | 8.1万円 8.1万円 | 1K 20.15m2 | 築8年 | 東京地下鉄南北線 王子神谷駅 徒歩6分 東京地下鉄南北線 志茂駅 徒歩13分 京浜東北・根岸線 東十条駅 徒歩17分 東京都北区神谷1丁目 | 詳細を見る | |
マンション コンフォリア浅草橋(1K/3階) | |||||||
![]() | 11.6万円 8,000円 | 11.6万円 なし | 1K 25.11m2 | 築15年 | 都営浅草線 浅草橋駅 徒歩6分 都営浅草線 蔵前駅 徒歩7分 JR総武線快速 馬喰町駅 徒歩11分 東京都台東区柳橋 | 詳細を見る | |








