賃貸マンション
PRIME URBAN札幌 RIVER FRONTの賃貸物件情報(2LDK/17階)
| 家賃 | 管理費等 | 敷金 | 礼金 | 間取り | 専有面積 |
|---|---|---|---|---|---|
| 10.7万円 | 8,000円 | 10.7万円 | 10.7万円 | 2LDK | 58.54m2 |
入居決定でお祝い金最大100,000円
- 保証金
- -
- 償却・敷引
- -
- 築年数
- 築18年
- 所在階
- 17階
- 向き
- 南西
Point
エレベーターにセキュリティがついており、居住者以外をシャットアウト。居住者も自分のフロア以外には入れず非常に防犯性が高い物件です。来客も来訪先のフロアにしか入れません。
提供:(株)タカラ(SUUMO経由)

詳細情報 PRIME URBAN札幌 RIVER FRONT
物件紹介
PRIME URBAN札幌 RIVER FRONTは地下鉄南北線中島公園駅から徒歩4分にあり、駅近で通勤通学に便利なマンションです。
このお部屋は2階以上に位置しているので、通行人や周囲の住人からの視線が気になりにくく、防犯面でも安心。建物のエントランスはオートロックがついており、インターホンにはTVモニタもついているため、相手の顔を確認してから来客対応することができます。
人気の南向きのお部屋。角部屋でもあるため、周囲の居住者の生活音も気になりにくい場所です。キッチンはシステムキッチン仕様になっていますので、お料理好きの方にもぴったり。バス・トイレは別なので、のんびりお風呂タイムも楽しめるでしょう。また、雨の日でも浴室乾燥機を使えば、お洗濯も問題ありません。
通信設備面では、インターネット接続が可能です。また、BSアンテナ・CSアンテナがありCATVにも対応しているので、おうち時間も充実するでしょう(別途工事、契約料が必要な場合あり)。
建物にはエレベーターがついているので、重い荷物があっても安心。共用部には宅配ボックスが設定されているので、不在の時にも荷物を受け取ることができます。
このお部屋は2階以上に位置しているので、通行人や周囲の住人からの視線が気になりにくく、防犯面でも安心。建物のエントランスはオートロックがついており、インターホンにはTVモニタもついているため、相手の顔を確認してから来客対応することができます。
人気の南向きのお部屋。角部屋でもあるため、周囲の居住者の生活音も気になりにくい場所です。キッチンはシステムキッチン仕様になっていますので、お料理好きの方にもぴったり。バス・トイレは別なので、のんびりお風呂タイムも楽しめるでしょう。また、雨の日でも浴室乾燥機を使えば、お洗濯も問題ありません。
通信設備面では、インターネット接続が可能です。また、BSアンテナ・CSアンテナがありCATVにも対応しているので、おうち時間も充実するでしょう(別途工事、契約料が必要な場合あり)。
建物にはエレベーターがついているので、重い荷物があっても安心。共用部には宅配ボックスが設定されているので、不在の時にも荷物を受け取ることができます。
お金・契約の情報
※「-」と表示されているものは、実際は料金が発生するものもございます。詳細はお問い合わせください。
| 家賃 | 10.7万円 | 管理費・共益費 | 8,000円 |
|---|---|---|---|
| 敷金 | 10.7万円 | 礼金 | 10.7万円 |
| 入居決定でお祝い金最大100,000円 | |||
| 保証金 | - | 償却・敷引 | - |
| 住宅保険料 | - | 更新料 | - |
| 保証会社利用 | 必須 | 保証会社名 | - |
| 保証会社費用 | - | 保証会社備考 | 保証会社利用必 ROOM iD(エポスカード)利用可。初回保証料は月額家賃等の50%、月次保証料は1.5%。大手法人契約の場合は契約不要 |
| 契約形態 | - | 契約期間 | - |
| 入居・引渡期間 | 相談 | 現況 | - |
| 契約備考 | 駐輪登録料2,200円/台、トランクルーム利用時2,200円/月、更新事務手数料22,000円(2年毎)、清掃料70,180円(退去時支払)、エアコンは非寒冷地仕様。 駐車場の空き状況等は [要確認] 合計1.9万円(内訳:(利用時)駐車場敷金1.9万円) エアコン洗浄料16500円 2LDK 事務所利用不可 損保【2万円2年】 バストイレ別、エアコン、クロゼット、シャワー付洗面台、TVインターホン、浴室乾燥機、オートロック、室内洗濯置、システムキッチン、角住戸、温水洗浄便座、脱衣所、エレベーター、洗面所独立、駐輪場、宅配ボックス、CATV、光ファイバー、IHクッキングヒーター、照明付、バイク置場、オール電化、ディンプルキー、CS、ロードヒーティング、フロントサービス、リバーサイド、エレベーター2基、花火大会鑑賞、3沿線以上利用可、駅徒歩5分以内、タワー型マンション、敷地内ごみ置き場、来客用パーキング、日勤管理、当社管理物件、蓄熱式暖房、ワイドバルコニー、玄関収納、BS | ||
部屋の情報
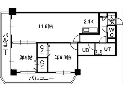
| 間取り | 2LDK | 専有面積 | 58.54m2 |
|---|---|---|---|
| 所在階 / 向き | 17階 / 南西 | バルコニー面積 | - |
| 水道 / ガス | - | ||
| 設備 | バス・トイレ別、2階以上、オートロック、テレビドアホン、宅配ボックス、浴室乾燥機、インターネット対応、システムキッチン、エアコン、エレベーター、温水洗浄便座、南向き、角部屋、バルコニー、洗髪洗面化粧台、タワーマンション、オール電化、コンロ:IH、CATV、CSアンテナ、BSアンテナ、洗濯機:室内 | ||
| 当社物件ID | 116761753 | ||
建物の情報
| 建物名 | PRIME URBAN札幌 RIVER FRONT | ||
|---|---|---|---|
| 所在地 | 北海道札幌市中央区南九条西 | ||
| 交通 | 地下鉄南北線 中島公園駅 徒歩4分 地下鉄東豊線 豊水すすきの駅 徒歩7分 札幌市電 山鼻9条駅 徒歩11分 | ||
| 階数 | 地下1地上30階建 | 総戸数 | 311戸 |
| 築年月 | 2008年02月 / 築18年 | エレベーター | あり |
| 駐車場 | 空有 20900円 | バイク置き場 | あり |
| 駐輪場 | あり | 管理人/管理会社 | - |
| 周辺環境 | その他 セブンイレブン(コンビニ)まで200m その他 ローソン(コンビニ)まで230m その他 キャロット(スーパー)まで280m その他 まいばすけっと(スーパー)まで400m その他 カリヤ歯科医院(病院)まで420m その他 南8条郵便局(郵便局)まで370m | ||
| 建物種別 | マンション | 建物構造 | RC(鉄筋コンクリート) |
この部屋の取扱い不動産会社
| 会社名 | (株)タカラ(SUUMO経由) | ||
|---|---|---|---|
| 所在地 | 北海道札幌市中央区南一条西10-4タイムビル6階 | 交通 | - |
| 営業時間 | 9:00~17:00 | 定休日 | 日・祝 |
| 免許番号 | 北海道知事石狩3700 | 取引態様 | 貸主 |
| 不動産会社管理番号 | 100480187962 | 当社管理番号 | 89 |
| 所属団体 | (公社)北海道宅地建物取引業協会会員 | ||
| 公正取引協議会 | (一社)北海道不動産公正取引協議会加盟 | ||
| 取扱い物件情報 | 物件詳細へ | ||
※各種情報と現状に差異がある場合は、現状優先となります。問い合わせをすることで、より詳しい条件、情報を確認する事ができます。
提供:(株)タカラ(SUUMO経由)
この物件が気になったら掲載期限まであと11日
PRIME URBAN札幌 RIVER FRONTに条件(家賃・エリア)が近い物件一覧
| 写真 | 家賃 管理費等 | 敷金 礼金 | 間取り 専有面積 | 築年数 | 最寄り駅 所在地 | キープ | 詳細 |
|---|---|---|---|---|---|---|---|
アパート レオパレスプレミール(1K/2階) | |||||||
![]() | 6.5万円 6,500円 | なし 13万円 | 1K 23.18m2 | 築19年 | 北海道石狩市花川南二条6丁目 | 詳細を見る | |
マンション コローレ知事公館前(2LDK/5階) | |||||||
![]() | 9.6万円 7,000円 | 9.6万円 なし | 2LDK 52.27m2 | 築10年 | 地下鉄東西線 西18丁目駅 徒歩8分 JR函館本線 桑園駅 徒歩9分 JR札沼線 札幌駅(JR) 徒歩20分 北海道札幌市中央区北四条西 | 詳細を見る | |
マンション カカオ円山(3LDK/3階) | |||||||
![]() | 15.6万円 1万円 | 15.6万円 15.6万円 | 3LDK 84.77m2 | 築10年 | 地下鉄東西線 西28丁目駅 徒歩8分 地下鉄東西線 円山公園駅 徒歩13分 地下鉄東西線 西18丁目駅 徒歩16分 北海道札幌市中央区北四条西 | 詳細を見る | |
マンション 朝日プラザステーションスクエア千歳I(2DK/10階) | |||||||
![]() | 10.5万円 なし | 10.5万円 10.5万円 | 2DK 51.52m2 | 築35年 | JR千歳線 千歳駅(北海道) 徒歩4分 北海道千歳市千代田町 | 詳細を見る | |
アパート ライムヒルズ(2LDK/1階) | |||||||
![]() | 6.5万円 3,000円 | なし なし | 2LDK 51.03m2 | 築23年 | 函館本線 南小樽駅 徒歩9分 北海道小樽市山田町 | 詳細を見る | |
マンション しののめムトウ(1LDK/3階) | |||||||
![]() | 7.2万円 5,000円 | 7.2万円 なし | 1LDK 35.28m2 | 新築 | JR千歳線 千歳駅(北海道) 徒歩16分 JR千歳線 南千歳駅 徒歩36分 JR千歳線 長都駅 徒歩60分 北海道千歳市東雲町 | 詳細を見る | |
マンション ジュノール千歳真々地(2LDK/2階) | |||||||
![]() | 11.8万円 7,000円 | 11.8万円 11.8万円 | 2LDK 61.11m2 | 新築 | JR千歳線 千歳駅(北海道) 徒歩27分 JR千歳線 南千歳駅 徒歩44分 北海道千歳市真々地 | 詳細を見る | |








