賃貸マンション
大和トラスト第5中山ビルの賃貸物件情報(5LDK/5階)
| 家賃 | 管理費等 | 敷金 | 礼金 | 間取り | 専有面積 |
|---|---|---|---|---|---|
| 15万円 | 5,000円 | 30万円 | 15万円 | 5LDK | 186.18m2 |
入居決定でお祝い金最大100,000円
Point
来店しないお部屋探し!オンライン来店実施中!
提供:アパマンショップ八丁堀店

詳細情報 大和トラスト第5中山ビル
物件紹介
大和トラスト第5中山ビルはJR芸備線矢賀駅から徒歩17分にあるマンションです。
このお部屋は2階以上に位置しているので、通行人や周囲の住人からの視線が気になりにくく、防犯面でも安心。インターホンにはTVモニタもついているため、相手の顔を確認してから来客対応することができます。
人気の南向き・フローリングのお部屋。角部屋でもあるため、周囲の居住者の生活音も気になりにくい場所です。室内にはウォークインクローゼットがありますので、たくさんの荷物も効率的に収納ができます。キッチンはシステムキッチン仕様になっていますので、お料理好きの方にもぴったり。バス・トイレは別なので、のんびりお風呂タイムも楽しめるでしょう。また、雨の日でも浴室乾燥機を使えば、お洗濯も問題ありません。
通信設備面では、インターネット接続が可能です(別途工事、契約料が必要な場合あり)。
建物にはエレベーターがついているので、重い荷物があっても安心。
このお部屋は2階以上に位置しているので、通行人や周囲の住人からの視線が気になりにくく、防犯面でも安心。インターホンにはTVモニタもついているため、相手の顔を確認してから来客対応することができます。
人気の南向き・フローリングのお部屋。角部屋でもあるため、周囲の居住者の生活音も気になりにくい場所です。室内にはウォークインクローゼットがありますので、たくさんの荷物も効率的に収納ができます。キッチンはシステムキッチン仕様になっていますので、お料理好きの方にもぴったり。バス・トイレは別なので、のんびりお風呂タイムも楽しめるでしょう。また、雨の日でも浴室乾燥機を使えば、お洗濯も問題ありません。
通信設備面では、インターネット接続が可能です(別途工事、契約料が必要な場合あり)。
建物にはエレベーターがついているので、重い荷物があっても安心。
お金・契約の情報
※「-」と表示されているものは、実際は料金が発生するものもございます。詳細はお問い合わせください。
| 家賃 | 15万円 | 管理費・共益費 | 5,000円 |
|---|---|---|---|
| 敷金 | 30万円 | 礼金 | 15万円 |
| 入居決定でお祝い金最大100,000円 | |||
| 保証金 | - | 償却・敷引 | - |
| 住宅保険料 | - | 更新料 | - |
| 保証会社利用 | 必須 | 保証会社名 | 全保連 |
| 保証会社費用 | - | 保証会社備考 | 初回:月額総額の50% 更新料:10,000円/年 |
| 契約形態 | - | 契約期間 | 2年 |
| 入居・引渡期間 | 相談 | 現況 | - |
| 入居可能条件 | 事務所可、2人入居可 | ||
| 契約備考 | 個人契約の場合は、電気の供給はパレット電気になります。 鍵交換代 16500円/駐輪シール代 330円 | ||
部屋の情報
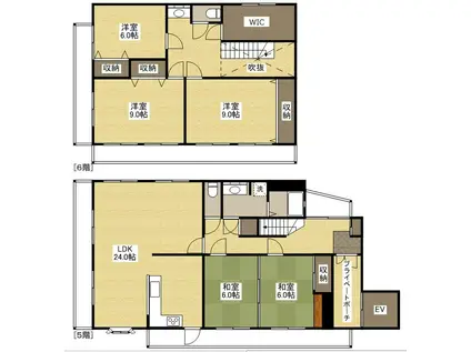
| 間取り | 5LDK | 専有面積 | 186.18m2 |
|---|---|---|---|
| 間取り詳細 | LDK(24帖)、和室(6帖)、和室(6帖)、洋室(9帖)、洋室(9帖)、洋室(6帖) | ||
| 所在階 / 向き | 5階 / 南 | バルコニー面積 | - |
| 水道 / ガス | - | ||
| 設備 | バス・トイレ別、テレビドアホン、浴室乾燥機、ウォークインクローゼット、追い焚き、エレベーター、温水洗浄便座、角部屋、バルコニー、フローリング、オール電化、コンロ:IH、シャワー、給湯、出窓、洗濯機:室内 | ||
| 当社物件ID | 159852921 | ||
建物の情報
| 建物名 | 大和トラスト第5中山ビル | ||
|---|---|---|---|
| 所在地 | 広島県広島市東区中山東1丁目 | ||
| 交通 | 芸備線 矢賀駅 徒歩19分 | ||
| 階数 | 7階建 | 総戸数 | - |
| 築年月 | 1997年04月 / 築29年 | エレベーター | あり |
| 駐車場 | 空有 平置駐 | バイク置き場 | - |
| 駐輪場 | あり | 管理人/管理会社 | - |
| 周辺環境 | 小学校 中山小学校 徒歩6分(404m) 保育園 中山いづみ保育園 徒歩11分(805m) その他 広島中山郵便局 徒歩4分(295m) その他 ローソン広島中山東3丁目店 徒歩5分(385m) その他 ひまわり 徒歩6分(435m) その他 (株)スパーク/中山店 徒歩8分(602m) その他 マックスバリュフォレオ広島東店 徒歩9分(667m) その他 ローソン 徒歩9分(669m) | ||
| 建物種別 | マンション | 建物構造 | RC(鉄筋コンクリート) |
この部屋の取扱い不動産会社
| 会社名 | アパマンショップ広島宇品店 | ||
|---|---|---|---|
| 所在地 | 広島県広島市南区宇品神田1丁目 2-3アポイントビル宇品神田1F | 交通 | 広島電鉄宇品線県病院前から徒歩2分 |
| 営業時間 | 09:30〜18:30 | 定休日 | - |
| 免許番号 | 国土交通大臣(4)7268 | 取引態様 | 仲介 |
| 不動産会社管理番号 | 100824833 | 当社管理番号 | 4 |
| 所属団体 | (公社)広島県宅地建物取引業協会 | ||
| 公正取引協議会 | 中国地区不動産公正取引協議会加盟 | ||
| 取扱い物件情報 | 物件詳細へ | ||
※各種情報と現状に差異がある場合は、現状優先となります。問い合わせをすることで、より詳しい条件、情報を確認する事ができます。
提供:アパマンショップ広島宇品店
この物件が気になったら掲載期限まであと11日
大和トラスト第5中山ビルに条件(家賃・エリア)が近い物件一覧
| 写真 | 家賃 管理費等 | 敷金 礼金 | 間取り 専有面積 | 築年数 | 最寄り駅 所在地 | キープ | 詳細 |
|---|---|---|---|---|---|---|---|
マンション フローレンス光町(2LDK/13階) | |||||||
![]() | 12.5万円 5,000円 | 25万円 12.5万円 | 2LDK 65.79m2 | 築29年 | 可部線 広島駅 徒歩11分 広島県広島市東区光町1丁目 | 詳細を見る | |
マンション ロータス二葉の里(1LDK/10階) | |||||||
![]() | 10万円 なし | 20万円 10万円 | 1LDK 41.66m2 | 築8年 | JR山陽本線 広島駅 徒歩7分 広島電鉄本線 広島駅駅 徒歩8分 広島電鉄白島線 白島駅(広電) 徒歩10分 広島県広島市東区二葉の里 | 詳細を見る | |
アパート スイートテラスみくまり(3LDK/1階) | |||||||
![]() | 10.1万円 5,000円 | 10.1万円 なし | 3LDK 65.37m2 | 築1年 | 広島県安芸郡府中町みくまり | 詳細を見る | |
マンション グリーンガーデン東雲(2LDK/2階) | |||||||
![]() | 13万円 6,500円 | なし 13万円 | 2LDK 67.98m2 | 築3年 | JR山陽本線 向洋駅 徒歩18分 広島県広島市南区東雲 | 詳細を見る | |
アパート プレミア西条中央B棟(2LDK/3階) | |||||||
![]() | 11万円 5,500円 | なし 8万円 | 2LDK 57.82m2 | 築1年 | 山陽本線 西条駅(広島) 徒歩19分 広島県東広島市西条中央1丁目 | 詳細を見る | |
マンション エスペランサM(1SLDK/2階) | |||||||
![]() | 9.9万円 4,000円 | なし 9.9万円 | 1SLDK 65.95m2 | 築11年 | JR山陽本線 海田市駅 徒歩13分 JR呉線 矢野駅 徒歩26分 広島県安芸郡海田町南昭和町 | 詳細を見る | |
アパート トリシアくるめ木 オニオンハイツ(2LDK/1階) | |||||||
![]() | 10万円 5,000円 | なし 20万円 | 2LDK 55.28m2 | 築1年 | 広島高速交通アストラムライン 不動院前駅 徒歩15分 広島高速交通アストラムライン 祇園新橋北駅 徒歩22分 広島県広島市東区戸坂くるめ木 | 詳細を見る | |
マンション サントル府中(2LDK/1階) | |||||||
![]() | 10.4万円 5,000円 | なし 20.8万円 | 2LDK 65.86m2 | 築6年 | JR呉線 天神川駅 徒歩16分 JR山陽本線 向洋駅 徒歩19分 JR芸備線 矢賀駅 徒歩27分 広島県安芸郡府中町浜田 | 詳細を見る | |









