賃貸アパート
ボスコヴィラの賃貸物件情報(1K/2階)
| 家賃 | 管理費等 | 敷金 | 礼金 | 間取り | 専有面積 |
|---|---|---|---|---|---|
| 5.5万円 | 5,000円 | なし | なし | 1K | 27.35m2 |
入居決定でお祝い金最大100,000円
- 保証金
- -
- 償却・敷引
- -
- 築年数
- 築2年
- 所在階
- 2階
- 向き
- 東
Point
お部屋探しは【関西リビング不動産】へ☆圧倒的な物件情報量から、ご希望にピッタリな物件をご紹介いたします!他社ではうまくいかなかったお部屋探しもぜひご相談下さい!
提供:(株)Home Quest河内松原店(SUUMO経由)

詳細情報 ボスコヴィラ
物件紹介
ボスコヴィラは近鉄南大阪線恵我ノ荘駅から徒歩10分にあり、駅近で通勤通学に便利なアパートです。
このお部屋は2階以上に位置しているので、通行人や周囲の住人からの視線が気になりにくく、防犯面でも安心。建物のエントランスはオートロックがついており、インターホンにはTVモニタもついているため、相手の顔を確認してから来客対応することができます。
人気の角部屋で周囲の居住者の生活音も気になりにくく、また、フローリングのお部屋なのでお掃除もラクラク。キッチンはシステムキッチン仕様になっていますので、お料理好きの方にもぴったり。バス・トイレは別なので、のんびりお風呂タイムも楽しめるでしょう。また、雨の日でも浴室乾燥機を使えば、お洗濯も問題ありません。
通信設備面では、インターネットが無料で使えるので、月々の出費を抑えられるのも魅力です(別途工事等が必要な場合あり)。
ペット飼育の相談ができますので、あなたの大切な家族の一員も快適に暮らせるか、ぜひ確認してみてください。
このお部屋は2階以上に位置しているので、通行人や周囲の住人からの視線が気になりにくく、防犯面でも安心。建物のエントランスはオートロックがついており、インターホンにはTVモニタもついているため、相手の顔を確認してから来客対応することができます。
人気の角部屋で周囲の居住者の生活音も気になりにくく、また、フローリングのお部屋なのでお掃除もラクラク。キッチンはシステムキッチン仕様になっていますので、お料理好きの方にもぴったり。バス・トイレは別なので、のんびりお風呂タイムも楽しめるでしょう。また、雨の日でも浴室乾燥機を使えば、お洗濯も問題ありません。
通信設備面では、インターネットが無料で使えるので、月々の出費を抑えられるのも魅力です(別途工事等が必要な場合あり)。
ペット飼育の相談ができますので、あなたの大切な家族の一員も快適に暮らせるか、ぜひ確認してみてください。
お金・契約の情報
※「-」と表示されているものは、実際は料金が発生するものもございます。詳細はお問い合わせください。
| 家賃 | 5.5万円 | 管理費・共益費 | 5,000円 |
|---|---|---|---|
| 敷金 | なし | 礼金 | なし |
| 入居決定でお祝い金最大100,000円 | |||
| 保証金 | - | 償却・敷引 | - |
| 住宅保険料 | - | 更新料 | - |
| 保証会社利用 | 必須 | 保証会社名 | - |
| 保証会社費用 | - | 保証会社備考 | 保証会社利用必 お問い合わせください |
| 契約形態 | - | 契約期間 | - |
| 入居・引渡期間 | - | 現況 | - |
| 契約備考 | 現地お待ち合わせやご送迎等は勿論、遠方のお客様へはオンライン契約もご対応可能です★インターネット未公開物件のご紹介や、初期費用の分割支払い、保証人不要物件や福祉可能物件等、どんなご相談もお気軽にお問合せ下さい。きっと上手くいきます。 水道代 月額2000円 1K 普通借家2年 損保【要】 バストイレ別、バルコニー、エアコン、クロゼット、フローリング、TVインターホン、浴室乾燥機、オートロック、室内洗濯置、シューズボックス、追焚機能浴室、角住戸、温水洗浄便座、洗面所独立、駐輪場、礼金不要、敷金不要、IHクッキングヒーター、築2年以内、学生相談、2駅利用可、3駅以上利用可、駅徒歩10分以内、敷地内ごみ置き場、都市ガス、高速ネット対応、年内入居可、IT重説対応物件、初期費用カード決済可 入居日:'26年4月中旬 | ||
部屋の情報
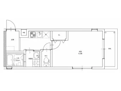
| 間取り | 1K | 専有面積 | 27.35m2 |
|---|---|---|---|
| 所在階 / 向き | 2階 / 東 | バルコニー面積 | - |
| 水道 / ガス | - | ||
| 設備 | バス・トイレ別、2階以上、オートロック、テレビドアホン、浴室乾燥機、追い焚き、インターネット対応、エアコン、温水洗浄便座、角部屋、バルコニー、フローリング、洗髪洗面化粧台、コンロ:IH、洗濯機:室内 | ||
| 当社物件ID | 158002452 | ||
建物の情報
| 建物名 | ボスコヴィラ | ||
|---|---|---|---|
| 所在地 | 大阪府松原市一津屋 | ||
| 交通 | 近鉄南大阪線 恵我ノ荘駅 徒歩10分 近鉄南大阪線 高鷲駅 徒歩20分 近鉄南大阪線 河内松原駅 徒歩25分 | ||
| 階数 | 3階建 | 総戸数 | - |
| 築年月 | 2024年12月 / 築2年 | エレベーター | - |
| 駐車場 | 近隣 80m11000円 | バイク置き場 | - |
| 駐輪場 | あり | 管理人/管理会社 | - |
| 周辺環境 | その他 ライフ 恵我之荘店(スーパー)まで507m その他 サンディ 恵我之荘店(スーパー)まで679m その他 ファミリーマート 一津屋三丁目店(コンビニ)まで102m その他 ウエルシア羽曳野恵我之荘店(ドラッグストア)まで533m その他 高村病院(病院)まで418m その他 恵我ノ荘(その他)まで883m | ||
| 建物種別 | アパート | 建物構造 | 木造 |
この部屋の取扱い不動産会社
| 会社名 | 関西リビング不動産リアルティ(株)松原店(SUUMO経由) | ||
|---|---|---|---|
| 所在地 | 大阪府松原市上田3-1-18 | 交通 | - |
| 営業時間 | 9:30~18:30 | 定休日 | 8/13~8/15 |
| 免許番号 | 大阪府知事59912 | 取引態様 | 仲介 |
| 不動産会社管理番号 | 100491508120 | 当社管理番号 | 89 |
| 所属団体 | (公社)全日本不動産協会大阪府本部会員 | ||
| 公正取引協議会 | (公社)近畿地区不動産公正取引協議会加盟 | ||
| 取扱い物件情報 | 物件詳細へ | ||
※各種情報と現状に差異がある場合は、現状優先となります。問い合わせをすることで、より詳しい条件、情報を確認する事ができます。
提供:関西リビング不動産リアルティ(株)松原店(SUUMO経由)
この物件が気になったら掲載期限まであと10日
ボスコヴィラに条件(家賃・エリア)が近い物件一覧
| 写真 | 家賃 管理費等 | 敷金 礼金 | 間取り 専有面積 | 築年数 | 最寄り駅 所在地 | キープ | 詳細 |
|---|---|---|---|---|---|---|---|
マンション ゴールドハイツ(1K/3階) | |||||||
![]() | 3.7万円 3,000円 | なし なし | 1K 25m2 | 築36年 | 近鉄南大阪線 道明寺駅 徒歩10分 近鉄長野線 古市駅(大阪) 徒歩20分 近鉄南大阪線 古市駅(大阪) 徒歩20分 大阪府羽曳野市碓井3丁目 | 詳細を見る | |
マンション ジオエント梅田北リバーフロント(ワンルーム/4階) | |||||||
| 7.55万円 1万円 | なし なし | ワンルーム 22.55m2 | 新築 | 阪急電鉄神戸線 中津駅(阪急) 徒歩9分 大阪市御堂筋線 中津駅(大阪メトロ) 徒歩14分 福知山線 大阪駅 徒歩19分 大阪府大阪市北区中津7丁目8-18 | 詳細を見る | ||
マンション コートAU(ワンルーム/2階) | |||||||
![]() | 3.9万円 3,000円 | なし なし | ワンルーム 21m2 | 築31年 | 近鉄南大阪線 藤井寺駅 徒歩10分 近鉄南大阪線 土師ノ里駅 徒歩15分 近鉄南大阪線 道明寺駅 徒歩25分 大阪府藤井寺市沢田1丁目 | 詳細を見る | |
マンション コンフォート井高野(2DK/3階) | |||||||
| 6.3万円 5,000円 | なし なし | 2DK 40.4m2 | 築40年 | 大阪市今里筋線 井高野駅 徒歩1分 大阪市今里筋線 瑞光四丁目駅 徒歩14分 阪急電鉄京都線 相川駅 徒歩18分 大阪府大阪市東淀川区井高野2丁目2-19 | 詳細を見る | ||
マンション アーデン新大阪(1K/11階) | |||||||
| 7万円 1万円 | なし なし | 1K 25.02m2 | 築22年 | 東海道本線 東淀川駅 徒歩3分 大阪市御堂筋線 新大阪駅 徒歩10分 大阪市御堂筋線 東三国駅 徒歩11分 大阪府大阪市淀川区宮原1丁目16-33 | 詳細を見る | ||
マンション VULCAN城山(1DK/5階) | |||||||
![]() | 4.8万円 9,000円 | なし 4.8万円 | 1DK 37.19m2 | 築23年 | 近鉄南大阪線 古市駅(大阪) 徒歩7分 近鉄長野線 古市駅(大阪) 徒歩7分 近鉄南大阪線 道明寺駅 徒歩37分 大阪府羽曳野市古市7丁目 | 詳細を見る | |
マンション セシル古市(3LDK/3階) | |||||||
![]() | 6.8万円 7,000円 | なし なし | 3LDK 56.7m2 | 築45年 | 近鉄南大阪線 古市駅(大阪) 徒歩5分 近鉄長野線 古市駅(大阪) 徒歩5分 近鉄南大阪線 道明寺駅 徒歩26分 大阪府羽曳野市白鳥3丁目 | 詳細を見る | |
マンション エグゼ天神橋(1K/7階) | |||||||
| 7.6万円 8,000円 | 8.4万円 なし | 1K 22.71m2 | 築6年 | 大阪市谷町線 天神橋筋六丁目駅 徒歩12分 阪急電鉄千里線 柴島駅 徒歩22分 大阪市谷町線 都島駅 徒歩22分 大阪府大阪市北区長柄東3丁目3-7 | 詳細を見る | ||
松原市の町名から探す
松原市の部屋を間取りから探す
松原市の駅から探す
松原市と隣接している市区町村から探す
- 松原市(921)
- 大阪市都島区(1,706)
- 大阪市福島区(2,412)
- 大阪市此花区(380)
- 大阪市西区(4,898)
- 大阪市港区(1,317)
- 大阪市大正区(628)
- 大阪市天王寺区(1,589)
- 大阪市浪速区(3,651)
- 大阪市西淀川区(1,886)
- 大阪市東淀川区(4,152)
- 大阪市東成区(2,381)
- 大阪市生野区(1,718)
- 大阪市旭区(2,366)
- 大阪市城東区(2,225)
- 大阪市阿倍野区(1,337)
- 大阪市住吉区(2,029)
- 大阪市東住吉区(1,870)
- 大阪市西成区(657)
- 大阪市淀川区(4,858)
- 大阪市鶴見区(1,022)
- 大阪市住之江区(916)
- 大阪市平野区(1,722)
- 大阪市北区(5,223)
- 大阪市中央区(5,625)
- 堺市堺区(2,726)
- 堺市中区(975)
- 堺市東区(694)
- 堺市西区(1,905)
- 堺市南区(176)
- 堺市北区(1,849)
- 堺市美原区(136)
- 八尾市(2,184)
- 羽曳野市(1,150)
- 藤井寺市(862)




