賃貸マンション
ボナセーラ竹田の賃貸物件情報(3LDK/1階)
| 家賃 | 管理費等 | 敷金 | 礼金 | 間取り | 専有面積 |
|---|---|---|---|---|---|
| 9万円 | 9,000円 | なし | 9万円 | 3LDK | 58.59m2 |
入居決定でお祝い金最大100,000円
Point
システムキッチンです 便利な竹田駅が徒歩4分の立地の良さです。
提供:株式会社 京都ライフ 伏見桃山店(賃貸スモッカ経由)

詳細情報 ボナセーラ竹田
物件紹介
ボナセーラ竹田は近鉄京都線竹田駅から徒歩3分にあり、駅近で通勤通学に便利なマンションです。
建物のエントランスはオートロックがついており、防犯性が高くなっています。
フローリングのお部屋なのでお掃除もラクラク。キッチンはシステムキッチン仕様になっていますので、お料理好きの方にもぴったり。また、バス・トイレは別で、のんびりお風呂タイムも楽しめるでしょう。
通信設備面では、インターネットが無料で使えるので、月々の出費を抑えられるのも魅力です。また、BSアンテナがありCATVにも対応しているので、おうち時間も充実するでしょう(別途工事、BS・CATVの契約料等が必要な場合あり)。
建物にはエレベーターがついているので、重い荷物があっても安心。
建物のエントランスはオートロックがついており、防犯性が高くなっています。
フローリングのお部屋なのでお掃除もラクラク。キッチンはシステムキッチン仕様になっていますので、お料理好きの方にもぴったり。また、バス・トイレは別で、のんびりお風呂タイムも楽しめるでしょう。
通信設備面では、インターネットが無料で使えるので、月々の出費を抑えられるのも魅力です。また、BSアンテナがありCATVにも対応しているので、おうち時間も充実するでしょう(別途工事、BS・CATVの契約料等が必要な場合あり)。
建物にはエレベーターがついているので、重い荷物があっても安心。
お金・契約の情報
※「-」と表示されているものは、実際は料金が発生するものもございます。詳細はお問い合わせください。
| 家賃 | 9万円 | 管理費・共益費 | 9,000円 |
|---|---|---|---|
| 敷金 | なし | 礼金 | 9万円 |
| 入居決定でお祝い金最大100,000円 | |||
| 保証金 | - | 償却・敷引 | - |
| 住宅保険料 | 住宅保険料あり | 更新料 | - |
| 契約形態 | - | 契約期間 | 2年 |
| 入居・引渡期間 | 2026年04月上旬 | 現況 | 賃貸中 |
| 契約備考 | 便利な竹田駅が徒歩4分の立地の良さです。 システムキッチンが入っていて3LDKからと広い間取りです 線路が少し近いので電車の音は聞こえますがそこはご了承の上。 さらにエアコン2基付きが嬉しいですね。( ´・` ) お問い合わせは地元密着の京都ライフまでどうぞ スマイルパック:35,000円 カードキー:15,000円 更新料:101,000円 保証会社:利用必須 初回:月額賃料等の60%/1年、更新時:1.4万円/1年 その他設備/条件:1階の物件、コンロ2口以上、独立洗面台 | ||
部屋の情報
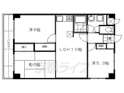
| 間取り | 3LDK | 専有面積 | 58.59m2 |
|---|---|---|---|
| 間取り詳細 | 洋室(6帖)、和室(6帖)、洋室(5.3帖)、LDK(10帖) | ||
| 所在階 / 向き | 1階 / 西 | バルコニー面積 | - |
| 水道 / ガス | ガス【都市】 | ||
| 設備 | バス・トイレ別、オートロック、インターネット対応、システムキッチン、エアコン、エレベーター、バルコニー、フローリング、コンロ:ガス、CATV、BSアンテナ、洗濯機:室内 | ||
| 当社物件ID | 12600592 | ||
建物の情報
| 建物名 | ボナセーラ竹田 | ||
|---|---|---|---|
| 所在地 | 京都府京都市伏見区竹田段川原町 | ||
| 交通 | 京都市烏丸線 竹田駅(京都) 徒歩4分 近鉄京都線 竹田駅(京都) 徒歩4分 | ||
| 階数 | 5階建 | 総戸数 | - |
| 築年月 | 1996年03月 / 築30年 | エレベーター | あり |
| 駐車場 | - | バイク置き場 | - |
| 駐輪場 | あり | 管理人/管理会社 | - |
| 建物種別 | マンション | 建物構造 | RC(鉄筋コンクリート) |
この部屋の取扱い不動産会社
| 会社名 | 株式会社 京都ライフ 丹波橋店(賃貸スモッカ経由) | ||
|---|---|---|---|
| 所在地 | 京都市伏見区京町北7丁目1-4 | 交通 | - |
| 営業時間 | - | 定休日 | - |
| 免許番号 | 京都府知事(11)第6353号 | 取引態様 | 仲介 |
| 不動産会社管理番号 | kyotolife_12444-102 | 当社管理番号 | 463 |
| 所属団体 | 京都府宅地建物取引業協会\n公益社団法人近畿地区不動産公正取引協議会 | ||
| 公正取引協議会 | 全国宅地建物取引業保証協会 | ||
| 取扱い物件情報 | 物件詳細へ | ||
※各種情報と現状に差異がある場合は、現状優先となります。問い合わせをすることで、より詳しい条件、情報を確認する事ができます。
提供:株式会社 京都ライフ 丹波橋店(賃貸スモッカ経由)
この物件が気になったら掲載期限まであと6日
ボナセーラ竹田に条件(家賃・エリア)が近い物件一覧
| 写真 | 家賃 管理費等 | 敷金 礼金 | 間取り 専有面積 | 築年数 | 最寄り駅 所在地 | キープ | 詳細 |
|---|---|---|---|---|---|---|---|
マンション 阪急電鉄京都線 西向日駅 徒歩15分 築46年(2LDK/2階) | |||||||
![]() | 6.4万円 4,000円 | なし 10万円 | 2LDK 50m2 | 築46年 | 阪急電鉄京都線 西向日駅 徒歩15分 東海道本線 長岡京駅 徒歩20分 京都府向日市上植野町樋爪 | 詳細を見る | |
アパート 東海道本線 長岡京駅 徒歩38分 築6年(2LDK/2階) | |||||||
![]() | 7.5万円 4,000円 | 7.3万円 なし | 2LDK 40.02m2 | 築6年 | 東海道本線 長岡京駅 徒歩38分 京阪電気鉄道京阪線 淀駅 徒歩40分 京都府京都市伏見区羽束師古川町 | 詳細を見る | |
アパート ディアホーム・オリーブ(ワンルーム/2階) | |||||||
![]() | 6.3万円 4,000円 | 6.3万円 6.3万円 | ワンルーム 22.69m2 | 築1年 | 京都市烏丸線 くいな橋駅 徒歩7分 京阪電気鉄道京阪線 龍谷大前深草駅 徒歩10分 京都府京都市伏見区深草ヲカヤ町 | 詳細を見る | |
マンション KSクラブハウス(1K/3階) | |||||||
![]() | 5.5万円 6,000円 | なし 5.5万円 | 1K 22.27m2 | 築37年 | 近鉄京都線 竹田駅(京都) 徒歩2分 京都府京都市伏見区竹田西桶ノ井町 | 詳細を見る | |
アパート 京都市東西線 石田駅(京都市営) 徒歩5分 築1年(1K/3階) | |||||||
![]() | 6.2万円 5,000円 | なし 6.2万円 | 1K 26.27m2 | 築1年 | 京都市東西線 石田駅(京都市営) 徒歩5分 京都市東西線 六地蔵駅(京都市営) 徒歩18分 奈良線 六地蔵駅(JR) 徒歩18分 京都府京都市伏見区石田内里町 | 詳細を見る | |
アパート 京阪電気鉄道宇治線 六地蔵駅(京阪) 徒歩4分 築1年(1LDK/2階) | |||||||
![]() | 9.7万円 9,000円 | なし なし | 1LDK 41.12m2 | 築1年 | 京阪電気鉄道宇治線 六地蔵駅(京阪) 徒歩4分 奈良線 六地蔵駅(JR) 徒歩4分 京都府京都市伏見区桃山町大島 | 詳細を見る | |






