賃貸マンション
レジデンス桜新町ガーデンの賃貸物件情報(2SLDK/1階)
| 家賃 | 管理費等 | 敷金 | 礼金 | 間取り | 専有面積 |
|---|---|---|---|---|---|
| 32.6万円 | 9,000円 | なし | なし | 2SLDK | 75.95m2 |
入居決定でお祝い金最大100,000円
- 保証金
- -
- 償却・敷引
- -
- 築年数
- 築2年
- 所在階
- 1階
- 向き
- 北
Point
東京の高級賃貸・ファミリー物件の仲介・管理・売買をお探しの方は、高級物件専門のプライムコーポレーションへ/海外転勤・国内転勤・入居審査・条件交渉等お任せ下さい/オンライン内見・オンライン契約対応可能
提供:(株)プライムコーポレーション三軒茶屋店(SUUMO経由)

詳細情報 レジデンス桜新町ガーデン
物件紹介
レジデンス桜新町ガーデンは東急田園都市線桜新町駅から徒歩8分にあり、駅近で通勤通学に便利なマンションです。
建物のエントランスはオートロックがついており、インターホンにはTVモニタもついているため、相手の顔を確認してから来客対応することができます。
おしゃれなデザイナーズ物件!人気の南向き・フローリングのお部屋。角部屋でもあるため、周囲の居住者の生活音も気になりにくい場所です。室内にはウォークインクローゼットがありますので、たくさんの荷物も効率的に収納ができます。キッチンはシステムキッチン仕様になっていますので、お料理好きの方にもぴったり。バス・トイレは別なので、のんびりお風呂タイムも楽しめるでしょう。また、雨の日でも浴室乾燥機を使えば、お洗濯も問題ありません。
通信設備面では、インターネットが無料で使えるので、月々の出費を抑えられるのも魅力です。また、BSアンテナ・CSアンテナがありCATVにも対応しているので、おうち時間も充実するでしょう(別途工事、BS・CS・CATVの契約料等が必要な場合あり)。
床暖房があり、冬も足元から暖かく快適に過ごすことができます。建物にはエレベーターがついているので、重い荷物があっても安心。共用部には宅配ボックスが設定されているので、不在の時にも荷物を受け取ることができます。また、ペット飼育の相談ができますので、あなたの大切な家族の一員も快適に暮らせるか、ぜひ確認してみてください。
建物のエントランスはオートロックがついており、インターホンにはTVモニタもついているため、相手の顔を確認してから来客対応することができます。
おしゃれなデザイナーズ物件!人気の南向き・フローリングのお部屋。角部屋でもあるため、周囲の居住者の生活音も気になりにくい場所です。室内にはウォークインクローゼットがありますので、たくさんの荷物も効率的に収納ができます。キッチンはシステムキッチン仕様になっていますので、お料理好きの方にもぴったり。バス・トイレは別なので、のんびりお風呂タイムも楽しめるでしょう。また、雨の日でも浴室乾燥機を使えば、お洗濯も問題ありません。
通信設備面では、インターネットが無料で使えるので、月々の出費を抑えられるのも魅力です。また、BSアンテナ・CSアンテナがありCATVにも対応しているので、おうち時間も充実するでしょう(別途工事、BS・CS・CATVの契約料等が必要な場合あり)。
床暖房があり、冬も足元から暖かく快適に過ごすことができます。建物にはエレベーターがついているので、重い荷物があっても安心。共用部には宅配ボックスが設定されているので、不在の時にも荷物を受け取ることができます。また、ペット飼育の相談ができますので、あなたの大切な家族の一員も快適に暮らせるか、ぜひ確認してみてください。
お金・契約の情報
※「-」と表示されているものは、実際は料金が発生するものもございます。詳細はお問い合わせください。
| 家賃 | 32.6万円 | 管理費・共益費 | 9,000円 |
|---|---|---|---|
| 敷金 | なし | 礼金 | なし |
| フリーレント | あり | ||
| 入居決定でお祝い金最大100,000円 | |||
| 保証金 | - | 償却・敷引 | - |
| 住宅保険料 | - | 更新料 | - |
| 保証会社利用 | 必須 | 保証会社名 | - |
| 保証会社費用 | - | 保証会社備考 | 保証会社利用必 詳細はお問い合わせください |
| 契約形態 | - | 契約期間 | - |
| 入居・引渡期間 | - | 現況 | - |
| 入居可能条件 | ペット相談 | ||
| 契約備考 | 短期解約違約金有/弦巻小学校学区域/駐車場:要確認/東京の高級賃貸や高級不動産の仲介・管理・売買をお探しの方は、高級物件専門のプライムコーポレーションへお気軽にご相談下さい。分譲賃貸マンション、戸建、テラスハウス、タワーマンション、デザイナーズ物件などの豊富なファミリー物件情報を取り揃えております。海外転勤・国内転勤・条件交渉等お任せ下さい。オンライン内見・オンライン契約対応可能です。 合計4.18万円(内訳:入居中サポート16500円/鍵交換費用25300円) 2SLDK ペット相談/フリーレント1ヶ月 普通借家2年 損保【要】 バストイレ別、バルコニー、エアコン、ガスコンロ対応、クロゼット、フローリング、TVインターホン、浴室乾燥機、オートロック、室内洗濯置、シューズボックス、追焚機能浴室、温水洗浄便座、エレベーター、洗面所独立、駐輪場、宅配ボックス、CATV、外壁タイル張り、BS・CS、3口以上コンロ、ペット相談、オートバス、全居室洋室、ウォークインクロゼット、バイク置場、デザイナーズ、2沿線利用可、メゾネット、ネット使用料不要、フリーレント、床暖房、築2年以内、24時間換気システム、3駅以上利用可、駅徒歩10分以内、敷地内ごみ置き場、LDK12畳以上、都市ガス、敷金・礼金不要、IT重説対応物件、初期費用カード決済可 敷金積み増し【ペット飼育の場合敷金1ヶ月(総額)】 入居日:'26年2月下旬 | ||
部屋の情報
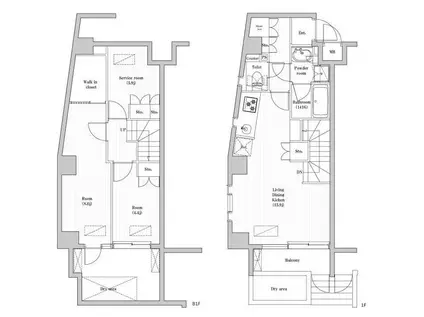
| 間取り | 2SLDK | 専有面積 | 75.95m2 |
|---|---|---|---|
| 所在階 / 向き | 1階 / 北 | バルコニー面積 | - |
| 水道 / ガス | - | ||
| 設備 | バス・トイレ別、オートロック、テレビドアホン、宅配ボックス、浴室乾燥機、ウォークインクローゼット、追い焚き、インターネット対応、エアコン、エレベーター、温水洗浄便座、バルコニー、フローリング、洗髪洗面化粧台、床暖房、2口コンロ、コンロ:ガス、デザイナーズ、CATV、CSアンテナ、BSアンテナ、インターネット使用料無料、洗濯機:室内 | ||
| 当社物件ID | 157313954 | ||
建物の情報
| 建物名 | レジデンス桜新町ガーデン | ||
|---|---|---|---|
| 所在地 | 東京都世田谷区弦巻 | ||
| 交通 | 東急田園都市線 桜新町駅 徒歩9分 東急世田谷線 世田谷駅 徒歩15分 東急田園都市線 駒沢大学駅 徒歩20分 | ||
| 階数 | 地下1地上3階建 | 総戸数 | - |
| 築年月 | 2024年07月 / 築2年 | エレベーター | あり |
| 駐車場 | なし | バイク置き場 | あり |
| 駐輪場 | あり | 管理人/管理会社 | - |
| 周辺環境 | その他 世田谷区立弦巻小学校(小学校)まで891m その他 世田谷区立弦巻中学校(中学校)まで358m その他 まいばすけっと 弦巻1丁目店(スーパー)まで716m その他 ナチュラルローソン 世田谷弦巻三丁目店(コンビニ)まで197m その他 桜新町商店街(ショッピングセンター)まで935m その他 駒沢緑泉公園(公園)まで866m | ||
| 建物種別 | マンション | 建物構造 | RC(鉄筋コンクリート) |
この部屋の取扱い不動産会社
| 会社名 | (株)プライムコーポレーション三軒茶屋店(SUUMO経由) | ||
|---|---|---|---|
| 所在地 | 東京都世田谷区三軒茶屋1-37-1 佐瀬ビル2階 | 交通 | - |
| 営業時間 | 10:00~19:00 | 定休日 | 第1・第3水曜日 |
| 免許番号 | 東京都知事86964 | 取引態様 | 仲介 |
| 不動産会社管理番号 | 100485488536 | 当社管理番号 | 89 |
| 所属団体 | (公社)東京都宅地建物取引業協会会員 | ||
| 公正取引協議会 | (公社)首都圏不動産公正取引協議会加盟 | ||
| 取扱い物件情報 | 物件詳細へ | ||
※各種情報と現状に差異がある場合は、現状優先となります。問い合わせをすることで、より詳しい条件、情報を確認する事ができます。
提供:(株)プライムコーポレーション三軒茶屋店(SUUMO経由)
この物件が気になったら掲載期限まであと10日
レジデンス桜新町ガーデンに条件(家賃・エリア)が近い物件一覧
| 写真 | 家賃 管理費等 | 敷金 礼金 | 間取り 専有面積 | 築年数 | 最寄り駅 所在地 | キープ | 詳細 |
|---|---|---|---|---|---|---|---|
マンション ラフィーネ大森(3LDK/3階) | |||||||
![]() | 31.8万円 2,000円 | 31.8万円 31.8万円 | 3LDK 116.22m2 | 築22年 | 京急本線 平和島駅 徒歩14分 京急本線 大森町駅 徒歩16分 JR京浜東北線 大森駅(東京) 徒歩16分 東京都大田区大森西 | 詳細を見る | |
一戸建て 京浜東北・根岸線 蒲田駅 徒歩11分 築4年(2SLDK) | |||||||
![]() | 32.3万円 なし | 32.3万円 32.3万円 | 2SLDK 94.36m2 | 築4年 | 京浜東北・根岸線 蒲田駅 徒歩11分 東京都大田区東矢口3丁目 | 詳細を見る | |
マンション アトラス池尻レジデンス(3LDK/5階) | |||||||
![]() | 50万円 なし | 50万円 100万円 | 3LDK 76.7m2 | 築12年 | 東急田園都市線 池尻大橋駅 徒歩6分 東急田園都市線 三軒茶屋駅 徒歩16分 京王電鉄井の頭線 駒場東大前駅 徒歩20分 東京都世田谷区池尻3丁目 | 詳細を見る | |
マンション 広尾3丁目ヘーベルハウス(3LDK/1階) | |||||||
![]() | 48万円 なし | 24万円 なし | 3LDK 80.66m2 | 築2年 | 東京地下鉄半蔵門線 表参道駅 徒歩13分 東京地下鉄日比谷線 広尾駅 徒歩14分 東京都渋谷区広尾3丁目 | 詳細を見る | |
アパート VOX LILY(2LDK/1階) | |||||||
![]() | 19.6万円 4,000円 | 19.6万円 19.6万円 | 2LDK 56.47m2 | 築2年 | 京浜東北・根岸線 蒲田駅 徒歩13分 東急池上線 蓮沼駅 徒歩15分 東京都大田区西蒲田1丁目 | 詳細を見る | |
一戸建て 東急池上線 久が原駅 徒歩4分 築4年(4LDK) | |||||||
![]() | 41.3万円 なし | 41.3万円 なし | 4LDK 100.55m2 | 築4年 | 東急池上線 久が原駅 徒歩4分 東京都大田区東嶺町 | 詳細を見る | |
マンション オカバ世田谷深沢ヘーベルメゾン(3LDK/3階) | |||||||
![]() | 29.1万円 1万円 | 14.55万円 29.1万円 | 3LDK 73.66m2 | 築1年 | 東急大井町線 等々力駅 徒歩16分 東急大井町線 上野毛駅 徒歩19分 東急大井町線 尾山台駅 徒歩21分 東京都世田谷区深沢 | 詳細を見る | |







