賃貸マンション
レジデンス桜新町ガーデンの賃貸物件情報(1LDK/2階)
| 家賃 | 管理費等 | 敷金 | 礼金 | 間取り | 専有面積 |
|---|---|---|---|---|---|
| 19.6万円 | 9,000円 | なし | なし | 1LDK | 34.43m2 |
入居決定でお祝い金最大100,000円
Point
セキュリティ面は、TVインターホン・オートロックなど充実しているので安心して生活できます。
提供:NAVI HOME(株)恵比寿2nd(SUUMO経由)

詳細情報 レジデンス桜新町ガーデン
物件紹介
レジデンス桜新町ガーデンは東急田園都市線桜新町駅から徒歩9分にあり、駅近で通勤通学に便利なマンションです。
このお部屋は2階以上に位置しているので、通行人や周囲の住人からの視線が気になりにくく、防犯面でも安心。建物のエントランスはオートロックがついており、インターホンにはTVモニタもついているため、相手の顔を確認してから来客対応することができます。
おしゃれなデザイナーズ物件!人気の南向き・フローリングのお部屋。室内にはウォークインクローゼットがありますので、たくさんの荷物も効率的に収納ができます。キッチンはシステムキッチン仕様になっていますので、お料理好きの方にもぴったり。バス・トイレは別なので、のんびりお風呂タイムも楽しめるでしょう。また、雨の日でも浴室乾燥機を使えば、お洗濯も問題ありません。
通信設備面では、インターネットが無料で使えるので、月々の出費を抑えられるのも魅力です。また、BSアンテナ・CSアンテナがありCATVにも対応しているので、おうち時間も充実するでしょう(別途工事、BS・CS・CATVの契約料等が必要な場合あり)。
床暖房があり、冬も足元から暖かく快適に過ごすことができます。建物にはエレベーターがついているので、重い荷物があっても安心。共用部には宅配ボックスが設定されているので、不在の時にも荷物を受け取ることができます。また、ペット飼育の相談ができますので、あなたの大切な家族の一員も快適に暮らせるか、ぜひ確認してみてください。
コンビニまで徒歩3分の場所にあり、日用品や食料品のお買い物にも便利です。
このお部屋は2階以上に位置しているので、通行人や周囲の住人からの視線が気になりにくく、防犯面でも安心。建物のエントランスはオートロックがついており、インターホンにはTVモニタもついているため、相手の顔を確認してから来客対応することができます。
おしゃれなデザイナーズ物件!人気の南向き・フローリングのお部屋。室内にはウォークインクローゼットがありますので、たくさんの荷物も効率的に収納ができます。キッチンはシステムキッチン仕様になっていますので、お料理好きの方にもぴったり。バス・トイレは別なので、のんびりお風呂タイムも楽しめるでしょう。また、雨の日でも浴室乾燥機を使えば、お洗濯も問題ありません。
通信設備面では、インターネットが無料で使えるので、月々の出費を抑えられるのも魅力です。また、BSアンテナ・CSアンテナがありCATVにも対応しているので、おうち時間も充実するでしょう(別途工事、BS・CS・CATVの契約料等が必要な場合あり)。
床暖房があり、冬も足元から暖かく快適に過ごすことができます。建物にはエレベーターがついているので、重い荷物があっても安心。共用部には宅配ボックスが設定されているので、不在の時にも荷物を受け取ることができます。また、ペット飼育の相談ができますので、あなたの大切な家族の一員も快適に暮らせるか、ぜひ確認してみてください。
コンビニまで徒歩3分の場所にあり、日用品や食料品のお買い物にも便利です。
お金・契約の情報
※「-」と表示されているものは、実際は料金が発生するものもございます。詳細はお問い合わせください。
| 家賃 | 19.6万円 | 管理費・共益費 | 9,000円 |
|---|---|---|---|
| 敷金 | なし | 礼金 | なし |
| フリーレント | 1ヶ月 | ||
| 入居決定でお祝い金最大100,000円 | |||
| 保証金 | - | 償却・敷引 | - |
| 住宅保険料 | 1円 | 更新料 | - |
| 保証会社利用 | 必須 | 保証会社名 | - |
| 保証会社費用 | - | 保証会社備考 | 総賃料の30%〜50% |
| 契約形態 | - | 契約期間 | 2年 |
| 入居・引渡期間 | 即時 | 現況 | - |
| 入居可能条件 | 2人入居可、ペット相談 | ||
| 契約備考 | 短期違約金1年未満解約時、総賃料の1ヶ月分がかかります。 退去時のルームクリーニンク゛・エアコンクリーニンク゛は借主負担 その他設備/条件:室内洗濯機置き場、ごみ出し24時間OK、独立洗面台、防犯カメラ、シューズボックス、照明器具付き、オートバス | ||
部屋の情報
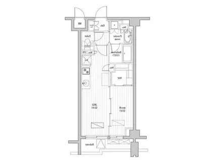
| 間取り | 1LDK | 専有面積 | 34.43m2 |
|---|---|---|---|
| 間取り詳細 | LDK(8.4帖)、洋室(4.3帖) | ||
| 所在階 / 向き | 2階 / 南 | バルコニー面積 | - |
| 水道 / ガス | 水道【公営】、ガス【都市】 | ||
| 設備 | バス・トイレ別、オートロック、テレビドアホン、宅配ボックス、浴室乾燥機、ウォークインクローゼット、追い焚き、インターネット対応、システムキッチン、エアコン、エレベーター、温水洗浄便座、バルコニー、フローリング、2口コンロ、コンロ:ガス、デザイナーズ、CATV、CSアンテナ、BSアンテナ、インターネット使用料無料、シャワー、給湯、タイル張り | ||
| 当社物件ID | 157314064 | ||
建物の情報
| 建物名 | レジデンス桜新町ガーデン | ||
|---|---|---|---|
| 所在地 | 東京都世田谷区弦巻2丁目 | ||
| 交通 | 東急田園都市線 桜新町駅 徒歩9分 東急世田谷線 世田谷駅 徒歩16分 | ||
| 階数 | 地下1地上3階建 | 総戸数 | 41戸 |
| 築年月 | 2024年07月 / 築2年 | エレベーター | あり |
| 駐車場 | - | バイク置き場 | あり |
| 駐輪場 | あり | 管理人/管理会社 | - |
| 周辺環境 | コンビニ 徒歩3分(196m) 販売店 徒歩8分(621m) その他 ドラッグストア その他 公園 その他 銀行 その他 * | ||
| 建物種別 | マンション | 建物構造 | RC(鉄筋コンクリート) |
この部屋の取扱い不動産会社
| 会社名 | ハウスコム西東京株式会社 三軒茶屋店 | ||
|---|---|---|---|
| 所在地 | 東京都世田谷区38-7ワコーレ三軒茶屋2階 | 交通 | - |
| 営業時間 | 10:00~18:00 | 定休日 | - |
| 免許番号 | 東京都知事(1)第108225号 | 取引態様 | 仲介 |
| 不動産会社管理番号 | HC2-4446586-204-0098 | 当社管理番号 | 468 |
| 所属団体 | 、 | ||
| 取扱い物件情報 | 物件詳細へ | ||
※各種情報と現状に差異がある場合は、現状優先となります。問い合わせをすることで、より詳しい条件、情報を確認する事ができます。
提供:ハウスコム西東京株式会社 三軒茶屋店
この物件が気になったら掲載期限まであと15日
レジデンス桜新町ガーデンに条件(家賃・エリア)が近い物件一覧
| 写真 | 家賃 管理費等 | 敷金 礼金 | 間取り 専有面積 | 築年数 | 最寄り駅 所在地 | キープ | 詳細 |
|---|---|---|---|---|---|---|---|
マンション メゾン 3E(2DK/1階) | |||||||
![]() | 15.6万円 3,000円 | 15.6万円 なし | 2DK 50.69m2 | 築35年 | 東急多摩川線 下丸子駅 徒歩2分 東急多摩川線 鵜の木駅 徒歩10分 東京都大田区下丸子3丁目 | 詳細を見る | |
マンション 京浜急行電鉄本線 梅屋敷駅(東京) 徒歩4分 築37年(3LDK/2階) | |||||||
![]() | 19.3万円 7,000円 | 19.3万円 19.3万円 | 3LDK 84.68m2 | 築37年 | 京浜急行電鉄本線 梅屋敷駅(東京) 徒歩4分 京浜急行電鉄本線 大森町駅 徒歩12分 東京都大田区大森西6丁目 | 詳細を見る | |
アパート フォレスタ世田谷(2LDK/2階) | |||||||
![]() | 17.4万円 1,000円 | 17.4万円 なし | 2LDK 47.7m2 | 築55年 | 東急池上線 雪が谷大塚駅 徒歩6分 東急東横線 田園調布駅 徒歩16分 東急目黒線 多摩川駅 徒歩16分 東京都世田谷区東玉川 | 詳細を見る | |
アパート ノリアセット(2LDK/3階) | |||||||
![]() | 18.6万円 3,000円 | 18.6万円 18.6万円 | 2LDK 62.72m2 | 新築 | 京浜急行電鉄本線 大森町駅 徒歩9分 京浜急行電鉄本線 梅屋敷駅(東京) 徒歩16分 東京都大田区大森東3丁目 | 詳細を見る | |
マンション ヒュッゲカンダハイム(ワンルーム/4階) | |||||||
![]() | 12.8万円 7,000円 | 12.8万円 12.8万円 | ワンルーム 28.2m2 | 築11年 | JR京浜東北線 蒲田駅 徒歩7分 京急本線 京急蒲田駅 徒歩10分 京急本線 梅屋敷駅(東京) 徒歩14分 東京都大田区蒲田 | 詳細を見る | |
タウンハウス 大田菜園長屋(2LDK) | |||||||
![]() | 15.7万円 5,000円 | 15.7万円 なし | 2LDK 52.17m2 | 築10年 | 京浜急行電鉄本線 雑色駅 徒歩8分 京浜急行電鉄本線 六郷土手駅 徒歩13分 東京都大田区東六郷3丁目 | 詳細を見る | |
マンション アトラス池尻レジデンス(1DK/9階) | |||||||
![]() | 20万円 なし | 20万円 40万円 | 1DK 31.2m2 | 築13年 | 東急田園都市線 池尻大橋駅 徒歩6分 東急田園都市線 三軒茶屋駅 徒歩16分 東急世田谷線 西太子堂駅 徒歩22分 東京都世田谷区池尻 | 詳細を見る | |
マンション メイゾン茨田(1LDK/2階) | |||||||
![]() | 12.4万円 3,000円 | 12.4万円 なし | 1LDK 42.9m2 | 築58年 | 東京モノレール羽田 昭和島駅 徒歩10分 京浜急行電鉄本線 大森町駅 徒歩17分 東京都大田区大森東5丁目 | 詳細を見る | |








