賃貸マンション
秀和湯島レジデンスの賃貸物件情報(1K/5階)
| 家賃 | 管理費等 | 敷金 | 礼金 | 間取り | 専有面積 |
|---|---|---|---|---|---|
| 11.3万円 | 1.2万円 | なし | なし | 1K | 22.33m2 |
入居決定でお祝い金最大100,000円
- 保証金
- -
- 償却・敷引
- -
- 築年数
- 築3年
- 所在階
- 5階
- 向き
- 西
Point
「秀和湯島レジデンス」:文京区エリアの新居にピッタリ。サミットストア湯島天神南店まで徒歩4分です。こちらは賃料11.3万円の物件です。こだわりの条件を満たす、ステキなお部屋をネクストライフエージェン
提供:(株)ネクストライフエージェント(SUUMO経由)

詳細情報 秀和湯島レジデンス
物件紹介
秀和湯島レジデンスは東京メトロ千代田線湯島駅から徒歩3分にあり、駅近で通勤通学に便利なマンションです。
このお部屋は2階以上に位置しているので、通行人や周囲の住人からの視線が気になりにくく、防犯面でも安心。建物のエントランスはオートロックがついており、インターホンにはTVモニタもついているため、相手の顔を確認してから来客対応することができます。
フローリングのお部屋なのでお掃除もラクラク。浴室乾燥機付きで、雨の日でもお洗濯は問題ありません。
通信設備面では、インターネットが無料で使えるので、月々の出費を抑えられるのも魅力です(別途工事等が必要な場合あり)。
共用部には宅配ボックスが設定されているので、不在の時にも荷物を受け取ることができます。また、ペット飼育の相談ができますので、あなたの大切な家族の一員も快適に暮らせるか、ぜひ確認してみてください。
このお部屋は2階以上に位置しているので、通行人や周囲の住人からの視線が気になりにくく、防犯面でも安心。建物のエントランスはオートロックがついており、インターホンにはTVモニタもついているため、相手の顔を確認してから来客対応することができます。
フローリングのお部屋なのでお掃除もラクラク。浴室乾燥機付きで、雨の日でもお洗濯は問題ありません。
通信設備面では、インターネットが無料で使えるので、月々の出費を抑えられるのも魅力です(別途工事等が必要な場合あり)。
共用部には宅配ボックスが設定されているので、不在の時にも荷物を受け取ることができます。また、ペット飼育の相談ができますので、あなたの大切な家族の一員も快適に暮らせるか、ぜひ確認してみてください。
お金・契約の情報
※「-」と表示されているものは、実際は料金が発生するものもございます。詳細はお問い合わせください。
| 家賃 | 11.3万円 | 管理費・共益費 | 1.2万円 |
|---|---|---|---|
| 敷金 | なし | 礼金 | なし |
| 入居決定でお祝い金最大100,000円 | |||
| 保証金 | - | 償却・敷引 | - |
| 住宅保険料 | - | 更新料 | - |
| 保証会社利用 | 必須 | 保証会社名 | - |
| 保証会社費用 | - | 保証会社備考 | 保証会社利用必 【エポスルームID】月額総賃料の50%/月次保証料、月額総賃料の1.5%/1年毎10.000円 *詳細はお問い合わせください |
| 契約形態 | - | 契約期間 | - |
| 入居・引渡期間 | 相談 | 現況 | - |
| 入居可能条件 | ペット相談 | ||
| 契約備考 | 合計5.5万円(内訳:プレミアムデスク(2年)1.65万円鍵交換代3.85万円) 更新料 新賃料1.00ヶ月分 室内清掃費用 55000円 1K ペット相談/事務所利用不可 普通借家2年 損保【1.8万円2年】 エアコン、ガスコンロ対応、フローリング、TVインターホン、浴室乾燥機、オートロック、室内洗濯置、シューズボックス、温水洗浄便座、2口コンロ、宅配ボックス、礼金不要、最上階、敷金不要、防犯カメラ、ペット相談、保証人不要、全居室フローリング、2沿線利用可、ネット使用料不要、築3年以内、2駅利用可、3駅以上利用可、3沿線以上利用可、駅徒歩5分以内、駅徒歩10分以内、都市ガス、敷金・礼金不要 | ||
部屋の情報
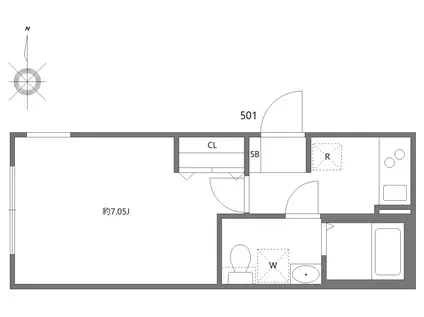
| 間取り | 1K | 専有面積 | 22.33m2 |
|---|---|---|---|
| 所在階 / 向き | 5階 / 西 | バルコニー面積 | - |
| 水道 / ガス | - | ||
| 設備 | 2階以上、オートロック、テレビドアホン、宅配ボックス、浴室乾燥機、インターネット対応、エアコン、温水洗浄便座、フローリング、2口コンロ、コンロ:ガス、インターネット使用料無料、洗濯機:室内 | ||
| 当社物件ID | 158751265 | ||
建物の情報
| 建物名 | 秀和湯島レジデンス | ||
|---|---|---|---|
| 所在地 | 東京都文京区湯島 | ||
| 交通 | 東京メトロ千代田線 湯島駅 徒歩3分 JR山手線 御徒町駅 徒歩8分 東京メトロ銀座線 末広町駅(東京) 徒歩9分 | ||
| 階数 | 5階建 | 総戸数 | - |
| 築年月 | 2024年01月 / 築3年 | エレベーター | - |
| 駐車場 | なし | バイク置き場 | - |
| 駐輪場 | - | 管理人/管理会社 | - |
| 周辺環境 | その他 サミットストア 湯島天神南店(スーパー)まで293m その他 日本調剤湯島薬局(ドラッグストア)まで496m その他 まいばすけっと 本郷2丁目店(スーパー)まで1131m その他 ファミリーマート 文京本郷店(コンビニ)まで647m その他 ローソン 文京本郷七丁目店(コンビニ)まで771m その他 ファミリーマート 台東池之端店(コンビニ)まで793m | ||
| 建物種別 | マンション | 建物構造 | RC(鉄筋コンクリート) |
この部屋の取扱い不動産会社
| 会社名 | (株)ネクストライフエージェント(SUUMO経由) | ||
|---|---|---|---|
| 所在地 | 東京都新宿区新宿2-13-16 | 交通 | - |
| 営業時間 | 10:00-19:00 | 定休日 | 年末年始休暇 |
| 免許番号 | 東京都知事95274 | 取引態様 | 仲介 |
| 不動産会社管理番号 | 100434127057 | 当社管理番号 | 89 |
| 所属団体 | (公社)全日本不動産協会東京都本部会員 | ||
| 公正取引協議会 | (公社)首都圏不動産公正取引協議会加盟 | ||
| 取扱い物件情報 | 物件詳細へ | ||
※各種情報と現状に差異がある場合は、現状優先となります。問い合わせをすることで、より詳しい条件、情報を確認する事ができます。
提供:(株)ネクストライフエージェント(SUUMO経由)
この物件が気になったら掲載期限まであと10日
秀和湯島レジデンスに条件(家賃・エリア)が近い物件一覧
| 写真 | 家賃 管理費等 | 敷金 礼金 | 間取り 専有面積 | 築年数 | 最寄り駅 所在地 | キープ | 詳細 |
|---|---|---|---|---|---|---|---|
マンション 東京都荒川線 早稲田駅(都電) 徒歩4分 築5年(1K/3階) | |||||||
![]() | 11.5万円 1.2万円 | 11.5万円 11.5万円 | 1K 29.41m2 | 築5年 | 東京都荒川線 早稲田駅(都電) 徒歩4分 東京地下鉄東西線 早稲田駅(メトロ) 徒歩9分 東京地下鉄有楽町線 江戸川橋駅 徒歩11分 東京都文京区関口1丁目 | 詳細を見る | |
マンション カージェ文京千石(1K/5階) | |||||||
![]() | 12.8万円 1万円 | 12.8万円 12.8万円 | 1K 25.28m2 | 築5年 | 東京都三田線 巣鴨駅 徒歩7分 山手線 巣鴨駅 徒歩7分 東京都三田線 千石駅 徒歩9分 東京都文京区千石4丁目 | 詳細を見る | |
マンション ホーメストハイツ本郷(ワンルーム/7階) | |||||||
![]() | 7.7万円 6,000円 | 7.7万円 7.7万円 | ワンルーム 18.82m2 | 築35年 | 東京メトロ南北線 東大前駅 徒歩4分 東京メトロ丸ノ内線 本郷三丁目駅 徒歩7分 東京メトロ千代田線 根津駅 徒歩12分 東京都文京区本郷 | 詳細を見る | |
マンション ネオマイム文京音羽(1K/3階) | |||||||
![]() | 8.9万円 7,000円 | 8.9万円 8.9万円 | 1K 22.2m2 | 築23年 | 東京地下鉄有楽町線 江戸川橋駅 徒歩2分 東京地下鉄東西線 神楽坂駅 徒歩15分 東京地下鉄丸ノ内線 茗荷谷駅 徒歩15分 東京都文京区音羽1丁目 | 詳細を見る | |
マンション スペーシア飯田橋2(1K/3階) | |||||||
![]() | 9.2万円 7,000円 | なし なし | 1K 20.37m2 | 築24年 | 東京地下鉄有楽町線 江戸川橋駅 徒歩8分 東京地下鉄東西線 神楽坂駅 徒歩12分 総武・中央緩行線 飯田橋駅 徒歩15分 東京都文京区水道2丁目 | 詳細を見る | |
マンション ミリアレジデンス御茶ノ水(ワンルーム/3階) | |||||||
![]() | 12.7万円 8,000円 | 12.7万円 なし | ワンルーム 22.48m2 | 築30年 | 東京地下鉄丸ノ内線 御茶ノ水駅 徒歩7分 中央本線 御茶ノ水駅 徒歩8分 総武・中央緩行線 御茶ノ水駅 徒歩8分 東京都文京区湯島2丁目 | 詳細を見る | |
マンション エステ浅草壱番館(1LDK/4階) | |||||||
![]() | 13万円 7,000円 | 13万円 13万円 | 1LDK 36.77m2 | 築11年 | 東京地下鉄銀座線 浅草駅(東武・都営・メトロ) 徒歩17分 東武鉄道亀戸線 曳舟駅 徒歩26分 東京都台東区今戸2丁目 | 詳細を見る | |
マンション プラウドフラット浅草橋Ⅱ(1K/13階) | |||||||
![]() | 13.9万円 1万円 | 13.9万円 13.9万円 | 1K 25.2m2 | 築8年 | 東京都浅草線 浅草橋駅 徒歩4分 総武・中央緩行線 浅草橋駅 徒歩5分 総武本線 馬喰町駅 徒歩10分 東京都台東区柳橋2丁目 | 詳細を見る | |









