賃貸マンション
ダイヤモンドマンション1号館の賃貸物件情報(3LDK/3階)
| 家賃 | 管理費等 | 敷金 | 礼金 | 間取り | 専有面積 |
|---|---|---|---|---|---|
| 6.9万円 | 4,000円 | 6.9万円 | なし | 3LDK | 61.85m2 |
入居決定でお祝い金最大100,000円
- 保証金
- -
- 償却・敷引
- -
- 築年数
- 築40年
- 所在階
- 3階
- 向き
- 南
Point
費用抑えめで、綺麗な室内と魅力的な環境のお部屋です。駐車場が空いているので、車の駐車場所も心配ありません。フローリングは木のぬくもりが感じられるためイチオシです。
提供:(株)埼玉住宅情報センター(SUUMO経由)

詳細情報 ダイヤモンドマンション1号館
物件紹介
ダイヤモンドマンション1号館はJR高崎線熊谷駅から徒歩17分にあるマンションです。
このお部屋は2階以上に位置しているので、通行人や周囲の住人からの視線が気になりにくく、防犯面でも安心。インターホンにはTVモニタもついているため、相手の顔を確認してから来客対応することができます。
人気の南向きのお部屋。また、フローリングなのでお掃除もラクラク。キッチンはシステムキッチン仕様になっていますので、お料理好きの方にもぴったり。また、バス・トイレは別で、のんびりお風呂タイムも楽しめるでしょう。
通信設備面では、インターネットが無料で使えるので、月々の出費を抑えられるのも魅力です。また、CATVにも対応しているので、おうち時間も充実するでしょう(別途工事、CATVの契約料等が必要な場合あり)。
このお部屋は2階以上に位置しているので、通行人や周囲の住人からの視線が気になりにくく、防犯面でも安心。インターホンにはTVモニタもついているため、相手の顔を確認してから来客対応することができます。
人気の南向きのお部屋。また、フローリングなのでお掃除もラクラク。キッチンはシステムキッチン仕様になっていますので、お料理好きの方にもぴったり。また、バス・トイレは別で、のんびりお風呂タイムも楽しめるでしょう。
通信設備面では、インターネットが無料で使えるので、月々の出費を抑えられるのも魅力です。また、CATVにも対応しているので、おうち時間も充実するでしょう(別途工事、CATVの契約料等が必要な場合あり)。
お金・契約の情報
※「-」と表示されているものは、実際は料金が発生するものもございます。詳細はお問い合わせください。
| 家賃 | 6.9万円 | 管理費・共益費 | 4,000円 |
|---|---|---|---|
| 敷金 | 6.9万円 | 礼金 | なし |
| 入居決定でお祝い金最大100,000円 | |||
| 保証金 | - | 償却・敷引 | - |
| 住宅保険料 | - | 更新料 | - |
| 保証会社利用 | 必須 | 保証会社名 | 日本賃貸保証 |
| 保証会社費用 | - | 保証会社備考 | 日本賃貸保証利用必 初回保証料は総額家賃の50%、2年目からは毎年1万円 |
| 契約形態 | - | 契約期間 | - |
| 入居・引渡期間 | 即時 | 現況 | - |
| 契約備考 | 合計3.9万円(内訳:初回保証料3.9万円) 更新料 新賃料1.00ヶ月分 3LDK 二人入居可/子供可 普通借家2年 損保【1.8万円2年】 バストイレ別、バルコニー、エアコン、ガスコンロ対応、クロゼット、フローリング、シャワー付洗面台、TVインターホン、室内洗濯置、陽当り良好、シューズボックス、システムキッチン、南向き、追焚機能浴室、温水洗浄便座、脱衣所、洗面所独立、洗面化粧台、駐輪場、押入、CATV、礼金不要、3口以上コンロ、防犯カメラ、グリル付、敷金1ヶ月、CATVインターネット、二人入居相談、ディンプルキー、ネット使用料不要、L字型キッチン、敷地内ごみ置き場、平面駐車場、都市ガス、通風良好 | ||
部屋の情報
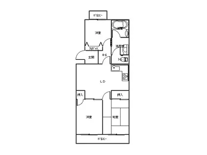
| 間取り | 3LDK | 専有面積 | 61.85m2 |
|---|---|---|---|
| 所在階 / 向き | 3階 / 南 | バルコニー面積 | - |
| 水道 / ガス | - | ||
| 設備 | バス・トイレ別、2階以上、テレビドアホン、追い焚き、インターネット対応、システムキッチン、エアコン、温水洗浄便座、南向き、バルコニー、フローリング、洗髪洗面化粧台、2口コンロ、コンロ:ガス、CATV、インターネット使用料無料、洗濯機:室内 | ||
| 当社物件ID | 49057211 | ||
建物の情報
| 建物名 | ダイヤモンドマンション1号館 | ||
|---|---|---|---|
| 所在地 | 埼玉県熊谷市中西 | ||
| 交通 | JR高崎線 熊谷駅 徒歩17分 上越新幹線 熊谷駅 徒歩17分 秩父鉄道 上熊谷駅 徒歩23分 | ||
| 階数 | 5階建 | 総戸数 | - |
| 築年月 | 1986年03月 / 築40年 | エレベーター | - |
| 駐車場 | 空有 5000円/平置駐 | バイク置き場 | - |
| 駐輪場 | あり | 管理人/管理会社 | - |
| 周辺環境 | その他 ほっともっと熊谷上之店(飲食店)まで787m その他 ドラッグセイムス 熊谷中西薬局(ドラッグストア)まで435m その他 熊谷市立富士見中学校(中学校)まで601m その他 (株)ベルク 上之店(スーパー)まで477m その他 HIRO中西店(その他)まで194m その他 熊谷郵便局(郵便局)まで1041m | ||
| 建物種別 | マンション | 建物構造 | RC(鉄筋コンクリート) |
この部屋の取扱い不動産会社
| 会社名 | (株)埼玉住宅情報センター(SUUMO経由) | ||
|---|---|---|---|
| 所在地 | 埼玉県熊谷市筑波2-66-1 | 交通 | - |
| 営業時間 | AM9:00~PM6:00 | 定休日 | 日曜日・水曜日 |
| 免許番号 | 埼玉県知事9814 | 取引態様 | 仲介 |
| 不動産会社管理番号 | 100453971822 | 当社管理番号 | 89 |
| 所属団体 | (公社)埼玉県宅地建物取引業協会会員 | ||
| 公正取引協議会 | (公社)首都圏不動産公正取引協議会加盟 | ||
| 取扱い物件情報 | 物件詳細へ | ||
※各種情報と現状に差異がある場合は、現状優先となります。問い合わせをすることで、より詳しい条件、情報を確認する事ができます。
提供:(株)埼玉住宅情報センター(SUUMO経由)
この物件が気になったら掲載期限まであと11日
ダイヤモンドマンション1号館に条件(家賃・エリア)が近い物件一覧
| 写真 | 家賃 管理費等 | 敷金 礼金 | 間取り 専有面積 | 築年数 | 最寄り駅 所在地 | キープ | 詳細 |
|---|---|---|---|---|---|---|---|
アパート FUTUR MIRAKUMA(ワンルーム/2階) | |||||||
![]() | 6万円 4,000円 | なし なし | ワンルーム 25m2 | 築1年 | JR高崎線 熊谷駅 徒歩12分 JR高崎線 行田駅 徒歩62分 埼玉県熊谷市銀座 | 詳細を見る | |
マンション センチュリー鴻巣第3(2LDK/6階) | |||||||
![]() | 6.9万円 4,000円 | 6.9万円 なし | 2LDK 55.8m2 | 築35年 | JR高崎線 鴻巣駅 徒歩24分 埼玉県鴻巣市神明 | 詳細を見る | |
マンション コンフォート熊谷(3LDK/1階) | |||||||
![]() | 6.8万円 なし | 10.2万円 6.8万円 | 3LDK 68.48m2 | 築34年 | 埼玉県熊谷市石原 | 詳細を見る | |
マンション ベルヴィラージュ(3LDK/2階) | |||||||
![]() | 7.7万円 3,000円 | 15.4万円 7.7万円 | 3LDK 78.14m2 | 築22年 | JR高崎線 籠原駅 徒歩23分 湘南新宿ライン高海 籠原駅 徒歩23分 埼玉県熊谷市拾六間 | 詳細を見る | |
アパート ギハンカン(2LDK/2階) | |||||||
![]() | 5.5万円 2,900円 | なし 5.5万円 | 2LDK 57.57m2 | 築13年 | 埼玉県行田市大字南河原 | 詳細を見る | |
マンション レオパレスミルリーフ(1K/2階) | |||||||
![]() | 6.2万円 7,000円 | なし 6.2万円 | 1K 31.33m2 | 築17年 | 東武鉄道東上線 東松山駅 徒歩25分 埼玉県東松山市大字松山 | 詳細を見る | |
アパート ロイヤルシャルムIIB棟(2LDK/1階) | |||||||
![]() | 6万円 3,000円 | なし なし | 2LDK 48.34m2 | 築34年 | JR高崎線 鴻巣駅 徒歩12分 JR高崎線 北鴻巣駅 徒歩48分 JR高崎線 北本駅 徒歩53分 埼玉県鴻巣市大間 | 詳細を見る | |
アパート ブローテ・K(2DK/1階) | |||||||
![]() | 4.9万円 3,500円 | なし 4.9万円 | 2DK 44.82m2 | 築18年 | 東武鉄道東上線 東松山駅 徒歩71分 埼玉県熊谷市船木台3丁目 | 詳細を見る | |









