賃貸マンション
山陰本線 二条駅 徒歩5分 11階建 築28年の賃貸物件情報(3LDK/10階)
| 家賃 | 管理費等 | 敷金 | 礼金 | 間取り | 専有面積 |
|---|---|---|---|---|---|
| 16万円 | なし | 16万円 | 32万円 | 3LDK | 68.03m2 |
入居決定でお祝い金最大100,000円
Point
分譲賃貸 充実設備。 二条駅前の分譲賃貸マンション。良好に便利でビューディフル。
提供:株式会社 京都ライフ 今出川店(賃貸スモッカ経由)

詳細情報 山陰本線 二条駅 徒歩5分 11階建 築28年
物件紹介
山陰本線二条駅から徒歩5分にあり、駅近で通勤通学に便利なマンションです。
このお部屋は2階以上に位置しているので通行人や周囲の住人からの視線が気になりにくく、建物のエントランスはオートロックがついているので防犯性が高くなっています。
フローリングのお部屋なのでお掃除もラクラク。キッチンはシステムキッチン仕様になっていますので、お料理好きの方にもぴったり。また、バス・トイレは別で、のんびりお風呂タイムも楽しめるでしょう。
通信設備面では、インターネット接続が可能です。また、BSアンテナもありますので、おうち時間も充実するでしょう(別途工事、契約料が必要な場合あり)。
床暖房があり、冬も足元から暖かく快適に過ごすことができます。建物にはエレベーターがついているので、重い荷物があっても安心。共用部には宅配ボックスが設定されているので、不在の時にも荷物を受け取ることができます。
このお部屋は2階以上に位置しているので通行人や周囲の住人からの視線が気になりにくく、建物のエントランスはオートロックがついているので防犯性が高くなっています。
フローリングのお部屋なのでお掃除もラクラク。キッチンはシステムキッチン仕様になっていますので、お料理好きの方にもぴったり。また、バス・トイレは別で、のんびりお風呂タイムも楽しめるでしょう。
通信設備面では、インターネット接続が可能です。また、BSアンテナもありますので、おうち時間も充実するでしょう(別途工事、契約料が必要な場合あり)。
床暖房があり、冬も足元から暖かく快適に過ごすことができます。建物にはエレベーターがついているので、重い荷物があっても安心。共用部には宅配ボックスが設定されているので、不在の時にも荷物を受け取ることができます。
お金・契約の情報
※「-」と表示されているものは、実際は料金が発生するものもございます。詳細はお問い合わせください。
| 家賃 | 16万円 | 管理費・共益費 | なし |
|---|---|---|---|
| 敷金 | 16万円 | 礼金 | 32万円 |
| 入居決定でお祝い金最大100,000円 | |||
| 保証金 | - | 償却・敷引 | - |
| 住宅保険料 | 住宅保険料あり | 更新料 | - |
| 契約形態 | - | 契約期間 | 2年 |
| 入居・引渡期間 | 2026年05月上旬 | 現況 | 賃貸中 |
| 契約備考 | JR二条駅まで徒歩5分の分譲賃貸マンションです。JR、京福、阪急、地下鉄にアクセス便利。嬉しい3点セパレートなど充実の設備。オートロックでセキュリティも安心です。コンビニ、スーパー、ドラッグストアなど近くにあって便利ですよ。 入居者サポート:16,500円 更新料:1ヶ月 保証会社:利用必須 初回:月額賃料等の50%、更新時:8000円/1年 その他設備/条件:分譲賃貸、コンロ2口以上 | ||
部屋の情報
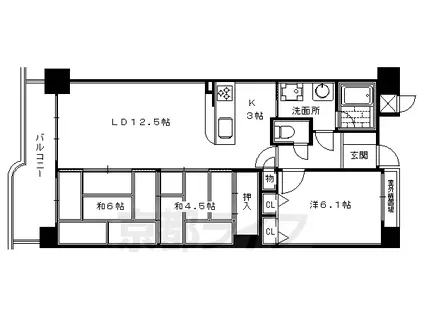
| 間取り | 3LDK | 専有面積 | 68.03m2 |
|---|---|---|---|
| 間取り詳細 | 洋室(6.1帖)、和室(4.5帖)、和室(6帖)、LDK(12.5帖) | ||
| 所在階 / 向き | 10階 / 東 | バルコニー面積 | - |
| 水道 / ガス | ガス【都市】 | ||
| 設備 | バス・トイレ別、2階以上、オートロック、宅配ボックス、インターネット対応、システムキッチン、エレベーター、バルコニー、フローリング、床暖房、コンロ:ガス、BSアンテナ、洗濯機:室内 | ||
| 当社物件ID | 160768930 | ||
建物の情報
| 建物名 | 山陰本線 二条駅 徒歩5分 11階建 築28年 | ||
|---|---|---|---|
| 所在地 | 京都府京都市中京区壬生天池町 | ||
| 交通 | 山陰本線 二条駅 徒歩5分 阪急電鉄京都線 大宮駅(京都) 徒歩12分 | ||
| 階数 | 11階建 | 総戸数 | - |
| 築年月 | 1999年03月 / 築28年 | エレベーター | あり |
| 駐車場 | - | バイク置き場 | - |
| 駐輪場 | あり | 管理人/管理会社 | - |
| 建物種別 | マンション | 建物構造 | RC(鉄筋コンクリート) |
この部屋の取扱い不動産会社
| 会社名 | 株式会社 京都ライフ 今出川店(賃貸スモッカ経由) | ||
|---|---|---|---|
| 所在地 | 京都市上京区烏丸今出川上ル西側御所八幡町115 | 交通 | - |
| 営業時間 | - | 定休日 | - |
| 免許番号 | 京都府知事(11)第6353号 | 取引態様 | 仲介 |
| 不動産会社管理番号 | kyotolife_08950-E1037-04 | 当社管理番号 | 463 |
| 所属団体 | 京都府宅地建物取引業協会\n公益社団法人近畿地区不動産公正取引協議会 | ||
| 公正取引協議会 | 全国宅地建物取引業保証協会 | ||
| 取扱い物件情報 | 物件詳細へ | ||
※各種情報と現状に差異がある場合は、現状優先となります。問い合わせをすることで、より詳しい条件、情報を確認する事ができます。
提供:株式会社 京都ライフ 今出川店(賃貸スモッカ経由)
この物件が気になったら掲載期限まであと6日
山陰本線 二条駅 徒歩5分 11階建 築28年に条件(家賃・エリア)が近い物件一覧
| 写真 | 家賃 管理費等 | 敷金 礼金 | 間取り 専有面積 | 築年数 | 最寄り駅 所在地 | キープ | 詳細 |
|---|---|---|---|---|---|---|---|
マンション THERESIDENCE二条駅前(1LDK/5階) | |||||||
![]() | 12万円 1万円 | なし 24万円 | 1LDK 40.49m2 | 築5年 | JR山陰本線 二条駅 徒歩3分 地下鉄東西線 二条城前駅 徒歩10分 阪急京都線 大宮駅(京都) 徒歩14分 京都府京都市中京区西ノ京職司町 | 詳細を見る | |
マンション 京都市東西線 二条城前駅 徒歩4分 築7年(1LDK/2階) | |||||||
![]() | 16.5万円 なし | なし 33万円 | 1LDK 50.05m2 | 築7年 | 京都市東西線 二条城前駅 徒歩4分 京都市烏丸線 烏丸御池駅 徒歩8分 京都府京都市中京区式阿弥町 | 詳細を見る | |
マンション リーガル京都二条城前(3LDK/4階) | |||||||
![]() | 25万円 2.343万円 | なし 50万円 | 3LDK 88.2m2 | 築5年 | 京都市東西線 二条城前駅 徒歩1分 京都府京都市中京区織物屋町黒門通御池上る | 詳細を見る | |
マンション 近鉄京都線 伊勢田駅 徒歩13分 築2年(3LDK/3階) | |||||||
![]() | 16万円 9,000円 | 5万円 30万円 | 3LDK 86.44m2 | 築2年 | 近鉄京都線 伊勢田駅 徒歩13分 奈良線 新田駅(京都) 徒歩25分 京都府宇治市伊勢田町1丁目 | 詳細を見る | |
マンション 阪急電鉄京都線 大宮駅(京都) 徒歩5分 築1年(2LDK/5階) | |||||||
![]() | 18.6万円 1万円 | なし なし | 2LDK 53.6m2 | 築1年 | 阪急電鉄京都線 大宮駅(京都) 徒歩5分 山陰本線 二条駅 徒歩11分 京都府京都市中京区壬生坊城町 | 詳細を見る | |
アパート シャーメゾン舞鶴(1SLDK/2階) | |||||||
![]() | 16.2万円 8,000円 | 5万円 25万円 | 1SLDK 66.53m2 | 築13年 | 京都市烏丸線 丸太町駅(京都市営) 徒歩10分 京都府京都市中京区達磨町御幸町通二条上る | 詳細を見る | |
マンション 京都市烏丸線 烏丸御池駅 徒歩7分 築8年(1SDK/4階) | |||||||
![]() | 12.6万円 6,000円 | 10万円 25万円 | 1SDK 42.42m2 | 築8年 | 京都市烏丸線 烏丸御池駅 徒歩7分 京都市烏丸線 丸太町駅(京都市営) 徒歩7分 京都府京都市中京区天守町 | 詳細を見る | |
マンション 京都市烏丸線 烏丸御池駅 徒歩4分 築5年(2LDK/4階) | |||||||
![]() | 18.5万円 1万円 | なし 37万円 | 2LDK 54.55m2 | 築5年 | 京都市烏丸線 烏丸御池駅 徒歩4分 京都市烏丸線 丸太町駅(京都市営) 徒歩7分 京都府京都市中京区左京町 | 詳細を見る | |









